Log In/Sign Up
Your email has been sent.
34 Rue Blomet 1,259 SF Retail Building 75015 Paris $1,109,728 ($881.17/SF)



Some information has been automatically translated.
EXECUTIVE SUMMARY
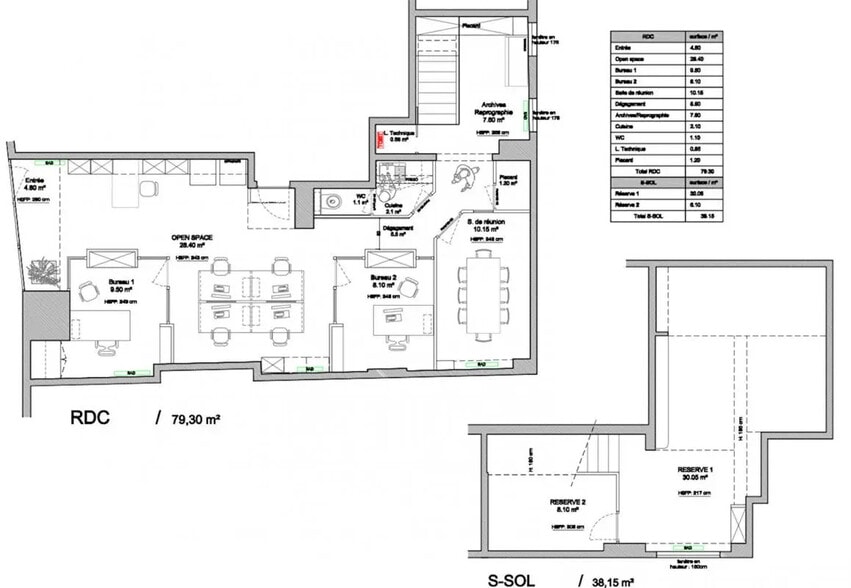
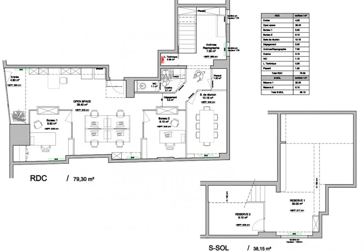
Neighborhood between Lecourbe Street and Vaugirard, close to Volontaire Metro. A newly renovated commercial space on the ground floor, very well arranged. Features a kitchenette and glass-partitioned offices. Ground floor area of 79 m2 and an additional 38 m2 in the English-style basement accessible by a pleasant staircase! (5.00% commission including tax payable by the buyer.)
Condominium of 120 units - including 55 residential units. (No ongoing legal proceedings.)
Annual charges: 5,684 euros.
Property presented by Agences de France by delegation. Agences de France – SIREN: 899413603 – Holder of card T: 29012021000000009 not authorized to receive funds.
Condominium of 120 units - including 55 residential units. (No ongoing legal proceedings.)
Annual charges: 5,684 euros.
Property presented by Agences de France by delegation. Agences de France – SIREN: 899413603 – Holder of card T: 29012021000000009 not authorized to receive funds.
PROPERTY FACTS
Sale Type
Owner User
Property Type
Retail
Property Subtype
Retail
Building Size
1,259 SF
Building Class
C
Year Built
1965
Price
$1,109,728
Price Per SF
$881.17
Tenancy
Single
Building Height
12 Stories
Building FAR
0.06
Lot Size
0.45 AC
1 1
NEARBY MAJOR RETAILERS
1 of 10
VIDEOS
MATTERPORT 3D EXTERIOR
MATTERPORT 3D TOUR
PHOTOS
STREET VIEW
STREET
MAP
1 of 1
Presented by
Agences De France
34 Rue Blomet
Already a member? Log In
Hmm, there seems to have been an error sending your message. Please try again.
Thanks! Your message was sent.
