Your email has been sent.
Gilmore Place 2 3605 Gilmore Way 8,456 SF of Office Space Available in Burnaby, BC V5G 4X5



Sublease Highlights
- Fully built-out suite with private offices, boardroom, and reception
- Surrounded by retail, dining, and transit including Brentwood Town Centre
- Furniture available and terms negotiable for June 2026 occupancy
- Access to fitness facility, showers, bike lockers, and tenant lounge
- Secure underground parking and 24/7 building security
All Available Space(1)
Display Rental Rate as
- Space
- Size
- Term
- Rental Rate
- Space Use
- Condition
- Available
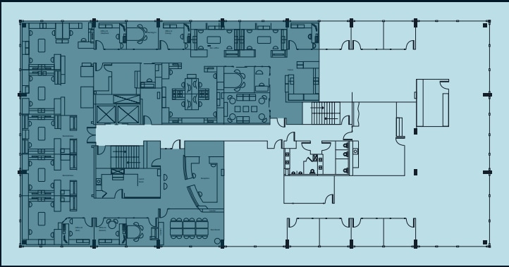
Suite 320 at Discovery Place offers a rare opportunity to sublease premium office space in one of Burnaby’s most amenity-rich buildings. Located at 3605 Gilmore Way, this 8,456-square-foot suite is available starting June 2026, with flexible terms negotiable. The space is fully built out with a thoughtful layout that includes multiple private offices, a boardroom, reception area, lunchroom, and open workstations—ideal for teams seeking a turnkey environment.
- Sublease space available from current tenant
- Mostly Open Floor Plan Layout
- Fully Built-Out as Standard Office
- Fits 22 - 68 People
| Space | Size | Term | Rental Rate | Space Use | Condition | Available |
| 3rd Floor, Ste 320 | 8,456 SF | May 2027 | Upon Request Upon Request Upon Request Upon Request | Office | Full Build-Out | June 01, 2026 |
3rd Floor, Ste 320
| Size |
| 8,456 SF |
| Term |
| May 2027 |
| Rental Rate |
| Upon Request Upon Request Upon Request Upon Request |
| Space Use |
| Office |
| Condition |
| Full Build-Out |
| Available |
| June 01, 2026 |
3rd Floor, Ste 320
| Size | 8,456 SF |
| Term | May 2027 |
| Rental Rate | Upon Request |
| Space Use | Office |
| Condition | Full Build-Out |
| Available | June 01, 2026 |
Suite 320 at Discovery Place offers a rare opportunity to sublease premium office space in one of Burnaby’s most amenity-rich buildings. Located at 3605 Gilmore Way, this 8,456-square-foot suite is available starting June 2026, with flexible terms negotiable. The space is fully built out with a thoughtful layout that includes multiple private offices, a boardroom, reception area, lunchroom, and open workstations—ideal for teams seeking a turnkey environment.
- Sublease space available from current tenant
- Fully Built-Out as Standard Office
- Mostly Open Floor Plan Layout
- Fits 22 - 68 People
Property Overview
Discovery Place is designed to support productivity and wellness, featuring opening windows, wooden lobby floors, secure underground parking, and 24/7 building security. Tenants enjoy access to a fitness facility, showers, bike lockers, jogging trails, and a spacious tenant lounge. The building also includes a large common meeting room and end-of-trip facilities. The location is surrounded by top-tier amenities including The Amazing Brentwood, Whole Foods Market, BCIT, Burnaby Hospital, and a variety of restaurants and cafes such as Cactus Club, JOEY, and Tim Hortons. Transit access is excellent, with Gilmore, Holdom, and Brentwood Town Centre stations nearby, and major thoroughfares like Canada Way and Boundary Road providing quick connections across Metro Vancouver. This sublease is ideal for companies seeking a high-quality, well-connected workspace with flexible terms and optional furniture. Contact the listing brokers for pricing and further details.
- Bus Line
- Security System
- Signage
- Bicycle Storage
- Shower Facilities
- Monument Signage
- Smoke Detector
Property Facts
Select Tenants
- Floor
- Tenant Name
- Industry
- 1st
- 3AG Systems Inc
- -
- 1st
- Antares
- -
- 3rd
- Changepain Medical & Allied Health
- -
- 1st
- Greenlane Renewables Inc
- Wholesaler
- 1st
- Pacific Vector Tech Ltd
- -
- 3rd
- Prism Engineering Ltd
- -
- 3rd
- PUMA Utility Monitoring Inc
- -
Presented by
Gilmore Place 2 | 3605 Gilmore Way
Hmm, there seems to have been an error sending your message. Please try again.
Thanks! Your message was sent.



