Log In/Sign Up
Your email has been sent.
375 Municipal Dr - Richardson Medical Park 2,179 - 2,551 SF Office/Medical Condo Units Offered at $130,740 - $153,000 Per Unit in Richardson, TX 75080



Investment Highlights
- Well Maintained Property with Mature Landscaping
- Covered Parking
- Condos Also Available For Lease $20/SF/yr Full Service
- Direct Access to Central Expressway
Data Room Click Here to Access
2 Units Available
- Unit
- Unit Size
- Condo Use
- Price
- NOI
| Sale Type | Investment or Owner User |
| Sale Type | Investment or Owner User |
| Sale Type | Investment or Owner User |
| Sale Type | Investment or Owner User |
Description
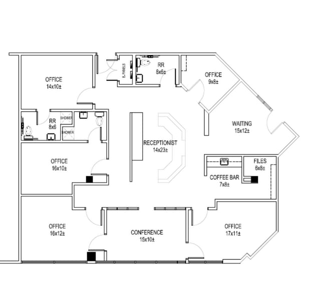
Unit #224 is approximately 2,551 square feet and includes reception/waiting room, 4 spacious offices and conference room with floor to ceiling windows, 2 large workrooms with 3-4 work stations each and one with large file closet, coffee bar with under counter refrigerator, and restroom.
Sale Notes
Suited for Professional Office and Medical Office Use
| Unit | Unit Size | Condo Use | Price | NOI |
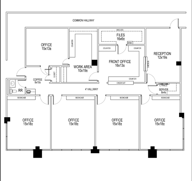
| Unit 132 | 2,179 SF | Office/Medical | $130,740 ($60.00/SF) | - |
| Unit 224 | 2,551 SF | Office/Medical | $153,000 ($59.98/SF) | - |
Unit 132
| Unit Size |
| 2,179 SF |
| Condo Use |
| Office/Medical |
| Price |
| $130,740 ($60.00/SF) |
| NOI |
| - |
Unit 224
| Unit Size |
| 2,551 SF |
| Condo Use |
| Office/Medical |
| Price |
| $153,000 ($59.98/SF) |
| NOI |
| - |
1 of 1
Videos
Matterport 3D Exterior
Matterport 3D Tour
Photos
Street View
Street
Map
Unit 132
| Unit Size | 2,179 SF |
| Condo Use | Office/Medical |
| Price | $130,740 ($60.00/SF) |
| NOI | - |
| Sale Type | Investment or Owner User |
1 of 3
Videos
Matterport 3D Exterior
Matterport 3D Tour
Photos
Street View
Street
Map
Unit 224
| Unit Size | 2,551 SF |
| Condo Use | Office/Medical |
| Price | $153,000 ($59.98/SF) |
| NOI | - |
| Sale Type | Investment or Owner User |
| Description | |
| Unit #224 is approximately 2,551 square feet and includes reception/waiting room, 4 spacious offices and conference room with floor to ceiling windows, 2 large workrooms with 3-4 work stations each and one with large file closet, coffee bar with under counter refrigerator, and restroom.</li></ul> | |
| Sale Notes | |
| Suited for Professional Office and Medical Office Use</li></ul> |
Property Facts
The following property facts and amenities apply to the entire building. Details for individual condo units may vary and are listed in the unit information above.
| Total Building Size | 48,963 SF | Floors | 2 |
| Property Type | Office | Typical Floor Size | 1,841 SF |
| Property Subtype | Medical | Year Built | 1981 |
| Building Class | C | Lot Size | 4.01 AC |
| Zoning | Medical Office - O-M (Office) | ||
| Total Building Size | 48,963 SF |
| Property Type | Office |
| Property Subtype | Medical |
| Building Class | C |
| Floors | 2 |
| Typical Floor Size | 1,841 SF |
| Year Built | 1981 |
| Lot Size | 4.01 AC |
| Zoning | Medical Office - O-M (Office) |
Amenities
- Controlled Access
- Fitness Center
- Air Conditioning
Fairly walkable
50/100
Exceptionally drivable
100/100
Limited public transit
30/100
Fairly bikeable
50/100
1 of 59
Videos
Matterport 3D Exterior
Matterport 3D Tour
Photos
Street View
Street
Map
Presented by
375 Municipal Dr - Richardson Medical Park
Already a member? Log In
Hmm, there seems to have been an error sending your message. Please try again.
Thanks! Your message was sent.




