Your email has been sent.
Highlights
- Unique retail (fitness) space with adjoining café located in the charming Georgetown business district.
- Large separate retail areas with two restrooms—one with shower. Side walkway leads to cafe with third ADA restroom.
- Flexibility in SF/demising; open to possible office use.
All Available Space(1)
Display Rental Rate as
- Space
- Size
- Term
- Rental Rate
- Space Use
- Build-Out
- Available
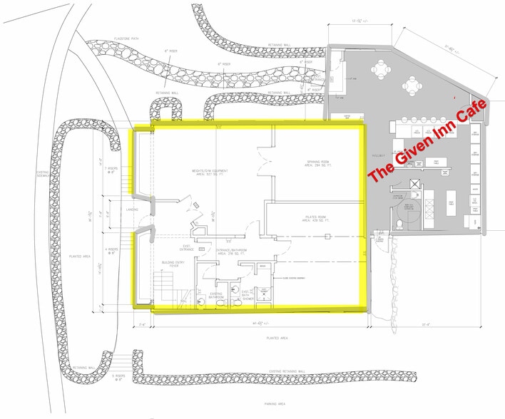
-Unique retail (fitness) space located in the charming Georgetown business district. -Flexibility in SF/demising; open to possible office use,. Join newly signed, neighboring café’ The Given Inn Café’. -Visible corner location on CT-57 and Old Mill Road; private parking lot (40+ vehicles). -Large separate retail areas with two restrooms—one with shower. -Less that 1/2 mile to Caraluzzi’s, walking distance to Georgetown School of Arts and local restaurants. -Average HHI $250,000+ one-mile radius
- Partially Built-Out as a Restaurant or Café Space
- Less than 1/2 mile to Caraluzzi’s.
- Space is in Excellent Condition
- Walking distance to Georgetown School of Arts.
| Space | Size | Term | Rental Rate | Space Use | Build-Out | Available |
| 1st Floor | 1,578 SF | Negotiable | Upon Request Upon Request Upon Request Upon Request | Retail | Partial Build-Out | 30 Days |
1st Floor
| Size |
| 1,578 SF |
| Term |
| Negotiable |
| Rental Rate |
| Upon Request Upon Request Upon Request Upon Request |
| Space Use |
| Retail |
| Build-Out |
| Partial Build-Out |
| Available |
| 30 Days |
1st Floor
| Size | 1,578 SF |
| Term | Negotiable |
| Rental Rate | Upon Request |
| Space Use | Retail |
| Build-Out | Partial Build-Out |
| Available | 30 Days |
-Unique retail (fitness) space located in the charming Georgetown business district. -Flexibility in SF/demising; open to possible office use,. Join newly signed, neighboring café’ The Given Inn Café’. -Visible corner location on CT-57 and Old Mill Road; private parking lot (40+ vehicles). -Large separate retail areas with two restrooms—one with shower. -Less that 1/2 mile to Caraluzzi’s, walking distance to Georgetown School of Arts and local restaurants. -Average HHI $250,000+ one-mile radius
- Partially Built-Out as a Restaurant or Café Space
- Space is in Excellent Condition
- Less than 1/2 mile to Caraluzzi’s.
- Walking distance to Georgetown School of Arts.
Select Tenants
- Floor
- Tenant Name
- Industry
- Unknown
- Conlon Daniel P Architects
- Professional, Scientific, and Technical Services
- 1st
- Elevation Spinning & Pt
- Health Care and Social Assistance
- Unknown
- Emi Specialty Papers
- Manufacturing
- Unknown
- Esten McGee Inc
- Wholesaler
Property Facts
Property Overview
-Unique retail (fitness) space located in the charming Georgetown business district. -Flexibility in SF/demising; open to possible office use,. Join newly signed, neighboring café’ The Given Inn Café’. -Visible corner location on CT-57 and Old Mill Road; private parking lot (40+ vehicles). -Large separate retail areas with two restrooms—one with shower. -Less that 1/2 mile to Caraluzzi’s, walking distance to Georgetown School of Arts and local restaurants. -Average HHI $250,000+ one-mile radius
Nearby Major Retailers
Presented by
4 Old Mill Rd
Hmm, there seems to have been an error sending your message. Please try again.
Thanks! Your message was sent.





