Your email has been sent.
4009 34th St 2,250 SF Retail Building Mount Rainier, MD 20712 $625,000 ($277.78/SF)



Executive Summary
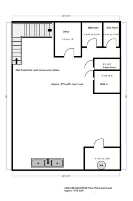
property offers a fully built-out second-generation restaurant opportunity. The main level features a dining area with an open kitchen, grille, and half bathroom, while the lower level includes an office, additional half bath, built-in refrigeration, triple sink, freezer space, and a mop room. The kitchen infrastructure includes a new commercial hood and exhaust system, grease trap, multiple sinks, and extensive food prep areas. The building is served by three-phase power, natural gas, and municipal water and sewer. Ideal for fast-casual, café, or specialty food operators seeking a move-in ready setup in a walkable, community-oriented setting just minutes from Washington, D.C
Property Facts
Amenities
- Bus Line
- Restaurant
- Signage
- Tenant Controlled HVAC
Space Availability
- Space
- Size
- Space Use
- Position
- Available
Located in the heart of the historic Mount Rainier Town Center—known for its walkable shops, vibrant arts scene, and historic neighborhoods—this ±2,300 SF two-level property offers a fully built-out second-generation restaurant opportunity. The main level features a dining area with an open kitchen, grille, and half bathroom, while the lower level includes an office, additional half bath, built-in refrigeration, triple sink, freezer space, and a mop room. The kitchen infrastructure includes a new commercial hood and exhaust system, grease trap, multiple sinks, and extensive food prep areas. The building is served by three-phase power, natural gas, and municipal water and sewer. Ideal for fast-casual, café, or specialty food operators seeking a move-in ready setup in a walkable, community-oriented setting just minutes from Washington, D.C.
Located in the heart of the historic Mount Rainier Town Center—known for its walkable shops, vibrant arts scene, and historic neighborhoods—this ±2,300 SF two-level property offers a fully built-out second-generation restaurant opportunity. The main level features a dining area with an open kitchen, grille, and half bathroom, while the lower level includes an office, additional half bath, built-in refrigeration, triple sink, freezer space, and a mop room. The kitchen infrastructure includes a new commercial hood and exhaust system, grease trap, multiple sinks, and extensive food prep areas. The building is served by three-phase power, natural gas, and municipal water and sewer. Ideal for fast-casual, café, or specialty food operators seeking a move-in ready setup in a walkable, community-oriented setting just minutes from Washington, D.C.
| Space | Size | Space Use | Position | Available |
| 1st Floor | 1,375 SF | Restaurant | - | Now |
| 2nd Floor | 875 SF | Restaurant | - | Now |
1st Floor
| Size |
| 1,375 SF |
| Space Use |
| Restaurant |
| Position |
| - |
| Available |
| Now |
2nd Floor
| Size |
| 875 SF |
| Space Use |
| Restaurant |
| Position |
| - |
| Available |
| Now |
1st Floor
| Size | 1,375 SF |
| Space Use | Restaurant |
| Position | - |
| Available | Now |
Located in the heart of the historic Mount Rainier Town Center—known for its walkable shops, vibrant arts scene, and historic neighborhoods—this ±2,300 SF two-level property offers a fully built-out second-generation restaurant opportunity. The main level features a dining area with an open kitchen, grille, and half bathroom, while the lower level includes an office, additional half bath, built-in refrigeration, triple sink, freezer space, and a mop room. The kitchen infrastructure includes a new commercial hood and exhaust system, grease trap, multiple sinks, and extensive food prep areas. The building is served by three-phase power, natural gas, and municipal water and sewer. Ideal for fast-casual, café, or specialty food operators seeking a move-in ready setup in a walkable, community-oriented setting just minutes from Washington, D.C.
2nd Floor
| Size | 875 SF |
| Space Use | Restaurant |
| Position | - |
| Available | Now |
Located in the heart of the historic Mount Rainier Town Center—known for its walkable shops, vibrant arts scene, and historic neighborhoods—this ±2,300 SF two-level property offers a fully built-out second-generation restaurant opportunity. The main level features a dining area with an open kitchen, grille, and half bathroom, while the lower level includes an office, additional half bath, built-in refrigeration, triple sink, freezer space, and a mop room. The kitchen infrastructure includes a new commercial hood and exhaust system, grease trap, multiple sinks, and extensive food prep areas. The building is served by three-phase power, natural gas, and municipal water and sewer. Ideal for fast-casual, café, or specialty food operators seeking a move-in ready setup in a walkable, community-oriented setting just minutes from Washington, D.C.
Nearby Major Retailers
Property Taxes
| Parcel Number | 17-1919133 | Improvements Assessment | $0 |
| Land Assessment | $0 | Total Assessment | $304,233 |
Property Taxes
Presented by
4009 34th St
Hmm, there seems to have been an error sending your message. Please try again.
Thanks! Your message was sent.




