Enter your email to login or create a free account
This feature is unavailable at the moment.
We apologize, but the feature you are trying to access is currently unavailable. We are aware of this issue and our team is working hard to resolve the matter.
Please check back in a few minutes. We apologize for the inconvenience.
- LoopNet Team
4040 Wilson Blvd
Arlington, VA 22203
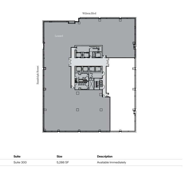
4040 Wilson · Property For Lease

Highlights
- Highly effcient, virtually column-free floors
- 2nd floor lounge with coffee bar, private meeting spaces & fitness center
- On-site parking available: 1.3 / 1,000 SF
- Stunning rooftop deck entertainment space with tenant-only conferencing facility
- Access to Ballston’s finest amenities: VIDA Fitness, Salt Line, Compass Coffee, Sweetgreen, Taco Bamba, Marriott Hotel, Rustico Restaurant & Bar
Property Overview
Arlington's newest office building is a mixed-use development consisting of 250 apartment units, over 185,000 sf of office space, and a dynamic mix of 1st floor retail. Retail tenants include Salt Line and Vida Fitness, but the project has access to additional retailers within Liberty Center and Ballston Quarter. The office building offers column-free spacing for tenants, a state-of-the-art rooftop conference facility with an outdoor terrace, common tenant lounge, destination dispatch elevators, and a DOAS HVAC System. Signage is available for larger users.
- 24 Hour Access
- Conferencing Facility
- Fitness Center
Property Facts
Sustainability
Sustainability
LEED Certification Developed by the U.S. Green Building Council (USGBC), the Leadership in Energy and Environmental Design (LEED) is a green building certification program focused on the design, construction, operation, and maintenance of green buildings, homes, and neighborhoods, which aims to help building owners and operators be environmentally responsible and use resources efficiently. LEED certification is a globally recognized symbol of sustainability achievement and leadership. To achieve LEED certification, a project earns points by adhering to prerequisites and credits that address carbon, energy, water, waste, transportation, materials, health and indoor environmental quality. Projects go through a verification and review process and are awarded points that correspond to a level of LEED certification: Platinum (80+ points) Gold (60-79 points) Silver (50-59 points) Certified (40-49 points)
Listing ID: 24278149
Date on Market: 10/12/2021
Last Updated:
Address: 4040 Wilson Blvd, Arlington, VA 22203
The Ballston/Virginia Square Office Property at 4040 Wilson Blvd, Arlington, VA 22203 is no longer being advertised on LoopNet.com. Contact the broker for information on availability.
OFFICE PROPERTIES IN NEARBY NEIGHBORHOODS
- Downtown DC Commercial Real Estate Properties
- Old Town/Potomac Yard Commercial Real Estate Properties
- Georgetown/Wisconsin Ave Commercial Real Estate Properties
- Adams Morgan/Columbia Heights Commercial Real Estate Properties
- Capitol Hill Commercial Real Estate Properties
- Lower Northeast Commercial Real Estate Properties
- H Street/NoMa Commercial Real Estate Properties
- Southwest/Navy Yard Commercial Real Estate Properties
- Branch Avenue Commercial Real Estate Properties
- Ballston Commercial Real Estate Properties
- National Landing Commercial Real Estate Properties
- Anacostia Southeast Commercial Real Estate Properties
- Connecticut Ave Northwest Commercial Real Estate Properties
- National Mall Commercial Real Estate Properties
- Old Town Commercial Real Estate Properties
NEARBY LISTINGS
- 875 15th St NW, Washington DC
- 2011 Crystal Dr, Arlington VA
- 800 N Glebe Rd, Arlington VA
- 6400 Arlington Blvd, Falls Church VA
- 1901 N Beauregard St, Alexandria VA
- 2001 L St NW, Washington DC
- 1901 Pennsylvania Ave NW, Washington DC
- 1400 16th St NW, Washington DC
- 1101 14th St NW, Washington DC
- 1220 L St NW, Washington DC
- 1250 23rd St NW, Washington DC
- 1350 Eye St NW, Washington DC
- 1425 K St NW, Washington DC
- 3401 Fairfax Dr, Arlington VA
- 1710 Rhode Island Ave NW, Washington DC
