Log In/Sign Up
Your email has been sent.
Investment Highlights
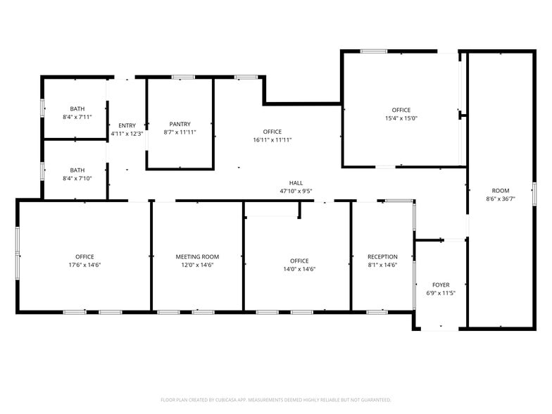
- 2250 SqFt of work space, 4 private offices, 1 open work area, Kitchen and breakroom
- Ample parking and well maintained grounds
- Ojai Business Park easy access to Hwy 33 and downtown Ojai
Executive Summary
Discover a rare opportunity to own a beautifully maintained professional office suite in the highly sought-after Ojai Valley Business Park. Built in 2006 and proudly occupied by the same owner since construction, this 2,250 sq. ft. space combines modern functionality with timeless quality.
Designed for efficiency and comfort, the layout features four private offices, a welcoming reception area with secure buzzer entry, and a spacious open work area ideal for team collaboration. The suite also includes a dedicated file room, men's and women's restrooms, and a well-appointed kitchen/breakroomeverything your business needs to thrive in a professional, comfortable environment.
The Ojai Valley Business Park offers a clean, well-managed setting surrounded by established local businesses, with ample parking and easy access to Highway 33. Whether you're looking to elevate your current workspace or establish a new office in the heart of the Ojai Valley, this property offers an ideal blend of privacy, accessibility, and long-term value.
Designed for efficiency and comfort, the layout features four private offices, a welcoming reception area with secure buzzer entry, and a spacious open work area ideal for team collaboration. The suite also includes a dedicated file room, men's and women's restrooms, and a well-appointed kitchen/breakroomeverything your business needs to thrive in a professional, comfortable environment.
The Ojai Valley Business Park offers a clean, well-managed setting surrounded by established local businesses, with ample parking and easy access to Highway 33. Whether you're looking to elevate your current workspace or establish a new office in the heart of the Ojai Valley, this property offers an ideal blend of privacy, accessibility, and long-term value.
Property Facts
Sale Type
Investment or Owner User
Property Type
Building Size
2,250 SF
Building Class
C
Year Built
2006
Price
$995,000
Price Per SF
$442.22
Percent Leased
100%
Tenancy
Multiple
Building Height
1 Story
Typical Floor Size
2,250 SF
Building FAR
0.22
Lot Size
0.24 AC
Zoning
M1 - M1 Light Manufacturing and Commersial
Parking
14 Spaces (6.22 Spaces per 1,000 SF Leased)
Amenities
- Signage
- Reception
- Monument Signage
- Air Conditioning
Major Tenants
- Tenant
- Industry
- SF Occupied
- Rent/SF
- Lease End
- calix oil co
- -
- -
- -
- -
- P C adams
- -
- -
- -
- -
- w t hammond
- -
- -
- -
- -
- yorba oil co
- Mining, Quarrying, and Oil and Gas Extraction
- -
- -
- -
| Tenant | Industry | SF Occupied | Rent/SF | Lease End | ||
| calix oil co | - | - | - | - | ||
| P C adams | - | - | - | - | ||
| w t hammond | - | - | - | - | ||
| yorba oil co | Mining, Quarrying, and Oil and Gas Extraction | - | - | - |
1 1
Fairly walkable
40/100
Very drivable
80/100
Limited public transit
30/100
Moderately bikeable
60/100
Property Taxes
| Parcel Number | 024-0-160-075 | Improvements Assessment | $505,500 |
| Land Assessment | $220,000 | Total Assessment | $725,500 |
Property Taxes
Parcel Number
024-0-160-075
Land Assessment
$220,000
Improvements Assessment
$505,500
Total Assessment
$725,500
1 of 27
Videos
Matterport 3D Exterior
Matterport 3D Tour
Photos
Street View
Street
Map
1 of 1
Presented by
G | 407 Bryant Cir
Already a member? Log In
Hmm, there seems to have been an error sending your message. Please try again.
Thanks! Your message was sent.



