Your email has been sent.
Thompson Building 425 University Ave 978 - 17,643 SF of Office Space Available in Toronto, ON M5G 1Y8



Highlights
- Exceptional access to St. Patrick subway station and premier public transit connectivity.
- Located within walking distance of major hospitals, legal centers, and government offices.
- Natural light exposure with large windows and high ceilings for an open workspace feel.
All Available Spaces(6)
Display Rental Rate as
- Space
- Size
- Term
- Rental Rate
- Space Use
- Build-Out
- Available
Suite 201 is improved with 3 offices, meeting rooms, kitchenette and open area. Landlord willing to combine both units and customize for a 2,932 sf user. New elevators and common area upgrades.
- Lease rate does not include utilities, property expenses or building services
- Mostly Open Floor Plan Layout
- 1 Conference Room
- Open-Plan
- Queen’s Park, the Courts and Bay Street
- Fully Built-Out as Standard Office
- 3 Private Offices
- Kitchen
- Turnkey
- Steps from St. Patrick Subway Station
Built out with 3 offices, meeting room, kitchenette, and open area
- Lease rate does not include utilities, property expenses or building services
- Open Floor Plan Layout
- 1 Conference Room
- Fully Built-Out as Standard Office
- 3 Private Offices
- Space is in Excellent Condition
Open concept with 2 offices, a boardroom and kitchen overlooking University Avenue, furnished with 35 workstations
- Lease rate does not include utilities, property expenses or building services
- Mostly Open Floor Plan Layout
- 1 Conference Room
- Reception Area
- Natural Light
- Steps from St. Patrick Subway Station
- Fully Built-Out as Standard Office
- 2 Private Offices
- 35 Workstations
- Kitchen
- Queen’s Park, the Courts and Bay Street
- Furnished
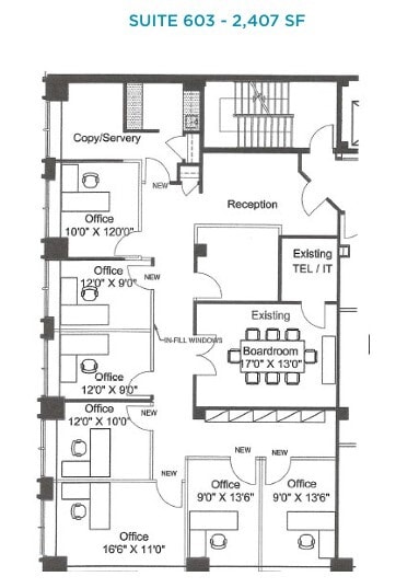
Corner unit built out former law firm space with 7 offices on windows, boardroom, reception, and kitchenette
- Lease rate does not include utilities, property expenses or building services
- Mostly Open Floor Plan Layout
- 1 Conference Room
- Kitchen
- Queen’s Park, the Courts and Bay Street
- Furnished
- Fully Built-Out as Standard Office
- 7 Private Offices
- Reception Area
- Natural Light
- Steps from St. Patrick Subway Station
Bright corner unit built out with 4 offices, boardroom, kitchenette, open area for 24 workstations, and University Avenue views
- Lease rate does not include utilities, property expenses or building services
- Mostly Open Floor Plan Layout
- 3 Conference Rooms
- Reception Area
- Natural Light
- Steps from St. Patrick Subway Station
- Fully Built-Out as Standard Office
- 4 Private Offices
- 24 Workstations
- Kitchen
- Queen’s Park, the Courts and Bay Street
- Furnished
Built-out with 4 offices, 3 meeting rooms, 1 boardroom, kitchen/server, reception and internal bathrooms. Some furniture can be made available.
- Lease rate does not include utilities, property expenses or building services
- Mostly Open Floor Plan Layout
- 3 Conference Rooms
- Kitchen
- Queen’s Park, the Courts and Bay Street
- Furnished
- Fully Built-Out as Standard Office
- 4 Private Offices
- Reception Area
- Natural Light
- Steps from St. Patrick Subway Station
| Space | Size | Term | Rental Rate | Space Use | Build-Out | Available |
| 2nd Floor, Ste 201 | 1,601 SF | 1-10 Years | $11.03 USD/SF/YR $0.92 USD/SF/MO $17,651 USD/YR $1,471 USD/MO | Office | Full Build-Out | Now |
| 3rd Floor, Ste 301 | 978 SF | 1 Year | $16.54 USD/SF/YR $1.38 USD/SF/MO $16,174 USD/YR $1,348 USD/MO | Office | Full Build-Out | 30 Days |
| 4th Floor, Ste 400 | 4,392 SF | 1-10 Years | $16.54 USD/SF/YR $1.38 USD/SF/MO $72,635 USD/YR $6,053 USD/MO | Office | Full Build-Out | Now |
| 6th Floor, Ste 603 | 2,407 SF | 1-10 Years | $16.54 USD/SF/YR $1.38 USD/SF/MO $39,807 USD/YR $3,317 USD/MO | Office | Full Build-Out | Now |
| 8th Floor, Ste 800 | 2,856 SF | 1-10 Years | $16.54 USD/SF/YR $1.38 USD/SF/MO $47,232 USD/YR $3,936 USD/MO | Office | Full Build-Out | Now |
| 9th Floor, Ste 900 | 5,409 SF | 1-10 Years | $16.54 USD/SF/YR $1.38 USD/SF/MO $89,454 USD/YR $7,454 USD/MO | Office | Full Build-Out | 30 Days |
2nd Floor, Ste 201
| Size |
| 1,601 SF |
| Term |
| 1-10 Years |
| Rental Rate |
| $11.03 USD/SF/YR $0.92 USD/SF/MO $17,651 USD/YR $1,471 USD/MO |
| Space Use |
| Office |
| Build-Out |
| Full Build-Out |
| Available |
| Now |
3rd Floor, Ste 301
| Size |
| 978 SF |
| Term |
| 1 Year |
| Rental Rate |
| $16.54 USD/SF/YR $1.38 USD/SF/MO $16,174 USD/YR $1,348 USD/MO |
| Space Use |
| Office |
| Build-Out |
| Full Build-Out |
| Available |
| 30 Days |
4th Floor, Ste 400
| Size |
| 4,392 SF |
| Term |
| 1-10 Years |
| Rental Rate |
| $16.54 USD/SF/YR $1.38 USD/SF/MO $72,635 USD/YR $6,053 USD/MO |
| Space Use |
| Office |
| Build-Out |
| Full Build-Out |
| Available |
| Now |
6th Floor, Ste 603
| Size |
| 2,407 SF |
| Term |
| 1-10 Years |
| Rental Rate |
| $16.54 USD/SF/YR $1.38 USD/SF/MO $39,807 USD/YR $3,317 USD/MO |
| Space Use |
| Office |
| Build-Out |
| Full Build-Out |
| Available |
| Now |
8th Floor, Ste 800
| Size |
| 2,856 SF |
| Term |
| 1-10 Years |
| Rental Rate |
| $16.54 USD/SF/YR $1.38 USD/SF/MO $47,232 USD/YR $3,936 USD/MO |
| Space Use |
| Office |
| Build-Out |
| Full Build-Out |
| Available |
| Now |
9th Floor, Ste 900
| Size |
| 5,409 SF |
| Term |
| 1-10 Years |
| Rental Rate |
| $16.54 USD/SF/YR $1.38 USD/SF/MO $89,454 USD/YR $7,454 USD/MO |
| Space Use |
| Office |
| Build-Out |
| Full Build-Out |
| Available |
| 30 Days |
2nd Floor, Ste 201
| Size | 1,601 SF |
| Term | 1-10 Years |
| Rental Rate | $11.03 USD/SF/YR |
| Space Use | Office |
| Build-Out | Full Build-Out |
| Available | Now |
Suite 201 is improved with 3 offices, meeting rooms, kitchenette and open area. Landlord willing to combine both units and customize for a 2,932 sf user. New elevators and common area upgrades.
- Lease rate does not include utilities, property expenses or building services
- Fully Built-Out as Standard Office
- Mostly Open Floor Plan Layout
- 3 Private Offices
- 1 Conference Room
- Kitchen
- Open-Plan
- Turnkey
- Queen’s Park, the Courts and Bay Street
- Steps from St. Patrick Subway Station
3rd Floor, Ste 301
| Size | 978 SF |
| Term | 1 Year |
| Rental Rate | $16.54 USD/SF/YR |
| Space Use | Office |
| Build-Out | Full Build-Out |
| Available | 30 Days |
Built out with 3 offices, meeting room, kitchenette, and open area
- Lease rate does not include utilities, property expenses or building services
- Fully Built-Out as Standard Office
- Open Floor Plan Layout
- 3 Private Offices
- 1 Conference Room
- Space is in Excellent Condition
4th Floor, Ste 400
| Size | 4,392 SF |
| Term | 1-10 Years |
| Rental Rate | $16.54 USD/SF/YR |
| Space Use | Office |
| Build-Out | Full Build-Out |
| Available | Now |
Open concept with 2 offices, a boardroom and kitchen overlooking University Avenue, furnished with 35 workstations
- Lease rate does not include utilities, property expenses or building services
- Fully Built-Out as Standard Office
- Mostly Open Floor Plan Layout
- 2 Private Offices
- 1 Conference Room
- 35 Workstations
- Reception Area
- Kitchen
- Natural Light
- Queen’s Park, the Courts and Bay Street
- Steps from St. Patrick Subway Station
- Furnished
6th Floor, Ste 603
| Size | 2,407 SF |
| Term | 1-10 Years |
| Rental Rate | $16.54 USD/SF/YR |
| Space Use | Office |
| Build-Out | Full Build-Out |
| Available | Now |
Corner unit built out former law firm space with 7 offices on windows, boardroom, reception, and kitchenette
- Lease rate does not include utilities, property expenses or building services
- Fully Built-Out as Standard Office
- Mostly Open Floor Plan Layout
- 7 Private Offices
- 1 Conference Room
- Reception Area
- Kitchen
- Natural Light
- Queen’s Park, the Courts and Bay Street
- Steps from St. Patrick Subway Station
- Furnished
8th Floor, Ste 800
| Size | 2,856 SF |
| Term | 1-10 Years |
| Rental Rate | $16.54 USD/SF/YR |
| Space Use | Office |
| Build-Out | Full Build-Out |
| Available | Now |
Bright corner unit built out with 4 offices, boardroom, kitchenette, open area for 24 workstations, and University Avenue views
- Lease rate does not include utilities, property expenses or building services
- Fully Built-Out as Standard Office
- Mostly Open Floor Plan Layout
- 4 Private Offices
- 3 Conference Rooms
- 24 Workstations
- Reception Area
- Kitchen
- Natural Light
- Queen’s Park, the Courts and Bay Street
- Steps from St. Patrick Subway Station
- Furnished
9th Floor, Ste 900
| Size | 5,409 SF |
| Term | 1-10 Years |
| Rental Rate | $16.54 USD/SF/YR |
| Space Use | Office |
| Build-Out | Full Build-Out |
| Available | 30 Days |
Built-out with 4 offices, 3 meeting rooms, 1 boardroom, kitchen/server, reception and internal bathrooms. Some furniture can be made available.
- Lease rate does not include utilities, property expenses or building services
- Fully Built-Out as Standard Office
- Mostly Open Floor Plan Layout
- 4 Private Offices
- 3 Conference Rooms
- Reception Area
- Kitchen
- Natural Light
- Queen’s Park, the Courts and Bay Street
- Steps from St. Patrick Subway Station
- Furnished
Property Overview
425 University Avenue is a prominent mid-rise office building located in Downtown Toronto, at the intersection of University Avenue and Dundas Street West. This 10-storey office property offers a strong professional presence along one of the city’s most prestigious and accessible boulevards, known for its wide tree-lined median, major institutions, and proximity to government, legal, healthcare, and financial sectors. Featuring an updated lobby, general building upgrades throughout, and located right next door to St. Patrick subway station, 425 University Avenue is a strong value play for any group looking for an office space along University Avenue.
Property Facts
Select Tenants
- Floor
- Tenant Name
- Industry
- 8th
- Attix Pharmaceuticals Inc
- Retailer
- 4th
- Best Ontario Inc.
- Services
- 9th
- BuzzBuzzHome
- Real Estate
- 1st
- Caixa Geral De Depositos
- Finance and Insurance
- 3rd
- Centro Legal Works Inc.
- Professional, Scientific, and Technical Services
- 1st
- Dr Naila Ladha
- Retailer
- 8th
- Ethical Associates Inc
- Professional, Scientific, and Technical Services
- 6th
- Future Media Concepts, Inc.
- Services
- 4th
- LEA Consulting Ltd
- Professional, Scientific, and Technical Services
- 7th
- MolecuLight Inc.
- Health Care and Social Assistance
Presented by
Thompson Building | 425 University Ave
Hmm, there seems to have been an error sending your message. Please try again.
Thanks! Your message was sent.










