Log In/Sign Up
Enter your email to login or create a free account
This feature is unavailable at the moment.
We apologize, but the feature you are trying to access is currently unavailable. We are aware of this issue and our team is working hard to resolve the matter.
Please check back in a few minutes. We apologize for the inconvenience.
- LoopNet Team
This Land Property is no longer advertised on LoopNet.com.
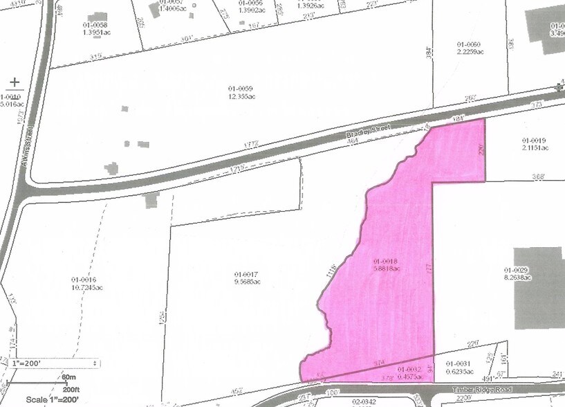
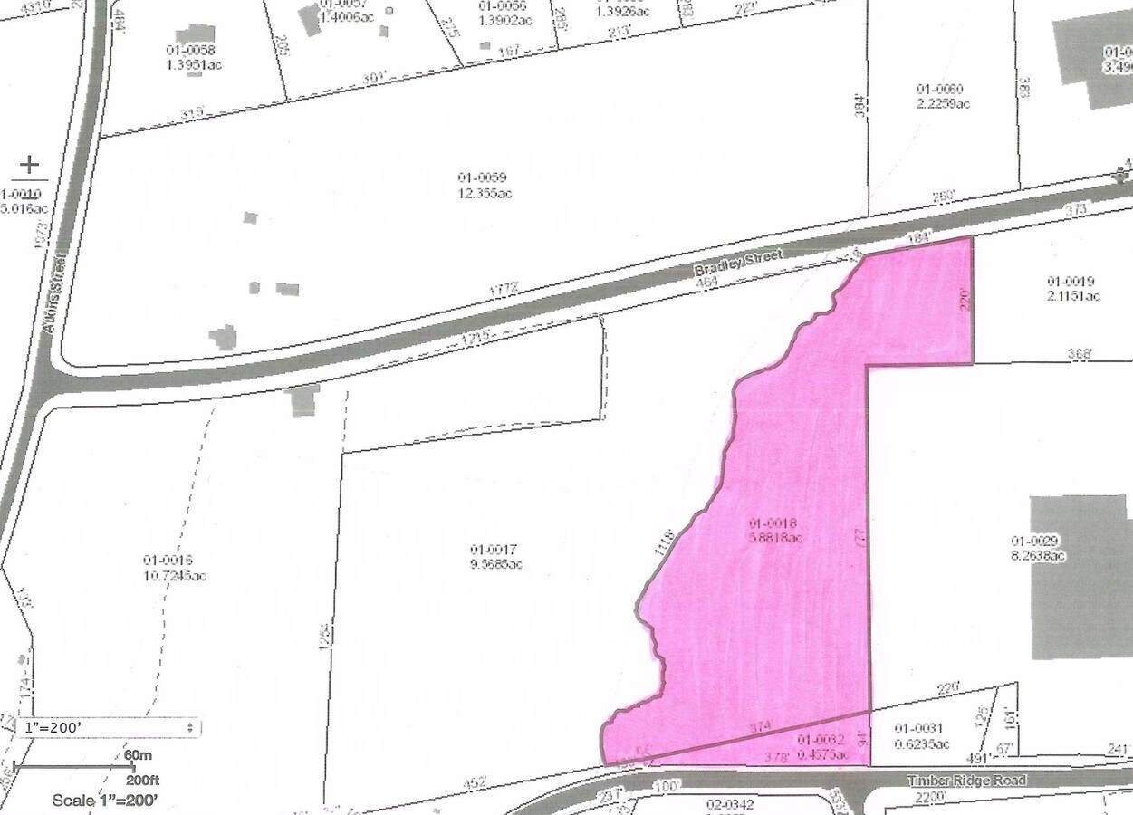
426 Timber Ridge Rd
Middletown, CT 06457
Lot #7, Timber Ridge Road · Land For Sale
·
6.50 AC

Property Facts
| Property Type | Land | Proposed Use | Industrial |
| Property Subtype | Industrial | Total Lot Size | 6.50 AC |
| Zoning | IT | ||
| Property Type | Land |
| Property Subtype | Industrial |
| Proposed Use | Industrial |
| Total Lot Size | 6.50 AC |
| Zoning | IT |
Property Taxes
| Parcel Number | MTWN-000001-000000-000018 | Improvements Assessment | $0 |
| Land Assessment | $174,400 | Total Assessment | $174,400 |
Property Taxes
Parcel Number
MTWN-000001-000000-000018
Land Assessment
$174,400
Improvements Assessment
$0
Total Assessment
$174,400
Listing ID: 3910890
Date on Market: 9/24/2016
Last Updated:
Address: 426 Timber Ridge Rd, Middletown, CT 06457
The Cromwell/Middletown Land Property at 426 Timber Ridge Rd, Middletown, CT 06457 is no longer being advertised on LoopNet.com. Contact the broker for information on availability.
LAND PROPERTIES IN NEARBY NEIGHBORHOODS
1 of 1
Videos
Matterport 3D Exterior
Matterport 3D Tour
Photos
Street View
Street
Map

Link copied
Your LoopNet account has been created!
Thank you for your feedback.
Please Share Your Feedback
We welcome any feedback on how we can improve LoopNet to better serve your needs.X
{{ getErrorText(feedbackForm.starRating, "rating") }}
255 character limit ({{ remainingChars() }} charactercharacters remainingover)
{{ getErrorText(feedbackForm.msg, "rating") }}
{{ getErrorText(feedbackForm.fname, "first name") }}
{{ getErrorText(feedbackForm.lname, "last name") }}
{{ getErrorText(feedbackForm.phone, "phone number") }}
{{ getErrorText(feedbackForm.phonex, "phone extension") }}
{{ getErrorText(feedbackForm.email, "email address") }}
You can provide feedback any time using the Help button at the top of the page.