Your email has been sent.
43-53 Bridge Rd - Bridge Road Studios 1,636 SF Office Condo Unit Offered at $936,585 in Stanmore, NSW 2048



Investment Highlights
- Office suites with large open-plan layout with existing creative fit-out
- Located within the Bridge Road Studios precinct
- High timber-beamed ceilings and warehouse character
- Close to rail transport and key inner-west arterial routes
Executive Summary
43-53 Bridge Road, known as Bridge Road Studios, is a landmark heritage warehouse conversion that has been thoughtfully transformed into one of Sydney’s most sought-after creative workspace destinations. The building retains its original industrial character, featuring exposed brickwork, timber beams, and soaring ceilings, while integrating modern design elements and high-quality finishes to create a unique and inspiring environment. The property offers a mix of open-plan office and studio spaces, many with abundant natural light and flexible layouts suited for creative agencies, design studios, and professional services. Exclusive lobby access, polished concrete floors, and bespoke detailing enhance the building’s boutique appeal. Select suites include mezzanine levels, breakout areas, and private meeting rooms, catering to businesses seeking a collaborative yet professional setting.
1 Unit Available
Unit 23
| Unit Size | 1,636 SF | Condo Use | Office |
| Price | $936,585 | Sale Type | Investment or Owner User |
| Price Per SF | $572.48 | No. Parking Spaces | 1 |
| Unit Size | 1,636 SF |
| Price | $936,585 |
| Price Per SF | $572.48 |
| Condo Use | Office |
| Sale Type | Investment or Owner User |
| No. Parking Spaces | 1 |
Description
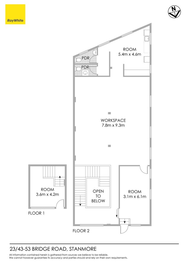
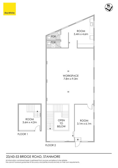
23/43–53 Bridge Road, Stanmore NSW 2048 comprises a strata-titled commercial condominium with an internal area of approximately 152 sqm, located within the historic “Starkey’s Ginger Beer Factory” building. The property forms part of the established Bridge Road Studios precinct, a converted warehouse complex accommodating a range of creative and commercial users.
The tenancy is configured as a large open-plan space with an existing creative fit-out. Architectural features include high timber-beamed ceilings, exposed materials and generous natural light, consistent with the building’s warehouse origins. The suite benefits from exclusive lobby access and occupies a corner position within the complex.
The property includes one on-title car parking space and is zoned E4 – General Industrial, permitting a wide range of potential uses, subject to relevant approvals. The tenancy is currently vacant.
Sale Notes
23/43–53 Bridge Road, Stanmore NSW 2048 is offered for sale as a strata-titled commercial asset within a well-known inner-west warehouse conversion.
The property comprises approximately 152 sqm and is offered with vacant possession, allowing flexibility for owner-occupiers or investors. The existing creative fit-out and open configuration provide adaptability for a range of permitted commercial or industrial uses, subject to approvals.
The suite forms part of the historic Starkey’s Ginger Beer Factory building and benefits from its established position within the Bridge Road Studios precinct. The offering includes one secure car space and is located within close proximity to public transport and Sydney’s CBD fringe.
Suite 23 Floorplan
Foyer
Foyer
Upstairs office area
Upstairs office area
Upstairs office area
Kitchen area
Property Facts
| Total Building Size | 47,523 SF | Building Class | B |
| Property Type | Office (Condo) | Floors | 2 |
| Property Subtype | Office | Typical Floor Size | 23,756 SF |
| Total Building Size | 47,523 SF |
| Property Type | Office (Condo) |
| Property Subtype | Office |
| Building Class | B |
| Floors | 2 |
| Typical Floor Size | 23,756 SF |
Presented by
43-53 Bridge Rd - Bridge Road Studios
Hmm, there seems to have been an error sending your message. Please try again.
Thanks! Your message was sent.

