Your email has been sent.
Highlights
- Signalized intersection
- Building & monument signage
- Covered parking
All Available Spaces(4)
Display Rental Rate as
- Space
- Size
- Term
- Rental Rate
- Space Use
- Build-Out
- Available
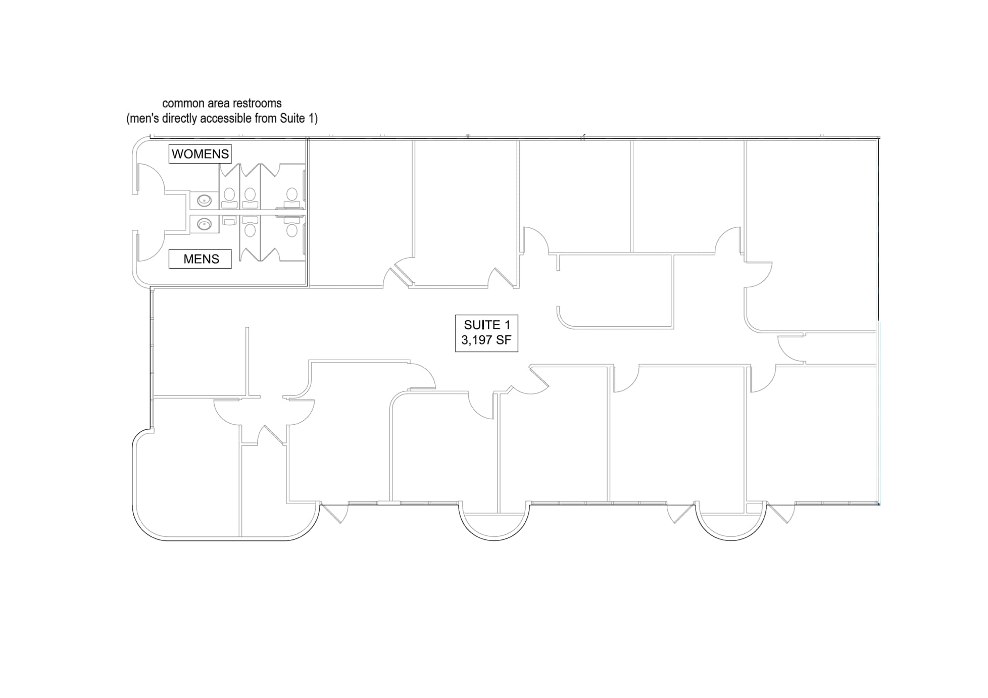
9 Private offices, 2 admin corrals, copy room, IT room. Reception with built in desk, individual offices with direct exterior access, storage, direct entry into men’s common area restroom. Currently combined with Suite 2. Interconnectivity to all suites available.
- Lease rate does not include utilities, property expenses or building services
- Fits 9 - 28 People
- 1 Conference Room
- Finished Ceilings: 10’
- Can be combined with additional space(s) for up to 9,715 SF of adjacent space
- Corner Space
- Multiple entrance / exit
- Fully Built-Out as Professional Services Office
- 9 Private Offices
- 3 Workstations
- Space is in Excellent Condition
- Reception Area
- Natural Light
- Direct access to common restrooms
6 offices, front entry lobby area with service window/ counter, double door conference room. Direct access to common area women’s restroom. Currently combined with Suite 1.
- Lease rate does not include utilities, property expenses or building services
- Fits 5 - 14 People
- 1 Conference Room
- Space is in Excellent Condition
- Reception Area
- Natural Light
- Signage opportunities
- Fully Built-Out as Professional Services Office
- 6 Private Offices
- Finished Ceilings: 9’ - 10’
- Can be combined with additional space(s) for up to 9,715 SF of adjacent space
- Corner Space
- Corner Suite
- Direct access to common restrooms
Open space with entry lobby and single private office. Currently combined with suite 3A
- Lease rate does not include utilities, property expenses or building services
- Open Floor Plan Layout
- 1 Private Office
- Can be combined with additional space(s) for up to 9,715 SF of adjacent space
- Open-Plan
- Fully Built-Out as Standard Office
- Fits 7 - 21 People
- Finished Ceilings: 9’ - 10’
- Natural Light
- Signage Opportunities
Dual entry lobby with corner conference room, 4 inline offices along the wall, single floating office, bullpen area, 2 full restrooms, 1 separate single WC and break area with sink. Currently combined with Suite 3 for a total of 4,559 RSF.
- Lease rate does not include utilities, property expenses or building services
- Fits 6 - 17 People
- 1 Conference Room
- Space is in Excellent Condition
- Private Restrooms
- En suite restrooms
- Break room with sink
- Fully Built-Out as Professional Services Office
- 6 Private Offices
- Finished Ceilings: 9’ - 10’
- Can be combined with additional space(s) for up to 9,715 SF of adjacent space
- Corner Space
- Dual entrance / exit
| Space | Size | Term | Rental Rate | Space Use | Build-Out | Available |
| 1st Floor, Ste 1 | 3,421 SF | 3-10 Years | $16.20 /SF/YR $1.35 /SF/MO $55,420 /YR $4,618 /MO | Office | Full Build-Out | Now |
| 1st Floor, Ste 2 | 1,735 SF | 3-10 Years | $16.20 /SF/YR $1.35 /SF/MO $28,107 /YR $2,342 /MO | Office/Medical | Full Build-Out | Now |
| 1st Floor, Ste 3 | 2,520 SF | 3-10 Years | $15.60 /SF/YR $1.30 /SF/MO $39,312 /YR $3,276 /MO | Office | Full Build-Out | Now |
| 1st Floor, Ste 3A | 2,039 SF | 3-10 Years | $17.40 /SF/YR $1.45 /SF/MO $35,479 /YR $2,957 /MO | Office | Full Build-Out | Now |
1st Floor, Ste 1
| Size |
| 3,421 SF |
| Term |
| 3-10 Years |
| Rental Rate |
| $16.20 /SF/YR $1.35 /SF/MO $55,420 /YR $4,618 /MO |
| Space Use |
| Office |
| Build-Out |
| Full Build-Out |
| Available |
| Now |
1st Floor, Ste 2
| Size |
| 1,735 SF |
| Term |
| 3-10 Years |
| Rental Rate |
| $16.20 /SF/YR $1.35 /SF/MO $28,107 /YR $2,342 /MO |
| Space Use |
| Office/Medical |
| Build-Out |
| Full Build-Out |
| Available |
| Now |
1st Floor, Ste 3
| Size |
| 2,520 SF |
| Term |
| 3-10 Years |
| Rental Rate |
| $15.60 /SF/YR $1.30 /SF/MO $39,312 /YR $3,276 /MO |
| Space Use |
| Office |
| Build-Out |
| Full Build-Out |
| Available |
| Now |
1st Floor, Ste 3A
| Size |
| 2,039 SF |
| Term |
| 3-10 Years |
| Rental Rate |
| $17.40 /SF/YR $1.45 /SF/MO $35,479 /YR $2,957 /MO |
| Space Use |
| Office |
| Build-Out |
| Full Build-Out |
| Available |
| Now |
1st Floor, Ste 1
| Size | 3,421 SF |
| Term | 3-10 Years |
| Rental Rate | $16.20 /SF/YR |
| Space Use | Office |
| Build-Out | Full Build-Out |
| Available | Now |
9 Private offices, 2 admin corrals, copy room, IT room. Reception with built in desk, individual offices with direct exterior access, storage, direct entry into men’s common area restroom. Currently combined with Suite 2. Interconnectivity to all suites available.
- Lease rate does not include utilities, property expenses or building services
- Fully Built-Out as Professional Services Office
- Fits 9 - 28 People
- 9 Private Offices
- 1 Conference Room
- 3 Workstations
- Finished Ceilings: 10’
- Space is in Excellent Condition
- Can be combined with additional space(s) for up to 9,715 SF of adjacent space
- Reception Area
- Corner Space
- Natural Light
- Multiple entrance / exit
- Direct access to common restrooms
1st Floor, Ste 2
| Size | 1,735 SF |
| Term | 3-10 Years |
| Rental Rate | $16.20 /SF/YR |
| Space Use | Office/Medical |
| Build-Out | Full Build-Out |
| Available | Now |
6 offices, front entry lobby area with service window/ counter, double door conference room. Direct access to common area women’s restroom. Currently combined with Suite 1.
- Lease rate does not include utilities, property expenses or building services
- Fully Built-Out as Professional Services Office
- Fits 5 - 14 People
- 6 Private Offices
- 1 Conference Room
- Finished Ceilings: 9’ - 10’
- Space is in Excellent Condition
- Can be combined with additional space(s) for up to 9,715 SF of adjacent space
- Reception Area
- Corner Space
- Natural Light
- Corner Suite
- Signage opportunities
- Direct access to common restrooms
1st Floor, Ste 3
| Size | 2,520 SF |
| Term | 3-10 Years |
| Rental Rate | $15.60 /SF/YR |
| Space Use | Office |
| Build-Out | Full Build-Out |
| Available | Now |
Open space with entry lobby and single private office. Currently combined with suite 3A
- Lease rate does not include utilities, property expenses or building services
- Fully Built-Out as Standard Office
- Open Floor Plan Layout
- Fits 7 - 21 People
- 1 Private Office
- Finished Ceilings: 9’ - 10’
- Can be combined with additional space(s) for up to 9,715 SF of adjacent space
- Natural Light
- Open-Plan
- Signage Opportunities
1st Floor, Ste 3A
| Size | 2,039 SF |
| Term | 3-10 Years |
| Rental Rate | $17.40 /SF/YR |
| Space Use | Office |
| Build-Out | Full Build-Out |
| Available | Now |
Dual entry lobby with corner conference room, 4 inline offices along the wall, single floating office, bullpen area, 2 full restrooms, 1 separate single WC and break area with sink. Currently combined with Suite 3 for a total of 4,559 RSF.
- Lease rate does not include utilities, property expenses or building services
- Fully Built-Out as Professional Services Office
- Fits 6 - 17 People
- 6 Private Offices
- 1 Conference Room
- Finished Ceilings: 9’ - 10’
- Space is in Excellent Condition
- Can be combined with additional space(s) for up to 9,715 SF of adjacent space
- Private Restrooms
- Corner Space
- En suite restrooms
- Dual entrance / exit
- Break room with sink
Property Overview
With recent vacancy in 4Q 2025 due to a large outgoing tenant, the Landlord is motivated to make deals with TI and rent abatement for qualified groups. The 4520 South Pecos office complex is in the central east submarket at the hard corner of the signalized intersection of Pecos and Harmon. The complex is situated near amenities such as retail along Tropicana and Flamingo, medical and professional offices along the Pecos corridor, as well as dense residential uses surrounding. The property is a quick drive to Sunrise Hospital, Desert Springs Hospital, “The Strip”, UNLV and Harry Reid International Airport (LAS). Great uses for the space are daycare (Suite 3 & 3A featuring large open space), ADHC, Church, behavioral health, non-profit and creative uses.
- 24 Hour Access
- Signage
- Wheelchair Accessible
- Monument Signage
- Air Conditioning
- Smoke Detector
Property Facts
Select Tenants
- Floor
- Tenant Name
- Industry
- 1st
- Koch & Brim
- Professional, Scientific, and Technical Services
Presented by
Rock Ridge at Pecos | 4520 S Pecos Rd
Hmm, there seems to have been an error sending your message. Please try again.
Thanks! Your message was sent.
















