Log In/Sign Up
Your email has been sent.
Executive Summary
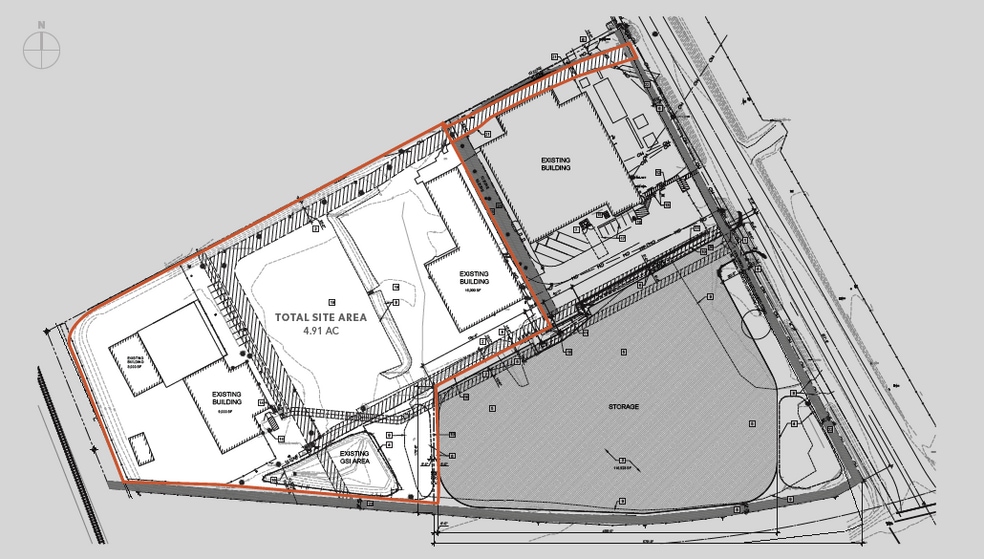
In 2006 Sequential Pacific Biodiesel invested $15 million in construction of a state-of-the-art Biofuel Plant. The plant was the first commercial Biodiesel plant in the Pacific Northwest.
In 2024 Sequential merged with Mahoney Environmental and became a division of Neste. In addition to the Biofuel Plant, Mahoney Environmental also operates their fuel truck yard, maintenance warehouse, and shop at this location.
In 2024 Sequential merged with Mahoney Environmental and became a division of Neste. In addition to the Biofuel Plant, Mahoney Environmental also operates their fuel truck yard, maintenance warehouse, and shop at this location.
Property Facts
| Price | $4,995,000 | Rentable Building Area | 27,000 SF |
| Price Per SF | $185 | No. Stories | 1 |
| Sale Type | Investment NNN | Year Built | 2006 |
| Cap Rate | 5.54% | Tenancy | Single |
| Property Type | Industrial | Parking Ratio | 0.67/1,000 SF |
| Property Subtype | Distribution | Clear Ceiling Height | 24’ |
| Building Class | C | No. Drive In / Grade-Level Doors | 5 |
| Lot Size | 4.19 AC | ||
| Zoning | IG | ||
| Price | $4,995,000 |
| Price Per SF | $185 |
| Sale Type | Investment NNN |
| Cap Rate | 5.54% |
| Property Type | Industrial |
| Property Subtype | Distribution |
| Building Class | C |
| Lot Size | 4.19 AC |
| Rentable Building Area | 27,000 SF |
| No. Stories | 1 |
| Year Built | 2006 |
| Tenancy | Single |
| Parking Ratio | 0.67/1,000 SF |
| Clear Ceiling Height | 24’ |
| No. Drive In / Grade-Level Doors | 5 |
| Zoning | IG |
Not walkable
10/100
Exceptionally drivable
100/100
Fairly bikeable
40/100
Property Taxes
| Parcel Number | 349675 | Improvements Assessment | $4,026,520 |
| Land Assessment | $0 | Total Assessment | $4,026,520 |
Property Taxes
Parcel Number
349675
Land Assessment
$0
Improvements Assessment
$4,026,520
Total Assessment
$4,026,520
1 of 4
Videos
Matterport 3D Exterior
Matterport 3D Tour
Photos
Street View
Street
Map
Presented by
4735 Turner Rd SE
Already a member? Log In
Hmm, there seems to have been an error sending your message. Please try again.
Thanks! Your message was sent.




