Your email has been sent.
4909 E Beverly Rd 28,600 SF of Industrial Space Available in Phoenix, AZ 85044



Highlights
- ±28,600 SF Freestanding Building Available for Lease or Sale
- Metal Construction Warehouse - Freespan with a 20' Clear Height
- Grade Level Loading Equipped with Outdoor Lighting in the Yard
- 100% A/C Industrial Building Sitting on ±2.73 Acres (118,788 SF)
- Heavy Power with ±2,000 Amps, 120/208V, 277/480V - New Service
- Zoned A-1 with Easy Access to I-10 Freeway
Features
All Available Space(1)
Display Rental Rate as
- Space
- Size
- Term
- Rental Rate
- Space Use
- Build-Out
- Available
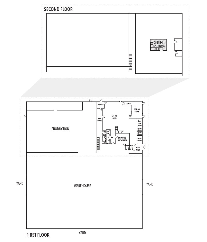
±28,600 SF Freestanding 100% A/C industrial building available for sale or lease! This property sports a 20' clear height, 4 grade level doors (14' x 20'), heavy power with ±2,000 Amps, 120/208V, 277/480V - New Service. Equipped with outdoor lighting in yard and sits on ±2.73 Acres (118,788 SF).
- 4 Drive Ins
- Central Air Conditioning
- Space is in Excellent Condition
| Space | Size | Term | Rental Rate | Space Use | Build-Out | Available |
| 1st Floor | 28,600 SF | Negotiable | Upon Request Upon Request Upon Request Upon Request | Industrial | Partial Build-Out | Now |
1st Floor
| Size |
| 28,600 SF |
| Term |
| Negotiable |
| Rental Rate |
| Upon Request Upon Request Upon Request Upon Request |
| Space Use |
| Industrial |
| Build-Out |
| Partial Build-Out |
| Available |
| Now |
1st Floor
| Size | 28,600 SF |
| Term | Negotiable |
| Rental Rate | Upon Request |
| Space Use | Industrial |
| Build-Out | Partial Build-Out |
| Available | Now |
±28,600 SF Freestanding 100% A/C industrial building available for sale or lease! This property sports a 20' clear height, 4 grade level doors (14' x 20'), heavy power with ±2,000 Amps, 120/208V, 277/480V - New Service. Equipped with outdoor lighting in yard and sits on ±2.73 Acres (118,788 SF).
- 4 Drive Ins
- Space is in Excellent Condition
- Central Air Conditioning
Property Overview
Tenant improvements are negotiable and the lease rate will depend on the amount of tenant improvements needed to move in a tenant. You MUST speak with the listing broker to schedule a tour. Building is not on lock box and the listing broker must accommodate you on a tour. Clear Height: between 20'-24' (Tallest point of the roof is 24' then slopes down to 20')
Warehouse Facility Facts
Presented by
4909 E Beverly Rd
Hmm, there seems to have been an error sending your message. Please try again.
Thanks! Your message was sent.




