Your email has been sent.
495 March Rd 17,936 - 35,961 SF of Office Space Available in Ottawa, ON K2K 3G1



Highlights
- This Class “A” property was constructed in 2000
- Quick access to the region’s Highway 417
- Ideally situated in the centre of the Kanata North
All Available Spaces(2)
Display Rental Rate as
- Space
- Size
- Term
- Rental Rate
- Space Use
- Condition
- Available
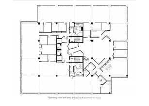
This Class “A” property was constructed in 2000 and is ideally situated in the centre of the Kanata North Technology Park on one of the most prominent corners - March and Hines Road with quick access to the region’s Highway 417 and close proximity to numerous amenities. The building is comprised of five storeys totalling 86,476 rsf and was constructed of reinforced concrete site cast panels with a structural steel frame and inverted roof system. The building features a covered loading dock on the western exposure and boasts nine foot ceilings. Excellent parking onsite and access to public transit literally steps away.
- Lease rate does not include utilities, property expenses or building services
- Mostly Open Floor Plan Layout
- 15 Private Offices
- Can be combined with additional space(s) for up to 35,961 SF of adjacent space
- Elevator Access
- High Ceilings
- Shower Facilities
- Partially Built-Out as Standard Office
- Fits 45 - 144 People
- 1 Conference Room
- Central Air Conditioning
- Private Restrooms
- Secure Storage
- Parking onsite
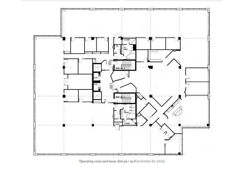
This Class “A” property was constructed in 2000 and is ideally situated in the centre of the Kanata North Technology Park on one of the most prominent corners - March and Hines Road with quick access to the region’s Highway 417 and close proximity to numerous amenities. The building is comprised of five storeys totalling 86,476 rsf and was constructed of reinforced concrete site cast panels with a structural steel frame and inverted roof system. The building features a covered loading dock on the western exposure and boasts nine foot ceilings. Excellent parking onsite and access to public transit literally steps away.
- Lease rate does not include utilities, property expenses or building services
- Mostly Open Floor Plan Layout
- 7 Private Offices
- Can be combined with additional space(s) for up to 35,961 SF of adjacent space
- High Ceilings
- Partially Built-Out as Standard Office
- Fits 46 - 145 People
- 1 Conference Room
- Central Air Conditioning
- Parking onsite.
| Space | Size | Term | Rental Rate | Space Use | Condition | Available |
| 2nd Floor, Ste 200 | 17,936 SF | 1-10 Years | Upon Request Upon Request Upon Request Upon Request | Office | Partial Build-Out | Now |
| 3rd Floor, Ste 300 | 18,025 SF | 1-10 Years | Upon Request Upon Request Upon Request Upon Request | Office | Partial Build-Out | Now |
2nd Floor, Ste 200
| Size |
| 17,936 SF |
| Term |
| 1-10 Years |
| Rental Rate |
| Upon Request Upon Request Upon Request Upon Request |
| Space Use |
| Office |
| Condition |
| Partial Build-Out |
| Available |
| Now |
3rd Floor, Ste 300
| Size |
| 18,025 SF |
| Term |
| 1-10 Years |
| Rental Rate |
| Upon Request Upon Request Upon Request Upon Request |
| Space Use |
| Office |
| Condition |
| Partial Build-Out |
| Available |
| Now |
2nd Floor, Ste 200
| Size | 17,936 SF |
| Term | 1-10 Years |
| Rental Rate | Upon Request |
| Space Use | Office |
| Condition | Partial Build-Out |
| Available | Now |
This Class “A” property was constructed in 2000 and is ideally situated in the centre of the Kanata North Technology Park on one of the most prominent corners - March and Hines Road with quick access to the region’s Highway 417 and close proximity to numerous amenities. The building is comprised of five storeys totalling 86,476 rsf and was constructed of reinforced concrete site cast panels with a structural steel frame and inverted roof system. The building features a covered loading dock on the western exposure and boasts nine foot ceilings. Excellent parking onsite and access to public transit literally steps away.
- Lease rate does not include utilities, property expenses or building services
- Partially Built-Out as Standard Office
- Mostly Open Floor Plan Layout
- Fits 45 - 144 People
- 15 Private Offices
- 1 Conference Room
- Can be combined with additional space(s) for up to 35,961 SF of adjacent space
- Central Air Conditioning
- Elevator Access
- Private Restrooms
- High Ceilings
- Secure Storage
- Shower Facilities
- Parking onsite
3rd Floor, Ste 300
| Size | 18,025 SF |
| Term | 1-10 Years |
| Rental Rate | Upon Request |
| Space Use | Office |
| Condition | Partial Build-Out |
| Available | Now |
This Class “A” property was constructed in 2000 and is ideally situated in the centre of the Kanata North Technology Park on one of the most prominent corners - March and Hines Road with quick access to the region’s Highway 417 and close proximity to numerous amenities. The building is comprised of five storeys totalling 86,476 rsf and was constructed of reinforced concrete site cast panels with a structural steel frame and inverted roof system. The building features a covered loading dock on the western exposure and boasts nine foot ceilings. Excellent parking onsite and access to public transit literally steps away.
- Lease rate does not include utilities, property expenses or building services
- Partially Built-Out as Standard Office
- Mostly Open Floor Plan Layout
- Fits 46 - 145 People
- 7 Private Offices
- 1 Conference Room
- Can be combined with additional space(s) for up to 35,961 SF of adjacent space
- Central Air Conditioning
- High Ceilings
- Parking onsite.
Features and Amenities
- Bus Line
- Signage
Property Facts
Presented by
495 March Rd
Hmm, there seems to have been an error sending your message. Please try again.
Thanks! Your message was sent.




