Log In/Sign Up
Your email has been sent.
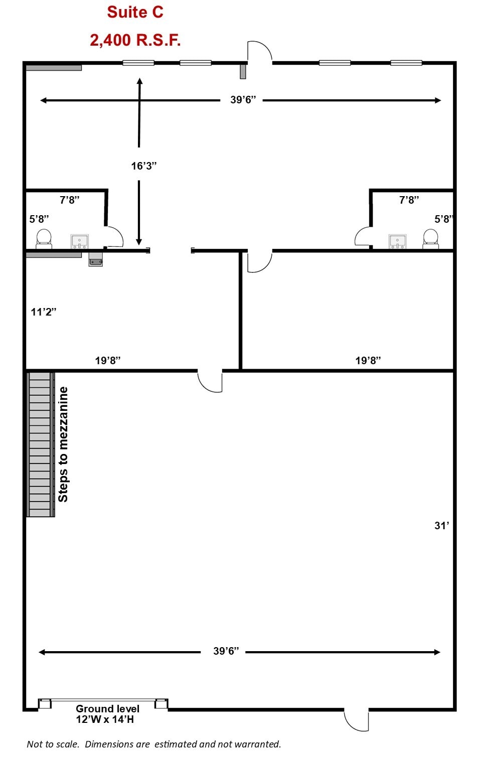
Lake Pointe Center 5315 Lake Pointe Center Dr 2,400 SF of Industrial Space Available in Cumming, GA 30041


Features
Clear Height
22’
Drive In Bays
4
Standard Parking Spaces
12
All Available Space(1)
Display Rental Rate as
- Space
- Size
- Term
- Rental Rate
- Space Use
- Build-Out
- Available
- Lease rate does not include utilities, property expenses or building services
| Space | Size | Term | Rental Rate | Space Use | Build-Out | Available |
| 1st Floor - C | 2,400 SF | 3 Years | $14.00 /SF/YR $1.17 /SF/MO $33,600 /YR $2,800 /MO | Industrial | Partial Build-Out | Now |
1st Floor - C
| Size |
| 2,400 SF |
| Term |
| 3 Years |
| Rental Rate |
| $14.00 /SF/YR $1.17 /SF/MO $33,600 /YR $2,800 /MO |
| Space Use |
| Industrial |
| Build-Out |
| Partial Build-Out |
| Available |
| Now |
1 of 7
Videos
Matterport 3D Exterior
Matterport 3D Tour
Photos
Street View
Street
Map
1st Floor - C
| Size | 2,400 SF |
| Term | 3 Years |
| Rental Rate | $14.00 /SF/YR |
| Space Use | Industrial |
| Build-Out | Partial Build-Out |
| Available | Now |
- Lease rate does not include utilities, property expenses or building services
Property Overview
2,400 rentable square foot office/warehouse suite in North Forsyth County just off Browns Bridge Road (Hwy. 369). Features roll-up ground level door.
Warehouse Facility Facts
Building Size
9,600 SF
Lot Size
1.34 AC
Year Built
2001
Construction
Metal
Power Supply
Amps: 200
Zoning
M1 - Light Industrial
Select Tenants
- Floor
- Tenant Name
- Industry
- 1st
- Dojo American Karate
- Educational Services
- 1st
- Jot 'Em Down Land Company, LLC
- Real Estate
- 1st
- Mabe Carpet Service
- Retailer
- 1st
- Rethink Group
- Services
- 1st
- Salt Life Church
- -
1 1
Somewhat walkable
30/100
Exceptionally drivable
100/100
Not bikeable
10/100
1 of 3
Videos
Matterport 3D Exterior
Matterport 3D Tour
Photos
Street View
Street
Map
1 of 1
Presented by
Lake Pointe Center | 5315 Lake Pointe Center Dr
Already a member? Log In
Hmm, there seems to have been an error sending your message. Please try again.
Thanks! Your message was sent.



