Your email has been sent.
Kaneff Hurontario Centre 5770 Hurontario St 3,392 - 125,420 SF of 4-Star Office Space Available in Mississauga, ON L5R 3G5



Highlights
- Highway 401 exposure
- Walking distance to future Hurontario LRT
- On-site food services
- Electric car charging stations
All Available Spaces(12)
Display Rental Rate as
- Space
- Size
- Term
- Rental Rate
- Space Use
- Build-Out
- Available
Located along Mississauaga's prominent Hurontario corridor in the Heartland Business Community. This class A office building boosts attractive features including proximity to 400 series highways, public transit, the highly anticipated Hurontario LRT, on-site food services, electronic vehicle charging stations and access to manicured greenspaces. Amenities such as restaurants, banks & retail are just a short 5 minute drive away.
- Lease rate does not include utilities, property expenses or building services
- Reception Area
- Full Floor
- Open Floor Plan Layout
- Base Building condition
- Highway 401 exposure
Located along Mississauaga's prominent Hurontario corridor in the Heartland Business Community. This class A office building boosts attractive features including proximity to 400 series highways, public transit, the highly anticipated Hurontario LRT, on-site food services, electronic vehicle charging stations and access to manicured greenspaces. Amenities such as restaurants, banks & retail are just a short 5 minute drive away.
- Lease rate does not include utilities, property expenses or building services
- Office intensive layout
- Space is in Excellent Condition
- Open and private office spaces
- Highway 401 exposure
- Fully Built-Out as Standard Office
- Fits 44 - 138 People
- Elevator Access
- Elevator exposure
Located along Mississauaga's prominent Hurontario corridor in the Heartland Business Community. This class A office building boosts attractive features including proximity to 400 series highways, public transit, the highly anticipated Hurontario LRT, on-site food services, electronic vehicle charging stations and access to manicured greenspaces. Amenities such as restaurants, banks & retail are just a short 5 minute drive away.
- Lease rate does not include utilities, property expenses or building services
- Mostly Open Floor Plan Layout
- Corner Space
- Elevator exposure
- Fully Built-Out as Standard Office
- Elevator Access
- Walking distance to future Hurontario LRT
- Highway 401 exposure
Located along Mississauaga's prominent Hurontario corridor in the Heartland Business Community. This class A office building boosts attractive features including proximity to 400 series highways, public transit, the highly anticipated Hurontario LRT, on-site food services, electronic vehicle charging stations and access to manicured greenspaces. Amenities such as restaurants, banks & retail are just a short 5 minute drive away.
- Lease rate does not include utilities, property expenses or building services
- Mostly Open Floor Plan Layout
- Corner Space
- Elevator exposure
- Fully Built-Out as Standard Office
- Elevator Access
- Walking distance to future Hurontario LRT
- Highway 401 exposure
Located along Mississauaga's prominent Hurontario corridor in the Heartland Business Community. This class A office building boosts attractive features including proximity to 400 series highways, public transit, the highly anticipated Hurontario LRT, on-site food services, electronic vehicle charging stations and access to manicured greenspaces. Amenities such as restaurants, banks & retail are just a short 5 minute drive away.
- Lease rate does not include utilities, property expenses or building services
- Mostly Open Floor Plan Layout
- Corner Space
- Base building
- Fully Built-Out as Standard Office
- Elevator Access
- Highway 401 exposure
- Walking distance to future Hurontario LRT
Located along Mississauaga's prominent Hurontario corridor in the Heartland Business Community. This class A office building boosts attractive features including proximity to 400 series highways, public transit, the highly anticipated Hurontario LRT, on-site food services, electronic vehicle charging stations and access to manicured greenspaces. Amenities such as restaurants, banks & retail are just a short 5 minute drive away.
- Lease rate does not include utilities, property expenses or building services
- Elevator Access
- Walking distance to future Hurontario LRT
- Highway 401 exposure
- Mostly Open Floor Plan Layout
- Corner Space
- Elevator and washroom exposure
Located along Mississauaga's prominent Hurontario corridor in the Heartland Business Community. This class A office building boosts attractive features including proximity to 400 series highways, public transit, the highly anticipated Hurontario LRT, on-site food services, electronic vehicle charging stations and access to manicured greenspaces. Amenities such as restaurants, banks & retail are just a short 5 minute drive away.
- Lease rate does not include utilities, property expenses or building services
- Can be combined with additional space(s) for up to 14,138 SF of adjacent space
- Corner Space
- Elevator and washroom exposure
- Mostly Open Floor Plan Layout
- Elevator Access
- Walking distance to future Hurontario LRT
- Highway 401 exposure
Located along Mississauaga's prominent Hurontario corridor in the Heartland Business Community. This class A office building boosts attractive features including proximity to 400 series highways, public transit, the highly anticipated Hurontario LRT, on-site food services, electronic vehicle charging stations and access to manicured greenspaces. Amenities such as restaurants, banks & retail are just a short 5 minute drive away.
- Lease rate does not include utilities, property expenses or building services
- Mostly Open Floor Plan Layout
- Elevator Access
- Corner Suite
- Highway 401 exposure
- Fully Built-Out as Standard Office
- Can be combined with additional space(s) for up to 14,138 SF of adjacent space
- Corner Space
- Elevator and washroom exposure
Located along Mississauaga's prominent Hurontario corridor in the Heartland Business Community. This class A office building boosts attractive features including proximity to 400 series highways, public transit, the highly anticipated Hurontario LRT, on-site food services, electronic vehicle charging stations and access to manicured greenspaces. Amenities such as restaurants, banks & retail are just a short 5 minute drive away.
- Lease rate does not include utilities, property expenses or building services
- Office intensive layout
- Partitioned Offices
- Kitchen
- Private offices
- Large flexible work spaces
- Fully Built-Out as Standard Office
- Fits 28 - 88 People
- 2 Conference Rooms
- Elevator Access
- Meeting Rooms
- Highway 401 exposure
Located along Mississauaga's prominent Hurontario corridor in the Heartland Business Community. This class A office building boosts attractive features including proximity to 400 series highways, public transit, the highly anticipated Hurontario LRT, on-site food services, electronic vehicle charging stations and access to manicured greenspaces. Amenities such as restaurants, banks & retail are just a short 5 minute drive away.
- Lease rate does not include utilities, property expenses or building services
- Fits 12 - 37 People
- Corner Space
- Base building
- Office intensive layout
- 2 Conference Rooms
- Corner Suite
- Highway 401 exposure
Located along Mississauaga's prominent Hurontario corridor in the Heartland Business Community. This class A office building boosts attractive features including proximity to 400 series highways, public transit, the highly anticipated Hurontario LRT, on-site food services, electronic vehicle charging stations and access to manicured greenspaces. Amenities such as restaurants, banks & retail are just a short 5 minute drive away.
- Lease rate does not include utilities, property expenses or building services
- Fits 23 - 72 People
- Corner Space
- Base building
- Office intensive layout
- 2 Conference Rooms
- Corner Suite
- Highway 401 exposure
Located along Mississauaga's prominent Hurontario corridor in the Heartland Business Community. This class A office building boosts attractive features including proximity to 400 series highways, public transit, the highly anticipated Hurontario LRT, on-site food services, electronic vehicle charging stations and access to manicured greenspaces. Amenities such as restaurants, banks & retail are just a short 5 minute drive away.
- Lease rate does not include utilities, property expenses or building services
- Office intensive layout
- 2 Conference Rooms
- Corner Suite
- Highway 401 exposure
- Fully Built-Out as Standard Office
- Fits 59 - 186 People
- Corner Space
- Base building
| Space | Size | Term | Rental Rate | Space Use | Build-Out | Available |
| 2nd Floor, Ste 200 | 21,056 SF | 1-10 Years | $15.40 USD/SF/YR $1.28 USD/SF/MO $324,234 USD/YR $27,019 USD/MO | Office | Shell Space | Now |
| 4th Floor, Ste 400 | 17,244 SF | 1-10 Years | $15.40 USD/SF/YR $1.28 USD/SF/MO $265,534 USD/YR $22,128 USD/MO | Office | Full Build-Out | 30 Days |
| 4th Floor, Ste 420 | 5,772 SF | 1-10 Years | $15.40 USD/SF/YR $1.28 USD/SF/MO $88,881 USD/YR $7,407 USD/MO | Office | Full Build-Out | 30 Days |
| 5th Floor, Ste 501 | 11,589 SF | 1-10 Years | $15.40 USD/SF/YR $1.28 USD/SF/MO $178,455 USD/YR $14,871 USD/MO | Office | Full Build-Out | Now |
| 6th Floor, Ste 602 | 3,392 SF | 1-10 Years | $15.40 USD/SF/YR $1.28 USD/SF/MO $52,232 USD/YR $4,353 USD/MO | Office | Full Build-Out | Now |
| 6th Floor, Ste 620 | 4,573 SF | 1-10 Years | $15.40 USD/SF/YR $1.28 USD/SF/MO $70,418 USD/YR $5,868 USD/MO | Office | Shell Space | Now |
| 7th Floor, Ste 700 | 4,169 SF | 1-10 Years | $15.40 USD/SF/YR $1.28 USD/SF/MO $64,197 USD/YR $5,350 USD/MO | Office | Shell Space | Now |
| 7th Floor, Ste 710 | 9,969 SF | 1-10 Years | $15.40 USD/SF/YR $1.28 USD/SF/MO $153,509 USD/YR $12,792 USD/MO | Office | Full Build-Out | Now |
| 8th Floor, Ste 800 | 10,906 SF | 1-10 Years | $15.40 USD/SF/YR $1.28 USD/SF/MO $167,938 USD/YR $13,995 USD/MO | Office | Full Build-Out | Now |
| 8th Floor, Ste 820 | 4,558 SF | 1-10 Years | $15.40 USD/SF/YR $1.28 USD/SF/MO $70,187 USD/YR $5,849 USD/MO | Office | Spec Suite | Now |
| 9th Floor, Ste 905 | 8,979 SF | 1-10 Years | $15.40 USD/SF/YR $1.28 USD/SF/MO $138,264 USD/YR $11,522 USD/MO | Office | Spec Suite | Now |
| 10th Floor, Ste 1001 | 23,213 SF | 1-10 Years | $15.40 USD/SF/YR $1.28 USD/SF/MO $357,449 USD/YR $29,787 USD/MO | Office | Full Build-Out | Now |
2nd Floor, Ste 200
| Size |
| 21,056 SF |
| Term |
| 1-10 Years |
| Rental Rate |
| $15.40 USD/SF/YR $1.28 USD/SF/MO $324,234 USD/YR $27,019 USD/MO |
| Space Use |
| Office |
| Build-Out |
| Shell Space |
| Available |
| Now |
4th Floor, Ste 400
| Size |
| 17,244 SF |
| Term |
| 1-10 Years |
| Rental Rate |
| $15.40 USD/SF/YR $1.28 USD/SF/MO $265,534 USD/YR $22,128 USD/MO |
| Space Use |
| Office |
| Build-Out |
| Full Build-Out |
| Available |
| 30 Days |
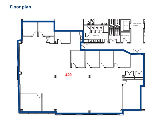
4th Floor, Ste 420
| Size |
| 5,772 SF |
| Term |
| 1-10 Years |
| Rental Rate |
| $15.40 USD/SF/YR $1.28 USD/SF/MO $88,881 USD/YR $7,407 USD/MO |
| Space Use |
| Office |
| Build-Out |
| Full Build-Out |
| Available |
| 30 Days |
5th Floor, Ste 501
| Size |
| 11,589 SF |
| Term |
| 1-10 Years |
| Rental Rate |
| $15.40 USD/SF/YR $1.28 USD/SF/MO $178,455 USD/YR $14,871 USD/MO |
| Space Use |
| Office |
| Build-Out |
| Full Build-Out |
| Available |
| Now |
6th Floor, Ste 602
| Size |
| 3,392 SF |
| Term |
| 1-10 Years |
| Rental Rate |
| $15.40 USD/SF/YR $1.28 USD/SF/MO $52,232 USD/YR $4,353 USD/MO |
| Space Use |
| Office |
| Build-Out |
| Full Build-Out |
| Available |
| Now |
6th Floor, Ste 620
| Size |
| 4,573 SF |
| Term |
| 1-10 Years |
| Rental Rate |
| $15.40 USD/SF/YR $1.28 USD/SF/MO $70,418 USD/YR $5,868 USD/MO |
| Space Use |
| Office |
| Build-Out |
| Shell Space |
| Available |
| Now |
7th Floor, Ste 700
| Size |
| 4,169 SF |
| Term |
| 1-10 Years |
| Rental Rate |
| $15.40 USD/SF/YR $1.28 USD/SF/MO $64,197 USD/YR $5,350 USD/MO |
| Space Use |
| Office |
| Build-Out |
| Shell Space |
| Available |
| Now |
7th Floor, Ste 710
| Size |
| 9,969 SF |
| Term |
| 1-10 Years |
| Rental Rate |
| $15.40 USD/SF/YR $1.28 USD/SF/MO $153,509 USD/YR $12,792 USD/MO |
| Space Use |
| Office |
| Build-Out |
| Full Build-Out |
| Available |
| Now |
8th Floor, Ste 800
| Size |
| 10,906 SF |
| Term |
| 1-10 Years |
| Rental Rate |
| $15.40 USD/SF/YR $1.28 USD/SF/MO $167,938 USD/YR $13,995 USD/MO |
| Space Use |
| Office |
| Build-Out |
| Full Build-Out |
| Available |
| Now |
8th Floor, Ste 820
| Size |
| 4,558 SF |
| Term |
| 1-10 Years |
| Rental Rate |
| $15.40 USD/SF/YR $1.28 USD/SF/MO $70,187 USD/YR $5,849 USD/MO |
| Space Use |
| Office |
| Build-Out |
| Spec Suite |
| Available |
| Now |
9th Floor, Ste 905
| Size |
| 8,979 SF |
| Term |
| 1-10 Years |
| Rental Rate |
| $15.40 USD/SF/YR $1.28 USD/SF/MO $138,264 USD/YR $11,522 USD/MO |
| Space Use |
| Office |
| Build-Out |
| Spec Suite |
| Available |
| Now |
10th Floor, Ste 1001
| Size |
| 23,213 SF |
| Term |
| 1-10 Years |
| Rental Rate |
| $15.40 USD/SF/YR $1.28 USD/SF/MO $357,449 USD/YR $29,787 USD/MO |
| Space Use |
| Office |
| Build-Out |
| Full Build-Out |
| Available |
| Now |
2nd Floor, Ste 200
| Size | 21,056 SF |
| Term | 1-10 Years |
| Rental Rate | $15.40 USD/SF/YR |
| Space Use | Office |
| Build-Out | Shell Space |
| Available | Now |
Located along Mississauaga's prominent Hurontario corridor in the Heartland Business Community. This class A office building boosts attractive features including proximity to 400 series highways, public transit, the highly anticipated Hurontario LRT, on-site food services, electronic vehicle charging stations and access to manicured greenspaces. Amenities such as restaurants, banks & retail are just a short 5 minute drive away.
- Lease rate does not include utilities, property expenses or building services
- Open Floor Plan Layout
- Reception Area
- Base Building condition
- Full Floor
- Highway 401 exposure
4th Floor, Ste 400
| Size | 17,244 SF |
| Term | 1-10 Years |
| Rental Rate | $15.40 USD/SF/YR |
| Space Use | Office |
| Build-Out | Full Build-Out |
| Available | 30 Days |
Located along Mississauaga's prominent Hurontario corridor in the Heartland Business Community. This class A office building boosts attractive features including proximity to 400 series highways, public transit, the highly anticipated Hurontario LRT, on-site food services, electronic vehicle charging stations and access to manicured greenspaces. Amenities such as restaurants, banks & retail are just a short 5 minute drive away.
- Lease rate does not include utilities, property expenses or building services
- Fully Built-Out as Standard Office
- Office intensive layout
- Fits 44 - 138 People
- Space is in Excellent Condition
- Elevator Access
- Open and private office spaces
- Elevator exposure
- Highway 401 exposure
4th Floor, Ste 420
| Size | 5,772 SF |
| Term | 1-10 Years |
| Rental Rate | $15.40 USD/SF/YR |
| Space Use | Office |
| Build-Out | Full Build-Out |
| Available | 30 Days |
Located along Mississauaga's prominent Hurontario corridor in the Heartland Business Community. This class A office building boosts attractive features including proximity to 400 series highways, public transit, the highly anticipated Hurontario LRT, on-site food services, electronic vehicle charging stations and access to manicured greenspaces. Amenities such as restaurants, banks & retail are just a short 5 minute drive away.
- Lease rate does not include utilities, property expenses or building services
- Fully Built-Out as Standard Office
- Mostly Open Floor Plan Layout
- Elevator Access
- Corner Space
- Walking distance to future Hurontario LRT
- Elevator exposure
- Highway 401 exposure
5th Floor, Ste 501
| Size | 11,589 SF |
| Term | 1-10 Years |
| Rental Rate | $15.40 USD/SF/YR |
| Space Use | Office |
| Build-Out | Full Build-Out |
| Available | Now |
Located along Mississauaga's prominent Hurontario corridor in the Heartland Business Community. This class A office building boosts attractive features including proximity to 400 series highways, public transit, the highly anticipated Hurontario LRT, on-site food services, electronic vehicle charging stations and access to manicured greenspaces. Amenities such as restaurants, banks & retail are just a short 5 minute drive away.
- Lease rate does not include utilities, property expenses or building services
- Fully Built-Out as Standard Office
- Mostly Open Floor Plan Layout
- Elevator Access
- Corner Space
- Walking distance to future Hurontario LRT
- Elevator exposure
- Highway 401 exposure
6th Floor, Ste 602
| Size | 3,392 SF |
| Term | 1-10 Years |
| Rental Rate | $15.40 USD/SF/YR |
| Space Use | Office |
| Build-Out | Full Build-Out |
| Available | Now |
Located along Mississauaga's prominent Hurontario corridor in the Heartland Business Community. This class A office building boosts attractive features including proximity to 400 series highways, public transit, the highly anticipated Hurontario LRT, on-site food services, electronic vehicle charging stations and access to manicured greenspaces. Amenities such as restaurants, banks & retail are just a short 5 minute drive away.
- Lease rate does not include utilities, property expenses or building services
- Fully Built-Out as Standard Office
- Mostly Open Floor Plan Layout
- Elevator Access
- Corner Space
- Highway 401 exposure
- Base building
- Walking distance to future Hurontario LRT
6th Floor, Ste 620
| Size | 4,573 SF |
| Term | 1-10 Years |
| Rental Rate | $15.40 USD/SF/YR |
| Space Use | Office |
| Build-Out | Shell Space |
| Available | Now |
Located along Mississauaga's prominent Hurontario corridor in the Heartland Business Community. This class A office building boosts attractive features including proximity to 400 series highways, public transit, the highly anticipated Hurontario LRT, on-site food services, electronic vehicle charging stations and access to manicured greenspaces. Amenities such as restaurants, banks & retail are just a short 5 minute drive away.
- Lease rate does not include utilities, property expenses or building services
- Mostly Open Floor Plan Layout
- Elevator Access
- Corner Space
- Walking distance to future Hurontario LRT
- Elevator and washroom exposure
- Highway 401 exposure
7th Floor, Ste 700
| Size | 4,169 SF |
| Term | 1-10 Years |
| Rental Rate | $15.40 USD/SF/YR |
| Space Use | Office |
| Build-Out | Shell Space |
| Available | Now |
Located along Mississauaga's prominent Hurontario corridor in the Heartland Business Community. This class A office building boosts attractive features including proximity to 400 series highways, public transit, the highly anticipated Hurontario LRT, on-site food services, electronic vehicle charging stations and access to manicured greenspaces. Amenities such as restaurants, banks & retail are just a short 5 minute drive away.
- Lease rate does not include utilities, property expenses or building services
- Mostly Open Floor Plan Layout
- Can be combined with additional space(s) for up to 14,138 SF of adjacent space
- Elevator Access
- Corner Space
- Walking distance to future Hurontario LRT
- Elevator and washroom exposure
- Highway 401 exposure
7th Floor, Ste 710
| Size | 9,969 SF |
| Term | 1-10 Years |
| Rental Rate | $15.40 USD/SF/YR |
| Space Use | Office |
| Build-Out | Full Build-Out |
| Available | Now |
Located along Mississauaga's prominent Hurontario corridor in the Heartland Business Community. This class A office building boosts attractive features including proximity to 400 series highways, public transit, the highly anticipated Hurontario LRT, on-site food services, electronic vehicle charging stations and access to manicured greenspaces. Amenities such as restaurants, banks & retail are just a short 5 minute drive away.
- Lease rate does not include utilities, property expenses or building services
- Fully Built-Out as Standard Office
- Mostly Open Floor Plan Layout
- Can be combined with additional space(s) for up to 14,138 SF of adjacent space
- Elevator Access
- Corner Space
- Corner Suite
- Elevator and washroom exposure
- Highway 401 exposure
8th Floor, Ste 800
| Size | 10,906 SF |
| Term | 1-10 Years |
| Rental Rate | $15.40 USD/SF/YR |
| Space Use | Office |
| Build-Out | Full Build-Out |
| Available | Now |
Located along Mississauaga's prominent Hurontario corridor in the Heartland Business Community. This class A office building boosts attractive features including proximity to 400 series highways, public transit, the highly anticipated Hurontario LRT, on-site food services, electronic vehicle charging stations and access to manicured greenspaces. Amenities such as restaurants, banks & retail are just a short 5 minute drive away.
- Lease rate does not include utilities, property expenses or building services
- Fully Built-Out as Standard Office
- Office intensive layout
- Fits 28 - 88 People
- Partitioned Offices
- 2 Conference Rooms
- Kitchen
- Elevator Access
- Private offices
- Meeting Rooms
- Large flexible work spaces
- Highway 401 exposure
8th Floor, Ste 820
| Size | 4,558 SF |
| Term | 1-10 Years |
| Rental Rate | $15.40 USD/SF/YR |
| Space Use | Office |
| Build-Out | Spec Suite |
| Available | Now |
Located along Mississauaga's prominent Hurontario corridor in the Heartland Business Community. This class A office building boosts attractive features including proximity to 400 series highways, public transit, the highly anticipated Hurontario LRT, on-site food services, electronic vehicle charging stations and access to manicured greenspaces. Amenities such as restaurants, banks & retail are just a short 5 minute drive away.
- Lease rate does not include utilities, property expenses or building services
- Office intensive layout
- Fits 12 - 37 People
- 2 Conference Rooms
- Corner Space
- Corner Suite
- Base building
- Highway 401 exposure
9th Floor, Ste 905
| Size | 8,979 SF |
| Term | 1-10 Years |
| Rental Rate | $15.40 USD/SF/YR |
| Space Use | Office |
| Build-Out | Spec Suite |
| Available | Now |
Located along Mississauaga's prominent Hurontario corridor in the Heartland Business Community. This class A office building boosts attractive features including proximity to 400 series highways, public transit, the highly anticipated Hurontario LRT, on-site food services, electronic vehicle charging stations and access to manicured greenspaces. Amenities such as restaurants, banks & retail are just a short 5 minute drive away.
- Lease rate does not include utilities, property expenses or building services
- Office intensive layout
- Fits 23 - 72 People
- 2 Conference Rooms
- Corner Space
- Corner Suite
- Base building
- Highway 401 exposure
10th Floor, Ste 1001
| Size | 23,213 SF |
| Term | 1-10 Years |
| Rental Rate | $15.40 USD/SF/YR |
| Space Use | Office |
| Build-Out | Full Build-Out |
| Available | Now |
Located along Mississauaga's prominent Hurontario corridor in the Heartland Business Community. This class A office building boosts attractive features including proximity to 400 series highways, public transit, the highly anticipated Hurontario LRT, on-site food services, electronic vehicle charging stations and access to manicured greenspaces. Amenities such as restaurants, banks & retail are just a short 5 minute drive away.
- Lease rate does not include utilities, property expenses or building services
- Fully Built-Out as Standard Office
- Office intensive layout
- Fits 59 - 186 People
- 2 Conference Rooms
- Corner Space
- Corner Suite
- Base building
- Highway 401 exposure
Property Overview
The Heartland Corporate Centre is an eleven-storey office building, located just south of Highway 401, on the west side of Hurontario Street. The building façade is a white precast with silver reflective and grey tinted glass.
- Bus Line
- Food Service
- Metro/Subway
- Property Manager on Site
- Security System
- Signage
- Air Conditioning
Property Facts
Sustainability
Sustainability
LEED Certification Led by the Canada Green Building Council (CAGBC), the Leadership in Energy and Environmental Design (LEED) is a green building certification program focused on the design, construction, operation, and maintenance of green buildings, homes, and neighborhoods, which aims to help building owners and operators be environmentally responsible and use resources efficiently. LEED certification is a globally recognized symbol of sustainability achievement and leadership. To achieve LEED certification, a project earns points by adhering to prerequisites and credits that address carbon, energy, water, waste, transportation, materials, health and indoor environmental quality. Projects go through a verification and review process and are awarded points that correspond to a level of LEED certification: Platinum (80+ points) Gold (60-79 points) Silver (50-59 points) Certified (40-49 points)
Presented by
Kaneff Hurontario Centre | 5770 Hurontario St
Hmm, there seems to have been an error sending your message. Please try again.
Thanks! Your message was sent.














