Your email has been sent.
Carlsbad Ranch Corporate Center 5800 Armada Dr 1,894 - 15,759 SF of 4-Star Office Space Available in Carlsbad, CA 92008



Highlights
- Convenient Freeway Access and Panoramic Ocean & Backcountry Views. Immediate access to the Carlsbad trail system and the Promenade Park overlooking th
- Granite and limestone facade with wood and stone lobby finishes
- Premium Tenant Improvement finishes
- Two outdoor dining/lounging areas
- High Bandwidth AT&T, Cox Communications, Time Warner & Charter/Spectrum Fiber Connectivity available
- Located in Carlsbad's premier office park - Carlsbad Ranch
All Available Spaces(5)
Display Rental Rate as
- Space
- Size
- Term
- Rental Rate
- Space Use
- Condition
- Available
Double door entry off ground floor lobby, large conference room, 12 private offices and one workstation area.
- Listed lease rate plus proportional share of electrical cost
- Mostly Open Floor Plan Layout
- 1 Conference Room
- Fully Built-Out as Standard Office
- 2 Private Offices
Double door entry off ground floor lobby, conference, 2 private offices, kitchen and open bullpen area.
- Listed lease rate plus proportional share of electrical cost
- Mostly Open Floor Plan Layout
- 1 Conference Room
- Fully Built-Out as Standard Office
- 2 Private Offices
High-end finishes throughout, reception with double door entry off the second floor lobby, 3 private offices, conference room or executive office, open office area, kitchen, work room and server room.
- Listed lease rate plus proportional share of electrical cost
- 3 Private Offices
- Space is in Excellent Condition
- Kitchen
- Secure Storage
- Fully Built-Out as Standard Office
- 1 Conference Room
- Reception Area
- Elevator Access
- Class “A” office space, high-end finishes
High-end finishes throughout, double door entry off lobby, multiple private offices, conference room or executive office and open office area.
- Listed lease rate plus proportional share of electrical cost
- 8 Private Offices
- Kitchen
- Fully Built-Out as Standard Office
- 1 Conference Room
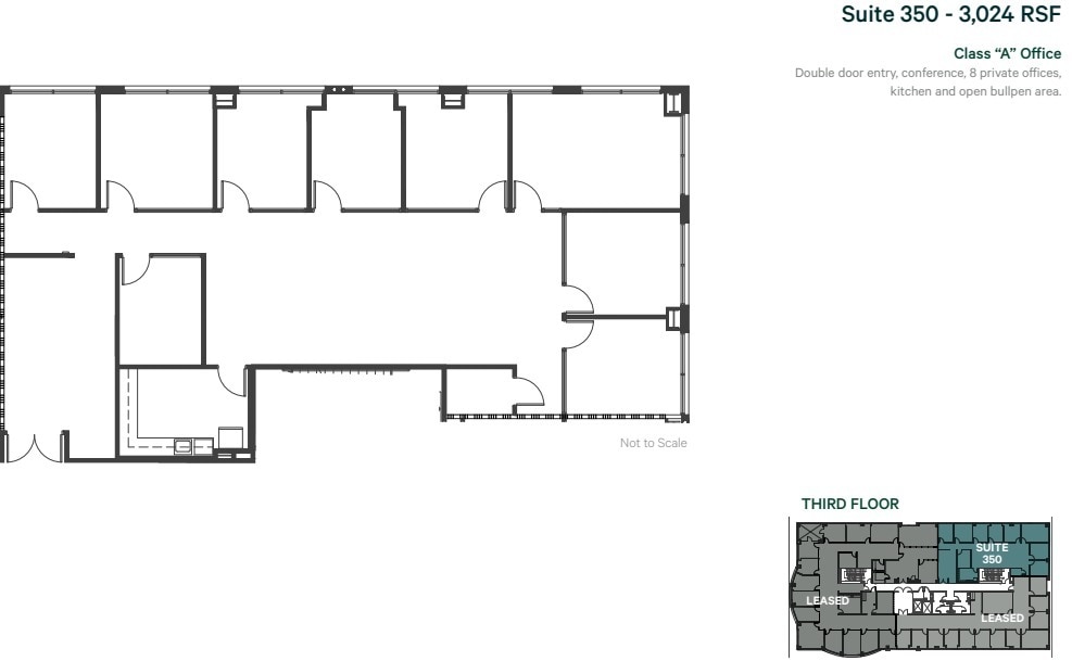
Double door entry, conference, 8 private offices, kitchen, and open bullpen area.
- Listed lease rate plus proportional share of electrical cost
- 8 Private Offices
- Kitchen
- Fully Built-Out as Standard Office
- 1 Conference Room
| Space | Size | Term | Rental Rate | Space Use | Condition | Available |
| 1st Floor, Ste 101 | 4,244 SF | Negotiable | $39.60 /SF/YR $3.30 /SF/MO $168,062 /YR $14,005 /MO | Office | Full Build-Out | July 01, 2026 |
| 1st Floor, Ste 105 | 1,894 SF | Negotiable | $39.60 /SF/YR $3.30 /SF/MO $75,002 /YR $6,250 /MO | Office | Full Build-Out | Now |
| 2nd Floor, Ste 235 | 2,684 SF | Negotiable | $39.60 /SF/YR $3.30 /SF/MO $106,286 /YR $8,857 /MO | Office | Full Build-Out | Now |
| 3rd Floor, Ste 310 | 3,913 SF | Negotiable | $39.60 /SF/YR $3.30 /SF/MO $154,955 /YR $12,913 /MO | Office | Full Build-Out | July 01, 2026 |
| 3rd Floor, Ste 350 | 3,024 SF | Negotiable | $39.60 /SF/YR $3.30 /SF/MO $119,750 /YR $9,979 /MO | Office | Full Build-Out | Now |
1st Floor, Ste 101
| Size |
| 4,244 SF |
| Term |
| Negotiable |
| Rental Rate |
| $39.60 /SF/YR $3.30 /SF/MO $168,062 /YR $14,005 /MO |
| Space Use |
| Office |
| Condition |
| Full Build-Out |
| Available |
| July 01, 2026 |
1st Floor, Ste 105
| Size |
| 1,894 SF |
| Term |
| Negotiable |
| Rental Rate |
| $39.60 /SF/YR $3.30 /SF/MO $75,002 /YR $6,250 /MO |
| Space Use |
| Office |
| Condition |
| Full Build-Out |
| Available |
| Now |
2nd Floor, Ste 235
| Size |
| 2,684 SF |
| Term |
| Negotiable |
| Rental Rate |
| $39.60 /SF/YR $3.30 /SF/MO $106,286 /YR $8,857 /MO |
| Space Use |
| Office |
| Condition |
| Full Build-Out |
| Available |
| Now |
3rd Floor, Ste 310
| Size |
| 3,913 SF |
| Term |
| Negotiable |
| Rental Rate |
| $39.60 /SF/YR $3.30 /SF/MO $154,955 /YR $12,913 /MO |
| Space Use |
| Office |
| Condition |
| Full Build-Out |
| Available |
| July 01, 2026 |
3rd Floor, Ste 350
| Size |
| 3,024 SF |
| Term |
| Negotiable |
| Rental Rate |
| $39.60 /SF/YR $3.30 /SF/MO $119,750 /YR $9,979 /MO |
| Space Use |
| Office |
| Condition |
| Full Build-Out |
| Available |
| Now |
1st Floor, Ste 101
| Size | 4,244 SF |
| Term | Negotiable |
| Rental Rate | $39.60 /SF/YR |
| Space Use | Office |
| Condition | Full Build-Out |
| Available | July 01, 2026 |
Double door entry off ground floor lobby, large conference room, 12 private offices and one workstation area.
- Listed lease rate plus proportional share of electrical cost
- Fully Built-Out as Standard Office
- Mostly Open Floor Plan Layout
- 2 Private Offices
- 1 Conference Room
1st Floor, Ste 105
| Size | 1,894 SF |
| Term | Negotiable |
| Rental Rate | $39.60 /SF/YR |
| Space Use | Office |
| Condition | Full Build-Out |
| Available | Now |
Double door entry off ground floor lobby, conference, 2 private offices, kitchen and open bullpen area.
- Listed lease rate plus proportional share of electrical cost
- Fully Built-Out as Standard Office
- Mostly Open Floor Plan Layout
- 2 Private Offices
- 1 Conference Room
2nd Floor, Ste 235
| Size | 2,684 SF |
| Term | Negotiable |
| Rental Rate | $39.60 /SF/YR |
| Space Use | Office |
| Condition | Full Build-Out |
| Available | Now |
High-end finishes throughout, reception with double door entry off the second floor lobby, 3 private offices, conference room or executive office, open office area, kitchen, work room and server room.
- Listed lease rate plus proportional share of electrical cost
- Fully Built-Out as Standard Office
- 3 Private Offices
- 1 Conference Room
- Space is in Excellent Condition
- Reception Area
- Kitchen
- Elevator Access
- Secure Storage
- Class “A” office space, high-end finishes
3rd Floor, Ste 310
| Size | 3,913 SF |
| Term | Negotiable |
| Rental Rate | $39.60 /SF/YR |
| Space Use | Office |
| Condition | Full Build-Out |
| Available | July 01, 2026 |
High-end finishes throughout, double door entry off lobby, multiple private offices, conference room or executive office and open office area.
- Listed lease rate plus proportional share of electrical cost
- Fully Built-Out as Standard Office
- 8 Private Offices
- 1 Conference Room
- Kitchen
3rd Floor, Ste 350
| Size | 3,024 SF |
| Term | Negotiable |
| Rental Rate | $39.60 /SF/YR |
| Space Use | Office |
| Condition | Full Build-Out |
| Available | Now |
Double door entry, conference, 8 private offices, kitchen, and open bullpen area.
- Listed lease rate plus proportional share of electrical cost
- Fully Built-Out as Standard Office
- 8 Private Offices
- 1 Conference Room
- Kitchen
Property Overview
- 42,960 square foot three-story, Class A office building - Panoramic ocean and backcountry views - Immediate access to the Carlsbad trail system and the Promenade Park overlooking the world-famous Flower Fields with 180-degree ocean views. - Granite and limestone facade with wood and stone lobby finishes - High Bandwidth AT&T, Cox Communications, Time Warner & Charter/Spectrum Fiber Connectivity available - Located in Carlsbad' s premier office park - Carlsbad Ranch - Two outdoor dining/lounging areas - Interstate 5 access via Palomar Airport Road and Cannon Road - Walking distance to food service, retail, lodging and recreational facilities
- Wheelchair Accessible
- Natural Light
- Monument Signage
- Outdoor Seating
- Air Conditioning
- Balcony
- Smoke Detector
Property Facts
Presented by
Carlsbad Ranch Corporate Center | 5800 Armada Dr
Hmm, there seems to have been an error sending your message. Please try again.
Thanks! Your message was sent.










