Your email has been sent.
Cypress Business Center 5801-5821 N Andrews Way 1,512 - 17,237 SF of Flex Space Available in Fort Lauderdale, FL 33309



Highlights
- 14.5-foot ceilings!
- 100% AC Warehouse and Office space
Features
All Available Spaces(4)
Display Rental Rate as
- Space
- Size
- Term
- Rental Rate
- Space Use
- Build-Out
- Available
- Listed rate may not include certain utilities, building services and property expenses
End-cap space with open floor plan and loading dock! Approved uses: Automobile, aircraft, watercraft; wholesale, sales, service and repair; manufacturing/processing of products; public purpose facilities; storage facility; wholesale/sale rental services; accessory uses; automotive service station, outdoor storage Including offices are only permitted when accessory to manufacturing, processing, assembly, maintenance, repair, or warehousing operation.
- Space is in Excellent Condition
- Private Restrooms
- Drop Ceilings
- High Ceilings
- Smoke Detector
- Central Air and Heating
- Laboratory
- Emergency Lighting
- Corner Space
- Wheelchair Accessible
Suite 5803A offers a versatile industrial/flex layout designed to accommodate a range of operational needs. The space features an air-conditioned warehouse with an open-to-structure design, providing flexibility for storage, light manufacturing, or distribution activities. A dedicated work area near the main entrance enhances functionality for office or assembly use, while the integrated restroom supports day-to-day convenience.
- Lease rate does not include utilities, property expenses or building services
- 1 Loading Dock
- Private Restrooms
- Emergency Lighting
- Wheelchair Accessible
- Space is in Excellent Condition
- Central Air and Heating
- Drop Ceilings
- Smoke Detector
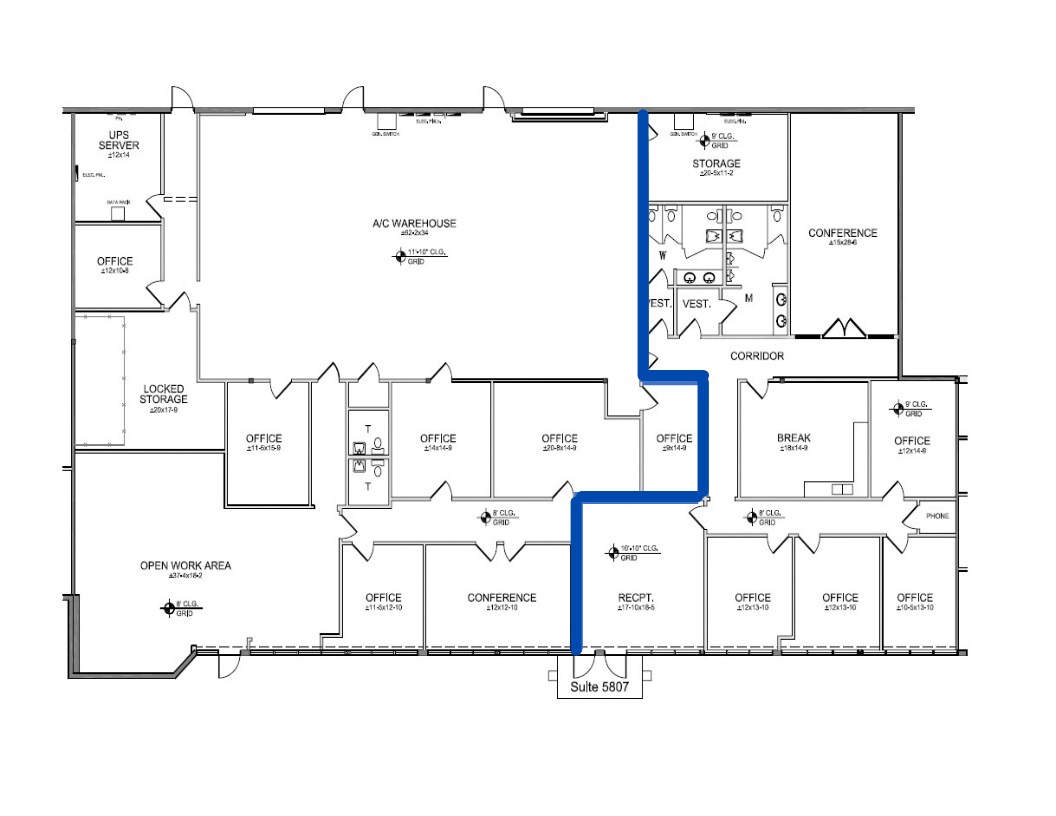
Can be demised up to 4200 sq. ft. In-line flex-warehouse space; warehouse is temperature controlled and has two loading docks. Approved uses: Automobile, aircraft, watercraft; wholesale, sales, service and repair; manufacturing/processing of products; public purpose facilities; storage facility; wholesale/sale rental services; accessory uses; automotive service station, outdoor storage Including offices are only permitted when accessory to manufacturing, processing, assembly, maintenance, repair, or warehousing operation.
- Space is in Excellent Condition
- Central Air and Heating
- Reception Area
- Drop Ceilings
- Plug & Play
- High Ceilings
- Smoke Detector
- 2 Loading Docks
- Partitioned Offices
- Secure Storage
- Emergency Lighting
- Fully Carpeted
- Conference Rooms
- Wheelchair Accessible
| Space | Size | Term | Rental Rate | Space Use | Build-Out | Available |
| 1st Floor | 4,160 SF | 5 Years | Upon Request Upon Request Upon Request Upon Request | Flex | - | Now |
| 1st Floor - 5801 | 3,080 SF | 1-5 Years | Upon Request Upon Request Upon Request Upon Request | Flex | Full Build-Out | Now |
| 1st Floor - 5803A | 1,512 SF | Negotiable | Upon Request Upon Request Upon Request Upon Request | Flex | Full Build-Out | May 31, 2026 |
| 1st Floor - 5805-5807 | 8,485 SF | 1-5 Years | Upon Request Upon Request Upon Request Upon Request | Flex | Full Build-Out | Pending |
1st Floor
| Size |
| 4,160 SF |
| Term |
| 5 Years |
| Rental Rate |
| Upon Request Upon Request Upon Request Upon Request |
| Space Use |
| Flex |
| Build-Out |
| - |
| Available |
| Now |
1st Floor - 5801
| Size |
| 3,080 SF |
| Term |
| 1-5 Years |
| Rental Rate |
| Upon Request Upon Request Upon Request Upon Request |
| Space Use |
| Flex |
| Build-Out |
| Full Build-Out |
| Available |
| Now |
1st Floor - 5803A
| Size |
| 1,512 SF |
| Term |
| Negotiable |
| Rental Rate |
| Upon Request Upon Request Upon Request Upon Request |
| Space Use |
| Flex |
| Build-Out |
| Full Build-Out |
| Available |
| May 31, 2026 |
1st Floor - 5805-5807
| Size |
| 8,485 SF |
| Term |
| 1-5 Years |
| Rental Rate |
| Upon Request Upon Request Upon Request Upon Request |
| Space Use |
| Flex |
| Build-Out |
| Full Build-Out |
| Available |
| Pending |
1st Floor
| Size | 4,160 SF |
| Term | 5 Years |
| Rental Rate | Upon Request |
| Space Use | Flex |
| Build-Out | - |
| Available | Now |
- Listed rate may not include certain utilities, building services and property expenses
1st Floor - 5801
| Size | 3,080 SF |
| Term | 1-5 Years |
| Rental Rate | Upon Request |
| Space Use | Flex |
| Build-Out | Full Build-Out |
| Available | Now |
End-cap space with open floor plan and loading dock! Approved uses: Automobile, aircraft, watercraft; wholesale, sales, service and repair; manufacturing/processing of products; public purpose facilities; storage facility; wholesale/sale rental services; accessory uses; automotive service station, outdoor storage Including offices are only permitted when accessory to manufacturing, processing, assembly, maintenance, repair, or warehousing operation.
- Space is in Excellent Condition
- Central Air and Heating
- Private Restrooms
- Laboratory
- Drop Ceilings
- Emergency Lighting
- High Ceilings
- Corner Space
- Smoke Detector
- Wheelchair Accessible
1st Floor - 5803A
| Size | 1,512 SF |
| Term | Negotiable |
| Rental Rate | Upon Request |
| Space Use | Flex |
| Build-Out | Full Build-Out |
| Available | May 31, 2026 |
Suite 5803A offers a versatile industrial/flex layout designed to accommodate a range of operational needs. The space features an air-conditioned warehouse with an open-to-structure design, providing flexibility for storage, light manufacturing, or distribution activities. A dedicated work area near the main entrance enhances functionality for office or assembly use, while the integrated restroom supports day-to-day convenience.
- Lease rate does not include utilities, property expenses or building services
- Space is in Excellent Condition
- 1 Loading Dock
- Central Air and Heating
- Private Restrooms
- Drop Ceilings
- Emergency Lighting
- Smoke Detector
- Wheelchair Accessible
1st Floor - 5805-5807
| Size | 8,485 SF |
| Term | 1-5 Years |
| Rental Rate | Upon Request |
| Space Use | Flex |
| Build-Out | Full Build-Out |
| Available | Pending |
Can be demised up to 4200 sq. ft. In-line flex-warehouse space; warehouse is temperature controlled and has two loading docks. Approved uses: Automobile, aircraft, watercraft; wholesale, sales, service and repair; manufacturing/processing of products; public purpose facilities; storage facility; wholesale/sale rental services; accessory uses; automotive service station, outdoor storage Including offices are only permitted when accessory to manufacturing, processing, assembly, maintenance, repair, or warehousing operation.
- Space is in Excellent Condition
- 2 Loading Docks
- Central Air and Heating
- Partitioned Offices
- Reception Area
- Secure Storage
- Drop Ceilings
- Emergency Lighting
- Plug & Play
- Fully Carpeted
- High Ceilings
- Conference Rooms
- Smoke Detector
- Wheelchair Accessible
Property Overview
Cypress Business Center is a professionally managed office/flex campus that provides excellent access to major transportation hubs given that is located adjacent to the I-95 ramp, one block from Cypress Creek Road, and walking distance to the bus terminal and the Tri-Rail Station. Truly located at the cross roads of the Cypress Creek financial district with amenities that include hotels, restaurants, quick service restaurants, shopping and banking.
Property Facts
Select Tenants
- Floor
- Tenant Name
- Industry
- 1st
- American Pool Service Inc
- Construction
- 1st
- Dialyze Direct
- Health Care and Social Assistance
- 1st
- Hands on Broward
- Services
- 1st
- Perfect Pavers of South Florida
- Construction
Presented by
Cypress Business Center | 5801-5821 N Andrews Way
Hmm, there seems to have been an error sending your message. Please try again.
Thanks! Your message was sent.







