Log In/Sign Up
Your email has been sent.
Highlights
- Efficient, Open Warehouse Layout.
- Close Proximity to O’Hare International Airport.
- Low, Stable DuPage County Taxes.
- Business Park Setting with Quick Access to I-90, I-294, I-290, I-355.
- Minutes from Bensenville Intermodal.
- Strong Surrounding Labor Pool.
Features
Clear Height
14’
Warehouse Floor
5”
Drive In Bays
2
Interior Dock Doors
4
Standard Parking Spaces
41
All Available Space(1)
Display Rental Rate as
- Space
- Size
- Term
- Rental Rate
- Space Use
- Build-Out
- Available
Loading: 2 interior shared docks and one shared drive-in door. Power: 200-Amp, 208/120V, 3-Phase.
- Includes 1,573 SF of dedicated office space
- 2 Loading Docks
- 1 Drive Bay
| Space | Size | Term | Rental Rate | Space Use | Build-Out | Available |
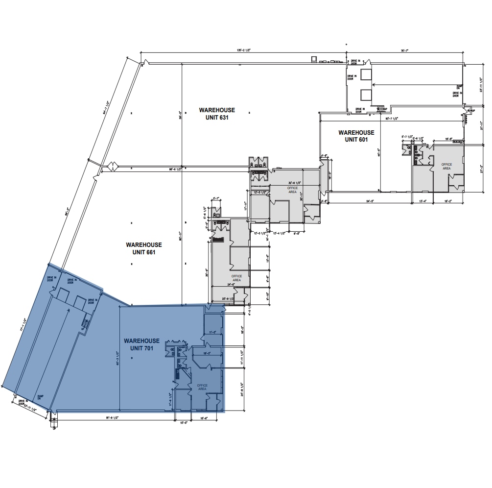
| 1st Floor - 701 | 8,391 SF | Negotiable | Upon Request Upon Request Upon Request Upon Request | Industrial | Full Build-Out | 30 Days |
1st Floor - 701
| Size |
| 8,391 SF |
| Term |
| Negotiable |
| Rental Rate |
| Upon Request Upon Request Upon Request Upon Request |
| Space Use |
| Industrial |
| Build-Out |
| Full Build-Out |
| Available |
| 30 Days |
1 of 5
Videos
Matterport 3D Exterior
Matterport 3D Tour
Photos
Street View
Street
Map
1st Floor - 701
| Size | 8,391 SF |
| Term | Negotiable |
| Rental Rate | Upon Request |
| Space Use | Industrial |
| Build-Out | Full Build-Out |
| Available | 30 Days |
Loading: 2 interior shared docks and one shared drive-in door. Power: 200-Amp, 208/120V, 3-Phase.
- Includes 1,573 SF of dedicated office space
- 1 Drive Bay
- 2 Loading Docks
Warehouse Facility Facts
Building Size
34,052 SF
Lot Size
1.40 AC
Year Built
1988
Construction
Masonry
Sprinkler System
Wet
Water
City
Sewer
City
Heating
Gas
Gas
Natural
Power Supply
Amps: 200 Volts: 120-208 Phase: 3 Wire: 4
Zoning
Light Industrial
Select Tenants
- Floor
- Tenant Name
- Industry
- 1st
- Air King Of America Inc
- Wholesaler
- 1st
- Komarek
- -
- 1st
- Saddleonline.com
- Retailer
1 1
Somewhat walkable
30/100
Exceptionally drivable
90/100
Limited public transit
30/100
Fairly bikeable
50/100
1 of 2
Videos
Matterport 3D Exterior
Matterport 3D Tour
Photos
Street View
Street
Map
1 of 1
Presented by
601-701 Frontier Way
Already a member? Log In
Hmm, there seems to have been an error sending your message. Please try again.
Thanks! Your message was sent.




