Log In/Sign Up
Your email has been sent.
6395 Gunpark Dr 4,340 SF Industrial Condo Unit Offered at $999,000 in Boulder, CO 80301



1 Unit Available
Unit C & D
| Unit Size | 4,340 SF | Condo Use | Industrial |
| Price | $999,000 | Sale Type | Owner User |
| Price Per SF | $230.18 |
| Unit Size | 4,340 SF |
| Price | $999,000 |
| Price Per SF | $230.18 |
| Condo Use | Industrial |
| Sale Type | Owner User |
Description
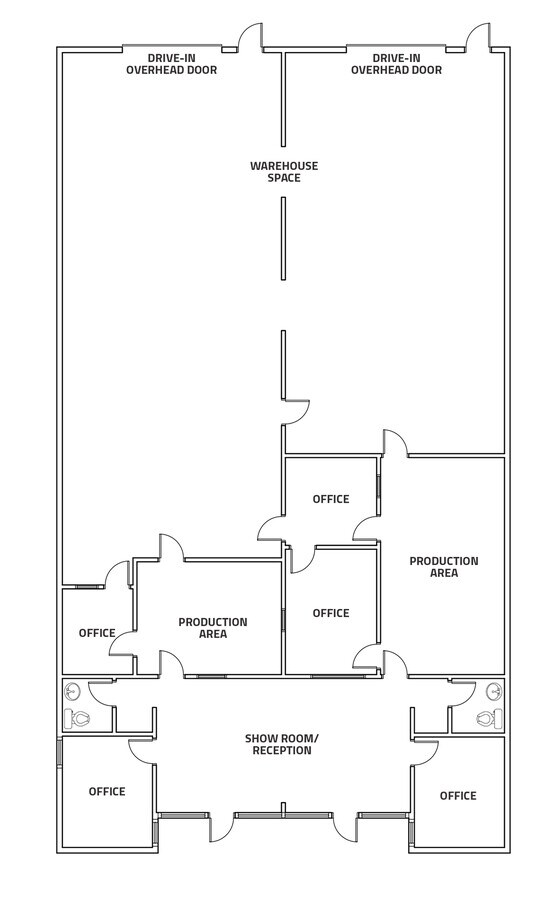
Introducing an exceptional opportunity to own a versatile industrial condo at 6395 Gunpark Drive, Units C & D, Boulder, CO 80301. Priced at $999,000, this 4,340 SF property, zoned IG (Industrial General), features two drive-in overhead doors, a spacious warehouse, private offices, dedicated production areas, and two private restrooms. Perfectly suited for businesses seeking a dynamic and functional space in a prime Boulder location, this condo offers unmatched flexibility and accessibility for a wide range of industrial and commercial needs.
6395-Gunpark-Drive_FloorPlan_09-09-2025-5_WEB
1 of 1
Videos
Matterport 3D Exterior
Matterport 3D Tour
Photos
Street View
Street
Map
Property Facts
The following property facts, amenities, and utilities apply to the entire building. Details for individual condo units may vary and are listed in the unit information above.
| Total Building Size | 31,000 SF | Typical Floor Size | 15,500 SF |
| Property Type | Industrial (Condo) | Year Built | 1979 |
| Property Subtype | Warehouse | Lot Size | 2.62 AC |
| Building Class | B | Parking Ratio | 2.84/1,000 SF |
| Floors | 2 | ||
| Zoning | IG-D - Flexible zoning includes retail, office, warehouse needs. | ||
| Total Building Size | 31,000 SF |
| Property Type | Industrial (Condo) |
| Property Subtype | Warehouse |
| Building Class | B |
| Floors | 2 |
| Typical Floor Size | 15,500 SF |
| Year Built | 1979 |
| Lot Size | 2.62 AC |
| Parking Ratio | 2.84/1,000 SF |
| Zoning | IG-D - Flexible zoning includes retail, office, warehouse needs. |
Amenities
- 24 Hour Access
- Bus Line
- Signage
Utilities
- Gas - Natural
- Water - City
- Sewer - City
- Heating
Fairly walkable
40/100
Very drivable
80/100
Limited public transit
30/100
Moderately bikeable
70/100
Major Tenant Information Click Here to Access
| TENANT | SF Occupied | LEASE END DATE |
|---|---|---|
| Susan Cabinet Shops |
-
|
Jan 0000
|
1 of 27
Videos
Matterport 3D Exterior
Matterport 3D Tour
Photos
Street View
Street
Map
Presented by
6395 Gunpark Dr
Already a member? Log In
Hmm, there seems to have been an error sending your message. Please try again.
Thanks! Your message was sent.


