Your email has been sent.
Park Highlights
- Located in the booming Gilbert/Queen Creek area with strong population growth and increase in big box industrial developments.
- Well-situated with easy access to the 202.
- Strategic location also benefits from the appeal and proximity to Phoenix Gateway Airport.
Park Facts
| Total Space Available | 25,504 SF | Park Type | Industrial Park |
| Total Space Available | 25,504 SF |
| Park Type | Industrial Park |
All Available Spaces(6)
Display Rental Rate as
- Space
- Size
- Term
- Rental Rate
- Space Use
- Build-Out
- Available
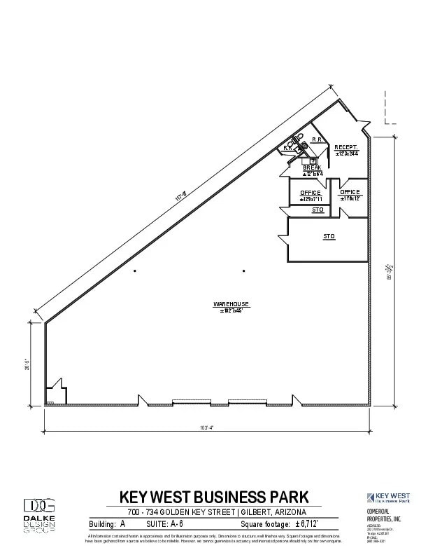
Suite A6 sports 2 grade level doors, a reception, 2 offices, a break room, and an open warehouse layout.
- Lease rate does not include utilities, property expenses or building services
- Reception Area
- 2 Drive Ins
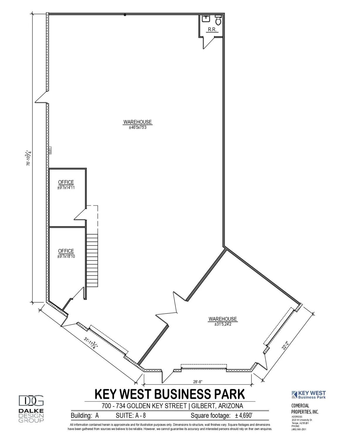
2 Offices, 1 Restroom, 10% Office, 3 Grade Level Doors, Full A/C.
- Lease rate does not include utilities, property expenses or building services
- 3 Drive Ins
- Private Restrooms
- Includes 469 SF of dedicated office space
- Central Air Conditioning
| Space | Size | Term | Rental Rate | Space Use | Build-Out | Available |
| 1st Floor - A6 | 6,712 SF | Negotiable | $15.00 /SF/YR $1.25 /SF/MO $100,680 /YR $8,390 /MO | Industrial | Partial Build-Out | Now |
| 1st Floor - A8 | 4,690 SF | Negotiable | $16.20 /SF/YR $1.35 /SF/MO $75,978 /YR $6,332 /MO | Industrial | Partial Build-Out | Now |
700 N Golden Key St - 1st Floor - A6
700 N Golden Key St - 1st Floor - A8
- Space
- Size
- Term
- Rental Rate
- Space Use
- Build-Out
- Available
Available 5/1
- Lease rate does not include utilities, property expenses or building services
- Private Restrooms
- 2 Drive Ins
Reception, 2 Offices, Break Room, Bull Pen, Restroom, 30% Office. NNN's are 0.22/SF.
- Lease rate does not include utilities, property expenses or building services
- 2 Drive Ins
- Includes 1,184 SF of dedicated office space
- Reception Area
Reception, 1 Office, 1 Restroom, 12' x 14' Roll-up Door
- Lease rate does not include utilities, property expenses or building services
- Reception Area
- 1 Drive Bay
| Space | Size | Term | Rental Rate | Space Use | Build-Out | Available |
| 1st Floor - B4/B5 | 3,330 SF | Negotiable | $16.20 /SF/YR $1.35 /SF/MO $53,946 /YR $4,496 /MO | Industrial | Partial Build-Out | Now |
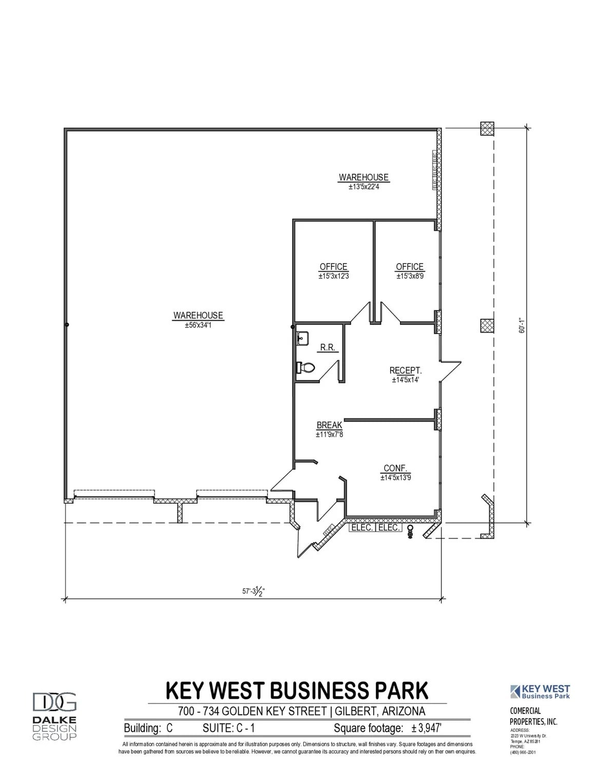
| 1st Floor - C1-C2 | 3,947 SF | Negotiable | $16.20 /SF/YR $1.35 /SF/MO $63,941 /YR $5,328 /MO | Industrial | Partial Build-Out | Now |
| 1st Floor - C4 | 2,557 SF | Negotiable | $16.20 /SF/YR $1.35 /SF/MO $41,423 /YR $3,452 /MO | Industrial | Partial Build-Out | Now |
720 N Golden Key St - 1st Floor - B4/B5
720 N Golden Key St - 1st Floor - C1-C2
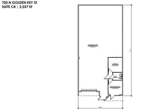
720 N Golden Key St - 1st Floor - C4
- Space
- Size
- Term
- Rental Rate
- Space Use
- Build-Out
- Available
Open office/Showroom, Restroom, & 2 Roll Up doors
- Lease rate does not include utilities, property expenses or building services
- Reception Area
- 2 Drive Ins
| Space | Size | Term | Rental Rate | Space Use | Build-Out | Available |
| 1st Floor - D7/D8 | 4,268 SF | Negotiable | $16.20 /SF/YR $1.35 /SF/MO $69,142 /YR $5,762 /MO | Industrial | Partial Build-Out | Now |
734 N Golden Key St - 1st Floor - D7/D8
700 N Golden Key St - 1st Floor - A6
| Size | 6,712 SF |
| Term | Negotiable |
| Rental Rate | $15.00 /SF/YR |
| Space Use | Industrial |
| Build-Out | Partial Build-Out |
| Available | Now |
Suite A6 sports 2 grade level doors, a reception, 2 offices, a break room, and an open warehouse layout.
- Lease rate does not include utilities, property expenses or building services
- 2 Drive Ins
- Reception Area
700 N Golden Key St - 1st Floor - A8
| Size | 4,690 SF |
| Term | Negotiable |
| Rental Rate | $16.20 /SF/YR |
| Space Use | Industrial |
| Build-Out | Partial Build-Out |
| Available | Now |
2 Offices, 1 Restroom, 10% Office, 3 Grade Level Doors, Full A/C.
- Lease rate does not include utilities, property expenses or building services
- Includes 469 SF of dedicated office space
- 3 Drive Ins
- Central Air Conditioning
- Private Restrooms
720 N Golden Key St - 1st Floor - B4/B5
| Size | 3,330 SF |
| Term | Negotiable |
| Rental Rate | $16.20 /SF/YR |
| Space Use | Industrial |
| Build-Out | Partial Build-Out |
| Available | Now |
Available 5/1
- Lease rate does not include utilities, property expenses or building services
- 2 Drive Ins
- Private Restrooms
720 N Golden Key St - 1st Floor - C1-C2
| Size | 3,947 SF |
| Term | Negotiable |
| Rental Rate | $16.20 /SF/YR |
| Space Use | Industrial |
| Build-Out | Partial Build-Out |
| Available | Now |
Reception, 2 Offices, Break Room, Bull Pen, Restroom, 30% Office. NNN's are 0.22/SF.
- Lease rate does not include utilities, property expenses or building services
- Includes 1,184 SF of dedicated office space
- 2 Drive Ins
- Reception Area
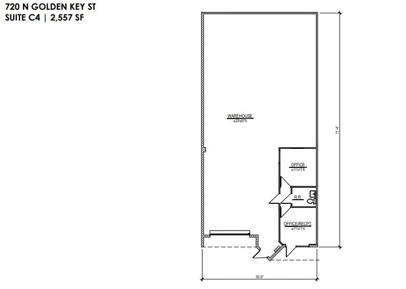
720 N Golden Key St - 1st Floor - C4
| Size | 2,557 SF |
| Term | Negotiable |
| Rental Rate | $16.20 /SF/YR |
| Space Use | Industrial |
| Build-Out | Partial Build-Out |
| Available | Now |
Reception, 1 Office, 1 Restroom, 12' x 14' Roll-up Door
- Lease rate does not include utilities, property expenses or building services
- 1 Drive Bay
- Reception Area
734 N Golden Key St - 1st Floor - D7/D8
| Size | 4,268 SF |
| Term | Negotiable |
| Rental Rate | $16.20 /SF/YR |
| Space Use | Industrial |
| Build-Out | Partial Build-Out |
| Available | Now |
Open office/Showroom, Restroom, & 2 Roll Up doors
- Lease rate does not include utilities, property expenses or building services
- 2 Drive Ins
- Reception Area
Park Overview
Located in the booming Gilbert/Queen Creek area, this project enjoys the perks of strong population growth, complemented by the rise of big-box industrial development. The strategic location also benefits from the appeal of Phoenix Gateway Airport, with its advantageous status as a foreign trade zone. Notably, this development project is well situated with easy access to the 202, enhancing its accessibility and potential for success in this dynamic and growing region.
Presented by
Key West Business Park | Gilbert, AZ 85233
Hmm, there seems to have been an error sending your message. Please try again.
Thanks! Your message was sent.















