Log In/Sign Up
Your email has been sent.
Highlights
- Excellent visibility on Interstate Ave
- General Industrial (IG1), city of Portland, allowing for wide range of industrial uses
- 3-phase electrical
- Owner open to short- or long-term lease.
Features
Drive In Bays
2
Standard Parking Spaces
3
All Available Space(1)
Display Rental Rate as
- Space
- Size
- Term
- Rental Rate
- Space Use
- Build-Out
- Available
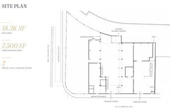
18,344 SF building; with small office/showroom, restrooms, and conference room
- Lease rate does not include utilities, property expenses or building services
- ±7,500 SF of yard/parking
- 2 Drive Ins
| Space | Size | Term | Rental Rate | Space Use | Build-Out | Available |
| 1st Floor | 18,344 SF | Negotiable | $8.40 /SF/YR $0.70 /SF/MO $154,090 /YR $12,841 /MO | Industrial | - | 30 Days |
1st Floor
| Size |
| 18,344 SF |
| Term |
| Negotiable |
| Rental Rate |
| $8.40 /SF/YR $0.70 /SF/MO $154,090 /YR $12,841 /MO |
| Space Use |
| Industrial |
| Build-Out |
| - |
| Available |
| 30 Days |
1 of 1
Videos
Matterport 3D Exterior
Matterport 3D Tour
Photos
Street View
Street
Map
1st Floor
| Size | 18,344 SF |
| Term | Negotiable |
| Rental Rate | $8.40 /SF/YR |
| Space Use | Industrial |
| Build-Out | - |
| Available | 30 Days |
18,344 SF building; with small office/showroom, restrooms, and conference room
- Lease rate does not include utilities, property expenses or building services
- 2 Drive Ins
- ±7,500 SF of yard/parking
Property Overview
Rare North Portland industrial building with yard. ±18,344 SF warehouse includes small office/showroom, restrooms, and conference room. ±7,500 SF of dedicated yard/parking. Zoned IG1, City of Portland, allowing a wide range of industrial uses. Equipped with 3-phase power and two grade-level loading doors. Excellent visibility on Interstate Avenue.
Showroom Facility Facts
Building Size
18,344 SF
Lot Size
0.61 AC
Year Built
1924
Construction
Metal
Power Supply
Phase: 3
Zoning
IG1
Select Tenants
- Floor
- Tenant Name
- Industry
- 1st
- Metalcraft Fabrication Inc
- Wholesaler
1 1
Moderately walkable
70/100
Moderately drivable
70/100
Good public transit
70/100
Very bikeable
80/100
1 of 12
Videos
Matterport 3D Exterior
Matterport 3D Tour
Photos
Street View
Street
Map
1 of 1





