Your email has been sent.
Turnkey Medical or Office Campus Opportunity 7400 Helen Of Troy 1,800 - 14,400 SF of 4-Star Office/Medical Space Available in El Paso, TX 79911



Highlights
- Turnkey campus for medical or office use
- Single-user campus opportunity
- Strong power, data, and infrastructure
- Approx. 14,400 SF across two buildings
- Flexible layout with conversion potential
- Located near Paseo Del Norte and Resler near Cimarron Community
All Available Spaces(4)
Display Rental Rate as
- Space
- Size
- Term
- Rental Rate
- Space Use
- Build-Out
- Available
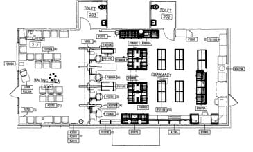
Building A consists of approximately 10,800 SF of fully built-out Class A space originally designed for clinical operations. The layout includes multiple private rooms, laboratory or support areas, offices, conference and training space, large reception and waiting area, storage, and multiple restrooms. The existing configuration supports immediate medical use while also offering a highly adaptable framework for professional office, administrative headquarters, or back-office operations. Rooms were designed with modularity in mind, allowing for efficient reconfiguration without extensive reconstruction.
- Lease rate does not include utilities, property expenses or building services
- Fits 12 - 39 People
- 1 Conference Room
- Space is in Excellent Condition
- Laboratory
- Central Air and Heating
- After Hours HVAC Available
- Private rooms and open support areas
- Large reception or lobby area
- Ready for medical or office use
- Fully Built-Out as Standard Medical Space
- 9 Private Offices
- 1 Workstation
- Can be combined with additional space(s) for up to 10,800 SF of adjacent space
- Reception Area
- Natural Light
- Turnkey Class A buildout
- Conference and training spaces
- Efficient and adaptable layout
Building A consists of approximately 10,800 SF of fully built-out Class A space originally designed for clinical operations. The layout includes multiple private rooms, laboratory or support areas, offices, conference and training space, large reception and waiting area, storage, and multiple restrooms. The existing configuration supports immediate medical use while also offering a highly adaptable framework for professional office, administrative headquarters, or back-office operations. Rooms were designed with modularity in mind, allowing for efficient reconfiguration without extensive reconstruction.
- Lease rate does not include utilities, property expenses or building services
- Fits 15 - 48 People
- 1 Conference Room
- Space is in Excellent Condition
- Laboratory
- Central Air and Heating
- After Hours HVAC Available
- Private rooms and open support areas
- Large reception or lobby area
- Ready for medical or office use
- Fully Built-Out as Standard Medical Space
- 20 Private Offices
- 3 Workstations
- Can be combined with additional space(s) for up to 10,800 SF of adjacent space
- Reception Area
- Natural Light
- Turnkey Class A buildout
- Conference and training spaces
- Efficient and adaptable layout
Suite 1 in Building B features a flexible layout totaling approximately 1,800 SF and was originally built out for physical therapy use. The space includes a reception area, private office, large open area, storage, and a restroom with shower. The open configuration allows for continued therapy or wellness use, collaborative office space, training functions, or other professional operations requiring open floor area. This suite functions well as a complementary component within a larger campus environment.
- Lease rate does not include utilities, property expenses or building services
- Mostly Open Floor Plan Layout
- 1 Private Office
- Can be combined with additional space(s) for up to 3,600 SF of adjacent space
- Open-plan flexible layout
- Large open work or treatment area
- Adaptable for medical or office use
- Fully Built-Out as Physical Therapy Space
- Fits 5 - 15 People
- Space is in Excellent Condition
- Shower Facilities
- Reception and private office
- Restroom with shower
Suite 2 in Building B is built out with controlled access features and a functional front-facing layout. The space includes a waiting area, secured access points, multiple service windows, separate staff restroom, and a large open work area with dedicated climate controls. While originally configured for pharmacy operations, the layout lends itself to a range of professional uses including administrative services, secure operations, or client-facing business functions that benefit from separation of public and staff areas.
- Lease rate does not include utilities, property expenses or building services
- Fits 5 - 15 People
- Can be combined with additional space(s) for up to 3,600 SF of adjacent space
- Front-facing service or reception area
- Separate staff facilities
- Open Floor Plan Layout
- Space is in Excellent Condition
- Secure access-controlled layout
- Large open operations space
- Suitable for medical or office users
| Space | Size | Term | Rental Rate | Space Use | Build-Out | Available |
| 1st Floor, Ste Bldg A - Suite 1 | 4,800 SF | Negotiable | Upon Request Upon Request Upon Request Upon Request | Office/Medical | Full Build-Out | Now |
| 1st Floor, Ste Bldg A - Suite 2 | 6,000 SF | Negotiable | Upon Request Upon Request Upon Request Upon Request | Office/Medical | Full Build-Out | Now |
| 1st Floor, Ste Bldg B - Suite 1 | 1,800 SF | Negotiable | Upon Request Upon Request Upon Request Upon Request | Office/Medical | Full Build-Out | Now |
| 1st Floor, Ste Bldg B - Suite 2 | 1,800 SF | Negotiable | Upon Request Upon Request Upon Request Upon Request | Office/Medical | Full Build-Out | Now |
1st Floor, Ste Bldg A - Suite 1
| Size |
| 4,800 SF |
| Term |
| Negotiable |
| Rental Rate |
| Upon Request Upon Request Upon Request Upon Request |
| Space Use |
| Office/Medical |
| Build-Out |
| Full Build-Out |
| Available |
| Now |
1st Floor, Ste Bldg A - Suite 2
| Size |
| 6,000 SF |
| Term |
| Negotiable |
| Rental Rate |
| Upon Request Upon Request Upon Request Upon Request |
| Space Use |
| Office/Medical |
| Build-Out |
| Full Build-Out |
| Available |
| Now |
1st Floor, Ste Bldg B - Suite 1
| Size |
| 1,800 SF |
| Term |
| Negotiable |
| Rental Rate |
| Upon Request Upon Request Upon Request Upon Request |
| Space Use |
| Office/Medical |
| Build-Out |
| Full Build-Out |
| Available |
| Now |
1st Floor, Ste Bldg B - Suite 2
| Size |
| 1,800 SF |
| Term |
| Negotiable |
| Rental Rate |
| Upon Request Upon Request Upon Request Upon Request |
| Space Use |
| Office/Medical |
| Build-Out |
| Full Build-Out |
| Available |
| Now |
1st Floor, Ste Bldg A - Suite 1
| Size | 4,800 SF |
| Term | Negotiable |
| Rental Rate | Upon Request |
| Space Use | Office/Medical |
| Build-Out | Full Build-Out |
| Available | Now |
Building A consists of approximately 10,800 SF of fully built-out Class A space originally designed for clinical operations. The layout includes multiple private rooms, laboratory or support areas, offices, conference and training space, large reception and waiting area, storage, and multiple restrooms. The existing configuration supports immediate medical use while also offering a highly adaptable framework for professional office, administrative headquarters, or back-office operations. Rooms were designed with modularity in mind, allowing for efficient reconfiguration without extensive reconstruction.
- Lease rate does not include utilities, property expenses or building services
- Fully Built-Out as Standard Medical Space
- Fits 12 - 39 People
- 9 Private Offices
- 1 Conference Room
- 1 Workstation
- Space is in Excellent Condition
- Can be combined with additional space(s) for up to 10,800 SF of adjacent space
- Laboratory
- Reception Area
- Central Air and Heating
- Natural Light
- After Hours HVAC Available
- Turnkey Class A buildout
- Private rooms and open support areas
- Conference and training spaces
- Large reception or lobby area
- Efficient and adaptable layout
- Ready for medical or office use
1st Floor, Ste Bldg A - Suite 2
| Size | 6,000 SF |
| Term | Negotiable |
| Rental Rate | Upon Request |
| Space Use | Office/Medical |
| Build-Out | Full Build-Out |
| Available | Now |
Building A consists of approximately 10,800 SF of fully built-out Class A space originally designed for clinical operations. The layout includes multiple private rooms, laboratory or support areas, offices, conference and training space, large reception and waiting area, storage, and multiple restrooms. The existing configuration supports immediate medical use while also offering a highly adaptable framework for professional office, administrative headquarters, or back-office operations. Rooms were designed with modularity in mind, allowing for efficient reconfiguration without extensive reconstruction.
- Lease rate does not include utilities, property expenses or building services
- Fully Built-Out as Standard Medical Space
- Fits 15 - 48 People
- 20 Private Offices
- 1 Conference Room
- 3 Workstations
- Space is in Excellent Condition
- Can be combined with additional space(s) for up to 10,800 SF of adjacent space
- Laboratory
- Reception Area
- Central Air and Heating
- Natural Light
- After Hours HVAC Available
- Turnkey Class A buildout
- Private rooms and open support areas
- Conference and training spaces
- Large reception or lobby area
- Efficient and adaptable layout
- Ready for medical or office use
1st Floor, Ste Bldg B - Suite 1
| Size | 1,800 SF |
| Term | Negotiable |
| Rental Rate | Upon Request |
| Space Use | Office/Medical |
| Build-Out | Full Build-Out |
| Available | Now |
Suite 1 in Building B features a flexible layout totaling approximately 1,800 SF and was originally built out for physical therapy use. The space includes a reception area, private office, large open area, storage, and a restroom with shower. The open configuration allows for continued therapy or wellness use, collaborative office space, training functions, or other professional operations requiring open floor area. This suite functions well as a complementary component within a larger campus environment.
- Lease rate does not include utilities, property expenses or building services
- Fully Built-Out as Physical Therapy Space
- Mostly Open Floor Plan Layout
- Fits 5 - 15 People
- 1 Private Office
- Space is in Excellent Condition
- Can be combined with additional space(s) for up to 3,600 SF of adjacent space
- Shower Facilities
- Open-plan flexible layout
- Reception and private office
- Large open work or treatment area
- Restroom with shower
- Adaptable for medical or office use
1st Floor, Ste Bldg B - Suite 2
| Size | 1,800 SF |
| Term | Negotiable |
| Rental Rate | Upon Request |
| Space Use | Office/Medical |
| Build-Out | Full Build-Out |
| Available | Now |
Suite 2 in Building B is built out with controlled access features and a functional front-facing layout. The space includes a waiting area, secured access points, multiple service windows, separate staff restroom, and a large open work area with dedicated climate controls. While originally configured for pharmacy operations, the layout lends itself to a range of professional uses including administrative services, secure operations, or client-facing business functions that benefit from separation of public and staff areas.
- Lease rate does not include utilities, property expenses or building services
- Open Floor Plan Layout
- Fits 5 - 15 People
- Space is in Excellent Condition
- Can be combined with additional space(s) for up to 3,600 SF of adjacent space
- Secure access-controlled layout
- Front-facing service or reception area
- Large open operations space
- Separate staff facilities
- Suitable for medical or office users
Property Overview
7400 Helen of Troy Drive offers a rare opportunity to lease a fully built-out Class A campus suitable for both medical and professional office users in West El Paso. Comprising approximately 14,400 square feet across two buildings, the property supports single-user campus occupancy and is currently configured for immediate medical use while maintaining clear conversion potential to a Class A professional office environment. The existing layout includes exam-size rooms, administrative areas, open workspaces, conference rooms, and support spaces, allowing healthcare users to occupy with minimal downtime and professional office users to efficiently adapt the space to corporate, operations, or headquarters functions. The campus design provides separation of uses while maintaining cohesive connectivity across both buildings. Located near the rapidly expanding Paseo Del Norte and Resler corridor, the property benefits from strong accessibility, nearby amenities, and a professional setting well suited for client-facing or employee-focused operations. This is a unique opportunity to secure a turnkey campus with flexibility that serves both immediate needs and long-term business growth.
Property Facts
Presented by
Turnkey Medical or Office Campus Opportunity | 7400 Helen Of Troy
Hmm, there seems to have been an error sending your message. Please try again.
Thanks! Your message was sent.









