Your email has been sent.
Perimeter Ridge Atlanta, GA 30328 1,600 SF of Office Space Available



Park Highlights
- Free Surface Lot Parking Included Next To Building.
- Daily Cleaning Services - Monday-Friday.
- Water and Electrical Utilities Included.
Park Facts
| Total Space Available | 1,600 SF | Features | 24 Hour Access |
| Park Type | Office Park |
| Total Space Available | 1,600 SF |
| Park Type | Office Park |
| Features | 24 Hour Access |
All Available Space(1)
Display Rental Rate as
- Space
- Size
- Term
- Rental Rate
- Space Use
- Build-Out
- Available
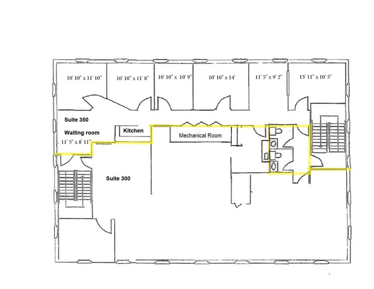
This 1,600-square-foot suite offers a professional and convenient workspace for your business. Suite 350 features a welcoming reception area, six private offices, and a kitchen. This space enjoys an efficient floorplan, a quiet location in the office park, windows in each office, and bright natural light. This space is ideal for professional services such as law firms, small businesses, a satellite office, and/or financial services. Enjoy the benefits of ample on-site free parking and a diverse professional environment, with neighboring offices in medical, legal, and financial fields.
- Rate includes utilities, building services and property expenses
- Mostly Open Floor Plan Layout
- 6 Private Offices
- Reception Area
- Private office can be used as conference room.
- Fully Built-Out as Professional Services Office
- Fits 4 - 13 People
- Space is in Excellent Condition
- Kitchen
| Space | Size | Term | Rental Rate | Space Use | Build-Out | Available |
| 3rd Floor, Ste 350 | 1,600 SF | 1-5 Years | $19.00 /SF/YR $1.58 /SF/MO $30,400 /YR $2,533 /MO | Office | Full Build-Out | Now |
750 Hammond Dr NE - 3rd Floor - Ste 350
750 Hammond Dr NE - 3rd Floor - Ste 350
| Size | 1,600 SF |
| Term | 1-5 Years |
| Rental Rate | $19.00 /SF/YR |
| Space Use | Office |
| Build-Out | Full Build-Out |
| Available | Now |
This 1,600-square-foot suite offers a professional and convenient workspace for your business. Suite 350 features a welcoming reception area, six private offices, and a kitchen. This space enjoys an efficient floorplan, a quiet location in the office park, windows in each office, and bright natural light. This space is ideal for professional services such as law firms, small businesses, a satellite office, and/or financial services. Enjoy the benefits of ample on-site free parking and a diverse professional environment, with neighboring offices in medical, legal, and financial fields.
- Rate includes utilities, building services and property expenses
- Fully Built-Out as Professional Services Office
- Mostly Open Floor Plan Layout
- Fits 4 - 13 People
- 6 Private Offices
- Space is in Excellent Condition
- Reception Area
- Kitchen
- Private office can be used as conference room.
Park Overview
Located in the Perimeter Ridge office park, this Class B office situated in the bustling Perimeter Center area, benefits from proximity to major businesses, medical facilities, shopping centers, dining options, hotels, and entertainment venues. It's location, near "Pill Hill" and Perimeter Mall, offers excellent visibility and easy access to major highways such as I-285 and GA-400, making it a highly desirable spot for businesses looking to establish a strong presence in one of Atlanta's key commercial hubs. Additionally, the property is accessible via public transportation, with nearby MARTA stations and bus routes.
- 24 Hour Access
Presented by
Willis Real Estate Firm
Perimeter Ridge | Atlanta, GA 30328
Hmm, there seems to have been an error sending your message. Please try again.
Thanks! Your message was sent.




