Your email has been sent.
Highlights
- 710 - 2,175 SF± (divisible) available
- Immediate occupancy available
- Ample parking
- Turnkey office space
- Full service lease structure
- Convenient and accessible location
All Available Spaces(2)
Display Rental Rate as
- Space
- Size
- Term
- Rental Rate
- Space Use
- Condition
- Available
SVN is pleased to present an excellent opportunity to lease 710 - 2,175 SF± (divisible) of turnkey office space. This multi-tenant office building is located in immediate proximity to the Woodbourne Train Station. The building houses numerous personal service businesses and can accommodate various potential uses. The property is situated in a densely populated residential area with a diverse tenant mix nearby. It boasts a superior location with easy access to the region's highway systems and major commuter routes.
- Rate includes utilities, building services and property expenses
- 1 Private Office
- Fully Built-Out as Standard Office
- Can be combined with additional space(s) for up to 2,175 SF of adjacent space
SSVN is pleased to present an excellent opportunity to lease 710 - 2,175 SF± (divisible) of turnkey office space. This multi-tenant office building is located in immediate proximity to the Woodbourne Train Station. The building houses numerous personal service businesses and can accommodate various potential uses. The property is situated in a densely populated residential area with a diverse tenant mix nearby. It boasts a superior location with easy access to the region's highway systems and major commuter routes.
- Rate includes utilities, building services and property expenses
- 1 Private Office
- Fully Built-Out as Standard Office
- Can be combined with additional space(s) for up to 2,175 SF of adjacent space
| Space | Size | Term | Rental Rate | Space Use | Condition | Available |
| Lower Level, Ste B1 | 1,465 SF | Negotiable | $17.20 /SF/YR $1.43 /SF/MO $25,198 /YR $2,100 /MO | Office | Full Build-Out | Now |
| 1st Floor, Ste A | 710 SF | Negotiable | $24.51 /SF/YR $2.04 /SF/MO $17,402 /YR $1,450 /MO | Office | Full Build-Out | Now |
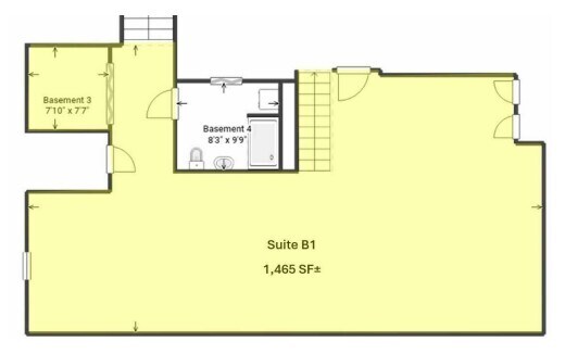
Lower Level, Ste B1
| Size |
| 1,465 SF |
| Term |
| Negotiable |
| Rental Rate |
| $17.20 /SF/YR $1.43 /SF/MO $25,198 /YR $2,100 /MO |
| Space Use |
| Office |
| Condition |
| Full Build-Out |
| Available |
| Now |
1st Floor, Ste A
| Size |
| 710 SF |
| Term |
| Negotiable |
| Rental Rate |
| $24.51 /SF/YR $2.04 /SF/MO $17,402 /YR $1,450 /MO |
| Space Use |
| Office |
| Condition |
| Full Build-Out |
| Available |
| Now |
Lower Level, Ste B1
| Size | 1,465 SF |
| Term | Negotiable |
| Rental Rate | $17.20 /SF/YR |
| Space Use | Office |
| Condition | Full Build-Out |
| Available | Now |
SVN is pleased to present an excellent opportunity to lease 710 - 2,175 SF± (divisible) of turnkey office space. This multi-tenant office building is located in immediate proximity to the Woodbourne Train Station. The building houses numerous personal service businesses and can accommodate various potential uses. The property is situated in a densely populated residential area with a diverse tenant mix nearby. It boasts a superior location with easy access to the region's highway systems and major commuter routes.
- Rate includes utilities, building services and property expenses
- Fully Built-Out as Standard Office
- 1 Private Office
- Can be combined with additional space(s) for up to 2,175 SF of adjacent space
1st Floor, Ste A
| Size | 710 SF |
| Term | Negotiable |
| Rental Rate | $24.51 /SF/YR |
| Space Use | Office |
| Condition | Full Build-Out |
| Available | Now |
SSVN is pleased to present an excellent opportunity to lease 710 - 2,175 SF± (divisible) of turnkey office space. This multi-tenant office building is located in immediate proximity to the Woodbourne Train Station. The building houses numerous personal service businesses and can accommodate various potential uses. The property is situated in a densely populated residential area with a diverse tenant mix nearby. It boasts a superior location with easy access to the region's highway systems and major commuter routes.
- Rate includes utilities, building services and property expenses
- Fully Built-Out as Standard Office
- 1 Private Office
- Can be combined with additional space(s) for up to 2,175 SF of adjacent space
Property Overview
SVN is pleased to present an excellent opportunity to lease 710 - 2,175 SF± (divisible) of turnkey office space. This multi-tenant office building is located in immediate proximity to the Woodbourne Train Station. The building houses numerous personal service businesses and can accommodate various potential uses. The property is situated in a densely populated residential area with a diverse tenant mix nearby. It boasts a superior location with easy access to the region's highway systems and major commuter routes. The property is located on the heavily traveled Woodbourne Road in Langhorne, Middletown Township, PA. This visible and central location offers convenient access to major thoroughfares, providing easy connectivity to Philadelphia and New Jersey's. It is just minutes away from the Woodbourne Train Station, Newtown, Langhorne Borough, and Yardley.
Property Facts
Presented by
760 Woodbourne Rd
Hmm, there seems to have been an error sending your message. Please try again.
Thanks! Your message was sent.








