Log In/Sign Up
Your email has been sent.
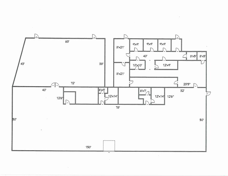
12,723 SF Industrial Warehouse 7777 Greenwell Springs Rd 12,723 SF Industrial Building Baton Rouge, LA 70814 $765,000 ($60.13/SF)


Investment Highlights
- Excellent Visibility
- Industrial or Retail Use
- Back up Generator
- Hard Corner Greenwell Springs Rd & Lanier Dr.
- 3-Phase Power
Executive Summary
12,723 SF Industrial Warehouse
• 12,723 SF Block Side Walls with Metal Roof
• 7,500 SF, 11' Clear and Sprinklered
• 1.16 Acre Site
• Three Phase Power
• Back Up Generator
• Zoned C-1
• Located corner of Greenwell Springs Rd. and Lanier Dr.
• 12,723 SF Block Side Walls with Metal Roof
• 7,500 SF, 11' Clear and Sprinklered
• 1.16 Acre Site
• Three Phase Power
• Back Up Generator
• Zoned C-1
• Located corner of Greenwell Springs Rd. and Lanier Dr.
Property Facts
Space Availability
- Space
- Size
- Space Use
- Condition
- Available
12,723 SF Industrial Warehouse • 12,723 SF Block Side Walls with Metal Roof • 7,500 SF, 11' Clear and Sprinklered • 1.16 Acre Site • Three Phase Power • Back Up Generator • Zoned C-1 • Located corner of Greenwell Springs Rd. and Lanier Dr.
| Space | Size | Space Use | Condition | Available |
| 1st Floor | 12,723 SF | Industrial | - | Now |
1st Floor
| Size |
| 12,723 SF |
| Space Use |
| Industrial |
| Condition |
| - |
| Available |
| Now |
1 of 2
Videos
Matterport 3D Exterior
Matterport 3D Tour
Photos
Street View
Street
Map
1st Floor
| Size | 12,723 SF |
| Space Use | Industrial |
| Condition | - |
| Available | Now |
12,723 SF Industrial Warehouse • 12,723 SF Block Side Walls with Metal Roof • 7,500 SF, 11' Clear and Sprinklered • 1.16 Acre Site • Three Phase Power • Back Up Generator • Zoned C-1 • Located corner of Greenwell Springs Rd. and Lanier Dr.
1 1
Property Taxes
| Parcel Number | 00305553 | Improvements Assessment | $57,332 |
| Land Assessment | $3,399 | Total Assessment | $60,731 |
Property Taxes
Parcel Number
00305553
Land Assessment
$3,399
Improvements Assessment
$57,332
Total Assessment
$60,731
1 of 3
Videos
Matterport 3D Exterior
Matterport 3D Tour
Photos
Street View
Street
Map
1 of 1
Presented by
12,723 SF Industrial Warehouse | 7777 Greenwell Springs Rd
Already a member? Log In
Hmm, there seems to have been an error sending your message. Please try again.
Thanks! Your message was sent.
Your message has been sent!
Activate your LoopNet account now to track properties, get real-time alerts, save time on future inquiries, and more.



