Your email has been sent.
Park Highlights
- 10 Ton Crane Ready
- 26’ Eave Height on the back of the building
- (2) 16’ X 16’ Grade Level Roll-Up Doors
- 29’ Eave Height on the front of the building
- Additional Mezzanine Storage
- Great Access to Beltway 8, Hwy 249 & 290
Park Facts
Features and Amenities
- 24 Hour Access
- Fenced Lot
- Mezzanine
- Signage
- Monument Signage
All Available Space(1)
Display Rental Rate as
- Space
- Size
- Term
- Rental Rate
- Space Use
- Build-Out
- Available
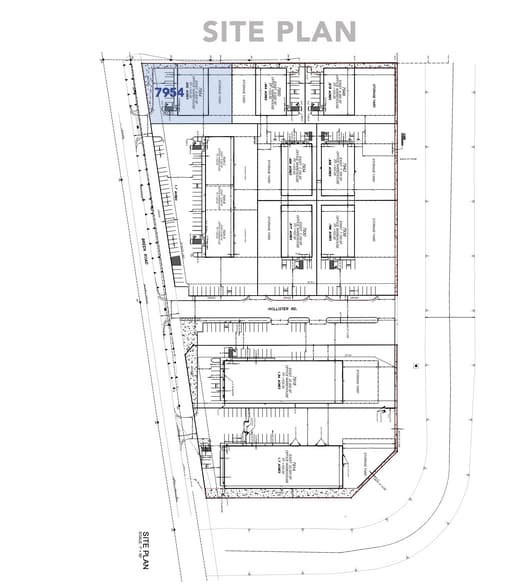
» 6,500 Total SF (1,625 SF Office/4,875 SF Warehouse) » +/-.532 Acres » 6,500 Total SF (1,625 SF Office/4,875 SF Warehouse) » +/-.532 Acres » 29’ Eave Height on the front of the building » 26’ Eave Height on the back of the building » Additional Mezzanine Storage » Power: 3 Phase / 480 Volt/ 200 AMP » Fenced Outside Yard » Visibility Off Breen Road » Great Access to Beltway 8, Hwy 249 & 290
- Includes 1,625 SF of dedicated office space
- Space is in Excellent Condition
- 2 Drive Ins
| Space | Size | Term | Rental Rate | Space Use | Build-Out | Available |
| 1st Floor - 1 | 6,500 SF | 1-10 Years | Upon Request Upon Request Upon Request Upon Request | Industrial | Full Build-Out | Now |
7954 Breen Rd - 1st Floor - 1
7954 Breen Rd - 1st Floor - 1
| Size | 6,500 SF |
| Term | 1-10 Years |
| Rental Rate | Upon Request |
| Space Use | Industrial |
| Build-Out | Full Build-Out |
| Available | Now |
» 6,500 Total SF (1,625 SF Office/4,875 SF Warehouse) » +/-.532 Acres » 6,500 Total SF (1,625 SF Office/4,875 SF Warehouse) » +/-.532 Acres » 29’ Eave Height on the front of the building » 26’ Eave Height on the back of the building » Additional Mezzanine Storage » Power: 3 Phase / 480 Volt/ 200 AMP » Fenced Outside Yard » Visibility Off Breen Road » Great Access to Beltway 8, Hwy 249 & 290
- Includes 1,625 SF of dedicated office space
- 2 Drive Ins
- Space is in Excellent Condition
Park Overview
FOR SALE OR LEASE: 6,500 SF – 7,150 SF CRANE READY OFFICE/WAREHOUSE



