Your email has been sent.
Sublease Highlights
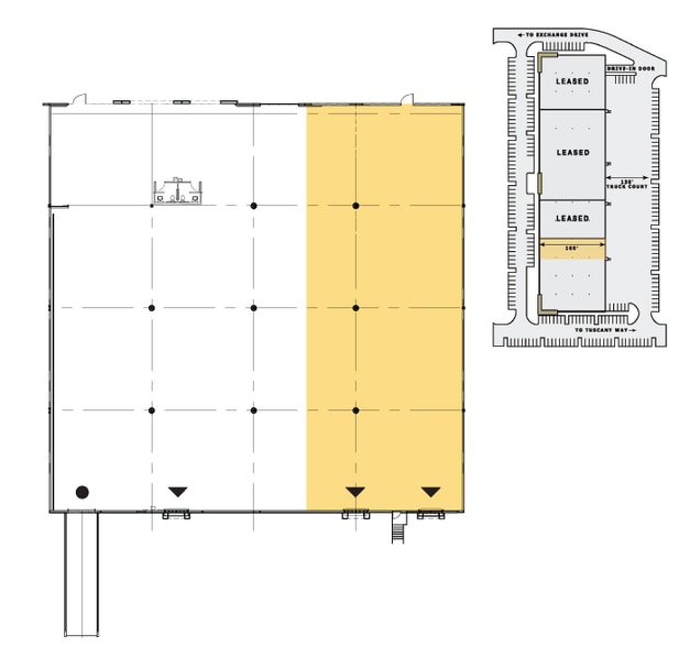
- 40' X 40' Typical Bays
- Flexible Term: 1-7 Years
- +/- 24' Clear Height
Features
All Available Space(1)
Display Rental Rate as
- Space
- Size
- Term
- Rental Rate
- Space Use
- Build-Out
- Available
Spacious 40’ x 40’ bays with 24’ clear height, dock-high loading, and ESFR compatibility. Flexible lease terms from 1-7 years with 2:1,000 parking ratio. Strategically located adjacent to Walnut Creek Business Park, near Applied Materials, Samsung, and Dell, with easy access to US 290, 183, Texas 130, and I-35. Conveniently close to Post Office and UPS hubs. Ideal for logistics, distribution, or light industrial use.
- Sublease space available from current tenant
- 2 Loading Docks
- Space is in Excellent Condition
- 100% HVAC Warehouse
| Space | Size | Term | Rental Rate | Space Use | Build-Out | Available |
| 1st Floor - 100 | 9,600 SF | Negotiable | Upon Request Upon Request Upon Request Upon Request | Industrial | Full Build-Out | Now |
1st Floor - 100
| Size |
| 9,600 SF |
| Term |
| Negotiable |
| Rental Rate |
| Upon Request Upon Request Upon Request Upon Request |
| Space Use |
| Industrial |
| Build-Out |
| Full Build-Out |
| Available |
| Now |
1st Floor - 100
| Size | 9,600 SF |
| Term | Negotiable |
| Rental Rate | Upon Request |
| Space Use | Industrial |
| Build-Out | Full Build-Out |
| Available | Now |
Spacious 40’ x 40’ bays with 24’ clear height, dock-high loading, and ESFR compatibility. Flexible lease terms from 1-7 years with 2:1,000 parking ratio. Strategically located adjacent to Walnut Creek Business Park, near Applied Materials, Samsung, and Dell, with easy access to US 290, 183, Texas 130, and I-35. Conveniently close to Post Office and UPS hubs. Ideal for logistics, distribution, or light industrial use.
- Sublease space available from current tenant
- Space is in Excellent Condition
- 2 Loading Docks
- 100% HVAC Warehouse
Property Overview
Spacious 40’ x 40’ bays with 24’ clear height, dock-high loading, and ESFR compatibility. Flexible lease terms from 1-7 years with 2:1,000 parking ratio. Strategically located adjacent to Walnut Creek Business Park, near Applied Materials, Samsung, and Dell, with easy access to US 290, 183, Texas 130, and I-35. Conveniently close to Post Office and UPS hubs. Ideal for logistics, distribution, or light industrial use.
Warehouse Facility Facts
Select Tenants
- Floor
- Tenant Name
- Industry
- 1st
- aramark
- Accommodation and Food Services
- 1st
- Legendairy Milk
- Manufacturing
- 1st
- Travis Tile Sales, Inc.
- Retailer
Presented by
Tuscany 8 | 8024 Exchange Dr
Hmm, there seems to have been an error sending your message. Please try again.
Thanks! Your message was sent.





