Your email has been sent.
East Jefferson Office Space 824 Elmwood Park Blvd 1,392 - 3,347 SF of 4-Star Office Space Available in Harahan, LA 70123



Highlights
- Beautifully landscaped atrium with ponds and walking paths.
- FREE after hours ac and heat. 24 / 7 / 365 No limitations.
- 6.31 parking ratio ( not a misprint!), the most in the area.
- Abundant parking on all four sides of the building with three separate entrances for exceptional convenience.
- Security access cards provide access after hours.
- We have updated all 30 AC /heating units in the building to high SEER energy efficient units
All Available Spaces(2)
Display Rental Rate as
- Space
- Size
- Term
- Rental Rate
- Space Use
- Condition
- Available
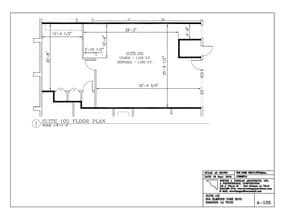
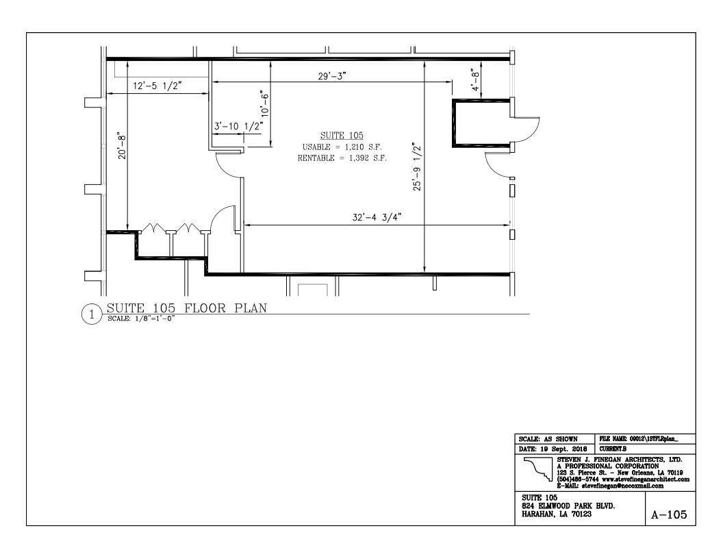
Suite 105 – Ground-Floor Professional Office Suite 105 is a professional ground-floor office floor plan suite at in Elmwood Business Park, ideal for client-facing businesses that value easy access and convenience. The suite offers a functional layout in excellent condition, with immediate accessibility for clients and staff. Key features include free after-hours HVAC, a secure card-access building, and exceptional parking (6.31 spaces per 1,000 SF)—making it easy for visitors to park close to the entrance. The quiet, well-maintained environment is well suited for medical, insurance, legal, financial, and other professional service firms. Located in Elmwood Business Park with quick access to I-10, Metairie, and New Orleans.
- Rate includes utilities, building services and property expenses
- Mostly Open Floor Plan Layout
- 1 Conference Room
- After Hours HVAC Available
- Fully Built-Out as Standard Office
- 1 Private Office
- Space is in Excellent Condition
- Move-in ready 1,392 SF office suite in Elmwood
1,955 SF Office Space | Free After-Hours HVAC | Excellent Parking | Elmwood
- Rate includes utilities, building services and property expenses
- 9 Private Offices
- Space is in Excellent Condition
- Wi-Fi Connectivity
- Closed Circuit Television Monitoring (CCTV)
- Recessed Lighting
- Accent Lighting
- Wheelchair Accessible
- Fully Built-Out as Standard Office
- 2 Conference Rooms
- Reception Area
- Security System
- Corner Space
- After Hours HVAC Available
- Atrium
- 6.3:1 parking ratio. Most in the area.
| Space | Size | Term | Rental Rate | Space Use | Condition | Available |
| 1st Floor, Ste Suite 105-1392 sqft | 1,392 SF | Negotiable | $21.50 /SF/YR $1.79 /SF/MO $29,928 /YR $2,494 /MO | Office | Full Build-Out | Now |
| 2nd Floor, Ste Suite 200 – 1,955 SF | 1,955 SF | Negotiable | $21.50 /SF/YR $1.79 /SF/MO $42,033 /YR $3,503 /MO | Office | Full Build-Out | Now |
1st Floor, Ste Suite 105-1392 sqft
| Size |
| 1,392 SF |
| Term |
| Negotiable |
| Rental Rate |
| $21.50 /SF/YR $1.79 /SF/MO $29,928 /YR $2,494 /MO |
| Space Use |
| Office |
| Condition |
| Full Build-Out |
| Available |
| Now |
2nd Floor, Ste Suite 200 – 1,955 SF
| Size |
| 1,955 SF |
| Term |
| Negotiable |
| Rental Rate |
| $21.50 /SF/YR $1.79 /SF/MO $42,033 /YR $3,503 /MO |
| Space Use |
| Office |
| Condition |
| Full Build-Out |
| Available |
| Now |
1st Floor, Ste Suite 105-1392 sqft
| Size | 1,392 SF |
| Term | Negotiable |
| Rental Rate | $21.50 /SF/YR |
| Space Use | Office |
| Condition | Full Build-Out |
| Available | Now |
Suite 105 – Ground-Floor Professional Office Suite 105 is a professional ground-floor office floor plan suite at in Elmwood Business Park, ideal for client-facing businesses that value easy access and convenience. The suite offers a functional layout in excellent condition, with immediate accessibility for clients and staff. Key features include free after-hours HVAC, a secure card-access building, and exceptional parking (6.31 spaces per 1,000 SF)—making it easy for visitors to park close to the entrance. The quiet, well-maintained environment is well suited for medical, insurance, legal, financial, and other professional service firms. Located in Elmwood Business Park with quick access to I-10, Metairie, and New Orleans.
- Rate includes utilities, building services and property expenses
- Fully Built-Out as Standard Office
- Mostly Open Floor Plan Layout
- 1 Private Office
- 1 Conference Room
- Space is in Excellent Condition
- After Hours HVAC Available
- Move-in ready 1,392 SF office suite in Elmwood
2nd Floor, Ste Suite 200 – 1,955 SF
| Size | 1,955 SF |
| Term | Negotiable |
| Rental Rate | $21.50 /SF/YR |
| Space Use | Office |
| Condition | Full Build-Out |
| Available | Now |
1,955 SF Office Space | Free After-Hours HVAC | Excellent Parking | Elmwood
- Rate includes utilities, building services and property expenses
- Fully Built-Out as Standard Office
- 9 Private Offices
- 2 Conference Rooms
- Space is in Excellent Condition
- Reception Area
- Wi-Fi Connectivity
- Security System
- Closed Circuit Television Monitoring (CCTV)
- Corner Space
- Recessed Lighting
- After Hours HVAC Available
- Accent Lighting
- Atrium
- Wheelchair Accessible
- 6.3:1 parking ratio. Most in the area.
Property Overview
Move-in ready 1,955 SF office suite in Elmwood Business Park with FREE after-hours HVAC, an exceptional parking ratio (6.31/1,000 SF), and immediate occupancy. Ideal for medical, legal, CPA, insurance, and professional service firms. Suite 200 – 1,955 SF Executive Office Suite Suite 200 is a 1,955 SF second-floor professional office suite at East Jefferson Office Space – Elmwood Business Park, designed for established or growing professional teams seeking a quiet, executive-level environment. The suite is in excellent condition and offers a flexible layout suitable for law firms, accounting practices, consulting firms, and other professional service users. Tenants benefit from free after-hours HVAC, a secure card-access building, and one of the best parking ratios in Jefferson Parish (6.31 spaces per 1,000 SF)—a significant advantage for both employees and visitors. The building features a serene interior atrium and a professional setting that supports focused work while remaining conveniently located near I-10, Metairie, and New Orleans. Pricing reflects an estimated range; final lease terms and incentives are available upon tour. Step into 824 Elmwood Park Blvd, where professional functionality meets an unexpectedly serene environment. Located in the vibrant Elmwood Business District, this modern building stands out not only for its tenant-first amenities, but also for its lush interior atrium, complete with walking paths, mature landscaping, and peaceful water features that create a calming, productive workplace for teams and clients. Why Tenants Choose 824 Elmwood Park Blvd: - Never worry about after-hours HVAC charges - Park right out front — 6.31/1,000 SF ratio - Quick I-10 access — perfect for clients/staff - Serene atrium and professional setting - Flexible layout for multiple office configurations Resort style atrium - a unique feature in the Elmwood market — the moment tenants and clients enter, they’re greeted by lush greenery, landscaped garden beds, flowing ponds, and quiet seating areas. Perfect for: A strong first impression for visitors Employee breaks Informal meetings Wellness-focused workplace culture This relaxing environment meaningfully elevates employee morale and the professional image of any business operating here. ZERO CAM or Operating Expense Pass-Throughs Predictable leasing with no CAM charges and no hidden building expenses. 24/7/365 HVAC Access at NO Charge Your business can operate whenever it needs to — nights, weekends, or holidays — without additional fees. Abundant Free Parking High parking ratios ensure easy access for employees and customers at all hours. Free Use of On-Site Conference Room Hold meetings, presentations, and client sessions without renting outside spaces. Prominent Visibility & Exceptional Access Located on one of Jefferson Parish’s busiest business corridors with quick routes to I-10, Airline Hwy, Clearview Pkwy, and the entire metro Local Ownership + Responsive Management = insures immediate and proper attention. A well-maintained building designed for long-term tenant satisfaction.
- 24 Hour Access
- Atrium
- Banking
- Controlled Access
- Conferencing Facility
- Courtyard
- Security System
- Central Heating
- Direct Elevator Exposure
- Partitioned Offices
- Plug & Play
- Reception
- Recessed Lighting
- Wi-Fi
Property Facts
Select Tenants
- Floor
- Tenant Name
- Industry
- 2nd
- Sterbcow Development Group
- Real Estate
Presented by
Sterbcow Development Group
East Jefferson Office Space | 824 Elmwood Park Blvd
Hmm, there seems to have been an error sending your message. Please try again.
Thanks! Your message was sent.




