Log In/Sign Up
Your email has been sent.
9633 Prominent Pt
Colorado Springs, CO 80901
Building G · Retail Property For Sale


Executive Summary
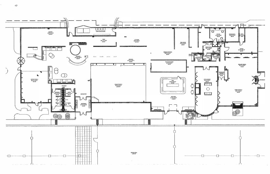
18,500 SF Available For Sale. The space is currently built out as a restaurant and event center. Other approved uses include retail showroom, medical office, brewery.
•
Space is potentially divisible.
•
Existing 8 Outdoor Pickleball courts with removableBubble.Could be converted back to parking
•
Property is currently occupied. DO NOT DISTURB Tenants.
•
Trade area features 71,949 residents with an average household income of $152,494 and 18,860 day time employee’s within a 3-mile radius of the site.
•
Space is potentially divisible.
•
Existing 8 Outdoor Pickleball courts with removableBubble.Could be converted back to parking
•
Property is currently occupied. DO NOT DISTURB Tenants.
•
Trade area features 71,949 residents with an average household income of $152,494 and 18,860 day time employee’s within a 3-mile radius of the site.
Property Facts
Sale Type
Investment or Owner User
Property Type
Retail
Property Subtype
Freestanding
Building Size
18,500 SF
Building Class
A
Year Built
2016
Percent Leased
100%
Tenancy
Multiple
Building Height
1 Story
Building FAR
0.16
Lot Size
2.58 AC
Zoning
PBC
Parking
63 Spaces (3.41 Spaces per 1,000 SF Leased)
Frontage
Amenities
- Signage
Property Taxes
| Parcel Number | 62264-02-022 | Improvements Assessment | $0 |
| Land Assessment | $0 | Total Assessment | $1,563,480 |
Property Taxes
Parcel Number
62264-02-022
Land Assessment
$0
Improvements Assessment
$0
Total Assessment
$1,563,480
1 of 3
Videos
Matterport 3D Exterior
Matterport 3D Tour
Photos
Street View
Street
Map
