Your email has been sent.
Highlights
- New Proposed Scheme to be Constructed
- This is a convenient location close to the busy High Street
- Allocated Car Parking
Space Availability (1)
Display Rental Rate as
- Space
- Size
- Term
- Rental Rate
- Type
| Space | Size | Term | Rental Rate | Rent Type | ||
| Ground | 1,098 SF | Negotiable | Upon Request Upon Request Upon Request Upon Request | TBD |
Ground
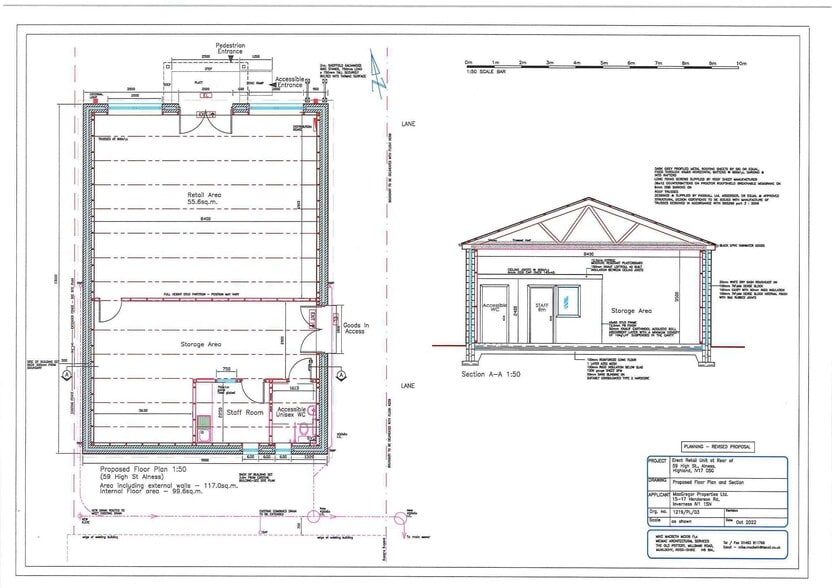
The developer intends to construct a retail/office unit on the vacant site to lease out and meet local demand.
- Use Class: Class 1A
- Located in-line with other retail
- Demised WC facilities
- To be constructed
- Storage area
- Open plan
Service Types
The rent amount and service type that the tenant (lessee) will be responsible to pay to the landlord (lessor) throughout the lease term is negotiated prior to both parties signing a lease agreement. The service type will vary depending upon the services provided. Contact the listing broker for a full understanding of any associated costs or additional expenses for each service type.
1. Fully Repairing & Insuring: All obligations for repairing and insuring the property (or their share of the property) both internally and externally.
2. Internal Repairing Only: The tenant is responsible for internal repairs only. The landlord is responsible for structural and external repairs.
3. Internal Repairing & Insuring: The tenant is responsible for internal repairs and insurance for internal parts of the property only. The landlord is responsible for structural and external repairs.
4. Negotiable or TBD: This is used when the leasing contact does not provide the service type.
Property Facts
| Total Space Available | 1,098 SF | Gross Leasable Area | 1,098 SF |
| Property Type | Retail | Year Built | 2025 |
| Property Subtype | Storefront | Construction Status | Proposed |
| Total Space Available | 1,098 SF |
| Property Type | Retail |
| Property Subtype | Storefront |
| Gross Leasable Area | 1,098 SF |
| Year Built | 2025 |
| Construction Status | Proposed |
About the Property
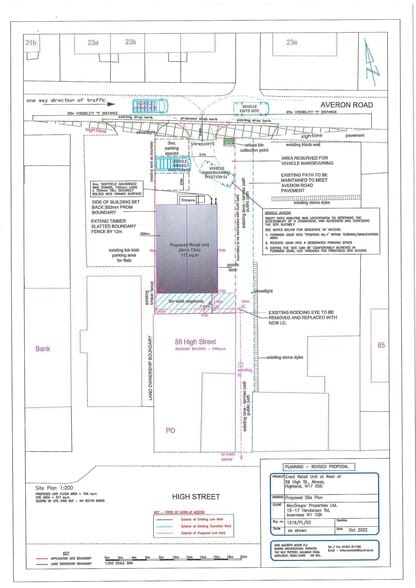
The development site for the proposed building is situated directly behind Alness High Street on Averon Road. This is a convenient location close to the busy High Street with allocated carparking. The property will benefit from a substantial catchment area and a busy nearby High Street.
- 24 Hour Access
Nearby Major Retailers
Presented by
New Development | High St
Hmm, there seems to have been an error sending your message. Please try again.
Thanks! Your message was sent.





