Your email has been sent.
Zona Pinar del Rey 6,770 SF Office Condo Unit Offered at $1,604,549 in Hortaleza, Madrid 28043

Some information has been automatically translated.
Investment Highlights
- Large space with lots of natural light
- Several parking spaces included
- Good condition
- Office in profitability
1 Unit Available
| Unit Size | 6,770 SF | Condo Use | Office |
| Price | $1,604,549 | Sale Type | Investment |
| Price Per SF | $237.01 | Parking Spaces | Yes |
| Unit Size | 6,770 SF |
| Price | $1,604,549 |
| Price Per SF | $237.01 |
| Condo Use | Office |
| Sale Type | Investment |
| Parking Spaces | Yes |
Sale Notes
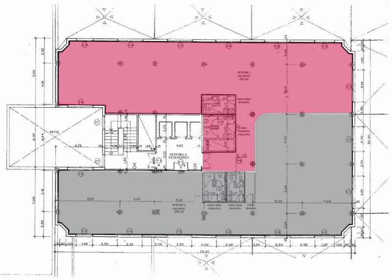
Available for rent and sale magnificent office located on the seventh floor of a building for exclusive use. The building is located next to the Pinar del Rey Park, at the confluence of several streets and in front of the Municipal Council of Hortaleza.
The office has an area of 629 m2 distributed in a large work area compartmentalized with screens, several toilets and kitchen. It has air conditioning hot/cold, technical Armstrong roof, alarm and aluminum swing-up windows with thermal break. The building also has several elevators and concierge.
It is ideal for the implementation of company headquarters, embassy, official body, among others.
Foto interior
Foto interior
Conycor Plano
Foto interior
Foto interior
Property Facts
| Total Building Size | > 50,000 SF | Floors | 8 |
| Property Type | Office (Condo) | Year Built | 1980 - 1989 |
| Building Class | C |
| Total Building Size | > 50,000 SF |
| Property Type | Office (Condo) |
| Building Class | C |
| Floors | 8 |
| Year Built | 1980 - 1989 |
Amenities
- 24 Hour Access
- Bus Line
- Metro/Subway
- Close to Public Transportation
- Doorman
- High Speed Internet Access
- Reception
- Elevator
- Instant Hot Water
- Private Bathroom
- Air Conditioning
Presented by
Zona Pinar del Rey
Hmm, there seems to have been an error sending your message. Please try again.
Thanks! Your message was sent.

