Your email has been sent.
95360 Montmagny 1,270 - 26,608 SF of Office Space Available



Some information has been automatically translated.
HIGHLIGHTS
- New building certified BREEAM Very Good and RE2020
- Integrated services: shops, car parks, bike rooms, fiber optics
- Optimal accessibility: train station 200 m away, bus, immediate proximity to Paris
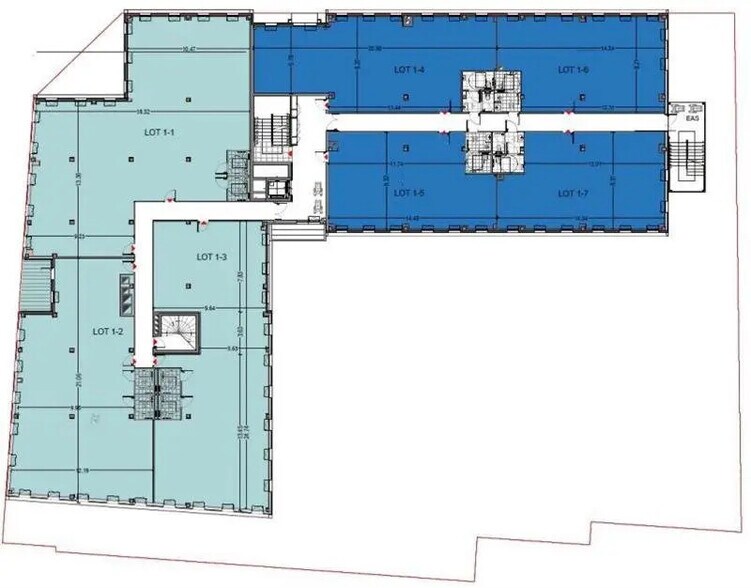
ALL AVAILABLE SPACES(14)
Display Rental Rate as
- SPACE
- SIZE
- TERM
-
RENTAL RATE
- SPACE USE
- CONDITION
- AVAILABLE
This spacious office space offers a modern and bright environment, ideal for large teams. The amenities include reversible air conditioning, fiber optics and LED lighting for optimal comfort.
- Agency Fee: 15.00% of annual rent
- Fully Built-Out as Standard Office
- Space is in Excellent Condition
- Central Heating System
- Security System
- Smoke Detector
- Security Deposit: 3 months of rent
- Finished Ceilings: 8’10”
- Can be combined with additional space(s) for up to 13,315 SF of adjacent space
- Elevator Access
- Demised WC facilities
- Wheelchair Accessible
This spacious platform is ideal for large teams, with modular spaces and high-end tertiary services. Reversible air conditioning, fiber optics and LED lighting guarantee comfort and performance.
- Agency Fee: 15.00% of annual rent
- Fully Built-Out as Standard Office
- Space is in Excellent Condition
- Central Air and Heating
- Security System
- Smoke Detector
- Security Deposit: 3 months of rent
- Finished Ceilings: 8’10”
- Can be combined with additional space(s) for up to 13,293 SF of adjacent space
- Elevator Access
- Demised WC facilities
- Wheelchair Accessible
This lot offers a comfortable surface, suitable for SMEs or growing teams. It benefits from the same high-end services and excellent accessibility.
- Agency Fee: 15.00% of annual rent
- Fully Built-Out as Standard Office
- Can be combined with additional space(s) for up to 13,315 SF of adjacent space
- Elevator Access
- DDA Compliant
- Smoke Detector
- Security Deposit: 3 months of rent
- Space is in Excellent Condition
- Central Air and Heating
- Security System
- Demised WC facilities
- Wheelchair Accessible
This lot offers a comfortable surface for SMEs or growing teams, with modern facilities and excellent accessibility.
- Agency Fee: 15.00% of annual rent
- Fully Built-Out as Standard Office
- Space is in Excellent Condition
- Central Air and Heating
- Security System
- Smoke Detector
- Security Deposit: 3 months of rent
- Finished Ceilings: 8’10”
- Can be combined with additional space(s) for up to 13,293 SF of adjacent space
- Elevator Access
- Demised WC facilities
- Wheelchair Accessible
This office combines functionality and comfort, with modern equipment and a flexible configuration.
- Agency Fee: 15.00% of annual rent
- Fully Built-Out as Standard Office
- Space is in Excellent Condition
- Central Air and Heating
- Security System
- Demised WC facilities
- Security Deposit: 3 months of rent
- Finished Ceilings: 8’10”
- Can be combined with additional space(s) for up to 13,315 SF of adjacent space
- Elevator Access
- DDA Compliant
- Wheelchair Accessible
This office combines functionality and comfort, with quality technical services and a flexible configuration.
- Agency Fee: 15.00% of annual rent
- Finished Ceilings: 8’10”
- Can be combined with additional space(s) for up to 13,293 SF of adjacent space
- Elevator Access
- Emergency Lighting
- Demised WC facilities
- Fully Built-Out as Standard Office
- Space is in Excellent Condition
- Central Air and Heating
- Security System
- DDA Compliant
- Wheelchair Accessible
This lot is ideal for intermediate teams, offering a professional environment and quality services.
- Agency Fee: 15.00% of annual rent
- Fully Built-Out as Standard Office
- Space is in Excellent Condition
- Central Air and Heating
- Security System
- Demised WC facilities
- Wheelchair Accessible
- Security Deposit: 3 months of rent
- Finished Ceilings: 8’10”
- Can be combined with additional space(s) for up to 13,315 SF of adjacent space
- Elevator Access
- DDA Compliant
- Smoke Detector
This lot is perfect for intermediate teams, offering a professional environment and modern services.
- Agency Fee: 15.00% of annual rent
- Fully Built-Out as Standard Office
- Space is in Excellent Condition
- Central Air and Heating
- Security System
- Smoke Detector
- Security Deposit: 3 months of rent
- Finished Ceilings: 8’10”
- Can be combined with additional space(s) for up to 13,293 SF of adjacent space
- Elevator Access
- Demised WC facilities
- Wheelchair Accessible
This compact desk is perfect for a small structure or project space.
- Agency Fee: 15.00% of annual rent
- Fully Built-Out as Standard Office
- Space is in Excellent Condition
- Central Heating System
- Security System
- Smoke Detector
- Security Deposit: 3 months of rent
- Finished Ceilings: 8’10”
- Can be combined with additional space(s) for up to 13,315 SF of adjacent space
- Elevator Access
- Demised WC facilities
- Wheelchair Accessible
This compact desk is ideal for a small structure or a project space, with premium equipment.
- Agency Fee: 15.00% of annual rent
- Fully Built-Out as Standard Office
- Space is in Excellent Condition
- Central Air and Heating
- Security System
- Smoke Detector
- Security Deposit: 3 months of rent
- Finished Ceilings: 8’10”
- Can be combined with additional space(s) for up to 13,293 SF of adjacent space
- Elevator Access
- Demised WC facilities
- Wheelchair Accessible
This lot offers optimized space for a small team, with comfort and connectivity.
- Agency Fee: 15.00% of annual rent
- Fully Built-Out as Standard Office
- Space is in Excellent Condition
- Central Air and Heating
- Security System
- Demised WC facilities
- Security Deposit: 3 months of rent
- Finished Ceilings: 8’10”
- Can be combined with additional space(s) for up to 13,315 SF of adjacent space
- Elevator Access
- DDA Compliant
- Wheelchair Accessible
This lot offers optimized space for a small team, with comfort and connectivity.
- Agency Fee: 15.00% of annual rent
- Fully Built-Out as Standard Office
- Space is in Excellent Condition
- Central Air and Heating
- Security System
- Smoke Detector
- Security Deposit: 3 months of rent
- Finished Ceilings: 8’10”
- Can be combined with additional space(s) for up to 13,293 SF of adjacent space
- Elevator Access
- DDA Compliant
- Wheelchair Accessible
This compact office benefits from the same premium services and excellent accessibility.
- Agency Fee: 15.00% of annual rent
- Fully Built-Out as Standard Office
- Space is in Excellent Condition
- Central Air and Heating
- Security System
- Demised WC facilities
- Security Deposit: 3 months of rent
- Finished Ceilings: 8’10”
- Can be combined with additional space(s) for up to 13,315 SF of adjacent space
- Elevator Access
- DDA Compliant
- Wheelchair Accessible
This compact office benefits from the same premium services and excellent accessibility.
- Agency Fee: 15.00% of annual rent
- Fully Built-Out as Standard Office
- Space is in Excellent Condition
- Central Air and Heating
- Security System
- Smoke Detector
- Security Deposit: 3 months of rent
- Finished Ceilings: 8’10”
- Can be combined with additional space(s) for up to 13,293 SF of adjacent space
- Elevator Access
- Demised WC facilities
- Wheelchair Accessible
| Space | Size | Term | Rental Rate | Space Use | Condition | Available |
| 1st Floor, Ste 1-1 | 3,046 SF | Negotiable | $22.68 /SF/YR HT-HC $1.89 /SF/MO HT-HC $69,080 /YR HT-HC $5,757 /MO HT-HC | Office | Full Build-Out | Now |
| 1st Floor, Ste 2-1 | 3,057 SF | Negotiable | $22.68 /SF/YR HT-HC $1.89 /SF/MO HT-HC $69,325 /YR HT-HC $5,777 /MO HT-HC | Office | Full Build-Out | Now |
| 2nd Floor, Ste 1-2 | 2,260 SF | Negotiable | $22.68 /SF/YR HT-HC $1.89 /SF/MO HT-HC $51,261 /YR HT-HC $4,272 /MO HT-HC | Office | Full Build-Out | Now |
| 2nd Floor, Ste 2-2 | 2,217 SF | Negotiable | $22.68 /SF/YR HT-HC $1.89 /SF/MO HT-HC $50,285 /YR HT-HC $4,190 /MO HT-HC | Office | Full Build-Out | Now |
| 3rd Floor, Ste 1-3 | 2,454 SF | Negotiable | $22.68 /SF/YR HT-HC $1.89 /SF/MO HT-HC $55,655 /YR HT-HC $4,638 /MO HT-HC | Office | Full Build-Out | Now |
| 3rd Floor, Ste 2-3 | 2,465 SF | Negotiable | $22.68 /SF/YR HT-HC $1.89 /SF/MO HT-HC $55,899 /YR HT-HC $4,658 /MO HT-HC | Office | Full Build-Out | Now |
| 4th Floor, Ste 1-4 | 1,701 SF | Negotiable | $24.30 /SF/YR HT-HC $2.02 /SF/MO HT-HC $41,323 /YR HT-HC $3,444 /MO HT-HC | Office | Full Build-Out | Now |
| 4th Floor, Ste 2-4 | 1,701 SF | Negotiable | $24.30 /SF/YR HT-HC $2.02 /SF/MO HT-HC $41,323 /YR HT-HC $3,444 /MO HT-HC | Office | Full Build-Out | Now |
| 5th Floor, Ste 1-5 | 1,302 SF | Negotiable | $24.30 /SF/YR HT-HC $2.02 /SF/MO HT-HC $31,646 /YR HT-HC $2,637 /MO HT-HC | Office | Full Build-Out | Now |
| 5th Floor, Ste 2-5 | 1,302 SF | Negotiable | $24.30 /SF/YR HT-HC $2.02 /SF/MO HT-HC $31,646 /YR HT-HC $2,637 /MO HT-HC | Office | Full Build-Out | Now |
| 6th Floor, Ste 1-6 | 1,270 SF | Negotiable | $24.30 /SF/YR HT-HC $2.02 /SF/MO HT-HC $30,861 /YR HT-HC $2,572 /MO HT-HC | Office | Full Build-Out | Now |
| 6th Floor, Ste 2-6 | 1,270 SF | Negotiable | $24.30 /SF/YR HT-HC $2.02 /SF/MO HT-HC $30,861 /YR HT-HC $2,572 /MO HT-HC | Office | Full Build-Out | Now |
| 7th Floor, Ste 1-7 | 1,281 SF | Negotiable | $24.30 /SF/YR HT-HC $2.02 /SF/MO HT-HC $31,123 /YR HT-HC $2,594 /MO HT-HC | Office | Full Build-Out | Now |
| 7th Floor, Ste 2-7 | 1,281 SF | Negotiable | $24.30 /SF/YR HT-HC $2.02 /SF/MO HT-HC $31,123 /YR HT-HC $2,594 /MO HT-HC | Office | Full Build-Out | Now |
1st Floor, Ste 1-1
| Size |
| 3,046 SF |
| Term |
| Negotiable |
|
Rental Rate
|
| $22.68 /SF/YR HT-HC $1.89 /SF/MO HT-HC $69,080 /YR HT-HC $5,757 /MO HT-HC |
| Space Use |
| Office |
| Condition |
| Full Build-Out |
| Available |
| Now |
1st Floor, Ste 2-1
| Size |
| 3,057 SF |
| Term |
| Negotiable |
|
Rental Rate
|
| $22.68 /SF/YR HT-HC $1.89 /SF/MO HT-HC $69,325 /YR HT-HC $5,777 /MO HT-HC |
| Space Use |
| Office |
| Condition |
| Full Build-Out |
| Available |
| Now |
2nd Floor, Ste 1-2
| Size |
| 2,260 SF |
| Term |
| Negotiable |
|
Rental Rate
|
| $22.68 /SF/YR HT-HC $1.89 /SF/MO HT-HC $51,261 /YR HT-HC $4,272 /MO HT-HC |
| Space Use |
| Office |
| Condition |
| Full Build-Out |
| Available |
| Now |
2nd Floor, Ste 2-2
| Size |
| 2,217 SF |
| Term |
| Negotiable |
|
Rental Rate
|
| $22.68 /SF/YR HT-HC $1.89 /SF/MO HT-HC $50,285 /YR HT-HC $4,190 /MO HT-HC |
| Space Use |
| Office |
| Condition |
| Full Build-Out |
| Available |
| Now |
3rd Floor, Ste 1-3
| Size |
| 2,454 SF |
| Term |
| Negotiable |
|
Rental Rate
|
| $22.68 /SF/YR HT-HC $1.89 /SF/MO HT-HC $55,655 /YR HT-HC $4,638 /MO HT-HC |
| Space Use |
| Office |
| Condition |
| Full Build-Out |
| Available |
| Now |
3rd Floor, Ste 2-3
| Size |
| 2,465 SF |
| Term |
| Negotiable |
|
Rental Rate
|
| $22.68 /SF/YR HT-HC $1.89 /SF/MO HT-HC $55,899 /YR HT-HC $4,658 /MO HT-HC |
| Space Use |
| Office |
| Condition |
| Full Build-Out |
| Available |
| Now |
4th Floor, Ste 1-4
| Size |
| 1,701 SF |
| Term |
| Negotiable |
|
Rental Rate
|
| $24.30 /SF/YR HT-HC $2.02 /SF/MO HT-HC $41,323 /YR HT-HC $3,444 /MO HT-HC |
| Space Use |
| Office |
| Condition |
| Full Build-Out |
| Available |
| Now |
4th Floor, Ste 2-4
| Size |
| 1,701 SF |
| Term |
| Negotiable |
|
Rental Rate
|
| $24.30 /SF/YR HT-HC $2.02 /SF/MO HT-HC $41,323 /YR HT-HC $3,444 /MO HT-HC |
| Space Use |
| Office |
| Condition |
| Full Build-Out |
| Available |
| Now |
5th Floor, Ste 1-5
| Size |
| 1,302 SF |
| Term |
| Negotiable |
|
Rental Rate
|
| $24.30 /SF/YR HT-HC $2.02 /SF/MO HT-HC $31,646 /YR HT-HC $2,637 /MO HT-HC |
| Space Use |
| Office |
| Condition |
| Full Build-Out |
| Available |
| Now |
5th Floor, Ste 2-5
| Size |
| 1,302 SF |
| Term |
| Negotiable |
|
Rental Rate
|
| $24.30 /SF/YR HT-HC $2.02 /SF/MO HT-HC $31,646 /YR HT-HC $2,637 /MO HT-HC |
| Space Use |
| Office |
| Condition |
| Full Build-Out |
| Available |
| Now |
6th Floor, Ste 1-6
| Size |
| 1,270 SF |
| Term |
| Negotiable |
|
Rental Rate
|
| $24.30 /SF/YR HT-HC $2.02 /SF/MO HT-HC $30,861 /YR HT-HC $2,572 /MO HT-HC |
| Space Use |
| Office |
| Condition |
| Full Build-Out |
| Available |
| Now |
6th Floor, Ste 2-6
| Size |
| 1,270 SF |
| Term |
| Negotiable |
|
Rental Rate
|
| $24.30 /SF/YR HT-HC $2.02 /SF/MO HT-HC $30,861 /YR HT-HC $2,572 /MO HT-HC |
| Space Use |
| Office |
| Condition |
| Full Build-Out |
| Available |
| Now |
7th Floor, Ste 1-7
| Size |
| 1,281 SF |
| Term |
| Negotiable |
|
Rental Rate
|
| $24.30 /SF/YR HT-HC $2.02 /SF/MO HT-HC $31,123 /YR HT-HC $2,594 /MO HT-HC |
| Space Use |
| Office |
| Condition |
| Full Build-Out |
| Available |
| Now |
7th Floor, Ste 2-7
| Size |
| 1,281 SF |
| Term |
| Negotiable |
|
Rental Rate
|
| $24.30 /SF/YR HT-HC $2.02 /SF/MO HT-HC $31,123 /YR HT-HC $2,594 /MO HT-HC |
| Space Use |
| Office |
| Condition |
| Full Build-Out |
| Available |
| Now |
1st Floor, Ste 1-1
| Size | 3,046 SF |
| Term | Negotiable |
|
Rental Rate
|
$22.68 /SF/YR HT-HC |
| Space Use | Office |
| Condition | Full Build-Out |
| Available | Now |
This spacious office space offers a modern and bright environment, ideal for large teams. The amenities include reversible air conditioning, fiber optics and LED lighting for optimal comfort.
- Agency Fee: 15.00% of annual rent
- Security Deposit: 3 months of rent
- Fully Built-Out as Standard Office
- Finished Ceilings: 8’10”
- Space is in Excellent Condition
- Can be combined with additional space(s) for up to 13,315 SF of adjacent space
- Central Heating System
- Elevator Access
- Security System
- Demised WC facilities
- Smoke Detector
- Wheelchair Accessible
1st Floor, Ste 2-1
| Size | 3,057 SF |
| Term | Negotiable |
|
Rental Rate
|
$22.68 /SF/YR HT-HC |
| Space Use | Office |
| Condition | Full Build-Out |
| Available | Now |
This spacious platform is ideal for large teams, with modular spaces and high-end tertiary services. Reversible air conditioning, fiber optics and LED lighting guarantee comfort and performance.
- Agency Fee: 15.00% of annual rent
- Security Deposit: 3 months of rent
- Fully Built-Out as Standard Office
- Finished Ceilings: 8’10”
- Space is in Excellent Condition
- Can be combined with additional space(s) for up to 13,293 SF of adjacent space
- Central Air and Heating
- Elevator Access
- Security System
- Demised WC facilities
- Smoke Detector
- Wheelchair Accessible
2nd Floor, Ste 1-2
| Size | 2,260 SF |
| Term | Negotiable |
|
Rental Rate
|
$22.68 /SF/YR HT-HC |
| Space Use | Office |
| Condition | Full Build-Out |
| Available | Now |
This lot offers a comfortable surface, suitable for SMEs or growing teams. It benefits from the same high-end services and excellent accessibility.
- Agency Fee: 15.00% of annual rent
- Security Deposit: 3 months of rent
- Fully Built-Out as Standard Office
- Space is in Excellent Condition
- Can be combined with additional space(s) for up to 13,315 SF of adjacent space
- Central Air and Heating
- Elevator Access
- Security System
- DDA Compliant
- Demised WC facilities
- Smoke Detector
- Wheelchair Accessible
2nd Floor, Ste 2-2
| Size | 2,217 SF |
| Term | Negotiable |
|
Rental Rate
|
$22.68 /SF/YR HT-HC |
| Space Use | Office |
| Condition | Full Build-Out |
| Available | Now |
This lot offers a comfortable surface for SMEs or growing teams, with modern facilities and excellent accessibility.
- Agency Fee: 15.00% of annual rent
- Security Deposit: 3 months of rent
- Fully Built-Out as Standard Office
- Finished Ceilings: 8’10”
- Space is in Excellent Condition
- Can be combined with additional space(s) for up to 13,293 SF of adjacent space
- Central Air and Heating
- Elevator Access
- Security System
- Demised WC facilities
- Smoke Detector
- Wheelchair Accessible
3rd Floor, Ste 1-3
| Size | 2,454 SF |
| Term | Negotiable |
|
Rental Rate
|
$22.68 /SF/YR HT-HC |
| Space Use | Office |
| Condition | Full Build-Out |
| Available | Now |
This office combines functionality and comfort, with modern equipment and a flexible configuration.
- Agency Fee: 15.00% of annual rent
- Security Deposit: 3 months of rent
- Fully Built-Out as Standard Office
- Finished Ceilings: 8’10”
- Space is in Excellent Condition
- Can be combined with additional space(s) for up to 13,315 SF of adjacent space
- Central Air and Heating
- Elevator Access
- Security System
- DDA Compliant
- Demised WC facilities
- Wheelchair Accessible
3rd Floor, Ste 2-3
| Size | 2,465 SF |
| Term | Negotiable |
|
Rental Rate
|
$22.68 /SF/YR HT-HC |
| Space Use | Office |
| Condition | Full Build-Out |
| Available | Now |
This office combines functionality and comfort, with quality technical services and a flexible configuration.
- Agency Fee: 15.00% of annual rent
- Fully Built-Out as Standard Office
- Finished Ceilings: 8’10”
- Space is in Excellent Condition
- Can be combined with additional space(s) for up to 13,293 SF of adjacent space
- Central Air and Heating
- Elevator Access
- Security System
- Emergency Lighting
- DDA Compliant
- Demised WC facilities
- Wheelchair Accessible
4th Floor, Ste 1-4
| Size | 1,701 SF |
| Term | Negotiable |
|
Rental Rate
|
$24.30 /SF/YR HT-HC |
| Space Use | Office |
| Condition | Full Build-Out |
| Available | Now |
This lot is ideal for intermediate teams, offering a professional environment and quality services.
- Agency Fee: 15.00% of annual rent
- Security Deposit: 3 months of rent
- Fully Built-Out as Standard Office
- Finished Ceilings: 8’10”
- Space is in Excellent Condition
- Can be combined with additional space(s) for up to 13,315 SF of adjacent space
- Central Air and Heating
- Elevator Access
- Security System
- DDA Compliant
- Demised WC facilities
- Smoke Detector
- Wheelchair Accessible
4th Floor, Ste 2-4
| Size | 1,701 SF |
| Term | Negotiable |
|
Rental Rate
|
$24.30 /SF/YR HT-HC |
| Space Use | Office |
| Condition | Full Build-Out |
| Available | Now |
This lot is perfect for intermediate teams, offering a professional environment and modern services.
- Agency Fee: 15.00% of annual rent
- Security Deposit: 3 months of rent
- Fully Built-Out as Standard Office
- Finished Ceilings: 8’10”
- Space is in Excellent Condition
- Can be combined with additional space(s) for up to 13,293 SF of adjacent space
- Central Air and Heating
- Elevator Access
- Security System
- Demised WC facilities
- Smoke Detector
- Wheelchair Accessible
5th Floor, Ste 1-5
| Size | 1,302 SF |
| Term | Negotiable |
|
Rental Rate
|
$24.30 /SF/YR HT-HC |
| Space Use | Office |
| Condition | Full Build-Out |
| Available | Now |
This compact desk is perfect for a small structure or project space.
- Agency Fee: 15.00% of annual rent
- Security Deposit: 3 months of rent
- Fully Built-Out as Standard Office
- Finished Ceilings: 8’10”
- Space is in Excellent Condition
- Can be combined with additional space(s) for up to 13,315 SF of adjacent space
- Central Heating System
- Elevator Access
- Security System
- Demised WC facilities
- Smoke Detector
- Wheelchair Accessible
5th Floor, Ste 2-5
| Size | 1,302 SF |
| Term | Negotiable |
|
Rental Rate
|
$24.30 /SF/YR HT-HC |
| Space Use | Office |
| Condition | Full Build-Out |
| Available | Now |
This compact desk is ideal for a small structure or a project space, with premium equipment.
- Agency Fee: 15.00% of annual rent
- Security Deposit: 3 months of rent
- Fully Built-Out as Standard Office
- Finished Ceilings: 8’10”
- Space is in Excellent Condition
- Can be combined with additional space(s) for up to 13,293 SF of adjacent space
- Central Air and Heating
- Elevator Access
- Security System
- Demised WC facilities
- Smoke Detector
- Wheelchair Accessible
6th Floor, Ste 1-6
| Size | 1,270 SF |
| Term | Negotiable |
|
Rental Rate
|
$24.30 /SF/YR HT-HC |
| Space Use | Office |
| Condition | Full Build-Out |
| Available | Now |
This lot offers optimized space for a small team, with comfort and connectivity.
- Agency Fee: 15.00% of annual rent
- Security Deposit: 3 months of rent
- Fully Built-Out as Standard Office
- Finished Ceilings: 8’10”
- Space is in Excellent Condition
- Can be combined with additional space(s) for up to 13,315 SF of adjacent space
- Central Air and Heating
- Elevator Access
- Security System
- DDA Compliant
- Demised WC facilities
- Wheelchair Accessible
6th Floor, Ste 2-6
| Size | 1,270 SF |
| Term | Negotiable |
|
Rental Rate
|
$24.30 /SF/YR HT-HC |
| Space Use | Office |
| Condition | Full Build-Out |
| Available | Now |
This lot offers optimized space for a small team, with comfort and connectivity.
- Agency Fee: 15.00% of annual rent
- Security Deposit: 3 months of rent
- Fully Built-Out as Standard Office
- Finished Ceilings: 8’10”
- Space is in Excellent Condition
- Can be combined with additional space(s) for up to 13,293 SF of adjacent space
- Central Air and Heating
- Elevator Access
- Security System
- DDA Compliant
- Smoke Detector
- Wheelchair Accessible
7th Floor, Ste 1-7
| Size | 1,281 SF |
| Term | Negotiable |
|
Rental Rate
|
$24.30 /SF/YR HT-HC |
| Space Use | Office |
| Condition | Full Build-Out |
| Available | Now |
This compact office benefits from the same premium services and excellent accessibility.
- Agency Fee: 15.00% of annual rent
- Security Deposit: 3 months of rent
- Fully Built-Out as Standard Office
- Finished Ceilings: 8’10”
- Space is in Excellent Condition
- Can be combined with additional space(s) for up to 13,315 SF of adjacent space
- Central Air and Heating
- Elevator Access
- Security System
- DDA Compliant
- Demised WC facilities
- Wheelchair Accessible
7th Floor, Ste 2-7
| Size | 1,281 SF |
| Term | Negotiable |
|
Rental Rate
|
$24.30 /SF/YR HT-HC |
| Space Use | Office |
| Condition | Full Build-Out |
| Available | Now |
This compact office benefits from the same premium services and excellent accessibility.
- Agency Fee: 15.00% of annual rent
- Security Deposit: 3 months of rent
- Fully Built-Out as Standard Office
- Finished Ceilings: 8’10”
- Space is in Excellent Condition
- Can be combined with additional space(s) for up to 13,293 SF of adjacent space
- Central Air and Heating
- Elevator Access
- Security System
- Demised WC facilities
- Smoke Detector
- Wheelchair Accessible
PROPERTY OVERVIEW
Located in Montmagny, just 200 meters from the Epinay-Villetaneuse train station (line H), the MY7 building is part of an urban redevelopment project and meets the most demanding environmental standards: BREEAM Very Good, RE2020, and RT2012. It offers 2,400 square meters of office space spread over two floors and 1,150 square meters of retail space on the ground floor, with accessible balconies and rooftop solar panels. The site boasts excellent accessibility (bus, train station, proximity to Paris) and provides convenient services such as parking (10 outdoor, 65 underground), bike storage, elevator, and fiber optic internet.
PROPERTY FACTS
Presented by
"95360 Montmagny"
Hmm, there seems to have been an error sending your message. Please try again.
Thanks! Your message was sent.
