Your email has been sent.
75013 Paris 936 - 479,887 SF of Industrial Space Available



Some information has been automatically translated.
HIGHLIGHTS
- Renovation of Goblins Station
- low-carbon rehabilitation
- Urban logistics hotel
FEATURES
ALL AVAILABLE SPACES(29)
Display Rental Rate as
- SPACE
- SIZE
- TERM
-
RENTAL RATE
- SPACE USE
- CONDITION
- AVAILABLE
Ideally located in the heart of Paris's 13th arrondissement, just five minutes from the ring road, offering quick access to all Parisian districts. This prime location ensures optimal connectivity, keeping you close to your clients and partners. The site is enclosed and secured 24/7 with guard posts. Two levels accessible to heavy vehicles of all sizes, light commercial vehicles, and cargo bikes. Electrical power available for vehicle charging. Floor load capacity: 3 T/m² on level 0 (Station) and 5 T/m² on level -1 (Hall). Clear heights: Up to 5 meters on level 0 (Station) and 7 meters on level -1 (Hall). Dock doors and ground-level access (depending on the units), with an average of 1 door per 700 m². 100% LED lighting and white paint on walls and ceilings. ICPE certifications 1510 and 2925. Logistics flow management tools provided. Location/Transportation: Regnault Bus (83), Porte d'Ivry (27), Porte d'Ivry-Massena (N31); Metro Olympiades (14), Porte d'Ivry (7); RER Bibliothèque François Mitterrand (C); Tram Porte d'Ivry (T3a), Porte de Choisy (T9); SNCF Bibliothèque François Mitterrand (SNCF Station); Transilien Gare d'Austerlitz (TER); A4 (Entrance), A4 (Exit Porte d'Ivry), A6a (Entrance D920), A6a, A6b (Exit), A6b (Entrance Porte d'Ivry).
- Can be combined with additional space(s) for up to 479,887 SF of adjacent space
- optimal connectivity
- last-mile logistics
- Enclosed and secured site 24/7
Ideally located in the heart of Paris's 13th arrondissement, just five minutes from the ring road, offering quick access to all Parisian districts. This prime location ensures optimal connectivity, keeping you close to your clients and partners. Enclosed and secured site with 24/7 security posts. Two levels accessible to heavy trucks of all sizes, light commercial vehicles, and cargo bikes. Electrical power available for vehicle charging. Floor load capacity: 3 T/m² on level 0 (Station) and 5 T/m² on level -1 (Hall). Clear heights: Up to 5 meters on level 0 (Station) and 7 meters on level -1 (Hall). Dock doors and ground-level access (depending on the units), with an average of one door per 700 m². 100% LED lighting and white paint on walls and ceilings. ICPE 1510 and 2925 compliance. Logistics flow management tools provided. Location/Transportation: Regnault Bus (83), Porte d'Ivry (27), Porte d'Ivry-Massena (N31). Metro: Olympiades (14), Porte d'Ivry (7). RER: Bibliothèque François Mitterrand (C). Tram: Porte d'Ivry (T3a), Porte de Choisy (T9). SNCF: Bibliothèque François Mitterrand (SNCF Station). Transilien: Gare d'Austerlitz (TER). Highways: A4 (Entrance), A4 (Exit Porte d'Ivry), A6a (Entrance D920), A6a, A6b (Exit), A6b (Entrance Porte d'Ivry).
- Can be combined with additional space(s) for up to 479,887 SF of adjacent space
- optimal connectivity
- last-mile logistics
- Enclosed and secured site 24/7
Ideally located in the heart of Paris's 13th arrondissement, just five minutes from the ring road, offering quick access to all Parisian districts. This prime location ensures optimal connectivity, keeping you close to your clients and partners. Enclosed and secured site with 24/7 security posts. Two levels accessible to heavy goods vehicles of all sizes, light commercial vehicles, and cargo bikes. Electrical power available for vehicle charging. Floor load capacity: 3 T/m² on level 0 (Station) and 5 T/m² on level -1 (Hall). Clear heights: Up to 5 meters on level 0 (Station) and 7 meters on level -1 (Hall). Dock doors and ground-level access (depending on units), with an average of 1 door per 700 m². 100% LED lighting and white paint on walls and ceilings. ICPE 1510 and 2925 compliance. Logistics flow management tools provided. Location/Transport: Regnault Bus (83), Porte d'Ivry (27), Porte d'Ivry-Massena (N31) Metro Olympiades (14), Porte d'Ivry (7) RER Bibliothèque François Mitterrand (C) Tram Porte d'Ivry (T3a), Porte de Choisy (T9) SNCF Bibliothèque-François-Mitterrand (SNCF Station) Transilien Gare d'Austerlitz (TER) A4 (Entrance), A4 (Exit Porte d'Ivry), A6a (Entrance D 920), A6a, A6b (Exit), A6b (Entrance Porte d'Ivry).
- Can be combined with additional space(s) for up to 479,887 SF of adjacent space
- optimal connectivity
- last-mile logistics
- Enclosed and secured site 24/7
Ideally located in the heart of Paris's 13th arrondissement, just five minutes from the ring road, offering quick access to all Parisian districts. This prime location ensures optimal connectivity, keeping you close to your clients and partners. The site is enclosed and secured 24/7 with guard posts. Two levels accessible to heavy vehicles of all sizes, light commercial vehicles, and cargo bikes. Electrical capacity available for vehicle charging. Floor load capacity: 3 tons/m² on level 0 (Station) and 5 tons/m² on level -1 (Hall). Clear heights: Up to 5 meters on level 0 (Station) and 7 meters on level -1 (Hall). Dock doors and ground-level access (depending on the units), with an average of 1 door per 700 m². 100% LED lighting and white paint on walls and ceilings. ICPE certifications 1510 and 2925. Logistics flow management tools provided. Location/Transportation: Bus Regnault (83), Porte d'Ivry (27), Porte d'Ivry-Massena (N31); Metro Olympiades (14), Porte d'Ivry (7); RER Bibliothèque François Mitterrand (C); Tram Porte d'Ivry (T3a), Porte de Choisy (T9); SNCF Bibliothèque François Mitterrand (SNCF station); Transilien Gare d'Austerlitz (TER); A4 (Entrance), A4 (Exit Porte d'Ivry), A6a (Entrance D920), A6a, A6b (Exit), A6b (Entrance Porte d'Ivry).
- Can be combined with additional space(s) for up to 479,887 SF of adjacent space
- Enclosed and secured site 24/7
- optimal connectivity
- last-mile logistics
Ideally located in the heart of Paris's 13th arrondissement, just five minutes from the ring road, offering quick access to all Parisian districts. This prime location ensures optimal connectivity, keeping you close to your clients and partners. The site is enclosed and secured 24/7 with guard posts. Two levels accessible to heavy vehicles of all sizes, light commercial vehicles, and cargo bikes. Electrical power available for vehicle charging. Floor load capacity: 3 T/m² on level 0 (Station) and 5 T/m² on level -1 (Hall). Clear heights: Up to 5 meters on level 0 (Station) and 7 meters on level -1 (Hall). Dock doors and ground-level access (depending on the units), with an average of 1 door per 700 m². 100% LED lighting and white paint on walls and ceilings. ICPE 1510 and 2925 compliance. Management tools for logistics flow provided. Location/Transportation: Regnault Bus (83), Porte d'Ivry (27), Porte d'Ivry-Massena (N31). Metro Olympiades (14), Porte d'Ivry (7). RER Bibliothèque François Mitterrand (C). Tram Porte d'Ivry (T3a), Porte de Choisy (T9). SNCF Bibliothèque François Mitterrand (SNCF station). Transilien Gare d'Austerlitz (TER). Access to highways: A4 (Entrance), A4 (Exit Porte d'Ivry), A6a (Entrance D920), A6a, A6b (Exit), A6b (Entrance Porte d'Ivry).
- Can be combined with additional space(s) for up to 479,887 SF of adjacent space
- last-mile logistics
- optimal connectivity
- Enclosed and secured site 24/7
Ideally located in the heart of Paris's 13th arrondissement, just five minutes from the ring road, offering quick access to all Parisian districts. This prime location ensures optimal connectivity, keeping you close to your clients and partners. Enclosed and secured site with 24/7 security posts. Two levels accessible to heavy vehicles of all sizes, light commercial vehicles, and cargo bikes. Electrical power available for vehicle charging. Floor load capacity: 3 T/m² on level 0 (Station) and 5 T/m² on level -1 (Hall). Clear heights: Up to 5 meters on level 0 (Station) and 7 meters on level -1 (Hall). Dock doors and ground-level access (depending on the units), with an average of 1 door per 700 m². 100% LED lighting and white paint on walls and ceilings. ICPE 1510 and 2925 compliance. Logistics flow management tools provided. Location/Transportation: Regnault Bus (83), Porte d'Ivry (27), Porte d'Ivry-Massena (N31). Metro: Olympiades (14), Porte d'Ivry (7). RER: Bibliothèque François Mitterrand (C). Tram: Porte d'Ivry (T3a), Porte de Choisy (T9). SNCF: Bibliothèque François Mitterrand (SNCF Station). Transilien: Gare d'Austerlitz (TER). Highways: A4 (Entrance), A4 (Exit Porte d'Ivry), A6a (Entrance D920), A6a, A6b (Exit), A6b (Entrance Porte d'Ivry).
- Can be combined with additional space(s) for up to 479,887 SF of adjacent space
- optimal connectivity
- last-mile logistics
- Enclosed and secured site 24/7
Ideally located in the heart of Paris's 13th arrondissement, just five minutes from the ring road, offering quick access to all Parisian districts. This prime location ensures optimal connectivity, keeping you close to your clients and partners. The site is enclosed and secured 24/7 with guard posts. Two levels accessible to heavy vehicles of all sizes, light commercial vehicles, and cargo bikes. Electrical power available for vehicle charging. Floor load capacity: 3 T/m² on level 0 (Station) and 5 T/m² on level -1 (Hall). Clear heights: Up to 5 meters on level 0 (Station) and 7 meters on level -1 (Hall). Dock doors and ground-level access (depending on the units), with an average of one door per 700 m². 100% LED lighting and white paint on walls and ceilings. ICPE certifications 1510 and 2925. Logistics flow management tools provided. Location/Transportation: Regnault Bus (83), Porte d'Ivry (27), Porte d'Ivry-Massena (N31); Metro Olympiades (14), Porte d'Ivry (7); RER Bibliothèque François Mitterrand (C); Tram Porte d'Ivry (T3a), Porte de Choisy (T9); SNCF Bibliothèque François Mitterrand (SNCF station); Transilien Gare d'Austerlitz (TER); A4 (Entrance), A4 (Exit Porte d'Ivry), A6a (Entrance D920), A6a, A6b (Exit), A6b (Entrance Porte d'Ivry).
- Can be combined with additional space(s) for up to 479,887 SF of adjacent space
- Enclosed and secured site 24/7
- last-mile logistics
- optimal connectivity
Ideally located in the heart of Paris's 13th arrondissement, just five minutes from the ring road, offering quick access to all Parisian districts. This prime location ensures optimal connectivity, keeping you close to your clients and partners. Enclosed and secured site with 24/7 security posts. Two levels accessible to heavy vehicles of all sizes, light commercial vehicles, and cargo bikes. Electrical power available for vehicle charging. Floor load capacity: 3 T/m² on level 0 (Station) and 5 T/m² on level -1 (Hall). Clear heights: Up to 5 meters on level 0 (Station) and 7 meters on level -1 (Hall). Dock doors and ground-level access (depending on the units), with an average of one door per 700 m². 100% LED lighting and white paint on walls and ceilings. ICPE classifications 1510 and 2925. Logistics flow management tools provided. Location/Transport: Regnault Bus (83), Porte d'Ivry (27), Porte d'Ivry-Massena (N31). Metro: Olympiades (14), Porte d'Ivry (7). RER: Bibliothèque François Mitterrand (C). Tram: Porte d'Ivry (T3a), Porte de Choisy (T9). SNCF: Bibliothèque François Mitterrand (SNCF Station). Transilien: Gare d'Austerlitz (TER). Highways: A4 (Entrance), A4 (Exit Porte d'Ivry), A6a (Entrance D920), A6a, A6b (Exit), A6b (Entrance Porte d'Ivry).
- Can be combined with additional space(s) for up to 479,887 SF of adjacent space
- optimal connectivity
- last-mile logistics
- Secure and enclosed site, 24/7.
Ideally located in the heart of Paris's 13th arrondissement, just five minutes from the ring road, offering quick access to all Parisian districts. This prime location ensures optimal connectivity, keeping you close to your clients and partners. The site is enclosed and secured 24/7 with guard posts. Two levels accessible to heavy-duty vehicles of all sizes, light commercial vehicles, and cargo bikes. Electrical power available for vehicle charging. Floor load capacity: 3 T/m² on level 0 (Station) and 5 T/m² on level -1 (Hall). Clear heights: Up to 5 meters on level 0 (Station) and 7 meters on level -1 (Hall). Dock doors and ground-level access (depending on the units), with an average of 1 door per 700 m². 100% LED lighting and white paint on walls and ceilings. ICPE certifications 1510 and 2925. Management tools for logistical flow provided. Location/Transportation: Regnault Bus (83), Porte d'Ivry (27), Porte d'Ivry-Massena (N31); Metro Olympiades (14), Porte d'Ivry (7); RER Bibliothèque François Mitterrand (C); Tram Porte d'Ivry (T3a), Porte de Choisy (T9); SNCF Bibliothèque François Mitterrand (SNCF Station); Transilien Gare d'Austerlitz (TER); A4 (Entrance), A4 (Exit Porte d'Ivry), A6a (Entrance D920), A6a, A6b (Exit), A6b (Entrance Porte d'Ivry).
- Can be combined with additional space(s) for up to 479,887 SF of adjacent space
- optimal connectivity
- last-mile logistics
- Enclosed and secured site 24/7
Ideally located in the heart of Paris's 13th arrondissement, just five minutes from the ring road, offering quick access to all Parisian districts. This prime location ensures optimal connectivity, keeping you close to your clients and partners. The site is enclosed and secured 24/7 with guard posts. Two levels accessible to heavy vehicles of all sizes, light commercial vehicles, and cargo bikes. Electrical power available for vehicle charging. Floor load capacity: 3 T/m² on level 0 (Station) and 5 T/m² on level -1 (Hall). Clear heights: Up to 5 meters on level 0 (Station) and 7 meters on level -1 (Hall). Dock doors and ground-level access (depending on the units), with an average of one door per 700 m². 100% LED lighting and white paint on walls and ceilings. ICPE certifications 1510 and 2925. Management tools for logistics flow provided. Location/Transportation: Regnault Bus (83), Porte d'Ivry (27), Porte d'Ivry-Massena (N31); Metro Olympiades (14), Porte d'Ivry (7); RER Bibliothèque François Mitterrand (C); Tram Porte d'Ivry (T3a), Porte de Choisy (T9); SNCF Bibliothèque François Mitterrand (SNCF Station); Transilien Gare d'Austerlitz (TER); A4 (Entrance), A4 (Exit Porte d'Ivry), A6a (Entrance D920), A6a, A6b (Exit), A6b (Entrance Porte d'Ivry).
- Can be combined with additional space(s) for up to 479,887 SF of adjacent space
- Enclosed and secured site 24/7
- optimal connectivity
- last-mile logistics
Ideally located in the heart of Paris's 13th arrondissement, just five minutes from the ring road, offering quick access to all Parisian districts. This prime location ensures optimal connectivity, keeping you close to your clients and partners. Enclosed and secured site with 24/7 security posts. Two levels accessible to heavy goods vehicles of all sizes, light commercial vehicles, and cargo bikes. Electrical power available for vehicle charging. Floor load capacity: 3 T/m² on level 0 (Station) and 5 T/m² on level -1 (Hall). Clear heights: Up to 5 meters on level 0 (Station) and 7 meters on level -1 (Hall). Dock doors and ground-level access (depending on units) with an average of 1 door per 700 m². 100% LED lighting and white paint on walls and ceilings. ICPE 1510 and 2925 compliance. Logistics flow management tools provided. Location/Transport: Regnault Bus (83), Porte d'Ivry (27), Porte d'Ivry-Massena (N31) Metro Olympiades (14), Porte d'Ivry (7) RER Bibliothèque François Mitterrand (C) Tram Porte d'Ivry (T3a), Porte de Choisy (T9) SNCF Bibliothèque François Mitterrand (SNCF Station) Transilien Gare d'Austerlitz (TER) A4 (Entrance), A4 (Exit Porte d'Ivry), A6a (Entrance D 920), A6a, A6b (Exit), A6b (Entrance Porte d'Ivry).
- Can be combined with additional space(s) for up to 479,887 SF of adjacent space
- Enclosed and secured site 24/7
- last-mile logistics
- optimal connectivity
Ideally located in the heart of Paris's 13th arrondissement, just five minutes from the ring road, offering quick access to all Parisian districts. This prime location ensures optimal connectivity, keeping you close to your clients and partners. The site is enclosed and secured 24/7 with guard posts. Two levels accessible to heavy vehicles of all sizes, light commercial vehicles, and cargo bikes. Electrical power available for vehicle charging. Floor load capacity: 3 T/m² on level 0 (Station) and 5 T/m² on level -1 (Hall). Clear heights: Up to 5 meters on level 0 (Station) and 7 meters on level -1 (Hall). Dock doors and ground-level access (depending on the units), with an average of 1 door per 700 m². 100% LED lighting and white paint on walls and ceilings. ICPE 1510 and 2925 compliance. Logistics flow management tools provided. Location/Transportation: Regnault Bus (83), Porte d'Ivry (27), Porte d'Ivry-Massena (N31); Metro Olympiades (14), Porte d'Ivry (7); RER Bibliothèque François Mitterrand (C); Tram Porte d'Ivry (T3a), Porte de Choisy (T9); SNCF Bibliothèque François Mitterrand (SNCF Station); Transilien Gare d'Austerlitz (TER); A4 (Entrance), A4 (Exit Porte d'Ivry), A6a (Entrance D920), A6a, A6b (Exit), A6b (Entrance Porte d'Ivry).
- Can be combined with additional space(s) for up to 479,887 SF of adjacent space
- last-mile logistics
- Enclosed and secured site 24/7
- optimal connectivity
Ideally located in the heart of Paris's 13th arrondissement, just five minutes from the ring road, offering quick access to all Parisian districts. This prime location ensures optimal connectivity, keeping you close to your clients and partners. Enclosed and secured site with 24/7 security posts. Two levels accessible to heavy vehicles of all sizes, light commercial vehicles, and cargo bikes. Electrical power available for vehicle charging. Floor load capacity: 3 T/m² on level 0 (Station) and 5 T/m² on level -1 (Hall). Clear heights: Up to 5 meters on level 0 (Station) and 7 meters on level -1 (Hall). Dock doors and ground-level access (depending on the units), with an average of 1 door per 700 m². 100% LED lighting and white paint on walls and ceilings. ICPE 1510 and 2925 compliance. Logistics flow management tools provided. Location/Transport: Regnault Bus (83), Porte d'Ivry (27), Porte d'Ivry-Massena (N31) Metro Olympiades (14), Porte d'Ivry (7) RER Bibliothèque François Mitterrand (C) Tram Porte d'Ivry (T3a), Porte de Choisy (T9) SNCF Bibliothèque-François-Mitterrand (SNCF Station) Transilien Gare d'Austerlitz (TER) A4 (Entrance), A4 (Exit Porte d'Ivry), A6a (Entrance D 920), A6a, A6b (Exit), A6b (Entrance Porte d'Ivry).
- Can be combined with additional space(s) for up to 479,887 SF of adjacent space
- Enclosed and secured site 24/7
- last-mile logistics
- optimal connectivity
Ideally located in the heart of Paris's 13th arrondissement, just five minutes from the ring road, offering quick access to all Parisian districts. This prime location ensures optimal connectivity, keeping you close to your clients and partners. Enclosed and secured site with 24/7 security posts. Two levels accessible to heavy-duty vehicles of all sizes, light commercial vehicles, and cargo bikes. Electrical power available for vehicle charging. Floor load capacity: 3 T/m² on level 0 (Station) and 5 T/m² on level -1 (Hall). Clear heights: Up to 5 meters on level 0 (Station) and 7 meters on level -1 (Hall). Dock doors and ground-level access (depending on the units), with an average of 1 door per 700 m². 100% LED lighting and white paint on walls and ceilings. ICPE 1510 and 2925 compliance. Logistics flow management tools provided. Location/Transportation: Regnault Bus (83), Porte d'Ivry (27), Porte d'Ivry-Massena (N31). Metro: Olympiades (14), Porte d'Ivry (7). RER: Bibliothèque François Mitterrand (C). Tram: Porte d'Ivry (T3a), Porte de Choisy (T9). SNCF: Bibliothèque François Mitterrand (SNCF station). Transilien: Gare d'Austerlitz (TER). Highways: A4 (Entrance), A4 (Exit Porte d'Ivry), A6a (Entrance D920), A6a, A6b (Exit), A6b (Entrance Porte d'Ivry).
- Can be combined with additional space(s) for up to 479,887 SF of adjacent space
- Secure Storage
- optimal connectivity
- Security System
- last-mile logistics
- Enclosed and secured site 24/7
Ideally located in the heart of Paris's 13th arrondissement, just five minutes from the ring road, offering quick access to all Parisian districts. This prime location ensures optimal connectivity, keeping you close to your clients and partners. The site is enclosed and secured 24/7 with guard posts. Two levels accessible to heavy vehicles of all sizes, light commercial vehicles, and cargo bikes. Electrical power available for vehicle charging. Floor load capacity: 3 T/m² on level 0 (Station) and 5 T/m² on level -1 (Hall). Clear heights: Up to 5 meters on level 0 (Station) and 7 meters on level -1 (Hall). Dock doors and ground-level access (depending on the units), with an average of 1 door per 700 m². 100% LED lighting and white paint on walls and ceilings. ICPE certifications 1510 and 2925. Management tools for logistical flow are provided. Location/Transportation: Regnault Bus (83), Porte d'Ivry (27), Porte d'Ivry-Massena (N31); Metro Olympiades (14), Porte d'Ivry (7); RER Bibliothèque François Mitterrand (C); Tram Porte d'Ivry (T3a), Porte de Choisy (T9); SNCF Bibliothèque François Mitterrand (SNCF station); Transilien Gare d'Austerlitz (TER); A4 (Entrance), A4 (Exit Porte d'Ivry), A6a (Entrance D920), A6a, A6b (Exit), A6b (Entrance Porte d'Ivry).
- Can be combined with additional space(s) for up to 479,887 SF of adjacent space
- Secure Storage
- optimal connectivity
- Security System
- last-mile logistics
- Enclosed and secured site 24/7
Ideally located in the heart of Paris's 13th arrondissement, just five minutes from the ring road, offering quick access to all Parisian districts. This prime location ensures optimal connectivity, keeping you close to your clients and partners. Enclosed and secured site with 24/7 security posts. Two levels accessible to heavy vehicles of all sizes, light commercial vehicles, and cargo bikes. Electrical power available for vehicle charging. Floor load capacity: 3 T/m² on level 0 (Station) and 5 T/m² on level -1 (Hall). Clear heights: Up to 5 meters on level 0 (Station) and 7 meters on level -1 (Hall). Dock doors and ground-level access (depending on the units), with an average of 1 door per 700 m². 100% LED lighting and white paint on walls and ceilings. ICPE 1510 and 2925 compliance. Logistics flow management tools provided. Location/Transport: Regnault Bus (83), Porte d'Ivry (27), Porte d'Ivry-Massena (N31). Metro: Olympiades (14), Porte d'Ivry (7). RER: Bibliothèque François Mitterrand (C). Tram: Porte d'Ivry (T3a), Porte de Choisy (T9). SNCF: Bibliothèque François Mitterrand (SNCF Station). Transilien: Gare d'Austerlitz (TER). Highways: A4 (Entrance), A4 (Exit Porte d'Ivry), A6a (Entrance D 920), A6a, A6b (Exit), A6b (Entrance Porte d'Ivry).
- Can be combined with additional space(s) for up to 479,887 SF of adjacent space
- Secure Storage
- Enclosed and secured site 24/7
- Security System
- last-mile logistics
- optimal connectivity
Ideally located in the heart of Paris's 13th arrondissement, just five minutes from the ring road, offering quick access to all Parisian districts. This prime location ensures optimal connectivity, keeping you close to your clients and partners. The site is enclosed and secured 24/7 with guard posts. Two levels accessible to heavy-duty vehicles of all sizes, light commercial vehicles, and cargo bikes. Electrical power available for vehicle charging. Floor load capacity: 3 T/m² on level 0 (Station) and 5 T/m² on level -1 (Hall). Clear heights: Up to 5 meters on level 0 (Station) and 7 meters on level -1 (Hall). Dock doors and ground-level access (depending on the units), with an average of 1 door per 700 m². 100% LED lighting and white paint on walls and ceilings. ICPE certifications 1510 and 2925. Management tools for logistics flow provided. Location/Transportation: Regnault Bus (83), Porte d'Ivry (27), Porte d'Ivry-Massena (N31); Metro Olympiades (14), Porte d'Ivry (7); RER Bibliothèque François Mitterrand (C); Tram Porte d'Ivry (T3a), Porte de Choisy (T9); SNCF Bibliothèque François Mitterrand (SNCF Station); Transilien Gare d'Austerlitz (TER); A4 (Entrance), A4 (Exit Porte d'Ivry), A6a (Entrance D920), A6a, A6b (Exit), A6b (Entrance Porte d'Ivry).
- Can be combined with additional space(s) for up to 479,887 SF of adjacent space
- Enclosed and secured site 24/7
- last-mile logistics
- optimal connectivity
Ideally located in the heart of Paris's 13th arrondissement, just five minutes from the ring road, offering quick access to all Parisian districts. This prime location ensures optimal connectivity, keeping you close to your clients and partners. Enclosed and secured site with 24/7 security posts. Two levels accessible to heavy-duty vehicles of all sizes, light commercial vehicles, and cargo bikes. Electrical capacity available for vehicle charging. Floor load capacity: 3 T/m² on level 0 (Station) and 5 T/m² on level -1 (Hall). Clear heights: Up to 5 meters on level 0 (Station) and 7 meters on level -1 (Hall). Dock doors and ground-level access (depending on the units), with an average of 1 door per 700 m². 100% LED lighting and white paint on walls and ceilings. ICPE certifications 1510 and 2925. Logistics flow management tools provided. Location/Transportation: Regnault Bus (83), Porte d'Ivry (27), Porte d'Ivry-Massena (N31); Metro Olympiades (14), Porte d'Ivry (7); RER Bibliothèque François Mitterrand (C); Tram Porte d'Ivry (T3a), Porte de Choisy (T9); SNCF Bibliothèque François Mitterrand (SNCF station); Transilien Gare d'Austerlitz (TER); A4 (Entrance), A4 (Exit Porte d'Ivry), A6a (Entrance D920), A6a, A6b (Exit), A6b (Entrance Porte d'Ivry).
- Can be combined with additional space(s) for up to 479,887 SF of adjacent space
- Enclosed and secured site 24/7
- last-mile logistics
- optimal connectivity
Ideally located in the heart of Paris's 13th arrondissement, just five minutes from the ring road, offering quick access to all Parisian districts. This prime location ensures optimal connectivity, keeping you close to your clients and partners. Enclosed and secured site with 24/7 security posts. Two levels accessible to heavy goods vehicles of all sizes, light commercial vehicles, and cargo bikes. Electrical power available for vehicle charging. Floor load capacity: 3 T/m² on level 0 (Station) and 5 T/m² on level -1 (Hall). Clear heights: Up to 5 meters on level 0 (Station) and 7 meters on level -1 (Hall). Dock doors and ground-level access (depending on the units), with an average of one door per 700 m². 100% LED lighting and white paint on walls and ceilings. ICPE 1510 and 2925 compliance. Logistics flow management tools provided. Location/Transport: Regnault Bus (83), Porte d'Ivry (27), Porte d'Ivry-Massena (N31). Metro: Olympiades (Line 14), Porte d'Ivry (Line 7). RER: Bibliothèque François Mitterrand (Line C). Tram: Porte d'Ivry (T3a), Porte de Choisy (T9). SNCF: Bibliothèque François Mitterrand (SNCF Station). Transilien: Gare d'Austerlitz (TER). Highways: A4 (Entrance), A4 (Exit Porte d'Ivry), A6a (Entrance D920), A6a, A6b (Exit), A6b (Entrance Porte d'Ivry).
- Can be combined with additional space(s) for up to 479,887 SF of adjacent space
- Enclosed and secured site 24/7
- last-mile logistics
- optimal connectivity
Ideally located in the heart of Paris's 13th arrondissement, just five minutes from the ring road, offering quick access to all Parisian districts. This prime location ensures optimal connectivity, keeping you close to your clients and partners. Enclosed and secured site with 24/7 security posts. Two levels accessible to heavy vehicles of all sizes, light commercial vehicles, and cargo bikes. Electrical power available for vehicle charging. Floor load capacity: 3 T/m² on level 0 (Station) and 5 T/m² on level -1 (Hall). Clear heights: Up to 5 meters on level 0 (Station) and 7 meters on level -1 (Hall). Dock doors and ground-level access (depending on units), with an average of 1 door per 700 m². 100% LED lighting and white paint on walls and ceilings. ICPE 1510 and 2925 compliance. Logistics flow management tools provided. Location/Transport: Regnault Bus (83), Porte d'Ivry (27), Porte d'Ivry-Massena (N31). Metro: Olympiades (14), Porte d'Ivry (7). RER: Bibliothèque François Mitterrand (C). Tram: Porte d'Ivry (T3a), Porte de Choisy (T9). SNCF: Bibliothèque François Mitterrand (SNCF Station). Transilien: Gare d'Austerlitz (TER). Highways: A4 (Entrance), A4 (Exit Porte d'Ivry), A6a (Entrance D 920), A6a, A6b (Exit), A6b (Entrance Porte d'Ivry).
- Can be combined with additional space(s) for up to 479,887 SF of adjacent space
- Secure Storage
- Secure and enclosed site, 24/7.
- Security System
- last-mile logistics
- optimal connectivity
Ideally located in the heart of Paris's 13th arrondissement, just five minutes from the ring road, offering quick access to all Parisian districts. This prime location ensures optimal connectivity, keeping you close to your clients and partners. Enclosed and secured site with 24/7 security posts. Two levels accessible to heavy goods vehicles of all sizes, light commercial vehicles, and cargo bikes. Electrical power available for vehicle charging. Floor load capacity: 3 T/m² on level 0 (Station) and 5 T/m² on level -1 (Hall). Clear heights: Up to 5 meters on level 0 (Station) and 7 meters on level -1 (Hall). Dock doors and ground-level access (depending on units) with an average of 1 door per 700 m². 100% LED lighting and white paint on walls and ceilings. ICPE 1510 and 2925 compliance. Logistics flow management tools provided. Location/Transport: Regnault Bus (83), Porte d'Ivry (27), Porte d'Ivry-Massena (N31). Metro: Olympiades (14), Porte d'Ivry (7). RER: Bibliothèque François Mitterrand (C). Tram: Porte d'Ivry (T3a), Porte de Choisy (T9). SNCF: Bibliothèque François Mitterrand (SNCF Station). Transilien: Gare d'Austerlitz (TER). Highways: A4 (Entrance), A4 (Exit Porte d'Ivry), A6a (Entrance D 920), A6a, A6b (Exit), A6b (Entrance Porte d'Ivry).
- Can be combined with additional space(s) for up to 479,887 SF of adjacent space
- Secure Storage
- optimal connectivity
- Security System
- last-mile logistics
- Enclosed and secured site 24/7
Ideally located in the heart of Paris's 13th arrondissement, just five minutes from the ring road, offering quick access to all Parisian districts. This prime location ensures optimal connectivity, keeping you close to your clients and partners. Enclosed and secured site with 24/7 security posts. Two levels accessible to heavy goods vehicles of all sizes, light commercial vehicles, and cargo bikes. Electrical power available for vehicle charging. Floor load capacity: 3 T/m² on level 0 (Station) and 5 T/m² on level -1 (Hall). Clear heights: Up to 5 meters on level 0 (Station) and 7 meters on level -1 (Hall). Dock doors and ground-level access (depending on units), with an average of 1 door per 700 m². 100% LED lighting and white paint on walls and ceilings. ICPE 1510 and 2925 compliance. Logistics flow management tools provided. Location/Transport: Regnault Bus (83), Porte d'Ivry (27), Porte d'Ivry-Massena (N31). Metro: Olympiades (Line 14), Porte d'Ivry (Line 7). RER: Bibliothèque François Mitterrand (Line C). Tram: Porte d'Ivry (T3a), Porte de Choisy (T9). SNCF: Bibliothèque François Mitterrand (SNCF Station). Transilien: Gare d'Austerlitz (TER). Highways: A4 (Entrance), A4 (Exit Porte d'Ivry), A6a (Entrance D 920), A6a, A6b (Exit), A6b (Entrance Porte d'Ivry).
- Can be combined with additional space(s) for up to 479,887 SF of adjacent space
- optimal connectivity
- last-mile logistics
- Enclosed and secured site 24/7
Ideally located in the heart of Paris's 13th arrondissement, just five minutes from the ring road, offering quick access to all Parisian districts. This prime location ensures optimal connectivity, keeping you close to your clients and partners. Enclosed and secured site with 24/7 security posts. Two levels accessible to heavy goods vehicles of all sizes, light commercial vehicles, and cargo bikes. Electrical power available for vehicle charging. Floor load capacity: 3 T/m² on level 0 (Station) and 5 T/m² on level -1 (Hall). Clear heights: Up to 5 meters on level 0 (Station) and 7 meters on level -1 (Hall). Dock doors and ground-level access (depending on units), with an average of 1 door per 700 m². 100% LED lighting and white paint on walls and ceilings. ICPE 1510 and 2925 compliance. Logistics flow management tools provided. Location/Transportation: - Bus: Regnault (83), Porte d'Ivry (27), Porte d'Ivry-Massena (N31) - Metro: Olympiades (Line 14), Porte d'Ivry (Line 7) - RER: Bibliothèque François Mitterrand (Line C) - Tram: Porte d'Ivry (T3a), Porte de Choisy (T9) - Train: Bibliothèque François Mitterrand (SNCF station), Gare d'Austerlitz (TER) - Highways: A4 (Entrance), A4 (Exit Porte d'Ivry), A6a (Entrance D920), A6a, A6b (Exit), A6b (Entrance Porte d'Ivry).
- Can be combined with additional space(s) for up to 479,887 SF of adjacent space
- optimal connectivity
- last-mile logistics
- Enclosed and secured site 24/7
Ideally located in the heart of Paris's 13th arrondissement, just five minutes from the ring road, offering quick access to all Parisian districts. This prime location ensures optimal connectivity, keeping you close to your clients and partners. The site is enclosed and secured 24/7 with guard posts. Two levels accessible to heavy vehicles of all sizes, light commercial vehicles, and cargo bikes. Electrical power available for vehicle charging. Floor load capacity: 3 T/m² on level 0 (Station) and 5 T/m² on level -1 (Hall). Clear heights: Up to 5 meters on level 0 (Station) and 7 meters on level -1 (Hall). Dock doors and ground-level access (depending on the units), with an average of 1 door per 700 m². 100% LED lighting and white paint on walls and ceilings. ICPE 1510 and 2925 compliance. Logistics flow management tools provided. Location/Transportation: Regnault Bus (83), Porte d'Ivry (27), Porte d'Ivry-Massena (N31). Metro: Olympiades (14), Porte d'Ivry (7). RER: Bibliothèque François Mitterrand (C). Tram: Porte d'Ivry (T3a), Porte de Choisy (T9). SNCF: Bibliothèque François Mitterrand (SNCF Station). Transilien: Gare d'Austerlitz (TER). Highways: A4 (Entrance), A4 (Exit Porte d'Ivry), A6a (Entrance D 920), A6a, A6b (Exit), A6b (Entrance Porte d'Ivry).
- Can be combined with additional space(s) for up to 479,887 SF of adjacent space
- Enclosed and secured site 24/7
- last-mile logistics
- optimal connectivity
Ideally located in the heart of Paris's 13th arrondissement, just five minutes from the ring road, offering quick access to all Parisian districts. This prime location ensures optimal connectivity, keeping you close to your clients and partners. Enclosed and secured site with 24/7 security posts. Two levels accessible to heavy goods vehicles of all sizes, light commercial vehicles, and cargo bikes. Electrical power available for vehicle charging. Floor load capacity: 3 T/m² on level 0 (Station) and 5 T/m² on level -1 (Hall). Clear heights: Up to 5 meters on level 0 (Station) and 7 meters on level -1 (Hall). Dock doors and ground-level access (depending on the units), with an average of 1 door per 700 m². 100% LED lighting and white paint on walls and ceilings. ICPE 1510 and 2925 compliance. Logistics flow management tools provided. Location/Transport: Regnault Bus (83), Porte d'Ivry (27), Porte d'Ivry-Massena (N31). Metro: Olympiades (Line 14), Porte d'Ivry (Line 7). RER: Bibliothèque François Mitterrand (Line C). Tram: Porte d'Ivry (T3a), Porte de Choisy (T9). SNCF: Bibliothèque François Mitterrand (SNCF Station). Transilien: Gare d'Austerlitz (TER). Highways: A4 (Entrance), A4 (Exit Porte d'Ivry), A6a (Entrance D920), A6a, A6b (Exit), A6b (Entrance Porte d'Ivry).
- Can be combined with additional space(s) for up to 479,887 SF of adjacent space
- optimal connectivity
- last-mile logistics
- Enclosed and secured site 24/7
Ideally located in the heart of Paris's 13th arrondissement, just five minutes from the ring road, offering quick access to all Parisian districts. This prime location ensures optimal connectivity, keeping you close to your clients and partners. The site is enclosed and secured 24/7 with guard posts. Two levels accessible to heavy vehicles of all sizes, light commercial vehicles, and cargo bikes. Electrical power available for vehicle charging. Floor load capacity: 3 T/m² on level 0 (Station) and 5 T/m² on level -1 (Hall). Clear heights: Up to 5 meters on level 0 (Station) and 7 meters on level -1 (Hall). Dock doors and ground-level access (depending on the units), with an average of 1 door per 700 m². 100% LED lighting and white paint on walls and ceilings. ICPE certifications 1510 and 2925. Logistics flow management tools provided. Location/Transportation: Regnault Bus (83), Porte d'Ivry (27), Porte d'Ivry-Massena (N31); Metro Olympiades (14), Porte d'Ivry (7); RER Bibliothèque François Mitterrand (C); Tram Porte d'Ivry (T3a), Porte de Choisy (T9); SNCF Bibliothèque François Mitterrand (SNCF station); Transilien Gare d'Austerlitz (TER); A4 (Entrance), A4 (Exit Porte d'Ivry), A6a (Entrance D920), A6a, A6b (Exit), A6b (Entrance Porte d'Ivry).
- Can be combined with additional space(s) for up to 479,887 SF of adjacent space
- Secure Storage
- optimal connectivity
- Security System
- last-mile logistics
- Enclosed and secured site 24/7
Ideally located in the heart of Paris's 13th arrondissement, just five minutes from the ring road, offering quick access to all Parisian districts. This prime location ensures optimal connectivity, keeping you close to your clients and partners. The site is enclosed and secured 24/7 with guard posts. Two levels accessible to heavy vehicles of all sizes, light commercial vehicles, and cargo bikes. Electrical power available for vehicle charging. Floor load capacity: 3 T/m² on level 0 (Station) and 5 T/m² on level -1 (Hall). Clear heights: Up to 5 meters on level 0 (Station) and 7 meters on level -1 (Hall). Dock doors and ground-level access (depending on the units), with an average of 1 door per 700 m². 100% LED lighting and white paint on walls and ceilings. ICPE 1510 and 2925 compliance. Logistics flow management tools provided. Location/Transport: Regnault Bus (83), Porte d'Ivry (27), Porte d'Ivry-Massena (N31). Metro: Olympiades (14), Porte d'Ivry (7). RER: Bibliothèque François Mitterrand (C). Tram: Porte d'Ivry (T3a), Porte de Choisy (T9). SNCF: Bibliothèque François Mitterrand (SNCF Station). Transilien: Gare d'Austerlitz (TER). Highways: A4 (Entrance), A4 (Exit Porte d'Ivry), A6a (Entrance D 920), A6a, A6b (Exit), A6b (Entrance Porte d'Ivry).
- Can be combined with additional space(s) for up to 479,887 SF of adjacent space
- Enclosed and secured site 24/7
- last-mile logistics
- optimal connectivity
Ideally located in the heart of Paris's 13th arrondissement, just five minutes from the ring road, offering quick access to all Parisian districts. This prime location ensures optimal connectivity, keeping you close to your clients and partners. Enclosed and secured site with 24/7 security guards. Two levels accessible to heavy trucks of all sizes, light commercial vehicles, and cargo bikes. Electrical power available for vehicle charging. Floor load capacity: 3 T/m² on level 0 (Station) and 5 T/m² on level -1 (Hall). Clear heights: Up to 5 meters on level 0 (Station) and 7 meters on level -1 (Hall). Dock doors and ground-level access (depending on units), with an average of 1 door per 700 m². 100% LED lighting and white paint on walls and ceilings. ICPE 1510 and 2925 compliance. Logistics flow management tools provided. Location/Transportation: - Bus: Regnault (83), Porte d'Ivry (27), Porte d'Ivry-Massena (N31) - Metro: Olympiades (Line 14), Porte d'Ivry (Line 7) - RER: Bibliothèque François Mitterrand (Line C) - Tram: Porte d'Ivry (T3a), Porte de Choisy (T9) - Train: Bibliothèque François Mitterrand (SNCF station), Gare d'Austerlitz (TER) - Highways: A4 (Entrance), A4 (Exit Porte d'Ivry), A6a (Entrance D 920), A6a, A6b (Exit), A6b (Entrance Porte d'Ivry).
- Can be combined with additional space(s) for up to 479,887 SF of adjacent space
- Secure Storage
- optimal connectivity
- Security System
- last-mile logistics
- Secure and enclosed site, 24/7.
Ideally located in the heart of Paris's 13th arrondissement, just five minutes from the ring road, offering quick access to all Parisian districts. This prime location ensures optimal connectivity, keeping you close to your clients and partners. Enclosed and secured site with 24/7 security posts. Two levels accessible to heavy vehicles of all sizes, light commercial vehicles, and cargo bikes. Electrical power available for vehicle charging. Floor load capacity: 3 T/m² on level 0 (Station) and 5 T/m² on level -1 (Hall). Clear heights: Up to 5 meters on level 0 (Station) and 7 meters on level -1 (Hall). Dock doors and ground-level access (depending on units), with an average of 1 door per 700 m². 100% LED lighting and white paint on walls and ceilings. ICPE 1510 and 2925 compliance. Logistics flow management tools provided. Location/Transportation: - Bus: Regnault (83), Porte d'Ivry (27), Porte d'Ivry-Massena (N31) - Metro: Olympiades (Line 14), Porte d'Ivry (Line 7) - RER: Bibliothèque François Mitterrand (Line C) - Tram: Porte d'Ivry (T3a), Porte de Choisy (T9) - Train: Bibliothèque François Mitterrand (SNCF station), Gare d'Austerlitz (TER) - Highways: A4 (Entrance), A4 (Exit Porte d'Ivry), A6a (Entrance D920), A6a, A6b (Exit), A6b (Entrance Porte d'Ivry).
- Can be combined with additional space(s) for up to 479,887 SF of adjacent space
- Secure Storage
- optimal connectivity
- Security System
- last-mile logistics
- Enclosed and secured site 24/7
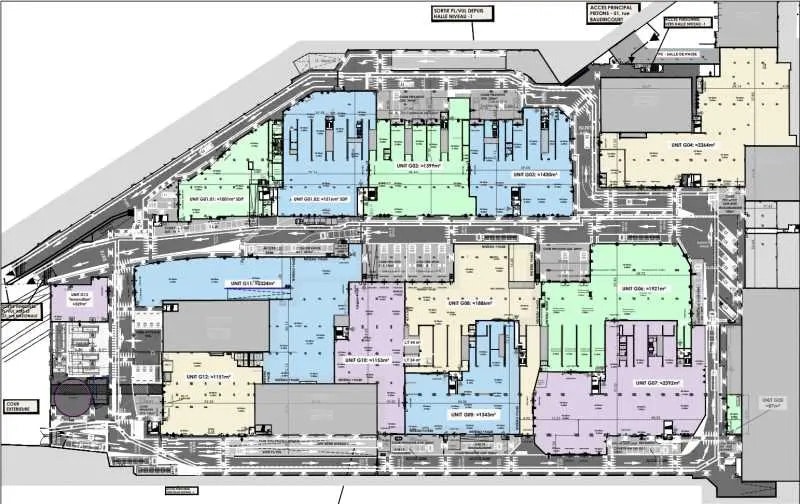
| Space | Size | Term | Rental Rate | Space Use | Condition | Available |
| Ste H01.01 | 26,555 SF | Negotiable | $26.18 /SF/YR HT-HC $2.18 /SF/MO HT-HC $695,288 /YR HT-HC $57,941 /MO HT-HC | Industrial | - | Now |
| Ste H01.02 | 16,092 SF | Negotiable | $26.18 /SF/YR HT-HC $2.18 /SF/MO HT-HC $421,346 /YR HT-HC $35,112 /MO HT-HC | Industrial | - | Now |
| Ste H01.03 | 20,344 SF | Negotiable | $26.18 /SF/YR HT-HC $2.18 /SF/MO HT-HC $532,671 /YR HT-HC $44,389 /MO HT-HC | Industrial | - | Now |
| Ste H01.04 | 23,831 SF | Negotiable | $26.18 /SF/YR HT-HC $2.18 /SF/MO HT-HC $623,986 /YR HT-HC $51,999 /MO HT-HC | Industrial | - | Now |
| Ste H02 | 26,113 SF | Negotiable | $26.18 /SF/YR HT-HC $2.18 /SF/MO HT-HC $683,732 /YR HT-HC $56,978 /MO HT-HC | Industrial | - | Now |
| Ste H03 | 22,938 SF | Negotiable | $26.18 /SF/YR HT-HC $2.18 /SF/MO HT-HC $600,594 /YR HT-HC $50,049 /MO HT-HC | Industrial | - | Now |
| Ste H04 | 13,821 SF | Negotiable | $26.18 /SF/YR HT-HC $2.18 /SF/MO HT-HC $361,878 /YR HT-HC $30,157 /MO HT-HC | Industrial | - | Now |
| Ste H05 | 17,104 SF | Negotiable | $26.18 /SF/YR HT-HC $2.18 /SF/MO HT-HC $447,838 /YR HT-HC $37,320 /MO HT-HC | Industrial | - | Now |
| Ste H06 | 12,615 SF | Negotiable | $26.18 /SF/YR HT-HC $2.18 /SF/MO HT-HC $330,312 /YR HT-HC $27,526 /MO HT-HC | Industrial | - | Now |
| Ste H07 | 25,360 SF | Negotiable | $26.18 /SF/YR HT-HC $2.18 /SF/MO HT-HC $664,004 /YR HT-HC $55,334 /MO HT-HC | Industrial | - | Now |
| Ste H08.01 | 22,733 SF | Negotiable | $26.18 /SF/YR HT-HC $2.18 /SF/MO HT-HC $595,239 /YR HT-HC $49,603 /MO HT-HC | Industrial | - | Now |
| Ste H08.02 | 23,562 SF | Negotiable | $26.18 /SF/YR HT-HC $2.18 /SF/MO HT-HC $616,940 /YR HT-HC $51,412 /MO HT-HC | Industrial | - | Now |
| Ste H09 | 6,943 SF | Negotiable | $26.18 /SF/YR HT-HC $2.18 /SF/MO HT-HC $181,785 /YR HT-HC $15,149 /MO HT-HC | Industrial | - | Now |
| Ste H10 | 2,519 SF | Negotiable | $26.18 /SF/YR HT-HC $2.18 /SF/MO HT-HC $65,950 /YR HT-HC $5,496 /MO HT-HC | Industrial | - | Now |
| Ste H11 | 1,970 SF | Negotiable | $26.18 /SF/YR HT-HC $2.18 /SF/MO HT-HC $51,576 /YR HT-HC $4,298 /MO HT-HC | Industrial | - | Now |
| Ground - Gare Niveau 0 G01 | 10,775 SF | Negotiable | $26.18 /SF/YR HT-HC $2.18 /SF/MO HT-HC $282,118 /YR HT-HC $23,510 /MO HT-HC | Industrial | - | Now |
| Ground - Gare Niveau 0 G01.02 | 16,318 SF | Negotiable | $26.18 /SF/YR HT-HC $2.18 /SF/MO HT-HC $427,264 /YR HT-HC $35,605 /MO HT-HC | Industrial | - | Now |
| Ground - Gare Niveau 0 G02 | 15,059 SF | Negotiable | $26.18 /SF/YR HT-HC $2.18 /SF/MO HT-HC $394,289 /YR HT-HC $32,857 /MO HT-HC | Industrial | - | Now |
| Ground - Gare Niveau 0 G03 | 15,392 SF | Negotiable | $26.18 /SF/YR HT-HC $2.18 /SF/MO HT-HC $403,026 /YR HT-HC $33,586 /MO HT-HC | Industrial | - | Now |
| Ground - Gare Niveau 0 G04 | 24,369 SF | Negotiable | $26.18 /SF/YR HT-HC $2.18 /SF/MO HT-HC $638,078 /YR HT-HC $53,173 /MO HT-HC | Industrial | - | Now |
| Ground - Gare niveau 0 G05 | 936 SF | Negotiable | $26.18 /SF/YR HT-HC $2.18 /SF/MO HT-HC $24,520 /YR HT-HC $2,043 /MO HT-HC | Industrial | - | Now |
| Ground - Gare Niveau 0 G06 | 20,677 SF | Negotiable | $26.18 /SF/YR HT-HC $2.18 /SF/MO HT-HC $541,408 /YR HT-HC $45,117 /MO HT-HC | Industrial | - | Now |
| Ground - Gare Niveau 0 G07 | 25,747 SF | Negotiable | $26.18 /SF/YR HT-HC $2.18 /SF/MO HT-HC $674,150 /YR HT-HC $56,179 /MO HT-HC | Industrial | - | Now |
| Ground - Gare Niveau 0 G08 | 20,301 SF | Negotiable | $26.18 /SF/YR HT-HC $2.18 /SF/MO HT-HC $531,544 /YR HT-HC $44,295 /MO HT-HC | Industrial | - | Now |
| Ground - Gare Niveau 0 G09 | 14,456 SF | Negotiable | $26.18 /SF/YR HT-HC $2.18 /SF/MO HT-HC $378,507 /YR HT-HC $31,542 /MO HT-HC | Industrial | - | Now |
| Ground - Gare Niveau 0 G10 | 12,411 SF | Negotiable | $26.18 /SF/YR HT-HC $2.18 /SF/MO HT-HC $324,958 /YR HT-HC $27,080 /MO HT-HC | Industrial | - | Now |
| Ground - Gare Niveau 0 G11 | 25,015 SF | Negotiable | $26.18 /SF/YR HT-HC $2.18 /SF/MO HT-HC $654,988 /YR HT-HC $54,582 /MO HT-HC | Industrial | - | Now |
| Ground - Gare Niveau 0 G12 | 12,389 SF | Negotiable | $26.18 /SF/YR HT-HC $2.18 /SF/MO HT-HC $324,394 /YR HT-HC $27,033 /MO HT-HC | Industrial | - | Now |
| Ground - Gare Niveau 0 G13 | 3,541 SF | Negotiable | $26.18 /SF/YR HT-HC $2.18 /SF/MO HT-HC $92,724 /YR HT-HC $7,727 /MO HT-HC | Industrial | - | Now |
Ste H01.01
| Size |
| 26,555 SF |
| Term |
| Negotiable |
|
Rental Rate
|
| $26.18 /SF/YR HT-HC $2.18 /SF/MO HT-HC $695,288 /YR HT-HC $57,941 /MO HT-HC |
| Space Use |
| Industrial |
| Condition |
| - |
| Available |
| Now |
Ste H01.02
| Size |
| 16,092 SF |
| Term |
| Negotiable |
|
Rental Rate
|
| $26.18 /SF/YR HT-HC $2.18 /SF/MO HT-HC $421,346 /YR HT-HC $35,112 /MO HT-HC |
| Space Use |
| Industrial |
| Condition |
| - |
| Available |
| Now |
Ste H01.03
| Size |
| 20,344 SF |
| Term |
| Negotiable |
|
Rental Rate
|
| $26.18 /SF/YR HT-HC $2.18 /SF/MO HT-HC $532,671 /YR HT-HC $44,389 /MO HT-HC |
| Space Use |
| Industrial |
| Condition |
| - |
| Available |
| Now |
Ste H01.04
| Size |
| 23,831 SF |
| Term |
| Negotiable |
|
Rental Rate
|
| $26.18 /SF/YR HT-HC $2.18 /SF/MO HT-HC $623,986 /YR HT-HC $51,999 /MO HT-HC |
| Space Use |
| Industrial |
| Condition |
| - |
| Available |
| Now |
Ste H02
| Size |
| 26,113 SF |
| Term |
| Negotiable |
|
Rental Rate
|
| $26.18 /SF/YR HT-HC $2.18 /SF/MO HT-HC $683,732 /YR HT-HC $56,978 /MO HT-HC |
| Space Use |
| Industrial |
| Condition |
| - |
| Available |
| Now |
Ste H03
| Size |
| 22,938 SF |
| Term |
| Negotiable |
|
Rental Rate
|
| $26.18 /SF/YR HT-HC $2.18 /SF/MO HT-HC $600,594 /YR HT-HC $50,049 /MO HT-HC |
| Space Use |
| Industrial |
| Condition |
| - |
| Available |
| Now |
Ste H04
| Size |
| 13,821 SF |
| Term |
| Negotiable |
|
Rental Rate
|
| $26.18 /SF/YR HT-HC $2.18 /SF/MO HT-HC $361,878 /YR HT-HC $30,157 /MO HT-HC |
| Space Use |
| Industrial |
| Condition |
| - |
| Available |
| Now |
Ste H05
| Size |
| 17,104 SF |
| Term |
| Negotiable |
|
Rental Rate
|
| $26.18 /SF/YR HT-HC $2.18 /SF/MO HT-HC $447,838 /YR HT-HC $37,320 /MO HT-HC |
| Space Use |
| Industrial |
| Condition |
| - |
| Available |
| Now |
Ste H06
| Size |
| 12,615 SF |
| Term |
| Negotiable |
|
Rental Rate
|
| $26.18 /SF/YR HT-HC $2.18 /SF/MO HT-HC $330,312 /YR HT-HC $27,526 /MO HT-HC |
| Space Use |
| Industrial |
| Condition |
| - |
| Available |
| Now |
Ste H07
| Size |
| 25,360 SF |
| Term |
| Negotiable |
|
Rental Rate
|
| $26.18 /SF/YR HT-HC $2.18 /SF/MO HT-HC $664,004 /YR HT-HC $55,334 /MO HT-HC |
| Space Use |
| Industrial |
| Condition |
| - |
| Available |
| Now |
Ste H08.01
| Size |
| 22,733 SF |
| Term |
| Negotiable |
|
Rental Rate
|
| $26.18 /SF/YR HT-HC $2.18 /SF/MO HT-HC $595,239 /YR HT-HC $49,603 /MO HT-HC |
| Space Use |
| Industrial |
| Condition |
| - |
| Available |
| Now |
Ste H08.02
| Size |
| 23,562 SF |
| Term |
| Negotiable |
|
Rental Rate
|
| $26.18 /SF/YR HT-HC $2.18 /SF/MO HT-HC $616,940 /YR HT-HC $51,412 /MO HT-HC |
| Space Use |
| Industrial |
| Condition |
| - |
| Available |
| Now |
Ste H09
| Size |
| 6,943 SF |
| Term |
| Negotiable |
|
Rental Rate
|
| $26.18 /SF/YR HT-HC $2.18 /SF/MO HT-HC $181,785 /YR HT-HC $15,149 /MO HT-HC |
| Space Use |
| Industrial |
| Condition |
| - |
| Available |
| Now |
Ste H10
| Size |
| 2,519 SF |
| Term |
| Negotiable |
|
Rental Rate
|
| $26.18 /SF/YR HT-HC $2.18 /SF/MO HT-HC $65,950 /YR HT-HC $5,496 /MO HT-HC |
| Space Use |
| Industrial |
| Condition |
| - |
| Available |
| Now |
Ste H11
| Size |
| 1,970 SF |
| Term |
| Negotiable |
|
Rental Rate
|
| $26.18 /SF/YR HT-HC $2.18 /SF/MO HT-HC $51,576 /YR HT-HC $4,298 /MO HT-HC |
| Space Use |
| Industrial |
| Condition |
| - |
| Available |
| Now |
Ground - Gare Niveau 0 G01
| Size |
| 10,775 SF |
| Term |
| Negotiable |
|
Rental Rate
|
| $26.18 /SF/YR HT-HC $2.18 /SF/MO HT-HC $282,118 /YR HT-HC $23,510 /MO HT-HC |
| Space Use |
| Industrial |
| Condition |
| - |
| Available |
| Now |
Ground - Gare Niveau 0 G01.02
| Size |
| 16,318 SF |
| Term |
| Negotiable |
|
Rental Rate
|
| $26.18 /SF/YR HT-HC $2.18 /SF/MO HT-HC $427,264 /YR HT-HC $35,605 /MO HT-HC |
| Space Use |
| Industrial |
| Condition |
| - |
| Available |
| Now |
Ground - Gare Niveau 0 G02
| Size |
| 15,059 SF |
| Term |
| Negotiable |
|
Rental Rate
|
| $26.18 /SF/YR HT-HC $2.18 /SF/MO HT-HC $394,289 /YR HT-HC $32,857 /MO HT-HC |
| Space Use |
| Industrial |
| Condition |
| - |
| Available |
| Now |
Ground - Gare Niveau 0 G03
| Size |
| 15,392 SF |
| Term |
| Negotiable |
|
Rental Rate
|
| $26.18 /SF/YR HT-HC $2.18 /SF/MO HT-HC $403,026 /YR HT-HC $33,586 /MO HT-HC |
| Space Use |
| Industrial |
| Condition |
| - |
| Available |
| Now |
Ground - Gare Niveau 0 G04
| Size |
| 24,369 SF |
| Term |
| Negotiable |
|
Rental Rate
|
| $26.18 /SF/YR HT-HC $2.18 /SF/MO HT-HC $638,078 /YR HT-HC $53,173 /MO HT-HC |
| Space Use |
| Industrial |
| Condition |
| - |
| Available |
| Now |
Ground - Gare niveau 0 G05
| Size |
| 936 SF |
| Term |
| Negotiable |
|
Rental Rate
|
| $26.18 /SF/YR HT-HC $2.18 /SF/MO HT-HC $24,520 /YR HT-HC $2,043 /MO HT-HC |
| Space Use |
| Industrial |
| Condition |
| - |
| Available |
| Now |
Ground - Gare Niveau 0 G06
| Size |
| 20,677 SF |
| Term |
| Negotiable |
|
Rental Rate
|
| $26.18 /SF/YR HT-HC $2.18 /SF/MO HT-HC $541,408 /YR HT-HC $45,117 /MO HT-HC |
| Space Use |
| Industrial |
| Condition |
| - |
| Available |
| Now |
Ground - Gare Niveau 0 G07
| Size |
| 25,747 SF |
| Term |
| Negotiable |
|
Rental Rate
|
| $26.18 /SF/YR HT-HC $2.18 /SF/MO HT-HC $674,150 /YR HT-HC $56,179 /MO HT-HC |
| Space Use |
| Industrial |
| Condition |
| - |
| Available |
| Now |
Ground - Gare Niveau 0 G08
| Size |
| 20,301 SF |
| Term |
| Negotiable |
|
Rental Rate
|
| $26.18 /SF/YR HT-HC $2.18 /SF/MO HT-HC $531,544 /YR HT-HC $44,295 /MO HT-HC |
| Space Use |
| Industrial |
| Condition |
| - |
| Available |
| Now |
Ground - Gare Niveau 0 G09
| Size |
| 14,456 SF |
| Term |
| Negotiable |
|
Rental Rate
|
| $26.18 /SF/YR HT-HC $2.18 /SF/MO HT-HC $378,507 /YR HT-HC $31,542 /MO HT-HC |
| Space Use |
| Industrial |
| Condition |
| - |
| Available |
| Now |
Ground - Gare Niveau 0 G10
| Size |
| 12,411 SF |
| Term |
| Negotiable |
|
Rental Rate
|
| $26.18 /SF/YR HT-HC $2.18 /SF/MO HT-HC $324,958 /YR HT-HC $27,080 /MO HT-HC |
| Space Use |
| Industrial |
| Condition |
| - |
| Available |
| Now |
Ground - Gare Niveau 0 G11
| Size |
| 25,015 SF |
| Term |
| Negotiable |
|
Rental Rate
|
| $26.18 /SF/YR HT-HC $2.18 /SF/MO HT-HC $654,988 /YR HT-HC $54,582 /MO HT-HC |
| Space Use |
| Industrial |
| Condition |
| - |
| Available |
| Now |
Ground - Gare Niveau 0 G12
| Size |
| 12,389 SF |
| Term |
| Negotiable |
|
Rental Rate
|
| $26.18 /SF/YR HT-HC $2.18 /SF/MO HT-HC $324,394 /YR HT-HC $27,033 /MO HT-HC |
| Space Use |
| Industrial |
| Condition |
| - |
| Available |
| Now |
Ground - Gare Niveau 0 G13
| Size |
| 3,541 SF |
| Term |
| Negotiable |
|
Rental Rate
|
| $26.18 /SF/YR HT-HC $2.18 /SF/MO HT-HC $92,724 /YR HT-HC $7,727 /MO HT-HC |
| Space Use |
| Industrial |
| Condition |
| - |
| Available |
| Now |
Ste H01.01
| Size | 26,555 SF |
| Term | Negotiable |
|
Rental Rate
|
$26.18 /SF/YR HT-HC |
| Space Use | Industrial |
| Condition | - |
| Available | Now |
Ideally located in the heart of Paris's 13th arrondissement, just five minutes from the ring road, offering quick access to all Parisian districts. This prime location ensures optimal connectivity, keeping you close to your clients and partners. The site is enclosed and secured 24/7 with guard posts. Two levels accessible to heavy vehicles of all sizes, light commercial vehicles, and cargo bikes. Electrical power available for vehicle charging. Floor load capacity: 3 T/m² on level 0 (Station) and 5 T/m² on level -1 (Hall). Clear heights: Up to 5 meters on level 0 (Station) and 7 meters on level -1 (Hall). Dock doors and ground-level access (depending on the units), with an average of 1 door per 700 m². 100% LED lighting and white paint on walls and ceilings. ICPE certifications 1510 and 2925. Logistics flow management tools provided. Location/Transportation: Regnault Bus (83), Porte d'Ivry (27), Porte d'Ivry-Massena (N31); Metro Olympiades (14), Porte d'Ivry (7); RER Bibliothèque François Mitterrand (C); Tram Porte d'Ivry (T3a), Porte de Choisy (T9); SNCF Bibliothèque François Mitterrand (SNCF Station); Transilien Gare d'Austerlitz (TER); A4 (Entrance), A4 (Exit Porte d'Ivry), A6a (Entrance D920), A6a, A6b (Exit), A6b (Entrance Porte d'Ivry).
- Can be combined with additional space(s) for up to 479,887 SF of adjacent space
- last-mile logistics
- optimal connectivity
- Enclosed and secured site 24/7
Ste H01.02
| Size | 16,092 SF |
| Term | Negotiable |
|
Rental Rate
|
$26.18 /SF/YR HT-HC |
| Space Use | Industrial |
| Condition | - |
| Available | Now |
Ideally located in the heart of Paris's 13th arrondissement, just five minutes from the ring road, offering quick access to all Parisian districts. This prime location ensures optimal connectivity, keeping you close to your clients and partners. Enclosed and secured site with 24/7 security posts. Two levels accessible to heavy trucks of all sizes, light commercial vehicles, and cargo bikes. Electrical power available for vehicle charging. Floor load capacity: 3 T/m² on level 0 (Station) and 5 T/m² on level -1 (Hall). Clear heights: Up to 5 meters on level 0 (Station) and 7 meters on level -1 (Hall). Dock doors and ground-level access (depending on the units), with an average of one door per 700 m². 100% LED lighting and white paint on walls and ceilings. ICPE 1510 and 2925 compliance. Logistics flow management tools provided. Location/Transportation: Regnault Bus (83), Porte d'Ivry (27), Porte d'Ivry-Massena (N31). Metro: Olympiades (14), Porte d'Ivry (7). RER: Bibliothèque François Mitterrand (C). Tram: Porte d'Ivry (T3a), Porte de Choisy (T9). SNCF: Bibliothèque François Mitterrand (SNCF Station). Transilien: Gare d'Austerlitz (TER). Highways: A4 (Entrance), A4 (Exit Porte d'Ivry), A6a (Entrance D920), A6a, A6b (Exit), A6b (Entrance Porte d'Ivry).
- Can be combined with additional space(s) for up to 479,887 SF of adjacent space
- last-mile logistics
- optimal connectivity
- Enclosed and secured site 24/7
Ste H01.03
| Size | 20,344 SF |
| Term | Negotiable |
|
Rental Rate
|
$26.18 /SF/YR HT-HC |
| Space Use | Industrial |
| Condition | - |
| Available | Now |
Ideally located in the heart of Paris's 13th arrondissement, just five minutes from the ring road, offering quick access to all Parisian districts. This prime location ensures optimal connectivity, keeping you close to your clients and partners. Enclosed and secured site with 24/7 security posts. Two levels accessible to heavy goods vehicles of all sizes, light commercial vehicles, and cargo bikes. Electrical power available for vehicle charging. Floor load capacity: 3 T/m² on level 0 (Station) and 5 T/m² on level -1 (Hall). Clear heights: Up to 5 meters on level 0 (Station) and 7 meters on level -1 (Hall). Dock doors and ground-level access (depending on units), with an average of 1 door per 700 m². 100% LED lighting and white paint on walls and ceilings. ICPE 1510 and 2925 compliance. Logistics flow management tools provided. Location/Transport: Regnault Bus (83), Porte d'Ivry (27), Porte d'Ivry-Massena (N31) Metro Olympiades (14), Porte d'Ivry (7) RER Bibliothèque François Mitterrand (C) Tram Porte d'Ivry (T3a), Porte de Choisy (T9) SNCF Bibliothèque-François-Mitterrand (SNCF Station) Transilien Gare d'Austerlitz (TER) A4 (Entrance), A4 (Exit Porte d'Ivry), A6a (Entrance D 920), A6a, A6b (Exit), A6b (Entrance Porte d'Ivry).
- Can be combined with additional space(s) for up to 479,887 SF of adjacent space
- last-mile logistics
- optimal connectivity
- Enclosed and secured site 24/7
Ste H01.04
| Size | 23,831 SF |
| Term | Negotiable |
|
Rental Rate
|
$26.18 /SF/YR HT-HC |
| Space Use | Industrial |
| Condition | - |
| Available | Now |
Ideally located in the heart of Paris's 13th arrondissement, just five minutes from the ring road, offering quick access to all Parisian districts. This prime location ensures optimal connectivity, keeping you close to your clients and partners. The site is enclosed and secured 24/7 with guard posts. Two levels accessible to heavy vehicles of all sizes, light commercial vehicles, and cargo bikes. Electrical capacity available for vehicle charging. Floor load capacity: 3 tons/m² on level 0 (Station) and 5 tons/m² on level -1 (Hall). Clear heights: Up to 5 meters on level 0 (Station) and 7 meters on level -1 (Hall). Dock doors and ground-level access (depending on the units), with an average of 1 door per 700 m². 100% LED lighting and white paint on walls and ceilings. ICPE certifications 1510 and 2925. Logistics flow management tools provided. Location/Transportation: Bus Regnault (83), Porte d'Ivry (27), Porte d'Ivry-Massena (N31); Metro Olympiades (14), Porte d'Ivry (7); RER Bibliothèque François Mitterrand (C); Tram Porte d'Ivry (T3a), Porte de Choisy (T9); SNCF Bibliothèque François Mitterrand (SNCF station); Transilien Gare d'Austerlitz (TER); A4 (Entrance), A4 (Exit Porte d'Ivry), A6a (Entrance D920), A6a, A6b (Exit), A6b (Entrance Porte d'Ivry).
- Can be combined with additional space(s) for up to 479,887 SF of adjacent space
- optimal connectivity
- Enclosed and secured site 24/7
- last-mile logistics
Ste H02
| Size | 26,113 SF |
| Term | Negotiable |
|
Rental Rate
|
$26.18 /SF/YR HT-HC |
| Space Use | Industrial |
| Condition | - |
| Available | Now |
Ideally located in the heart of Paris's 13th arrondissement, just five minutes from the ring road, offering quick access to all Parisian districts. This prime location ensures optimal connectivity, keeping you close to your clients and partners. The site is enclosed and secured 24/7 with guard posts. Two levels accessible to heavy vehicles of all sizes, light commercial vehicles, and cargo bikes. Electrical power available for vehicle charging. Floor load capacity: 3 T/m² on level 0 (Station) and 5 T/m² on level -1 (Hall). Clear heights: Up to 5 meters on level 0 (Station) and 7 meters on level -1 (Hall). Dock doors and ground-level access (depending on the units), with an average of 1 door per 700 m². 100% LED lighting and white paint on walls and ceilings. ICPE 1510 and 2925 compliance. Management tools for logistics flow provided. Location/Transportation: Regnault Bus (83), Porte d'Ivry (27), Porte d'Ivry-Massena (N31). Metro Olympiades (14), Porte d'Ivry (7). RER Bibliothèque François Mitterrand (C). Tram Porte d'Ivry (T3a), Porte de Choisy (T9). SNCF Bibliothèque François Mitterrand (SNCF station). Transilien Gare d'Austerlitz (TER). Access to highways: A4 (Entrance), A4 (Exit Porte d'Ivry), A6a (Entrance D920), A6a, A6b (Exit), A6b (Entrance Porte d'Ivry).
- Can be combined with additional space(s) for up to 479,887 SF of adjacent space
- optimal connectivity
- last-mile logistics
- Enclosed and secured site 24/7
Ste H03
| Size | 22,938 SF |
| Term | Negotiable |
|
Rental Rate
|
$26.18 /SF/YR HT-HC |
| Space Use | Industrial |
| Condition | - |
| Available | Now |
Ideally located in the heart of Paris's 13th arrondissement, just five minutes from the ring road, offering quick access to all Parisian districts. This prime location ensures optimal connectivity, keeping you close to your clients and partners. Enclosed and secured site with 24/7 security posts. Two levels accessible to heavy vehicles of all sizes, light commercial vehicles, and cargo bikes. Electrical power available for vehicle charging. Floor load capacity: 3 T/m² on level 0 (Station) and 5 T/m² on level -1 (Hall). Clear heights: Up to 5 meters on level 0 (Station) and 7 meters on level -1 (Hall). Dock doors and ground-level access (depending on the units), with an average of 1 door per 700 m². 100% LED lighting and white paint on walls and ceilings. ICPE 1510 and 2925 compliance. Logistics flow management tools provided. Location/Transportation: Regnault Bus (83), Porte d'Ivry (27), Porte d'Ivry-Massena (N31). Metro: Olympiades (14), Porte d'Ivry (7). RER: Bibliothèque François Mitterrand (C). Tram: Porte d'Ivry (T3a), Porte de Choisy (T9). SNCF: Bibliothèque François Mitterrand (SNCF Station). Transilien: Gare d'Austerlitz (TER). Highways: A4 (Entrance), A4 (Exit Porte d'Ivry), A6a (Entrance D920), A6a, A6b (Exit), A6b (Entrance Porte d'Ivry).
- Can be combined with additional space(s) for up to 479,887 SF of adjacent space
- last-mile logistics
- optimal connectivity
- Enclosed and secured site 24/7
Ste H04
| Size | 13,821 SF |
| Term | Negotiable |
|
Rental Rate
|
$26.18 /SF/YR HT-HC |
| Space Use | Industrial |
| Condition | - |
| Available | Now |
Ideally located in the heart of Paris's 13th arrondissement, just five minutes from the ring road, offering quick access to all Parisian districts. This prime location ensures optimal connectivity, keeping you close to your clients and partners. The site is enclosed and secured 24/7 with guard posts. Two levels accessible to heavy vehicles of all sizes, light commercial vehicles, and cargo bikes. Electrical power available for vehicle charging. Floor load capacity: 3 T/m² on level 0 (Station) and 5 T/m² on level -1 (Hall). Clear heights: Up to 5 meters on level 0 (Station) and 7 meters on level -1 (Hall). Dock doors and ground-level access (depending on the units), with an average of one door per 700 m². 100% LED lighting and white paint on walls and ceilings. ICPE certifications 1510 and 2925. Logistics flow management tools provided. Location/Transportation: Regnault Bus (83), Porte d'Ivry (27), Porte d'Ivry-Massena (N31); Metro Olympiades (14), Porte d'Ivry (7); RER Bibliothèque François Mitterrand (C); Tram Porte d'Ivry (T3a), Porte de Choisy (T9); SNCF Bibliothèque François Mitterrand (SNCF station); Transilien Gare d'Austerlitz (TER); A4 (Entrance), A4 (Exit Porte d'Ivry), A6a (Entrance D920), A6a, A6b (Exit), A6b (Entrance Porte d'Ivry).
- Can be combined with additional space(s) for up to 479,887 SF of adjacent space
- last-mile logistics
- Enclosed and secured site 24/7
- optimal connectivity
Ste H05
| Size | 17,104 SF |
| Term | Negotiable |
|
Rental Rate
|
$26.18 /SF/YR HT-HC |
| Space Use | Industrial |
| Condition | - |
| Available | Now |
Ideally located in the heart of Paris's 13th arrondissement, just five minutes from the ring road, offering quick access to all Parisian districts. This prime location ensures optimal connectivity, keeping you close to your clients and partners. Enclosed and secured site with 24/7 security posts. Two levels accessible to heavy vehicles of all sizes, light commercial vehicles, and cargo bikes. Electrical power available for vehicle charging. Floor load capacity: 3 T/m² on level 0 (Station) and 5 T/m² on level -1 (Hall). Clear heights: Up to 5 meters on level 0 (Station) and 7 meters on level -1 (Hall). Dock doors and ground-level access (depending on the units), with an average of one door per 700 m². 100% LED lighting and white paint on walls and ceilings. ICPE classifications 1510 and 2925. Logistics flow management tools provided. Location/Transport: Regnault Bus (83), Porte d'Ivry (27), Porte d'Ivry-Massena (N31). Metro: Olympiades (14), Porte d'Ivry (7). RER: Bibliothèque François Mitterrand (C). Tram: Porte d'Ivry (T3a), Porte de Choisy (T9). SNCF: Bibliothèque François Mitterrand (SNCF Station). Transilien: Gare d'Austerlitz (TER). Highways: A4 (Entrance), A4 (Exit Porte d'Ivry), A6a (Entrance D920), A6a, A6b (Exit), A6b (Entrance Porte d'Ivry).
- Can be combined with additional space(s) for up to 479,887 SF of adjacent space
- last-mile logistics
- optimal connectivity
- Secure and enclosed site, 24/7.
Ste H06
| Size | 12,615 SF |
| Term | Negotiable |
|
Rental Rate
|
$26.18 /SF/YR HT-HC |
| Space Use | Industrial |
| Condition | - |
| Available | Now |
Ideally located in the heart of Paris's 13th arrondissement, just five minutes from the ring road, offering quick access to all Parisian districts. This prime location ensures optimal connectivity, keeping you close to your clients and partners. The site is enclosed and secured 24/7 with guard posts. Two levels accessible to heavy-duty vehicles of all sizes, light commercial vehicles, and cargo bikes. Electrical power available for vehicle charging. Floor load capacity: 3 T/m² on level 0 (Station) and 5 T/m² on level -1 (Hall). Clear heights: Up to 5 meters on level 0 (Station) and 7 meters on level -1 (Hall). Dock doors and ground-level access (depending on the units), with an average of 1 door per 700 m². 100% LED lighting and white paint on walls and ceilings. ICPE certifications 1510 and 2925. Management tools for logistical flow provided. Location/Transportation: Regnault Bus (83), Porte d'Ivry (27), Porte d'Ivry-Massena (N31); Metro Olympiades (14), Porte d'Ivry (7); RER Bibliothèque François Mitterrand (C); Tram Porte d'Ivry (T3a), Porte de Choisy (T9); SNCF Bibliothèque François Mitterrand (SNCF Station); Transilien Gare d'Austerlitz (TER); A4 (Entrance), A4 (Exit Porte d'Ivry), A6a (Entrance D920), A6a, A6b (Exit), A6b (Entrance Porte d'Ivry).
- Can be combined with additional space(s) for up to 479,887 SF of adjacent space
- last-mile logistics
- optimal connectivity
- Enclosed and secured site 24/7
Ste H07
| Size | 25,360 SF |
| Term | Negotiable |
|
Rental Rate
|
$26.18 /SF/YR HT-HC |
| Space Use | Industrial |
| Condition | - |
| Available | Now |
Ideally located in the heart of Paris's 13th arrondissement, just five minutes from the ring road, offering quick access to all Parisian districts. This prime location ensures optimal connectivity, keeping you close to your clients and partners. The site is enclosed and secured 24/7 with guard posts. Two levels accessible to heavy vehicles of all sizes, light commercial vehicles, and cargo bikes. Electrical power available for vehicle charging. Floor load capacity: 3 T/m² on level 0 (Station) and 5 T/m² on level -1 (Hall). Clear heights: Up to 5 meters on level 0 (Station) and 7 meters on level -1 (Hall). Dock doors and ground-level access (depending on the units), with an average of one door per 700 m². 100% LED lighting and white paint on walls and ceilings. ICPE certifications 1510 and 2925. Management tools for logistics flow provided. Location/Transportation: Regnault Bus (83), Porte d'Ivry (27), Porte d'Ivry-Massena (N31); Metro Olympiades (14), Porte d'Ivry (7); RER Bibliothèque François Mitterrand (C); Tram Porte d'Ivry (T3a), Porte de Choisy (T9); SNCF Bibliothèque François Mitterrand (SNCF Station); Transilien Gare d'Austerlitz (TER); A4 (Entrance), A4 (Exit Porte d'Ivry), A6a (Entrance D920), A6a, A6b (Exit), A6b (Entrance Porte d'Ivry).
- Can be combined with additional space(s) for up to 479,887 SF of adjacent space
- optimal connectivity
- Enclosed and secured site 24/7
- last-mile logistics
Ste H08.01
| Size | 22,733 SF |
| Term | Negotiable |
|
Rental Rate
|
$26.18 /SF/YR HT-HC |
| Space Use | Industrial |
| Condition | - |
| Available | Now |
Ideally located in the heart of Paris's 13th arrondissement, just five minutes from the ring road, offering quick access to all Parisian districts. This prime location ensures optimal connectivity, keeping you close to your clients and partners. Enclosed and secured site with 24/7 security posts. Two levels accessible to heavy goods vehicles of all sizes, light commercial vehicles, and cargo bikes. Electrical power available for vehicle charging. Floor load capacity: 3 T/m² on level 0 (Station) and 5 T/m² on level -1 (Hall). Clear heights: Up to 5 meters on level 0 (Station) and 7 meters on level -1 (Hall). Dock doors and ground-level access (depending on units) with an average of 1 door per 700 m². 100% LED lighting and white paint on walls and ceilings. ICPE 1510 and 2925 compliance. Logistics flow management tools provided. Location/Transport: Regnault Bus (83), Porte d'Ivry (27), Porte d'Ivry-Massena (N31) Metro Olympiades (14), Porte d'Ivry (7) RER Bibliothèque François Mitterrand (C) Tram Porte d'Ivry (T3a), Porte de Choisy (T9) SNCF Bibliothèque François Mitterrand (SNCF Station) Transilien Gare d'Austerlitz (TER) A4 (Entrance), A4 (Exit Porte d'Ivry), A6a (Entrance D 920), A6a, A6b (Exit), A6b (Entrance Porte d'Ivry).
- Can be combined with additional space(s) for up to 479,887 SF of adjacent space
- last-mile logistics
- Enclosed and secured site 24/7
- optimal connectivity
Ste H08.02
| Size | 23,562 SF |
| Term | Negotiable |
|
Rental Rate
|
$26.18 /SF/YR HT-HC |
| Space Use | Industrial |
| Condition | - |
| Available | Now |
Ideally located in the heart of Paris's 13th arrondissement, just five minutes from the ring road, offering quick access to all Parisian districts. This prime location ensures optimal connectivity, keeping you close to your clients and partners. The site is enclosed and secured 24/7 with guard posts. Two levels accessible to heavy vehicles of all sizes, light commercial vehicles, and cargo bikes. Electrical power available for vehicle charging. Floor load capacity: 3 T/m² on level 0 (Station) and 5 T/m² on level -1 (Hall). Clear heights: Up to 5 meters on level 0 (Station) and 7 meters on level -1 (Hall). Dock doors and ground-level access (depending on the units), with an average of 1 door per 700 m². 100% LED lighting and white paint on walls and ceilings. ICPE 1510 and 2925 compliance. Logistics flow management tools provided. Location/Transportation: Regnault Bus (83), Porte d'Ivry (27), Porte d'Ivry-Massena (N31); Metro Olympiades (14), Porte d'Ivry (7); RER Bibliothèque François Mitterrand (C); Tram Porte d'Ivry (T3a), Porte de Choisy (T9); SNCF Bibliothèque François Mitterrand (SNCF Station); Transilien Gare d'Austerlitz (TER); A4 (Entrance), A4 (Exit Porte d'Ivry), A6a (Entrance D920), A6a, A6b (Exit), A6b (Entrance Porte d'Ivry).
- Can be combined with additional space(s) for up to 479,887 SF of adjacent space
- Enclosed and secured site 24/7
- last-mile logistics
- optimal connectivity
Ste H09
| Size | 6,943 SF |
| Term | Negotiable |
|
Rental Rate
|
$26.18 /SF/YR HT-HC |
| Space Use | Industrial |
| Condition | - |
| Available | Now |
Ideally located in the heart of Paris's 13th arrondissement, just five minutes from the ring road, offering quick access to all Parisian districts. This prime location ensures optimal connectivity, keeping you close to your clients and partners. Enclosed and secured site with 24/7 security posts. Two levels accessible to heavy vehicles of all sizes, light commercial vehicles, and cargo bikes. Electrical power available for vehicle charging. Floor load capacity: 3 T/m² on level 0 (Station) and 5 T/m² on level -1 (Hall). Clear heights: Up to 5 meters on level 0 (Station) and 7 meters on level -1 (Hall). Dock doors and ground-level access (depending on the units), with an average of 1 door per 700 m². 100% LED lighting and white paint on walls and ceilings. ICPE 1510 and 2925 compliance. Logistics flow management tools provided. Location/Transport: Regnault Bus (83), Porte d'Ivry (27), Porte d'Ivry-Massena (N31) Metro Olympiades (14), Porte d'Ivry (7) RER Bibliothèque François Mitterrand (C) Tram Porte d'Ivry (T3a), Porte de Choisy (T9) SNCF Bibliothèque-François-Mitterrand (SNCF Station) Transilien Gare d'Austerlitz (TER) A4 (Entrance), A4 (Exit Porte d'Ivry), A6a (Entrance D 920), A6a, A6b (Exit), A6b (Entrance Porte d'Ivry).
- Can be combined with additional space(s) for up to 479,887 SF of adjacent space
- last-mile logistics
- Enclosed and secured site 24/7
- optimal connectivity
Ste H10
| Size | 2,519 SF |
| Term | Negotiable |
|
Rental Rate
|
$26.18 /SF/YR HT-HC |
| Space Use | Industrial |
| Condition | - |
| Available | Now |
Ideally located in the heart of Paris's 13th arrondissement, just five minutes from the ring road, offering quick access to all Parisian districts. This prime location ensures optimal connectivity, keeping you close to your clients and partners. Enclosed and secured site with 24/7 security posts. Two levels accessible to heavy-duty vehicles of all sizes, light commercial vehicles, and cargo bikes. Electrical power available for vehicle charging. Floor load capacity: 3 T/m² on level 0 (Station) and 5 T/m² on level -1 (Hall). Clear heights: Up to 5 meters on level 0 (Station) and 7 meters on level -1 (Hall). Dock doors and ground-level access (depending on the units), with an average of 1 door per 700 m². 100% LED lighting and white paint on walls and ceilings. ICPE 1510 and 2925 compliance. Logistics flow management tools provided. Location/Transportation: Regnault Bus (83), Porte d'Ivry (27), Porte d'Ivry-Massena (N31). Metro: Olympiades (14), Porte d'Ivry (7). RER: Bibliothèque François Mitterrand (C). Tram: Porte d'Ivry (T3a), Porte de Choisy (T9). SNCF: Bibliothèque François Mitterrand (SNCF station). Transilien: Gare d'Austerlitz (TER). Highways: A4 (Entrance), A4 (Exit Porte d'Ivry), A6a (Entrance D920), A6a, A6b (Exit), A6b (Entrance Porte d'Ivry).
- Can be combined with additional space(s) for up to 479,887 SF of adjacent space
- Security System
- Secure Storage
- last-mile logistics
- optimal connectivity
- Enclosed and secured site 24/7
Ste H11
| Size | 1,970 SF |
| Term | Negotiable |
|
Rental Rate
|
$26.18 /SF/YR HT-HC |
| Space Use | Industrial |
| Condition | - |
| Available | Now |
Ideally located in the heart of Paris's 13th arrondissement, just five minutes from the ring road, offering quick access to all Parisian districts. This prime location ensures optimal connectivity, keeping you close to your clients and partners. The site is enclosed and secured 24/7 with guard posts. Two levels accessible to heavy vehicles of all sizes, light commercial vehicles, and cargo bikes. Electrical power available for vehicle charging. Floor load capacity: 3 T/m² on level 0 (Station) and 5 T/m² on level -1 (Hall). Clear heights: Up to 5 meters on level 0 (Station) and 7 meters on level -1 (Hall). Dock doors and ground-level access (depending on the units), with an average of 1 door per 700 m². 100% LED lighting and white paint on walls and ceilings. ICPE certifications 1510 and 2925. Management tools for logistical flow are provided. Location/Transportation: Regnault Bus (83), Porte d'Ivry (27), Porte d'Ivry-Massena (N31); Metro Olympiades (14), Porte d'Ivry (7); RER Bibliothèque François Mitterrand (C); Tram Porte d'Ivry (T3a), Porte de Choisy (T9); SNCF Bibliothèque François Mitterrand (SNCF station); Transilien Gare d'Austerlitz (TER); A4 (Entrance), A4 (Exit Porte d'Ivry), A6a (Entrance D920), A6a, A6b (Exit), A6b (Entrance Porte d'Ivry).
- Can be combined with additional space(s) for up to 479,887 SF of adjacent space
- Security System
- Secure Storage
- last-mile logistics
- optimal connectivity
- Enclosed and secured site 24/7
Ground - Gare Niveau 0 G01
| Size | 10,775 SF |
| Term | Negotiable |
|
Rental Rate
|
$26.18 /SF/YR HT-HC |
| Space Use | Industrial |
| Condition | - |
| Available | Now |
Ideally located in the heart of Paris's 13th arrondissement, just five minutes from the ring road, offering quick access to all Parisian districts. This prime location ensures optimal connectivity, keeping you close to your clients and partners. Enclosed and secured site with 24/7 security posts. Two levels accessible to heavy vehicles of all sizes, light commercial vehicles, and cargo bikes. Electrical power available for vehicle charging. Floor load capacity: 3 T/m² on level 0 (Station) and 5 T/m² on level -1 (Hall). Clear heights: Up to 5 meters on level 0 (Station) and 7 meters on level -1 (Hall). Dock doors and ground-level access (depending on the units), with an average of 1 door per 700 m². 100% LED lighting and white paint on walls and ceilings. ICPE 1510 and 2925 compliance. Logistics flow management tools provided. Location/Transport: Regnault Bus (83), Porte d'Ivry (27), Porte d'Ivry-Massena (N31). Metro: Olympiades (14), Porte d'Ivry (7). RER: Bibliothèque François Mitterrand (C). Tram: Porte d'Ivry (T3a), Porte de Choisy (T9). SNCF: Bibliothèque François Mitterrand (SNCF Station). Transilien: Gare d'Austerlitz (TER). Highways: A4 (Entrance), A4 (Exit Porte d'Ivry), A6a (Entrance D 920), A6a, A6b (Exit), A6b (Entrance Porte d'Ivry).
- Can be combined with additional space(s) for up to 479,887 SF of adjacent space
- Security System
- Secure Storage
- last-mile logistics
- Enclosed and secured site 24/7
- optimal connectivity
Ground - Gare Niveau 0 G01.02
| Size | 16,318 SF |
| Term | Negotiable |
|
Rental Rate
|
$26.18 /SF/YR HT-HC |
| Space Use | Industrial |
| Condition | - |
| Available | Now |
Ideally located in the heart of Paris's 13th arrondissement, just five minutes from the ring road, offering quick access to all Parisian districts. This prime location ensures optimal connectivity, keeping you close to your clients and partners. The site is enclosed and secured 24/7 with guard posts. Two levels accessible to heavy-duty vehicles of all sizes, light commercial vehicles, and cargo bikes. Electrical power available for vehicle charging. Floor load capacity: 3 T/m² on level 0 (Station) and 5 T/m² on level -1 (Hall). Clear heights: Up to 5 meters on level 0 (Station) and 7 meters on level -1 (Hall). Dock doors and ground-level access (depending on the units), with an average of 1 door per 700 m². 100% LED lighting and white paint on walls and ceilings. ICPE certifications 1510 and 2925. Management tools for logistics flow provided. Location/Transportation: Regnault Bus (83), Porte d'Ivry (27), Porte d'Ivry-Massena (N31); Metro Olympiades (14), Porte d'Ivry (7); RER Bibliothèque François Mitterrand (C); Tram Porte d'Ivry (T3a), Porte de Choisy (T9); SNCF Bibliothèque François Mitterrand (SNCF Station); Transilien Gare d'Austerlitz (TER); A4 (Entrance), A4 (Exit Porte d'Ivry), A6a (Entrance D920), A6a, A6b (Exit), A6b (Entrance Porte d'Ivry).
- Can be combined with additional space(s) for up to 479,887 SF of adjacent space
- last-mile logistics
- Enclosed and secured site 24/7
- optimal connectivity
Ground - Gare Niveau 0 G02
| Size | 15,059 SF |
| Term | Negotiable |
|
Rental Rate
|
$26.18 /SF/YR HT-HC |
| Space Use | Industrial |
| Condition | - |
| Available | Now |
Ideally located in the heart of Paris's 13th arrondissement, just five minutes from the ring road, offering quick access to all Parisian districts. This prime location ensures optimal connectivity, keeping you close to your clients and partners. Enclosed and secured site with 24/7 security posts. Two levels accessible to heavy-duty vehicles of all sizes, light commercial vehicles, and cargo bikes. Electrical capacity available for vehicle charging. Floor load capacity: 3 T/m² on level 0 (Station) and 5 T/m² on level -1 (Hall). Clear heights: Up to 5 meters on level 0 (Station) and 7 meters on level -1 (Hall). Dock doors and ground-level access (depending on the units), with an average of 1 door per 700 m². 100% LED lighting and white paint on walls and ceilings. ICPE certifications 1510 and 2925. Logistics flow management tools provided. Location/Transportation: Regnault Bus (83), Porte d'Ivry (27), Porte d'Ivry-Massena (N31); Metro Olympiades (14), Porte d'Ivry (7); RER Bibliothèque François Mitterrand (C); Tram Porte d'Ivry (T3a), Porte de Choisy (T9); SNCF Bibliothèque François Mitterrand (SNCF station); Transilien Gare d'Austerlitz (TER); A4 (Entrance), A4 (Exit Porte d'Ivry), A6a (Entrance D920), A6a, A6b (Exit), A6b (Entrance Porte d'Ivry).
- Can be combined with additional space(s) for up to 479,887 SF of adjacent space
- last-mile logistics
- Enclosed and secured site 24/7
- optimal connectivity
Ground - Gare Niveau 0 G03
| Size | 15,392 SF |
| Term | Negotiable |
|
Rental Rate
|
$26.18 /SF/YR HT-HC |
| Space Use | Industrial |
| Condition | - |
| Available | Now |
Ideally located in the heart of Paris's 13th arrondissement, just five minutes from the ring road, offering quick access to all Parisian districts. This prime location ensures optimal connectivity, keeping you close to your clients and partners. Enclosed and secured site with 24/7 security posts. Two levels accessible to heavy goods vehicles of all sizes, light commercial vehicles, and cargo bikes. Electrical power available for vehicle charging. Floor load capacity: 3 T/m² on level 0 (Station) and 5 T/m² on level -1 (Hall). Clear heights: Up to 5 meters on level 0 (Station) and 7 meters on level -1 (Hall). Dock doors and ground-level access (depending on the units), with an average of one door per 700 m². 100% LED lighting and white paint on walls and ceilings. ICPE 1510 and 2925 compliance. Logistics flow management tools provided. Location/Transport: Regnault Bus (83), Porte d'Ivry (27), Porte d'Ivry-Massena (N31). Metro: Olympiades (Line 14), Porte d'Ivry (Line 7). RER: Bibliothèque François Mitterrand (Line C). Tram: Porte d'Ivry (T3a), Porte de Choisy (T9). SNCF: Bibliothèque François Mitterrand (SNCF Station). Transilien: Gare d'Austerlitz (TER). Highways: A4 (Entrance), A4 (Exit Porte d'Ivry), A6a (Entrance D920), A6a, A6b (Exit), A6b (Entrance Porte d'Ivry).
- Can be combined with additional space(s) for up to 479,887 SF of adjacent space
- last-mile logistics
- Enclosed and secured site 24/7
- optimal connectivity
Ground - Gare Niveau 0 G04
| Size | 24,369 SF |
| Term | Negotiable |
|
Rental Rate
|
$26.18 /SF/YR HT-HC |
| Space Use | Industrial |
| Condition | - |
| Available | Now |
Ideally located in the heart of Paris's 13th arrondissement, just five minutes from the ring road, offering quick access to all Parisian districts. This prime location ensures optimal connectivity, keeping you close to your clients and partners. Enclosed and secured site with 24/7 security posts. Two levels accessible to heavy vehicles of all sizes, light commercial vehicles, and cargo bikes. Electrical power available for vehicle charging. Floor load capacity: 3 T/m² on level 0 (Station) and 5 T/m² on level -1 (Hall). Clear heights: Up to 5 meters on level 0 (Station) and 7 meters on level -1 (Hall). Dock doors and ground-level access (depending on units), with an average of 1 door per 700 m². 100% LED lighting and white paint on walls and ceilings. ICPE 1510 and 2925 compliance. Logistics flow management tools provided. Location/Transport: Regnault Bus (83), Porte d'Ivry (27), Porte d'Ivry-Massena (N31). Metro: Olympiades (14), Porte d'Ivry (7). RER: Bibliothèque François Mitterrand (C). Tram: Porte d'Ivry (T3a), Porte de Choisy (T9). SNCF: Bibliothèque François Mitterrand (SNCF Station). Transilien: Gare d'Austerlitz (TER). Highways: A4 (Entrance), A4 (Exit Porte d'Ivry), A6a (Entrance D 920), A6a, A6b (Exit), A6b (Entrance Porte d'Ivry).
- Can be combined with additional space(s) for up to 479,887 SF of adjacent space
- Security System
- Secure Storage
- last-mile logistics
- Secure and enclosed site, 24/7.
- optimal connectivity
Ground - Gare niveau 0 G05
| Size | 936 SF |
| Term | Negotiable |
|
Rental Rate
|
$26.18 /SF/YR HT-HC |
| Space Use | Industrial |
| Condition | - |
| Available | Now |
Ideally located in the heart of Paris's 13th arrondissement, just five minutes from the ring road, offering quick access to all Parisian districts. This prime location ensures optimal connectivity, keeping you close to your clients and partners. Enclosed and secured site with 24/7 security posts. Two levels accessible to heavy goods vehicles of all sizes, light commercial vehicles, and cargo bikes. Electrical power available for vehicle charging. Floor load capacity: 3 T/m² on level 0 (Station) and 5 T/m² on level -1 (Hall). Clear heights: Up to 5 meters on level 0 (Station) and 7 meters on level -1 (Hall). Dock doors and ground-level access (depending on units) with an average of 1 door per 700 m². 100% LED lighting and white paint on walls and ceilings. ICPE 1510 and 2925 compliance. Logistics flow management tools provided. Location/Transport: Regnault Bus (83), Porte d'Ivry (27), Porte d'Ivry-Massena (N31). Metro: Olympiades (14), Porte d'Ivry (7). RER: Bibliothèque François Mitterrand (C). Tram: Porte d'Ivry (T3a), Porte de Choisy (T9). SNCF: Bibliothèque François Mitterrand (SNCF Station). Transilien: Gare d'Austerlitz (TER). Highways: A4 (Entrance), A4 (Exit Porte d'Ivry), A6a (Entrance D 920), A6a, A6b (Exit), A6b (Entrance Porte d'Ivry).
- Can be combined with additional space(s) for up to 479,887 SF of adjacent space
- Security System
- Secure Storage
- last-mile logistics
- optimal connectivity
- Enclosed and secured site 24/7
Ground - Gare Niveau 0 G06
| Size | 20,677 SF |
| Term | Negotiable |
|
Rental Rate
|
$26.18 /SF/YR HT-HC |
| Space Use | Industrial |
| Condition | - |
| Available | Now |
Ideally located in the heart of Paris's 13th arrondissement, just five minutes from the ring road, offering quick access to all Parisian districts. This prime location ensures optimal connectivity, keeping you close to your clients and partners. Enclosed and secured site with 24/7 security posts. Two levels accessible to heavy goods vehicles of all sizes, light commercial vehicles, and cargo bikes. Electrical power available for vehicle charging. Floor load capacity: 3 T/m² on level 0 (Station) and 5 T/m² on level -1 (Hall). Clear heights: Up to 5 meters on level 0 (Station) and 7 meters on level -1 (Hall). Dock doors and ground-level access (depending on units), with an average of 1 door per 700 m². 100% LED lighting and white paint on walls and ceilings. ICPE 1510 and 2925 compliance. Logistics flow management tools provided. Location/Transport: Regnault Bus (83), Porte d'Ivry (27), Porte d'Ivry-Massena (N31). Metro: Olympiades (Line 14), Porte d'Ivry (Line 7). RER: Bibliothèque François Mitterrand (Line C). Tram: Porte d'Ivry (T3a), Porte de Choisy (T9). SNCF: Bibliothèque François Mitterrand (SNCF Station). Transilien: Gare d'Austerlitz (TER). Highways: A4 (Entrance), A4 (Exit Porte d'Ivry), A6a (Entrance D 920), A6a, A6b (Exit), A6b (Entrance Porte d'Ivry).
- Can be combined with additional space(s) for up to 479,887 SF of adjacent space
- last-mile logistics
- optimal connectivity
- Enclosed and secured site 24/7
Ground - Gare Niveau 0 G07
| Size | 25,747 SF |
| Term | Negotiable |
|
Rental Rate
|
$26.18 /SF/YR HT-HC |
| Space Use | Industrial |
| Condition | - |
| Available | Now |
Ideally located in the heart of Paris's 13th arrondissement, just five minutes from the ring road, offering quick access to all Parisian districts. This prime location ensures optimal connectivity, keeping you close to your clients and partners. Enclosed and secured site with 24/7 security posts. Two levels accessible to heavy goods vehicles of all sizes, light commercial vehicles, and cargo bikes. Electrical power available for vehicle charging. Floor load capacity: 3 T/m² on level 0 (Station) and 5 T/m² on level -1 (Hall). Clear heights: Up to 5 meters on level 0 (Station) and 7 meters on level -1 (Hall). Dock doors and ground-level access (depending on units), with an average of 1 door per 700 m². 100% LED lighting and white paint on walls and ceilings. ICPE 1510 and 2925 compliance. Logistics flow management tools provided. Location/Transportation: - Bus: Regnault (83), Porte d'Ivry (27), Porte d'Ivry-Massena (N31) - Metro: Olympiades (Line 14), Porte d'Ivry (Line 7) - RER: Bibliothèque François Mitterrand (Line C) - Tram: Porte d'Ivry (T3a), Porte de Choisy (T9) - Train: Bibliothèque François Mitterrand (SNCF station), Gare d'Austerlitz (TER) - Highways: A4 (Entrance), A4 (Exit Porte d'Ivry), A6a (Entrance D920), A6a, A6b (Exit), A6b (Entrance Porte d'Ivry).
- Can be combined with additional space(s) for up to 479,887 SF of adjacent space
- last-mile logistics
- optimal connectivity
- Enclosed and secured site 24/7
Ground - Gare Niveau 0 G08
| Size | 20,301 SF |
| Term | Negotiable |
|
Rental Rate
|
$26.18 /SF/YR HT-HC |
| Space Use | Industrial |
| Condition | - |
| Available | Now |
Ideally located in the heart of Paris's 13th arrondissement, just five minutes from the ring road, offering quick access to all Parisian districts. This prime location ensures optimal connectivity, keeping you close to your clients and partners. The site is enclosed and secured 24/7 with guard posts. Two levels accessible to heavy vehicles of all sizes, light commercial vehicles, and cargo bikes. Electrical power available for vehicle charging. Floor load capacity: 3 T/m² on level 0 (Station) and 5 T/m² on level -1 (Hall). Clear heights: Up to 5 meters on level 0 (Station) and 7 meters on level -1 (Hall). Dock doors and ground-level access (depending on the units), with an average of 1 door per 700 m². 100% LED lighting and white paint on walls and ceilings. ICPE 1510 and 2925 compliance. Logistics flow management tools provided. Location/Transportation: Regnault Bus (83), Porte d'Ivry (27), Porte d'Ivry-Massena (N31). Metro: Olympiades (14), Porte d'Ivry (7). RER: Bibliothèque François Mitterrand (C). Tram: Porte d'Ivry (T3a), Porte de Choisy (T9). SNCF: Bibliothèque François Mitterrand (SNCF Station). Transilien: Gare d'Austerlitz (TER). Highways: A4 (Entrance), A4 (Exit Porte d'Ivry), A6a (Entrance D 920), A6a, A6b (Exit), A6b (Entrance Porte d'Ivry).
- Can be combined with additional space(s) for up to 479,887 SF of adjacent space
- last-mile logistics
- Enclosed and secured site 24/7
- optimal connectivity
Ground - Gare Niveau 0 G09
| Size | 14,456 SF |
| Term | Negotiable |
|
Rental Rate
|
$26.18 /SF/YR HT-HC |
| Space Use | Industrial |
| Condition | - |
| Available | Now |
Ideally located in the heart of Paris's 13th arrondissement, just five minutes from the ring road, offering quick access to all Parisian districts. This prime location ensures optimal connectivity, keeping you close to your clients and partners. Enclosed and secured site with 24/7 security posts. Two levels accessible to heavy goods vehicles of all sizes, light commercial vehicles, and cargo bikes. Electrical power available for vehicle charging. Floor load capacity: 3 T/m² on level 0 (Station) and 5 T/m² on level -1 (Hall). Clear heights: Up to 5 meters on level 0 (Station) and 7 meters on level -1 (Hall). Dock doors and ground-level access (depending on the units), with an average of 1 door per 700 m². 100% LED lighting and white paint on walls and ceilings. ICPE 1510 and 2925 compliance. Logistics flow management tools provided. Location/Transport: Regnault Bus (83), Porte d'Ivry (27), Porte d'Ivry-Massena (N31). Metro: Olympiades (Line 14), Porte d'Ivry (Line 7). RER: Bibliothèque François Mitterrand (Line C). Tram: Porte d'Ivry (T3a), Porte de Choisy (T9). SNCF: Bibliothèque François Mitterrand (SNCF Station). Transilien: Gare d'Austerlitz (TER). Highways: A4 (Entrance), A4 (Exit Porte d'Ivry), A6a (Entrance D920), A6a, A6b (Exit), A6b (Entrance Porte d'Ivry).
- Can be combined with additional space(s) for up to 479,887 SF of adjacent space
- last-mile logistics
- optimal connectivity
- Enclosed and secured site 24/7
Ground - Gare Niveau 0 G10
| Size | 12,411 SF |
| Term | Negotiable |
|
Rental Rate
|
$26.18 /SF/YR HT-HC |
| Space Use | Industrial |
| Condition | - |
| Available | Now |
Ideally located in the heart of Paris's 13th arrondissement, just five minutes from the ring road, offering quick access to all Parisian districts. This prime location ensures optimal connectivity, keeping you close to your clients and partners. The site is enclosed and secured 24/7 with guard posts. Two levels accessible to heavy vehicles of all sizes, light commercial vehicles, and cargo bikes. Electrical power available for vehicle charging. Floor load capacity: 3 T/m² on level 0 (Station) and 5 T/m² on level -1 (Hall). Clear heights: Up to 5 meters on level 0 (Station) and 7 meters on level -1 (Hall). Dock doors and ground-level access (depending on the units), with an average of 1 door per 700 m². 100% LED lighting and white paint on walls and ceilings. ICPE certifications 1510 and 2925. Logistics flow management tools provided. Location/Transportation: Regnault Bus (83), Porte d'Ivry (27), Porte d'Ivry-Massena (N31); Metro Olympiades (14), Porte d'Ivry (7); RER Bibliothèque François Mitterrand (C); Tram Porte d'Ivry (T3a), Porte de Choisy (T9); SNCF Bibliothèque François Mitterrand (SNCF station); Transilien Gare d'Austerlitz (TER); A4 (Entrance), A4 (Exit Porte d'Ivry), A6a (Entrance D920), A6a, A6b (Exit), A6b (Entrance Porte d'Ivry).
- Can be combined with additional space(s) for up to 479,887 SF of adjacent space
- Security System
- Secure Storage
- last-mile logistics
- optimal connectivity
- Enclosed and secured site 24/7
Ground - Gare Niveau 0 G11
| Size | 25,015 SF |
| Term | Negotiable |
|
Rental Rate
|
$26.18 /SF/YR HT-HC |
| Space Use | Industrial |
| Condition | - |
| Available | Now |
Ideally located in the heart of Paris's 13th arrondissement, just five minutes from the ring road, offering quick access to all Parisian districts. This prime location ensures optimal connectivity, keeping you close to your clients and partners. The site is enclosed and secured 24/7 with guard posts. Two levels accessible to heavy vehicles of all sizes, light commercial vehicles, and cargo bikes. Electrical power available for vehicle charging. Floor load capacity: 3 T/m² on level 0 (Station) and 5 T/m² on level -1 (Hall). Clear heights: Up to 5 meters on level 0 (Station) and 7 meters on level -1 (Hall). Dock doors and ground-level access (depending on the units), with an average of 1 door per 700 m². 100% LED lighting and white paint on walls and ceilings. ICPE 1510 and 2925 compliance. Logistics flow management tools provided. Location/Transport: Regnault Bus (83), Porte d'Ivry (27), Porte d'Ivry-Massena (N31). Metro: Olympiades (14), Porte d'Ivry (7). RER: Bibliothèque François Mitterrand (C). Tram: Porte d'Ivry (T3a), Porte de Choisy (T9). SNCF: Bibliothèque François Mitterrand (SNCF Station). Transilien: Gare d'Austerlitz (TER). Highways: A4 (Entrance), A4 (Exit Porte d'Ivry), A6a (Entrance D 920), A6a, A6b (Exit), A6b (Entrance Porte d'Ivry).
- Can be combined with additional space(s) for up to 479,887 SF of adjacent space
- last-mile logistics
- Enclosed and secured site 24/7
- optimal connectivity
Ground - Gare Niveau 0 G12
| Size | 12,389 SF |
| Term | Negotiable |
|
Rental Rate
|
$26.18 /SF/YR HT-HC |
| Space Use | Industrial |
| Condition | - |
| Available | Now |
Ideally located in the heart of Paris's 13th arrondissement, just five minutes from the ring road, offering quick access to all Parisian districts. This prime location ensures optimal connectivity, keeping you close to your clients and partners. Enclosed and secured site with 24/7 security guards. Two levels accessible to heavy trucks of all sizes, light commercial vehicles, and cargo bikes. Electrical power available for vehicle charging. Floor load capacity: 3 T/m² on level 0 (Station) and 5 T/m² on level -1 (Hall). Clear heights: Up to 5 meters on level 0 (Station) and 7 meters on level -1 (Hall). Dock doors and ground-level access (depending on units), with an average of 1 door per 700 m². 100% LED lighting and white paint on walls and ceilings. ICPE 1510 and 2925 compliance. Logistics flow management tools provided. Location/Transportation: - Bus: Regnault (83), Porte d'Ivry (27), Porte d'Ivry-Massena (N31) - Metro: Olympiades (Line 14), Porte d'Ivry (Line 7) - RER: Bibliothèque François Mitterrand (Line C) - Tram: Porte d'Ivry (T3a), Porte de Choisy (T9) - Train: Bibliothèque François Mitterrand (SNCF station), Gare d'Austerlitz (TER) - Highways: A4 (Entrance), A4 (Exit Porte d'Ivry), A6a (Entrance D 920), A6a, A6b (Exit), A6b (Entrance Porte d'Ivry).
- Can be combined with additional space(s) for up to 479,887 SF of adjacent space
- Security System
- Secure Storage
- last-mile logistics
- optimal connectivity
- Secure and enclosed site, 24/7.
Ground - Gare Niveau 0 G13
| Size | 3,541 SF |
| Term | Negotiable |
|
Rental Rate
|
$26.18 /SF/YR HT-HC |
| Space Use | Industrial |
| Condition | - |
| Available | Now |
Ideally located in the heart of Paris's 13th arrondissement, just five minutes from the ring road, offering quick access to all Parisian districts. This prime location ensures optimal connectivity, keeping you close to your clients and partners. Enclosed and secured site with 24/7 security posts. Two levels accessible to heavy vehicles of all sizes, light commercial vehicles, and cargo bikes. Electrical power available for vehicle charging. Floor load capacity: 3 T/m² on level 0 (Station) and 5 T/m² on level -1 (Hall). Clear heights: Up to 5 meters on level 0 (Station) and 7 meters on level -1 (Hall). Dock doors and ground-level access (depending on units), with an average of 1 door per 700 m². 100% LED lighting and white paint on walls and ceilings. ICPE 1510 and 2925 compliance. Logistics flow management tools provided. Location/Transportation: - Bus: Regnault (83), Porte d'Ivry (27), Porte d'Ivry-Massena (N31) - Metro: Olympiades (Line 14), Porte d'Ivry (Line 7) - RER: Bibliothèque François Mitterrand (Line C) - Tram: Porte d'Ivry (T3a), Porte de Choisy (T9) - Train: Bibliothèque François Mitterrand (SNCF station), Gare d'Austerlitz (TER) - Highways: A4 (Entrance), A4 (Exit Porte d'Ivry), A6a (Entrance D920), A6a, A6b (Exit), A6b (Entrance Porte d'Ivry).
- Can be combined with additional space(s) for up to 479,887 SF of adjacent space
- Security System
- Secure Storage
- last-mile logistics
- optimal connectivity
- Enclosed and secured site 24/7
PROPERTY OVERVIEW
Ideally located in the heart of Paris's 13th arrondissement, just five minutes from the ring road, offering quick access to all Parisian districts. This prime location ensures optimal connectivity, keeping you close to your clients and partners. **Features:** - Enclosed and secured site, monitored 24/7 with guard posts - Two levels accessible to heavy vehicles of all sizes, light commercial vehicles (LCVs), and cargo bikes - Electrical capacity for vehicle charging - Floor load capacity: - 3 T/m² on level 0 (Station) - 5 T/m² on level -1 (Hall) - Clear heights: - Up to 5 m on level 0 (Station) - 7 m on level -1 (Hall) - Dock doors and ground-level access (depending on units) - Average of 1 door per 700 m² - 100% LED lighting and white paint on walls and ceilings - ICPE compliance: 1510 and 2925 - Tools provided for managing logistical flows - Ground floor area: 0 m² - Land area: 0 **Location/Transportation:** - **Bus:** Regnault (83), Porte d'Ivry (27), Porte d'Ivry-Massena (N31) - **Metro:** Olympiades (Line 14), Porte d'Ivry (Line 7) - **RER:** Bibliothèque François Mitterrand (Line C) - **Tram:** Porte d'Ivry (T3a), Porte de Choisy (T9) - **SNCF:** Bibliothèque François Mitterrand (SNCF station) - **Transilien:** Gare d'Austerlitz (TER) - **Highways:** - A4 (Entrance), A4 (Exit Porte d'Ivry) - A6a (Entrance D920), A6a, A6b (Exit), A6b (Entrance Porte d'Ivry)
DISTRIBUTION FACILITY FACTS
Presented by
"75013 Paris"
Hmm, there seems to have been an error sending your message. Please try again.
Thanks! Your message was sent.


