Your email has been sent.
Greenwich Peninsula Campus 1 Hendon St 1,001 SF of 4-Star Retail Space Available in London SE10 0NF


Highlights
- Good road links
- Close proximity to local amenities
- Good transport links
Space Availability (1)
Display Rental Rate as
- Space
- Size
- Term
- Rental Rate
- Type
| Space | Size | Term | Rental Rate | Rent Type | ||
| Ground, Ste Unit A | 1,001 SF | Negotiable | Upon Request Upon Request Upon Request Upon Request | TBD |
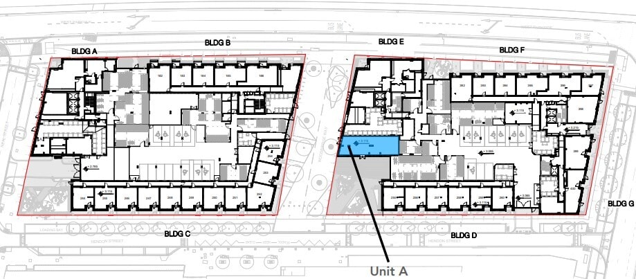
Ground, Ste Unit A
The available unit is situated at ground floor level only and fronts onto Woodbridge Way, which is the new route from the school to Peninsula Park. It is being handed over in shell and core condition, with shopfronts installed and capped-off services. Unit A benefits from Class E use and would suit a range of F&B, retail, fitness, or showroom occupiers, however, alternative uses will be considered. A new lease is being offered from the landlord on a term tobe agreed.
- Use Class: E
- Located in-line with other retail
- Space is in Excellent Condition
- Demised WC facilities
- Shell & Core
- Capped off services
- Lots of natural light
Service Types
The rent amount and service type that the tenant (lessee) will be responsible to pay to the landlord (lessor) throughout the lease term is negotiated prior to both parties signing a lease agreement. The service type will vary depending upon the services provided. Contact the listing broker for a full understanding of any associated costs or additional expenses for each service type.
1. Fully Repairing & Insuring: All obligations for repairing and insuring the property (or their share of the property) both internally and externally.
2. Internal Repairing Only: The tenant is responsible for internal repairs only. The landlord is responsible for structural and external repairs.
3. Internal Repairing & Insuring: The tenant is responsible for internal repairs and insurance for internal parts of the property only. The landlord is responsible for structural and external repairs.
4. Negotiable or TBD: This is used when the leasing contact does not provide the service type.
Property Facts
| Total Space Available | 1,001 SF | Year Built | 2026 |
| Property Type | Retail | Construction Status | Under Construction |
| Gross Leasable Area | 1,001 SF |
| Total Space Available | 1,001 SF |
| Property Type | Retail |
| Gross Leasable Area | 1,001 SF |
| Year Built | 2026 |
| Construction Status | Under Construction |
About the Property
Prime Point is situated on the south west side of West Parkside between Neal Street and John Harrison Way at the southern tip of the Greenwich Peninsula redevelopment, with St Mary Magdalene C of E Through School immediately to the south west. The O2 Arena is c. 15 minutes walk to the north which hosts a wide range of events with a number of retail and F&B offerings with c. 9 million visitors each year. North Greenwich Station (Jubilee Line services) is situated next to the O2 Arena and there are a number of bus routes serving the vicinity The Greenwich Peninsula scheme covers c. 150 acres and is due to provide over 17,000 new homes along with a significant amount of retail, F&B and workspace. The Greenwich Millennium Village scheme sits immediately to the south east of the site and that provides a further c. 3,500 new homes along with associated retail.
Nearby Major Retailers
Presented by
Greenwich Peninsula Campus | 1 Hendon St
Hmm, there seems to have been an error sending your message. Please try again.
Thanks! Your message was sent.


