Your email has been sent.
One North Wacker 1 N Wacker 3,492 - 126,392 SF of 4-Star Office Space Available in Chicago, IL 60606

Highlights
- 51-story, stainless steel Class A workplace with an iconic, light-filled lobby makes a bold first impression for customers and guests.
- Two on-site restaurants — Kinsley by Fairgrounds and One North Kitchen & Bar — offer delicious dawn-to-dusk destinations.
- High-touch, personalized approach to customer care aligns with our customers' uncompromising standards.
- With just a short walk to dining, Union Station and Ogilvie, and immediate access to the CTA, the best of Chicago is an extension of the workplace.
- Hospitality-inspired amenities include a private fitness center and The Commons, a conferencing/event center for trainings, meetings & collaboration.
- Flexible lease terms are backed by Irvine Co.’s long-term commitment and financial stability.
All Available Spaces(10)
Display Rental Rate as
- Space
- Size
- Term
- Rental Rate
- Space Use
- Build-Out
- Available
- Fully Built-Out as Standard Office
- Can be combined with additional space(s) for up to 8,263 SF of adjacent space
- Space is in Excellent Condition
- Fully Built-Out as Standard Office
- Can be combined with additional space(s) for up to 8,263 SF of adjacent space
- Space is in Excellent Condition
- High End Trophy Space
- Lease rate does not include utilities, property expenses or building services
- Lease rate does not include utilities, property expenses or building services
- Open-Plan
- Mostly Open Floor Plan Layout
- Can be combined with additional space(s) for up to 52,099 SF of adjacent space
- Can be combined with additional space(s) for up to 52,099 SF of adjacent space
| Space | Size | Term | Rental Rate | Space Use | Build-Out | Available |
| 5th Floor, Ste 510 | 3,617 SF | Negotiable | Upon Request Upon Request Upon Request Upon Request | Office | Full Build-Out | Now |
| 5th Floor, Ste 540 | 4,646 SF | Negotiable | Upon Request Upon Request Upon Request Upon Request | Office | Full Build-Out | Now |
| 8th Floor, Ste 850 | 14,778 SF | Negotiable | Upon Request Upon Request Upon Request Upon Request | Office | Partial Build-Out | Now |
| 17th Floor, Ste 1740 | 5,784 SF | Negotiable | Upon Request Upon Request Upon Request Upon Request | Office | Partial Build-Out | June 01, 2026 |
| 17th Floor, Ste 1775 | 4,545 SF | Negotiable | Upon Request Upon Request Upon Request Upon Request | Office | Partial Build-Out | June 01, 2026 |
| 19th Floor, Ste 1930 | 4,417 SF | Negotiable | Upon Request Upon Request Upon Request Upon Request | Office | - | August 01, 2026 |
| 28th Floor, Ste 2800 | 33,014 SF | Negotiable | Upon Request Upon Request Upon Request Upon Request | Office | Partial Build-Out | July 01, 2027 |
| 35th Floor, Ste 3575 | 3,492 SF | Negotiable | Upon Request Upon Request Upon Request Upon Request | Office | Partial Build-Out | July 01, 2026 |
| 46th Floor, Ste 4600 | 29,202 SF | Negotiable | Upon Request Upon Request Upon Request Upon Request | Office | Partial Build-Out | November 01, 2027 |
| 47th Floor, Ste 4700 | 22,897 SF | Negotiable | Upon Request Upon Request Upon Request Upon Request | Office | Partial Build-Out | November 01, 2027 |
5th Floor, Ste 510
| Size |
| 3,617 SF |
| Term |
| Negotiable |
| Rental Rate |
| Upon Request Upon Request Upon Request Upon Request |
| Space Use |
| Office |
| Build-Out |
| Full Build-Out |
| Available |
| Now |
5th Floor, Ste 540
| Size |
| 4,646 SF |
| Term |
| Negotiable |
| Rental Rate |
| Upon Request Upon Request Upon Request Upon Request |
| Space Use |
| Office |
| Build-Out |
| Full Build-Out |
| Available |
| Now |
8th Floor, Ste 850
| Size |
| 14,778 SF |
| Term |
| Negotiable |
| Rental Rate |
| Upon Request Upon Request Upon Request Upon Request |
| Space Use |
| Office |
| Build-Out |
| Partial Build-Out |
| Available |
| Now |
17th Floor, Ste 1740
| Size |
| 5,784 SF |
| Term |
| Negotiable |
| Rental Rate |
| Upon Request Upon Request Upon Request Upon Request |
| Space Use |
| Office |
| Build-Out |
| Partial Build-Out |
| Available |
| June 01, 2026 |
17th Floor, Ste 1775
| Size |
| 4,545 SF |
| Term |
| Negotiable |
| Rental Rate |
| Upon Request Upon Request Upon Request Upon Request |
| Space Use |
| Office |
| Build-Out |
| Partial Build-Out |
| Available |
| June 01, 2026 |
19th Floor, Ste 1930
| Size |
| 4,417 SF |
| Term |
| Negotiable |
| Rental Rate |
| Upon Request Upon Request Upon Request Upon Request |
| Space Use |
| Office |
| Build-Out |
| - |
| Available |
| August 01, 2026 |
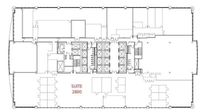
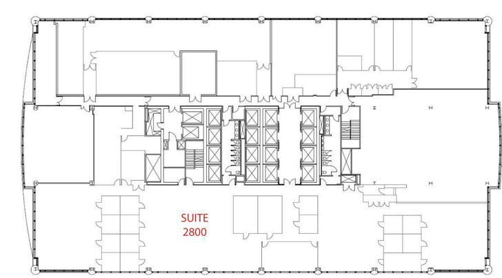
28th Floor, Ste 2800
| Size |
| 33,014 SF |
| Term |
| Negotiable |
| Rental Rate |
| Upon Request Upon Request Upon Request Upon Request |
| Space Use |
| Office |
| Build-Out |
| Partial Build-Out |
| Available |
| July 01, 2027 |
35th Floor, Ste 3575
| Size |
| 3,492 SF |
| Term |
| Negotiable |
| Rental Rate |
| Upon Request Upon Request Upon Request Upon Request |
| Space Use |
| Office |
| Build-Out |
| Partial Build-Out |
| Available |
| July 01, 2026 |
46th Floor, Ste 4600
| Size |
| 29,202 SF |
| Term |
| Negotiable |
| Rental Rate |
| Upon Request Upon Request Upon Request Upon Request |
| Space Use |
| Office |
| Build-Out |
| Partial Build-Out |
| Available |
| November 01, 2027 |
47th Floor, Ste 4700
| Size |
| 22,897 SF |
| Term |
| Negotiable |
| Rental Rate |
| Upon Request Upon Request Upon Request Upon Request |
| Space Use |
| Office |
| Build-Out |
| Partial Build-Out |
| Available |
| November 01, 2027 |
5th Floor, Ste 510
| Size | 3,617 SF |
| Term | Negotiable |
| Rental Rate | Upon Request |
| Space Use | Office |
| Build-Out | Full Build-Out |
| Available | Now |
- Fully Built-Out as Standard Office
- Space is in Excellent Condition
- Can be combined with additional space(s) for up to 8,263 SF of adjacent space
5th Floor, Ste 540
| Size | 4,646 SF |
| Term | Negotiable |
| Rental Rate | Upon Request |
| Space Use | Office |
| Build-Out | Full Build-Out |
| Available | Now |
- Fully Built-Out as Standard Office
- Space is in Excellent Condition
- Can be combined with additional space(s) for up to 8,263 SF of adjacent space
8th Floor, Ste 850
| Size | 14,778 SF |
| Term | Negotiable |
| Rental Rate | Upon Request |
| Space Use | Office |
| Build-Out | Partial Build-Out |
| Available | Now |
- High End Trophy Space
17th Floor, Ste 1740
| Size | 5,784 SF |
| Term | Negotiable |
| Rental Rate | Upon Request |
| Space Use | Office |
| Build-Out | Partial Build-Out |
| Available | June 01, 2026 |
17th Floor, Ste 1775
| Size | 4,545 SF |
| Term | Negotiable |
| Rental Rate | Upon Request |
| Space Use | Office |
| Build-Out | Partial Build-Out |
| Available | June 01, 2026 |
19th Floor, Ste 1930
| Size | 4,417 SF |
| Term | Negotiable |
| Rental Rate | Upon Request |
| Space Use | Office |
| Build-Out | - |
| Available | August 01, 2026 |
- Lease rate does not include utilities, property expenses or building services
28th Floor, Ste 2800
| Size | 33,014 SF |
| Term | Negotiable |
| Rental Rate | Upon Request |
| Space Use | Office |
| Build-Out | Partial Build-Out |
| Available | July 01, 2027 |
- Lease rate does not include utilities, property expenses or building services
- Mostly Open Floor Plan Layout
- Open-Plan
35th Floor, Ste 3575
| Size | 3,492 SF |
| Term | Negotiable |
| Rental Rate | Upon Request |
| Space Use | Office |
| Build-Out | Partial Build-Out |
| Available | July 01, 2026 |
46th Floor, Ste 4600
| Size | 29,202 SF |
| Term | Negotiable |
| Rental Rate | Upon Request |
| Space Use | Office |
| Build-Out | Partial Build-Out |
| Available | November 01, 2027 |
- Can be combined with additional space(s) for up to 52,099 SF of adjacent space
47th Floor, Ste 4700
| Size | 22,897 SF |
| Term | Negotiable |
| Rental Rate | Upon Request |
| Space Use | Office |
| Build-Out | Partial Build-Out |
| Available | November 01, 2027 |
- Can be combined with additional space(s) for up to 52,099 SF of adjacent space
Property Overview
At the epicenter of the best Chicago has to offer, One North Wacker is a timelessly elegant workplace that engages and inspires at every turn: from a full suite of hospitality-inspired amenities and flexible workspaces tailored to your working style to a centralized location that fast tracks every kind of commute. For those ready to raise the standard of their work environment, One North Wacker delivers the ultimate in prestige, engagement, and success — all backed by Irvine Co.'s industry-leading financial stability and exceptional customer care.
- Atrium
- Banking
- Controlled Access
- Conferencing Facility
- Convenience Store
- Fitness Center
- Food Service
- Metro/Subway
- Property Manager on Site
- Restaurant
Property Facts
Sustainability
Sustainability
LEED Certification Developed by the U.S. Green Building Council (USGBC), the Leadership in Energy and Environmental Design (LEED) is a green building certification program focused on the design, construction, operation, and maintenance of green buildings, homes, and neighborhoods, which aims to help building owners and operators be environmentally responsible and use resources efficiently. LEED certification is a globally recognized symbol of sustainability achievement and leadership. To achieve LEED certification, a project earns points by adhering to prerequisites and credits that address carbon, energy, water, waste, transportation, materials, health and indoor environmental quality. Projects go through a verification and review process and are awarded points that correspond to a level of LEED certification: Platinum (80+ points) Gold (60-79 points) Silver (50-59 points) Certified (40-49 points)






















