Your email has been sent.
Highlights
- Streamline daily commutes with convenient access to the 5, 405 and 133 Freeways and the 241 Toll Road and the Irvine Station transportation hub
- Stay active and fit with KINETIC™ fitness centers at 200 & 400 Spectrum and 20 Pacifica
- Steps from Irvine Spectrum Center®, one of Southern California’s top retail and dining destinations with 150+ stores, restaurants and entertainment
- Amenities including auto detailing, EV charging stations, Envoy On-Demand Electric Vehicles, dry cleaning, and a state-of-the-art Conference Center
- Certified LEED® Gold by U.S. Green Building Council & ENERGY STAR® by U.S. Environmental Protection Agency
- Newly Revitalized: Connect and collaborate with colleagues beyond the everyday office in a revitalized, dynamic open-air gathering space
All Available Spaces(10)
Display Rental Rate as
- Space
- Size
- Term
- Rental Rate
- Space Use
- Build-Out
- Available
- Rate includes utilities, building services and property expenses
Call to show under construction
- Rate includes utilities, building services and property expenses
- Rate includes utilities, building services and property expenses
- Open Floor Plan Layout
- Fully Built-Out as Standard Office
This is a Flex Workspace+tm suite : Yes
- Rate includes utilities, building services and property expenses
This is a Flex Workspace+tm suite : Yes
- Rate includes utilities, building services and property expenses
- Open Floor Plan Layout
- Fully Built-Out as Standard Office
This is a Flex Workspace+tm suite : Yes
- Rate includes utilities, building services and property expenses
- Rate includes utilities, building services and property expenses
This is a Flex Workspace+tm suite : Yes
- Rate includes utilities, building services and property expenses
- Mostly Open Floor Plan Layout
- Fully Built-Out as Standard Office
- Rate includes utilities, building services and property expenses
Call to show under construction
- Rate includes utilities, building services and property expenses
| Space | Size | Term | Rental Rate | Space Use | Build-Out | Available |
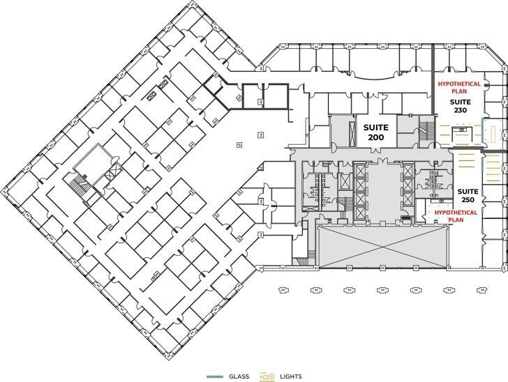
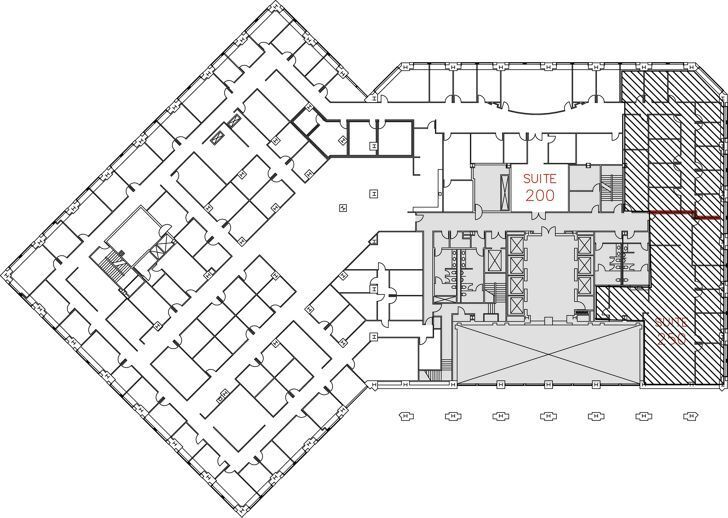
| 2nd Floor, Ste 230 | 3,636 SF | Negotiable | $42.00 /SF/YR $3.50 /SF/MO $152,712 /YR $12,726 /MO | Office | - | September 01, 2026 |
| 2nd Floor, Ste 250 | 3,666 SF | Negotiable | $42.00 /SF/YR $3.50 /SF/MO $153,972 /YR $12,831 /MO | Office | Spec Suite | September 01, 2026 |
| 4th Floor, Ste 420 | 4,170 SF | Negotiable | $42.60 /SF/YR $3.55 /SF/MO $177,642 /YR $14,804 /MO | Office | Full Build-Out | July 01, 2026 |
| 4th Floor, Ste 440 | 3,369 SF | Negotiable | $42.60 /SF/YR $3.55 /SF/MO $143,519 /YR $11,960 /MO | Office | - | Now |
| 4th Floor, Ste 450 | 5,125 SF | Negotiable | $42.60 /SF/YR $3.55 /SF/MO $218,325 /YR $18,194 /MO | Office | Full Build-Out | Now |
| 5th Floor, Ste 520 | 4,150 SF | Negotiable | $42.60 /SF/YR $3.55 /SF/MO $176,790 /YR $14,733 /MO | Office | - | September 01, 2026 |
| 5th Floor, Ste 560 | 2,665 SF | Negotiable | $42.60 /SF/YR $3.55 /SF/MO $113,529 /YR $9,461 /MO | Office | - | June 01, 2026 |
| 10th Floor, Ste 1000 | 9,608 SF | Negotiable | $44.40 /SF/YR $3.70 /SF/MO $426,595 /YR $35,550 /MO | Office | Full Build-Out | Now |
| 10th Floor, Ste 1020 | 2,690 SF | Negotiable | $44.40 /SF/YR $3.70 /SF/MO $119,436 /YR $9,953 /MO | Office | - | 30 Days |
| 12th Floor, Ste 1260 | 1,456 SF | Negotiable | $45.00 /SF/YR $3.75 /SF/MO $65,520 /YR $5,460 /MO | Office | Spec Suite | June 01, 2026 |
2nd Floor, Ste 230
| Size |
| 3,636 SF |
| Term |
| Negotiable |
| Rental Rate |
| $42.00 /SF/YR $3.50 /SF/MO $152,712 /YR $12,726 /MO |
| Space Use |
| Office |
| Build-Out |
| - |
| Available |
| September 01, 2026 |
2nd Floor, Ste 250
| Size |
| 3,666 SF |
| Term |
| Negotiable |
| Rental Rate |
| $42.00 /SF/YR $3.50 /SF/MO $153,972 /YR $12,831 /MO |
| Space Use |
| Office |
| Build-Out |
| Spec Suite |
| Available |
| September 01, 2026 |
4th Floor, Ste 420
| Size |
| 4,170 SF |
| Term |
| Negotiable |
| Rental Rate |
| $42.60 /SF/YR $3.55 /SF/MO $177,642 /YR $14,804 /MO |
| Space Use |
| Office |
| Build-Out |
| Full Build-Out |
| Available |
| July 01, 2026 |
4th Floor, Ste 440
| Size |
| 3,369 SF |
| Term |
| Negotiable |
| Rental Rate |
| $42.60 /SF/YR $3.55 /SF/MO $143,519 /YR $11,960 /MO |
| Space Use |
| Office |
| Build-Out |
| - |
| Available |
| Now |
4th Floor, Ste 450
| Size |
| 5,125 SF |
| Term |
| Negotiable |
| Rental Rate |
| $42.60 /SF/YR $3.55 /SF/MO $218,325 /YR $18,194 /MO |
| Space Use |
| Office |
| Build-Out |
| Full Build-Out |
| Available |
| Now |
5th Floor, Ste 520
| Size |
| 4,150 SF |
| Term |
| Negotiable |
| Rental Rate |
| $42.60 /SF/YR $3.55 /SF/MO $176,790 /YR $14,733 /MO |
| Space Use |
| Office |
| Build-Out |
| - |
| Available |
| September 01, 2026 |
5th Floor, Ste 560
| Size |
| 2,665 SF |
| Term |
| Negotiable |
| Rental Rate |
| $42.60 /SF/YR $3.55 /SF/MO $113,529 /YR $9,461 /MO |
| Space Use |
| Office |
| Build-Out |
| - |
| Available |
| June 01, 2026 |
10th Floor, Ste 1000
| Size |
| 9,608 SF |
| Term |
| Negotiable |
| Rental Rate |
| $44.40 /SF/YR $3.70 /SF/MO $426,595 /YR $35,550 /MO |
| Space Use |
| Office |
| Build-Out |
| Full Build-Out |
| Available |
| Now |
10th Floor, Ste 1020
| Size |
| 2,690 SF |
| Term |
| Negotiable |
| Rental Rate |
| $44.40 /SF/YR $3.70 /SF/MO $119,436 /YR $9,953 /MO |
| Space Use |
| Office |
| Build-Out |
| - |
| Available |
| 30 Days |
12th Floor, Ste 1260
| Size |
| 1,456 SF |
| Term |
| Negotiable |
| Rental Rate |
| $45.00 /SF/YR $3.75 /SF/MO $65,520 /YR $5,460 /MO |
| Space Use |
| Office |
| Build-Out |
| Spec Suite |
| Available |
| June 01, 2026 |
2nd Floor, Ste 230
| Size | 3,636 SF |
| Term | Negotiable |
| Rental Rate | $42.00 /SF/YR |
| Space Use | Office |
| Build-Out | - |
| Available | September 01, 2026 |
- Rate includes utilities, building services and property expenses
2nd Floor, Ste 250
| Size | 3,666 SF |
| Term | Negotiable |
| Rental Rate | $42.00 /SF/YR |
| Space Use | Office |
| Build-Out | Spec Suite |
| Available | September 01, 2026 |
Call to show under construction
- Rate includes utilities, building services and property expenses
4th Floor, Ste 420
| Size | 4,170 SF |
| Term | Negotiable |
| Rental Rate | $42.60 /SF/YR |
| Space Use | Office |
| Build-Out | Full Build-Out |
| Available | July 01, 2026 |
- Rate includes utilities, building services and property expenses
- Fully Built-Out as Standard Office
- Open Floor Plan Layout
4th Floor, Ste 440
| Size | 3,369 SF |
| Term | Negotiable |
| Rental Rate | $42.60 /SF/YR |
| Space Use | Office |
| Build-Out | - |
| Available | Now |
This is a Flex Workspace+tm suite : Yes
- Rate includes utilities, building services and property expenses
4th Floor, Ste 450
| Size | 5,125 SF |
| Term | Negotiable |
| Rental Rate | $42.60 /SF/YR |
| Space Use | Office |
| Build-Out | Full Build-Out |
| Available | Now |
This is a Flex Workspace+tm suite : Yes
- Rate includes utilities, building services and property expenses
- Fully Built-Out as Standard Office
- Open Floor Plan Layout
5th Floor, Ste 520
| Size | 4,150 SF |
| Term | Negotiable |
| Rental Rate | $42.60 /SF/YR |
| Space Use | Office |
| Build-Out | - |
| Available | September 01, 2026 |
This is a Flex Workspace+tm suite : Yes
- Rate includes utilities, building services and property expenses
5th Floor, Ste 560
| Size | 2,665 SF |
| Term | Negotiable |
| Rental Rate | $42.60 /SF/YR |
| Space Use | Office |
| Build-Out | - |
| Available | June 01, 2026 |
- Rate includes utilities, building services and property expenses
10th Floor, Ste 1000
| Size | 9,608 SF |
| Term | Negotiable |
| Rental Rate | $44.40 /SF/YR |
| Space Use | Office |
| Build-Out | Full Build-Out |
| Available | Now |
This is a Flex Workspace+tm suite : Yes
- Rate includes utilities, building services and property expenses
- Fully Built-Out as Standard Office
- Mostly Open Floor Plan Layout
10th Floor, Ste 1020
| Size | 2,690 SF |
| Term | Negotiable |
| Rental Rate | $44.40 /SF/YR |
| Space Use | Office |
| Build-Out | - |
| Available | 30 Days |
- Rate includes utilities, building services and property expenses
12th Floor, Ste 1260
| Size | 1,456 SF |
| Term | Negotiable |
| Rental Rate | $45.00 /SF/YR |
| Space Use | Office |
| Build-Out | Spec Suite |
| Available | June 01, 2026 |
Call to show under construction
- Rate includes utilities, building services and property expenses
Property Overview
Claim your status at the top at 100 Spectrum Center, a striking 15-story vertical campus and part of Irvine’s distinctive Spectrum Skyline®. With 360-degree panoramic views, an impressive marble lobby staffed by attentive ambassadors, WiFi-enabled open-air outdoor workspaces, and immaculate landscaping, 100 Spectrum makes a bold impression on clients, teams and partners. Convenient access to the 5, 405 and 133 Freeways and the 241 Toll Road makes commuting easy, and nearby Irvine Spectrum Center® offers a wealth of dining, entertainment and shopping options.
- 24 Hour Access
- Conferencing Facility
- Fitness Center
- Food Service
- Security System
- Wheelchair Accessible
- Reception
- Car Charging Station
- Air Conditioning
Property Facts
Sustainability
Sustainability
LEED Certification Developed by the U.S. Green Building Council (USGBC), the Leadership in Energy and Environmental Design (LEED) is a green building certification program focused on the design, construction, operation, and maintenance of green buildings, homes, and neighborhoods, which aims to help building owners and operators be environmentally responsible and use resources efficiently. LEED certification is a globally recognized symbol of sustainability achievement and leadership. To achieve LEED certification, a project earns points by adhering to prerequisites and credits that address carbon, energy, water, waste, transportation, materials, health and indoor environmental quality. Projects go through a verification and review process and are awarded points that correspond to a level of LEED certification: Platinum (80+ points) Gold (60-79 points) Silver (50-59 points) Certified (40-49 points)




















