Your email has been sent.
Highlights
- Historic brick-and-timber buildings reimagined with modern creative interiors and WELL Health-Safety certification.
- Prime North Waterfront location steps from top dining, retail, fitness, and the Financial District.
- Multiple interconnected buildings offering a range of spec suites and custom configurations that support teams of varying sizes.
- Strong amenity package including showers, collaboration zones, phone rooms, kitchens, and abundant natural light.
All Available Spaces(7)
Display Rental Rate as
- Space
- Size
- Term
- Rental Rate
- Space Use
- Build-Out
- Available
The first floor offers a spec suite with eleven private offices, multiple conference rooms of varying sizes, collaborative work areas, a large kitchen and all-hands space, and dedicated coffee bars. This level also includes phone rooms, a reception area, an IT room, storage areas, and capacity for extensive workstation layouts.
- Fully Built-Out as Standard Office
- 11 Private Offices
- 184 Workstations
- Can be combined with additional space(s) for up to 78,243 SF of adjacent space
- Kitchen
- Shower Facilities
- Fits 74 - 237 People
- 3 Conference Rooms
- Space is in Excellent Condition
- Reception Area
- Print/Copy Room
- Features a large kitchen/all-hands area
Reception/Entrance Area
- Fully Built-Out as Standard Office
- Fits 1 - 2 People
- Mostly Open Floor Plan Layout
- Can be combined with additional space(s) for up to 78,243 SF of adjacent space
Soaring Ceilings 1 reception area 6 private offices 1 large, 1 medium conference room Open seating for 14 Workstations 1 kitchen/break area Mezzanine open to below 1 print/copy area Men’s + Women’s restroom 2 storage rooms IT room Exclusive entrance and branding opportunities
- Fully Built-Out as Standard Office
- Fits 16 - 50 People
- 2 Conference Rooms
- Reception Area
- Quintessential Brick and Timber Construction
- Mostly Open Floor Plan Layout
- 6 Private Offices
- 14 Workstations
- Private Restrooms
The second floor features fourteen private offices, several conference rooms, collaborative zones, copy areas, and room for additional workstations. This floor also provides open mezzanine areas, high ceilings, and a mix of open plan layouts suited for creative teams.
- Fully Built-Out as Standard Office
- Fits 30 - 95 People
- 4 Conference Rooms
- Space is in Excellent Condition
- Print/Copy Room
- Creative Brick & Timber Space
- Mostly Open Floor Plan Layout
- 14 Private Offices
- 42 Workstations
- Can be combined with additional space(s) for up to 78,243 SF of adjacent space
- Shower Facilities
- Soaring Ceilings
1 Mezzanine Space
- Fully Built-Out as Standard Office
- Fits 3 - 8 People
- Mostly Open Floor Plan Layout
- Space is in Excellent Condition
The third floor includes eight private offices, a combination of large, medium, and small conference rooms, multiple phone rooms, collaborative zones, and a wellness room. Additional features of the third floor include IT and storage rooms, a kitchen and break area, and extensive open workspace with workstation capacity.
- Fully Built-Out as Standard Office
- Fits 46 - 145 People
- 8 Conference Rooms
- Can be combined with additional space(s) for up to 78,243 SF of adjacent space
- Creative Brick & Timber Space
- Mostly Open Floor Plan Layout
- 8 Private Offices
- Space is in Excellent Condition
- Print/Copy Room
1 reception area 8 private offices 1 large, 3 medium, 3 small conference rooms 1 kitchen/break area 3 phone rooms 1 print/copy area Men’s + Women’s restroom + 1 unisex restroom 3 storage rooms Open to 48 Workstations IT room/Electrical Room Wellness room 3 work/prep/viewing rooms High ceilings, with slylights
- Fully Built-Out as Standard Office
- Fits 47 - 149 People
- 7 Conference Rooms
- Finished Ceilings: 14’
- Can be combined with additional space(s) for up to 78,243 SF of adjacent space
- Kitchen
- Mostly Open Floor Plan Layout
- 8 Private Offices
- 48 Workstations
- Space is in Excellent Condition
- Reception Area
- Extra ordinary Brick and Timber opportunity
| Space | Size | Term | Rental Rate | Space Use | Build-Out | Available |
| 1st Floor, Ste 1001 Front | 29,536 SF | Negotiable | Upon Request Upon Request Upon Request Upon Request | Office | Full Build-Out | Now |
| 1st Floor, Ste 1010 Battery | 208 SF | Negotiable | Upon Request Upon Request Upon Request Upon Request | Office | Full Build-Out | Now |
| 1st Floor, Ste 1040 Battery | 6,218 SF | Negotiable | Upon Request Upon Request Upon Request Upon Request | Office | Full Build-Out | Now |
| 2nd Floor, Ste 1001 Front St | 11,802 SF | Negotiable | Upon Request Upon Request Upon Request Upon Request | Office | Full Build-Out | Now |
| 2nd Floor, Ste Mezz | 938 SF | Negotiable | Upon Request Upon Request Upon Request Upon Request | Office | Full Build-Out | Now |
| 3rd Floor, Ste 1001 Front | 18,091 SF | Negotiable | Upon Request Upon Request Upon Request Upon Request | Office | Full Build-Out | Now |
| 3rd Floor, Ste 1010 Battery - 2nd | 18,606 SF | Negotiable | Upon Request Upon Request Upon Request Upon Request | Office | Full Build-Out | Now |
1st Floor, Ste 1001 Front
| Size |
| 29,536 SF |
| Term |
| Negotiable |
| Rental Rate |
| Upon Request Upon Request Upon Request Upon Request |
| Space Use |
| Office |
| Build-Out |
| Full Build-Out |
| Available |
| Now |
1st Floor, Ste 1010 Battery
| Size |
| 208 SF |
| Term |
| Negotiable |
| Rental Rate |
| Upon Request Upon Request Upon Request Upon Request |
| Space Use |
| Office |
| Build-Out |
| Full Build-Out |
| Available |
| Now |
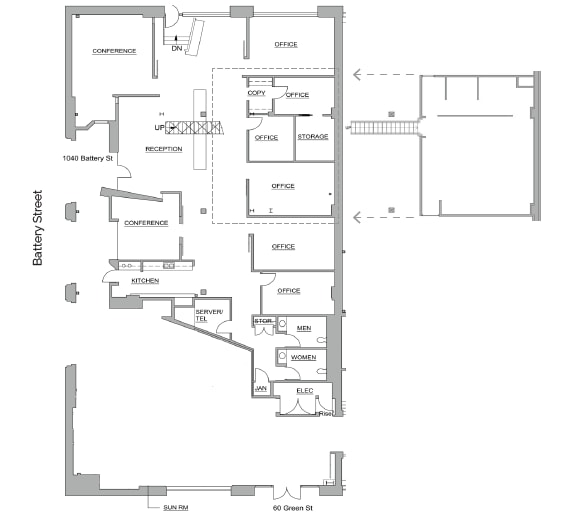
1st Floor, Ste 1040 Battery
| Size |
| 6,218 SF |
| Term |
| Negotiable |
| Rental Rate |
| Upon Request Upon Request Upon Request Upon Request |
| Space Use |
| Office |
| Build-Out |
| Full Build-Out |
| Available |
| Now |
2nd Floor, Ste 1001 Front St
| Size |
| 11,802 SF |
| Term |
| Negotiable |
| Rental Rate |
| Upon Request Upon Request Upon Request Upon Request |
| Space Use |
| Office |
| Build-Out |
| Full Build-Out |
| Available |
| Now |
2nd Floor, Ste Mezz
| Size |
| 938 SF |
| Term |
| Negotiable |
| Rental Rate |
| Upon Request Upon Request Upon Request Upon Request |
| Space Use |
| Office |
| Build-Out |
| Full Build-Out |
| Available |
| Now |
3rd Floor, Ste 1001 Front
| Size |
| 18,091 SF |
| Term |
| Negotiable |
| Rental Rate |
| Upon Request Upon Request Upon Request Upon Request |
| Space Use |
| Office |
| Build-Out |
| Full Build-Out |
| Available |
| Now |
3rd Floor, Ste 1010 Battery - 2nd
| Size |
| 18,606 SF |
| Term |
| Negotiable |
| Rental Rate |
| Upon Request Upon Request Upon Request Upon Request |
| Space Use |
| Office |
| Build-Out |
| Full Build-Out |
| Available |
| Now |
1st Floor, Ste 1001 Front
| Size | 29,536 SF |
| Term | Negotiable |
| Rental Rate | Upon Request |
| Space Use | Office |
| Build-Out | Full Build-Out |
| Available | Now |
The first floor offers a spec suite with eleven private offices, multiple conference rooms of varying sizes, collaborative work areas, a large kitchen and all-hands space, and dedicated coffee bars. This level also includes phone rooms, a reception area, an IT room, storage areas, and capacity for extensive workstation layouts.
- Fully Built-Out as Standard Office
- Fits 74 - 237 People
- 11 Private Offices
- 3 Conference Rooms
- 184 Workstations
- Space is in Excellent Condition
- Can be combined with additional space(s) for up to 78,243 SF of adjacent space
- Reception Area
- Kitchen
- Print/Copy Room
- Shower Facilities
- Features a large kitchen/all-hands area
1st Floor, Ste 1010 Battery
| Size | 208 SF |
| Term | Negotiable |
| Rental Rate | Upon Request |
| Space Use | Office |
| Build-Out | Full Build-Out |
| Available | Now |
Reception/Entrance Area
- Fully Built-Out as Standard Office
- Mostly Open Floor Plan Layout
- Fits 1 - 2 People
- Can be combined with additional space(s) for up to 78,243 SF of adjacent space
1st Floor, Ste 1040 Battery
| Size | 6,218 SF |
| Term | Negotiable |
| Rental Rate | Upon Request |
| Space Use | Office |
| Build-Out | Full Build-Out |
| Available | Now |
Soaring Ceilings 1 reception area 6 private offices 1 large, 1 medium conference room Open seating for 14 Workstations 1 kitchen/break area Mezzanine open to below 1 print/copy area Men’s + Women’s restroom 2 storage rooms IT room Exclusive entrance and branding opportunities
- Fully Built-Out as Standard Office
- Mostly Open Floor Plan Layout
- Fits 16 - 50 People
- 6 Private Offices
- 2 Conference Rooms
- 14 Workstations
- Reception Area
- Private Restrooms
- Quintessential Brick and Timber Construction
2nd Floor, Ste 1001 Front St
| Size | 11,802 SF |
| Term | Negotiable |
| Rental Rate | Upon Request |
| Space Use | Office |
| Build-Out | Full Build-Out |
| Available | Now |
The second floor features fourteen private offices, several conference rooms, collaborative zones, copy areas, and room for additional workstations. This floor also provides open mezzanine areas, high ceilings, and a mix of open plan layouts suited for creative teams.
- Fully Built-Out as Standard Office
- Mostly Open Floor Plan Layout
- Fits 30 - 95 People
- 14 Private Offices
- 4 Conference Rooms
- 42 Workstations
- Space is in Excellent Condition
- Can be combined with additional space(s) for up to 78,243 SF of adjacent space
- Print/Copy Room
- Shower Facilities
- Creative Brick & Timber Space
- Soaring Ceilings
2nd Floor, Ste Mezz
| Size | 938 SF |
| Term | Negotiable |
| Rental Rate | Upon Request |
| Space Use | Office |
| Build-Out | Full Build-Out |
| Available | Now |
1 Mezzanine Space
- Fully Built-Out as Standard Office
- Mostly Open Floor Plan Layout
- Fits 3 - 8 People
- Space is in Excellent Condition
3rd Floor, Ste 1001 Front
| Size | 18,091 SF |
| Term | Negotiable |
| Rental Rate | Upon Request |
| Space Use | Office |
| Build-Out | Full Build-Out |
| Available | Now |
The third floor includes eight private offices, a combination of large, medium, and small conference rooms, multiple phone rooms, collaborative zones, and a wellness room. Additional features of the third floor include IT and storage rooms, a kitchen and break area, and extensive open workspace with workstation capacity.
- Fully Built-Out as Standard Office
- Mostly Open Floor Plan Layout
- Fits 46 - 145 People
- 8 Private Offices
- 8 Conference Rooms
- Space is in Excellent Condition
- Can be combined with additional space(s) for up to 78,243 SF of adjacent space
- Print/Copy Room
- Creative Brick & Timber Space
3rd Floor, Ste 1010 Battery - 2nd
| Size | 18,606 SF |
| Term | Negotiable |
| Rental Rate | Upon Request |
| Space Use | Office |
| Build-Out | Full Build-Out |
| Available | Now |
1 reception area 8 private offices 1 large, 3 medium, 3 small conference rooms 1 kitchen/break area 3 phone rooms 1 print/copy area Men’s + Women’s restroom + 1 unisex restroom 3 storage rooms Open to 48 Workstations IT room/Electrical Room Wellness room 3 work/prep/viewing rooms High ceilings, with slylights
- Fully Built-Out as Standard Office
- Mostly Open Floor Plan Layout
- Fits 47 - 149 People
- 8 Private Offices
- 7 Conference Rooms
- 48 Workstations
- Finished Ceilings: 14’
- Space is in Excellent Condition
- Can be combined with additional space(s) for up to 78,243 SF of adjacent space
- Reception Area
- Kitchen
- Extra ordinary Brick and Timber opportunity
Property Overview
The North Waterfront Portfolio delivers an opportunity to occupy a collection of architecturally rich, fully modernized office environments along San Francisco’s historic waterfront. Blending exposed brick, timber details, and high ceilings with contemporary creative buildouts, these WELL Health-Safety Rated buildings offer a premium workspace experience designed for today’s high-performance teams. Across 1001 Front, 1010 Battery, 1040 Battery, and One Lombard, tenants can choose from an array of spec suites, full floors, and interconnected configurations that support a variety of workplace strategies, from collaborative open layouts to executive-oriented private office settings. Each building provides thoughtful amenities including expansive kitchens, conference rooms, showers, phone rooms, wellness spaces, and abundant natural light. Located steps from renowned dining, boutique retail, and the Financial District, the portfolio gives companies immediate access to one of San Francisco’s most vibrant and walkable neighborhoods. With flexible occupancy options, creative layouts, and a blend of historic charm and modern efficiency, the North Waterfront Portfolio stands out as a distinctive corporate destination.
Property Facts
Sustainability
Sustainability
LEED Certification Developed by the U.S. Green Building Council (USGBC), the Leadership in Energy and Environmental Design (LEED) is a green building certification program focused on the design, construction, operation, and maintenance of green buildings, homes, and neighborhoods, which aims to help building owners and operators be environmentally responsible and use resources efficiently. LEED certification is a globally recognized symbol of sustainability achievement and leadership. To achieve LEED certification, a project earns points by adhering to prerequisites and credits that address carbon, energy, water, waste, transportation, materials, health and indoor environmental quality. Projects go through a verification and review process and are awarded points that correspond to a level of LEED certification: Platinum (80+ points) Gold (60-79 points) Silver (50-59 points) Certified (40-49 points)
Presented by
1001 Front St
Hmm, there seems to have been an error sending your message. Please try again.
Thanks! Your message was sent.


















