Your email has been sent.
10101 Nordel Ct 54,274 SF of Industrial Space Available in Delta, BC V4G 1J8



Highlights
- Strategic Delta location with direct access to Hwy 91, Hwy 99, Hwy 17, and SFPR.
- New LED lighting in the warehouse.
- 24-foot clear ceiling height with skylights and ceiling fans.
- Fully sprinklered with 1,200 amp / 600 volt power and compressed air lines.
- Three dock doors and one oversized grade-level loading door.
- Bright, flexible office space with glazing, mezzanine, and showroom.
Features
All Available Space(1)
Display Rental Rate as
- Space
- Size
- Term
- Rental Rate
- Space Use
- Build-Out
- Available
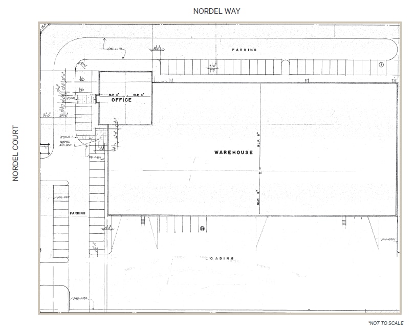
The warehouse features 24-foot clear ceiling heights, three dock loading doors (with potential for more), and one oversized grade-level loading door. The space is fully sprinklered and equipped with a 1,200 amp / 600 volt electrical service, skylights, ceiling fans, and new LED lighting. An air makeup system and compressed air lines are also in place, supporting a wide range of industrial uses. The office component is equally impressive, with extensive glazing that floods the space with natural light. It includes multiple private offices, a reception area, a showroom/display section, and a mezzanine-level lunchroom. Office finishes can be tailored to suit tenant needs, offering flexibility and comfort for administrative functions. Located on a 3-acre site with ample parking and efficient circulation, this facility is ready for immediate occupancy and offers an incentive lease rate for qualified tenants.
- Lease rate does not include utilities, property expenses or building services
- 1 Drive Bay
- Reception Area
- Secure Storage
- 24’ clear ceiling height in warehouse.
- Multiple private offices.
- Includes 6,596 SF of dedicated office space
- 3 Loading Docks
- Private Restrooms
- Natural Light
- Extensive glazing & natural light in the office.
- Fully sprinklered.
| Space | Size | Term | Rental Rate | Space Use | Build-Out | Available |
| 1st Floor - 100 | 54,274 SF | 1-10 Years | $13.19 USD/SF/YR $1.10 USD/SF/MO $716,068 USD/YR $59,672 USD/MO | Industrial | Partial Build-Out | Now |
1st Floor - 100
| Size |
| 54,274 SF |
| Term |
| 1-10 Years |
| Rental Rate |
| $13.19 USD/SF/YR $1.10 USD/SF/MO $716,068 USD/YR $59,672 USD/MO |
| Space Use |
| Industrial |
| Build-Out |
| Partial Build-Out |
| Available |
| Now |
1st Floor - 100
| Size | 54,274 SF |
| Term | 1-10 Years |
| Rental Rate | $13.19 USD/SF/YR |
| Space Use | Industrial |
| Build-Out | Partial Build-Out |
| Available | Now |
The warehouse features 24-foot clear ceiling heights, three dock loading doors (with potential for more), and one oversized grade-level loading door. The space is fully sprinklered and equipped with a 1,200 amp / 600 volt electrical service, skylights, ceiling fans, and new LED lighting. An air makeup system and compressed air lines are also in place, supporting a wide range of industrial uses. The office component is equally impressive, with extensive glazing that floods the space with natural light. It includes multiple private offices, a reception area, a showroom/display section, and a mezzanine-level lunchroom. Office finishes can be tailored to suit tenant needs, offering flexibility and comfort for administrative functions. Located on a 3-acre site with ample parking and efficient circulation, this facility is ready for immediate occupancy and offers an incentive lease rate for qualified tenants.
- Lease rate does not include utilities, property expenses or building services
- Includes 6,596 SF of dedicated office space
- 1 Drive Bay
- 3 Loading Docks
- Reception Area
- Private Restrooms
- Secure Storage
- Natural Light
- 24’ clear ceiling height in warehouse.
- Extensive glazing & natural light in the office.
- Multiple private offices.
- Fully sprinklered.
Property Overview
Positioned in the heart of Delta’s Nordel Business Park, 10101 Nordel Court offers a rare opportunity to lease a high-quality, freestanding industrial facility with exceptional transportation connectivity. This 54,274 SF building is ideally suited for logistics, distribution, or light manufacturing operations, with direct access to Highway 91, Highway 99, Highway 17, and the South Fraser Perimeter Road. The property is also within a 20-minute drive to DeltaPort and Highway 1, and just 28 minutes from the U.S. border, making it a strategic hub for regional and cross-border operations.
Warehouse Facility Facts
Presented by
10101 Nordel Ct
Hmm, there seems to have been an error sending your message. Please try again.
Thanks! Your message was sent.



