Log In/Sign Up
Your email has been sent.
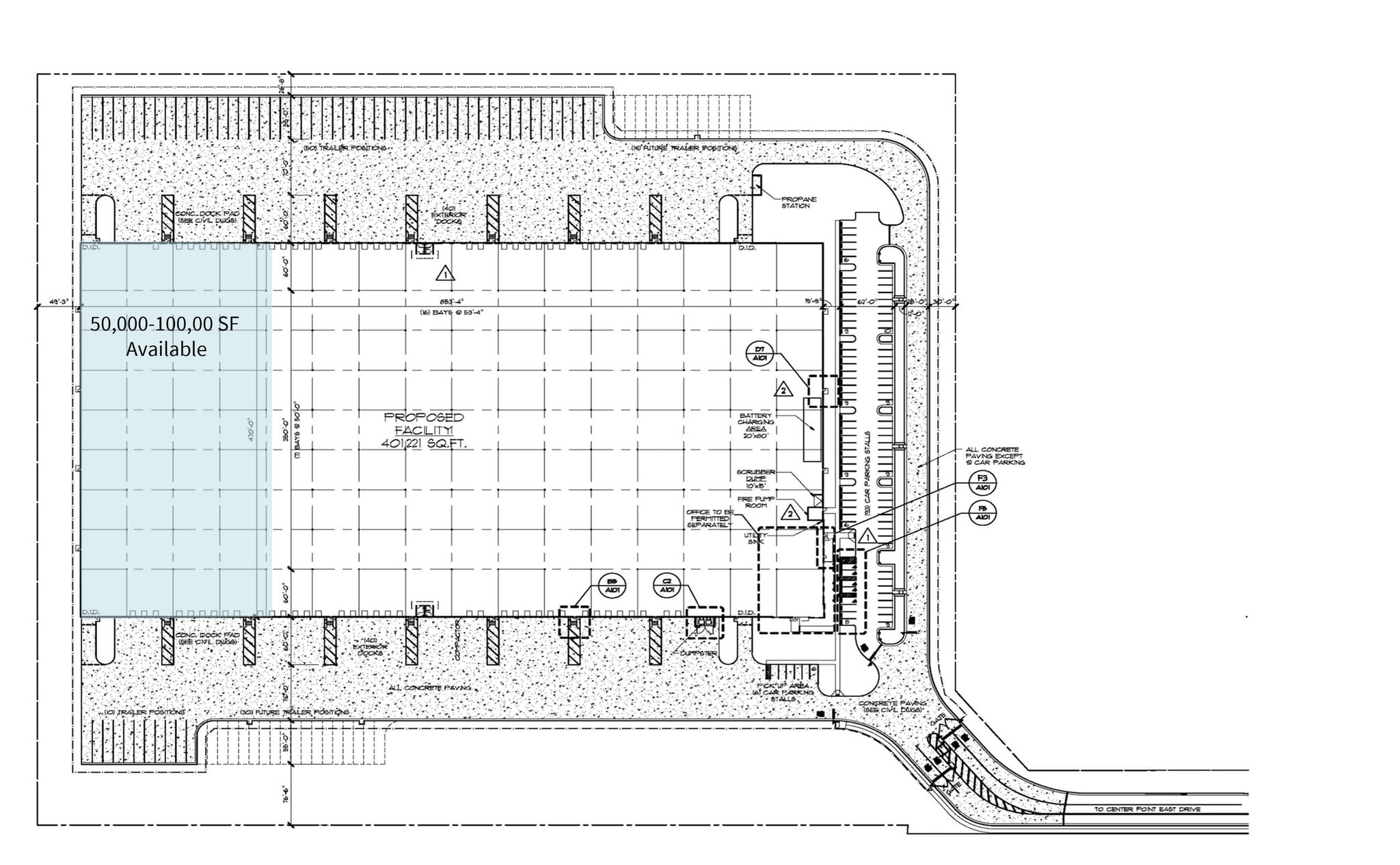
Sublease Highlights
- Building depth: 468'
- Truck court: 185'
- 20 dock doors with 35,000 lb. capacity levelers
- Speed bay: 60'
- High efficiency T-5 light fixtures with motion sensors
Features
Clear Height
32’
Warehouse Floor
7”
Drive In Bays
2
Exterior Dock Doors
20
Standard Parking Spaces
108
All Available Space(1)
Display Rental Rate as
- Space
- Size
- Term
- Rental Rate
- Space Use
- Build-Out
- Available
- Sublease space available from current tenant
- Lease rate does not include utilities, property expenses or building services
| Space | Size | Term | Rental Rate | Space Use | Build-Out | Available |
| 1st Floor | 100,000 SF | Negotiable | Upon Request Upon Request Upon Request Upon Request | Industrial | - | Now |
1st Floor
| Size |
| 100,000 SF |
| Term |
| Negotiable |
| Rental Rate |
| Upon Request Upon Request Upon Request Upon Request |
| Space Use |
| Industrial |
| Build-Out |
| - |
| Available |
| Now |
1 of 1
Videos
Matterport 3D Exterior
Matterport 3D Tour
Photos
Street View
Street
Map
1st Floor
| Size | 100,000 SF |
| Term | Negotiable |
| Rental Rate | Upon Request |
| Space Use | Industrial |
| Build-Out | - |
| Available | Now |
- Sublease space available from current tenant
- Lease rate does not include utilities, property expenses or building services
Warehouse Facility Facts
Building Size
401,221 SF
Lot Size
25.38 AC
Year Built
2017
Truck Court
185’
Sprinkler System
ESFR
Zoning
LIGHT INDU
Select Tenants
- Floor
- Tenant Name
- Industry
- 1st
- Emser Tile
- Construction
1 1
Not walkable
10/100
Exceptionally drivable
100/100
Somewhat bikeable
20/100
1 of 6
Videos
Matterport 3D Exterior
Matterport 3D Tour
Photos
Street View
Street
Map
1 of 1
Presented by
1020 Centerpoint Dr
Already a member? Log In
Hmm, there seems to have been an error sending your message. Please try again.
Thanks! Your message was sent.





