Log In/Sign Up
Your email has been sent.
108 W 2nd St - Higgins Building 1,700 SF Flex Condo Unit Offered at $899,000 in Los Angeles, CA 90012



1 Unit Available
- Unit
- Unit Size
- Condo Use
- Price
- NOI
| Sale Type | Investment or Owner User | No. Parking Spaces | 1 |
| Sale Type | Investment or Owner User |
| No. Parking Spaces | 1 |
Description
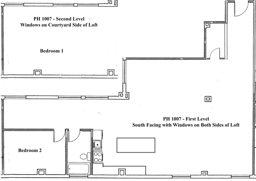
**DTLA Penthouse with 900 Sq. Ft. Private Rooftop + MILLS ACT Tax Savings** Experience one of Downtown Los Angeles' most remarkable penthouses, set within the Mills Act designated Higgins Building, offering significant property tax savings year after year. This dramatic two-story, three-level live/work loft is among the building's largest floor plans, featuring expansive windows on both sides that flood the space with natural light. A spiral staircase connects beautifully designed interiors to the show stopping highlight, your own 900 sq. ft. private rooftop deck, professionally landscaped for entertaining or soaking in panoramic skyline views. The chef's kitchen is equipped with Thermador stainless appliances, marble countertops, custom cabinetry, and a stylish island, an ideal balance of form and function. The bathroom features marble and artisan tile and offers sweeping skyline views even from the shower. Additional highlights include designer lighting, generous closets, and in-unit washer/dryer. The private back bedroom or office provides tranquility, while the second-level primary or office includes custom closet build-outs and direct rooftop access. The Higgins Building stands amid Downtown's architectural icons including City Hall, the LA Times Building, and Vibiana/Redbird to name a few. Across the street, enjoy Plaza de California dog park and the new Historic Broadway Metro station for effortless commuting. Step into the grand lobby and be transported to another era, with restored mosaic tile floors, wrought-iron caged elevators, imported marble wainscoting, zinc-framed doorways, and period detailing that celebrate the building's storied past. More than a penthouse, this is a statement of style, history, and downtown culture at its finest. Access to parking in the building is available for a monthly fee.
| Unit | Unit Size | Condo Use | Price | NOI |
| Unit PH1007 | 1,700 SF | Flex | $899,000 ($528.82/SF) | - |
Unit PH1007
| Unit Size |
| 1,700 SF |
| Condo Use |
| Flex |
| Price |
| $899,000 ($528.82/SF) |
| NOI |
| - |
1 of 30
Videos
Matterport 3D Exterior
Matterport 3D Tour
Photos
Street View
Street
Map
Unit PH1007
| Unit Size | 1,700 SF |
| Condo Use | Flex |
| Price | $899,000 ($528.82/SF) |
| NOI | - |
| Sale Type | Investment or Owner User |
| No. Parking Spaces | 1 |
| Description | |
| **DTLA Penthouse with 900 Sq. Ft. Private Rooftop + MILLS ACT Tax Savings** Experience one of Downtown Los Angeles' most remarkable penthouses, set within the Mills Act designated Higgins Building, offering significant property tax savings year after year. This dramatic two-story, three-level live/work loft is among the building's largest floor plans, featuring expansive windows on both sides that flood the space with natural light. A spiral staircase connects beautifully designed interiors to the show stopping highlight, your own 900 sq. ft. private rooftop deck, professionally landscaped for entertaining or soaking in panoramic skyline views. The chef's kitchen is equipped with Thermador stainless appliances, marble countertops, custom cabinetry, and a stylish island, an ideal balance of form and function. The bathroom features marble and artisan tile and offers sweeping skyline views even from the shower. Additional highlights include designer lighting, generous closets, and in-unit washer/dryer. The private back bedroom or office provides tranquility, while the second-level primary or office includes custom closet build-outs and direct rooftop access. The Higgins Building stands amid Downtown's architectural icons including City Hall, the LA Times Building, and Vibiana/Redbird to name a few. Across the street, enjoy Plaza de California dog park and the new Historic Broadway Metro station for effortless commuting. Step into the grand lobby and be transported to another era, with restored mosaic tile floors, wrought-iron caged elevators, imported marble wainscoting, zinc-framed doorways, and period detailing that celebrate the building's storied past. More than a penthouse, this is a statement of style, history, and downtown culture at its finest. Access to parking in the building is available for a monthly fee.</li></ul> |
Property Facts
The following property facts and amenities apply to the entire building. Details for individual condo units may vary and are listed in the unit information above.
| Total Building Size | 196,105 SF | Floors | 10 |
| Property Type | Multifamily (Condo) | Typical Floor Size | 19,601 SF |
| Property Subtype | Apartment | Year Built | 1910 |
| Building Class | B | Lot Size | 0.45 AC |
| Zoning | C4 - Neighborhood Commercial (Retail / Commercial Condo) | ||
| Total Building Size | 196,105 SF |
| Property Type | Multifamily (Condo) |
| Property Subtype | Apartment |
| Building Class | B |
| Floors | 10 |
| Typical Floor Size | 19,601 SF |
| Year Built | 1910 |
| Lot Size | 0.45 AC |
| Zoning | C4 - Neighborhood Commercial (Retail / Commercial Condo) |
Amenities
- Smoke Detector
Site Amenities
- Controlled Access
- Concierge
- Laundry Facilities
- Security System
- Elevator
- Private Bathroom
Very walkable
80/100
Very drivable
80/100
Exceptional public transit
100/100
Moderately bikeable
60/100
1 of 9
Videos
Matterport 3D Exterior
Matterport 3D Tour
Photos
Street View
Street
Map
Presented by
108 W 2nd St - Higgins Building
Already a member? Log In
Hmm, there seems to have been an error sending your message. Please try again.
Thanks! Your message was sent.



