Your email has been sent.
Santa Fe Springs Business Park Santa Fe Springs, CA 90670 1,409 - 6,109 SF of Industrial Space Available



Park Highlights
- Direct line of sight frontage on major thoroughfare of Telegraph Road.
- Ample front parking for retail services as well as easy truck circulation in back loading area.
- Well maintained units, building, parking lot, landscaping, and common areas.
- Attractive high-image concrete tilt up with high ceilings and well maintained landscaping.
- Numerous walking distance amenities at Santa Fe Springs Promenade and at bank and sandwich shop in complex.
- Centralized access to Los Angeles and Orange County via Interstate 605 and 5.
Park Facts
Features and Amenities
- 24 Hour Access
- Corner Lot
- Restaurant
- Signage
- Signalized Intersection
- Skylights
- Tenant Controlled HVAC
- Air Conditioning
All Available Spaces(3)
Display Rental Rate as
- Space
- Size
- Term
- Rental Rate
- Space Use
- Build-Out
- Available
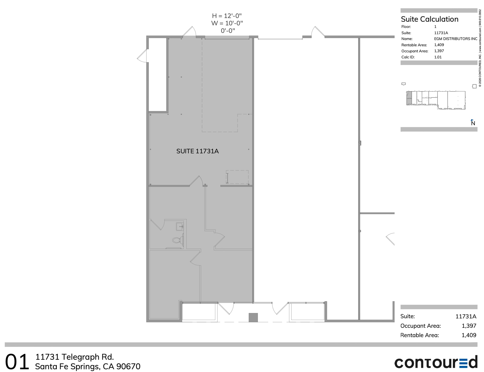
Back building flex industrial / office space at Santa Fe Springs Business Park, ideal for light manufacturing and distribution with above standard office (approx. 45%). Space features reception area, 1 private office, 1 whse manager's office and 1 private restroom. Warehouse features 14' clear height, 1 ground level 10'x12' loading door, and skylight. Parking directly in front with ample spare parking behind. Unit is located in a prime location in Santa Fe Springs across the street from City Hall and Chamber of Commerce and minutes from Santa Fe Springs Promenade, just off main thoroughfare of Telegraph Road.
- Listed rate may not include certain utilities, building services and property expenses
- 1 Drive Bay
- Partitioned Offices
- Private Restrooms
- Immediate access to I-5 and I-605 Freeways
- Includes 680 SF of dedicated office space
- Central Air and Heating
- Reception Area
- Secure Storage
- Ample surface parking available
Approximately 2,033 SF of leasable 100% HVAC space with approximately 1,020 SF of office area. Office area features 2 private offices, 1 pass through common office to warehouse, interior restrooms, and a small kitchenette. Warehouse area features 1 ground level door and HVAC. The complex features ample on-site parking, 24-hour access, on-site restaurant, and walkability to SFS City Hall and SFS Promenade across Telegraph Road. Space is ideal for light warehousing, manufacturing, and distribution uses, as well as creative contractors (sign shop, laboratory, equipment repair, electronics assembly, clean room production, QA, CNC, or other user benefiting from warehouse HVAC).
- Listed rate may not include certain utilities, building services and property expenses
- 2 Drive Ins
- Partitioned Offices
- Secure Storage
- Immediate access to I-5 and I-605 Freeways
- Includes 1,020 SF of dedicated office space
- Central Air and Heating
- Private Restrooms
- Drop Ceilings
- Ample surface parking available
Approximately 2,667 SF of leasable space with approximately 1,320 SF of office area. Office area features 3 private offices, 1 conference room, 2 interior restrooms, and a kitchenette area. Warehouse area features 2 ground level doors. The complex features ample on-site parking, 24-hour access, on-site restaurant, and walkability to SFS City Hall and SFS Promenade across Telegraph Road.
- Listed rate may not include certain utilities, building services and property expenses
- 2 Drive Ins
- Partitioned Offices
- Secure Storage
- Immediate access to I-5 and I-605 Freeways
- Includes 1,320 SF of dedicated office space
- Central Air and Heating
- Private Restrooms
- Drop Ceilings
- Large windows
| Space | Size | Term | Rental Rate | Space Use | Build-Out | Available |
| 1st Floor - A | 1,409 SF | 2-5 Years | $22.20 /SF/YR $1.85 /SF/MO $31,280 /YR $2,607 /MO | Industrial | Full Build-Out | January 01, 2027 |
| 1st Floor - D | 2,033 SF | 2-5 Years | $22.20 /SF/YR $1.85 /SF/MO $45,133 /YR $3,761 /MO | Industrial | Full Build-Out | November 01, 2026 |
| 1st Floor - E | 2,667 SF | 2-5 Years | $22.20 /SF/YR $1.85 /SF/MO $59,207 /YR $4,934 /MO | Industrial | Full Build-Out | Now |
11731 Telegraph Rd - 1st Floor - A
11731 Telegraph Rd - 1st Floor - D
11731 Telegraph Rd - 1st Floor - E
11731 Telegraph Rd - 1st Floor - A
| Size | 1,409 SF |
| Term | 2-5 Years |
| Rental Rate | $22.20 /SF/YR |
| Space Use | Industrial |
| Build-Out | Full Build-Out |
| Available | January 01, 2027 |
Back building flex industrial / office space at Santa Fe Springs Business Park, ideal for light manufacturing and distribution with above standard office (approx. 45%). Space features reception area, 1 private office, 1 whse manager's office and 1 private restroom. Warehouse features 14' clear height, 1 ground level 10'x12' loading door, and skylight. Parking directly in front with ample spare parking behind. Unit is located in a prime location in Santa Fe Springs across the street from City Hall and Chamber of Commerce and minutes from Santa Fe Springs Promenade, just off main thoroughfare of Telegraph Road.
- Listed rate may not include certain utilities, building services and property expenses
- Includes 680 SF of dedicated office space
- 1 Drive Bay
- Central Air and Heating
- Partitioned Offices
- Reception Area
- Private Restrooms
- Secure Storage
- Immediate access to I-5 and I-605 Freeways
- Ample surface parking available
11731 Telegraph Rd - 1st Floor - D
| Size | 2,033 SF |
| Term | 2-5 Years |
| Rental Rate | $22.20 /SF/YR |
| Space Use | Industrial |
| Build-Out | Full Build-Out |
| Available | November 01, 2026 |
Approximately 2,033 SF of leasable 100% HVAC space with approximately 1,020 SF of office area. Office area features 2 private offices, 1 pass through common office to warehouse, interior restrooms, and a small kitchenette. Warehouse area features 1 ground level door and HVAC. The complex features ample on-site parking, 24-hour access, on-site restaurant, and walkability to SFS City Hall and SFS Promenade across Telegraph Road. Space is ideal for light warehousing, manufacturing, and distribution uses, as well as creative contractors (sign shop, laboratory, equipment repair, electronics assembly, clean room production, QA, CNC, or other user benefiting from warehouse HVAC).
- Listed rate may not include certain utilities, building services and property expenses
- Includes 1,020 SF of dedicated office space
- 2 Drive Ins
- Central Air and Heating
- Partitioned Offices
- Private Restrooms
- Secure Storage
- Drop Ceilings
- Immediate access to I-5 and I-605 Freeways
- Ample surface parking available
11731 Telegraph Rd - 1st Floor - E
| Size | 2,667 SF |
| Term | 2-5 Years |
| Rental Rate | $22.20 /SF/YR |
| Space Use | Industrial |
| Build-Out | Full Build-Out |
| Available | Now |
Approximately 2,667 SF of leasable space with approximately 1,320 SF of office area. Office area features 3 private offices, 1 conference room, 2 interior restrooms, and a kitchenette area. Warehouse area features 2 ground level doors. The complex features ample on-site parking, 24-hour access, on-site restaurant, and walkability to SFS City Hall and SFS Promenade across Telegraph Road.
- Listed rate may not include certain utilities, building services and property expenses
- Includes 1,320 SF of dedicated office space
- 2 Drive Ins
- Central Air and Heating
- Partitioned Offices
- Private Restrooms
- Secure Storage
- Drop Ceilings
- Immediate access to I-5 and I-605 Freeways
- Large windows
Select Tenants at This Property
- Floor
- Tenant Name
- Industry
- 1st
- Circus Sandwiches
- Accommodation and Food Services
- 1st
- Genoa Healthcare
- Health Care and Social Assistance
- 1st
- Pacific Clinics Latina Youth
- Health Care and Social Assistance
Park Overview
Attractive and well maintained business complex with high image and appealing frontage on a major thoroughfare Telegraph Road. The complex features walking distance access to restaurants and amenities at Santa Fe Springs Promenade and City services adjacent, including City Hall, the post office, the fire department and the police station. Each unit within the complex benefits from ample parking, excellent visibility, loading and easy circulation. In addition, each unit features a dedicated storefront entrance with professional offices and flex & warehouse options. The complex accommodates a wide range of industrial uses and is ideal for both start up and established businesses alike. With flexible lease terms available and incentives for longer-term deals, this complex offers a turn-key environment for your business. Space is ideal for light warehousing, manufacturing, distribution, creative contractors.
Presented by
Santa Fe Springs Business Park | Santa Fe Springs, CA 90670
Hmm, there seems to have been an error sending your message. Please try again.
Thanks! Your message was sent.









