Your email has been sent.
Uniglobe Building 1199 W Pender St 75,000 SF 89% Leased Office Building Vancouver, BC V6E 2R1 For Sale



INVESTMENT HIGHLIGHTS
- Hotel & Residential Development Now Permitted
- Stable holding income
- Potential owner-user ability to occupy 30,000 SF
EXECUTIVE SUMMARY
The existing nine-storey building features fully leased ground floor retail spaces anchored by AAA tenants and eight floors of office spaces, totaling approximately 75,000 net leasable square feet. This desirable building presents stable income with potential redevelopment when desired. Benefiting from the recently approved Hotel Redevelopment Policy, the site offers the potential for a mixed-use hotel and residential development with potential for significant density increases, while existing tenants provide stable holding income during rezoning.
Strategically located on a prominent corner lot in the Financial District, with frontage along West Pender, Bute, and West Hastings along the Sea-to-Sky highway corridor. The Site benefits from exceptional walkability and proximity to countless premier amenities including the Seawall, Stanley Park, Convention Centre, luxury hotel and residences, shopping, and restaurants. Seamless accessibility with direct access to numerous transit lines and the Burrard Street SkyTrain Station, and major arterial roads.
PROPERTY FACTS
AMENITIES
- 24 Hour Access
- Controlled Access
- Fitness Center
- Security System
- Signage
- Smoke Detector
SPACE AVAILABILITY
- SPACE
- SIZE
- SPACE USE
- CONDITION
- AVAILABLE
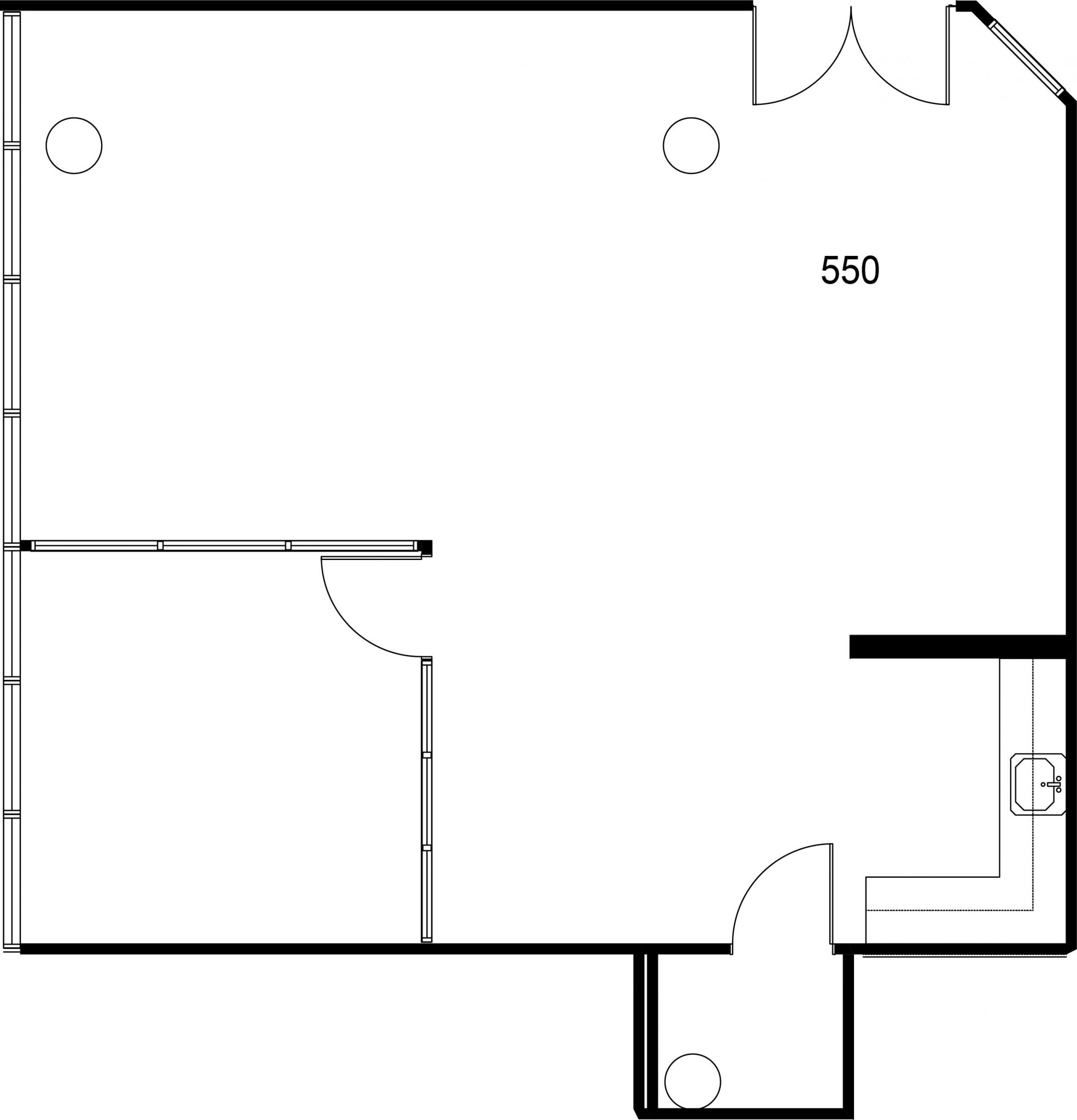
Located in the heart of downtown Vancouver’s financial district, Suite 550 at 1199 W Pender offers 1,064 square feet of thoughtfully-designed office space with a functional layout that includes private offices, open workspace, and a private kitchenette. The suite features modern finishes, air conditioning for year-round comfort, and access to three elevators for seamless accessibility. Situated in a prime location, the building is steps from major transit routes, restaurants, and key downtown amenities, making it an excellent choice for businesses looking to establish or expand their presence in the financial district.
Rare opportunity to lease a premier full top floor office on a 9-story building in Coal Harbour. This unit comprises of the entire top floor (open shell) build-to-suit space in a class “B” building with ensuite washrooms & kitchen. Landlord will provide a T.I. allowance to build out for an incoming tenant Floor-to-ceiling windows overlooking Coal Harbour and Stanley Park provide this suite with ample amounts of natural lighting and beautiful unobstructed views
| Space | Size | Space Use | Condition | Available |
| 5th Fl-Ste 550 | 1,064 SF | Office | Full Build-Out | Now |
| 9th Fl-Ste 900 | 7,460 SF | Office | Shell Space | Now |
5th Fl-Ste 550
| Size |
| 1,064 SF |
| Space Use |
| Office |
| Condition |
| Full Build-Out |
| Available |
| Now |
9th Fl-Ste 900
| Size |
| 7,460 SF |
| Space Use |
| Office |
| Condition |
| Shell Space |
| Available |
| Now |
5th Fl-Ste 550
| Size | 1,064 SF |
| Space Use | Office |
| Condition | Full Build-Out |
| Available | Now |
Located in the heart of downtown Vancouver’s financial district, Suite 550 at 1199 W Pender offers 1,064 square feet of thoughtfully-designed office space with a functional layout that includes private offices, open workspace, and a private kitchenette. The suite features modern finishes, air conditioning for year-round comfort, and access to three elevators for seamless accessibility. Situated in a prime location, the building is steps from major transit routes, restaurants, and key downtown amenities, making it an excellent choice for businesses looking to establish or expand their presence in the financial district.
9th Fl-Ste 900
| Size | 7,460 SF |
| Space Use | Office |
| Condition | Shell Space |
| Available | Now |
Rare opportunity to lease a premier full top floor office on a 9-story building in Coal Harbour. This unit comprises of the entire top floor (open shell) build-to-suit space in a class “B” building with ensuite washrooms & kitchen. Landlord will provide a T.I. allowance to build out for an incoming tenant Floor-to-ceiling windows overlooking Coal Harbour and Stanley Park provide this suite with ample amounts of natural lighting and beautiful unobstructed views
Presented by
Uniglobe Building | 1199 W Pender St
Hmm, there seems to have been an error sending your message. Please try again.
Thanks! Your message was sent.





