Enter your email to login or create a free account
This feature is unavailable at the moment.
We apologize, but the feature you are trying to access is currently unavailable. We are aware of this issue and our team is working hard to resolve the matter.
Please check back in a few minutes. We apologize for the inconvenience.
- LoopNet Team
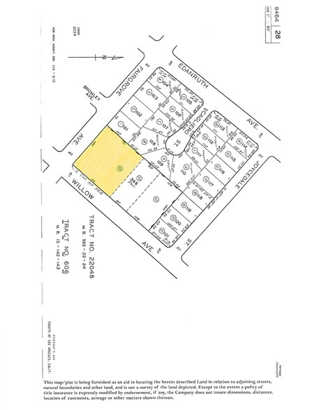
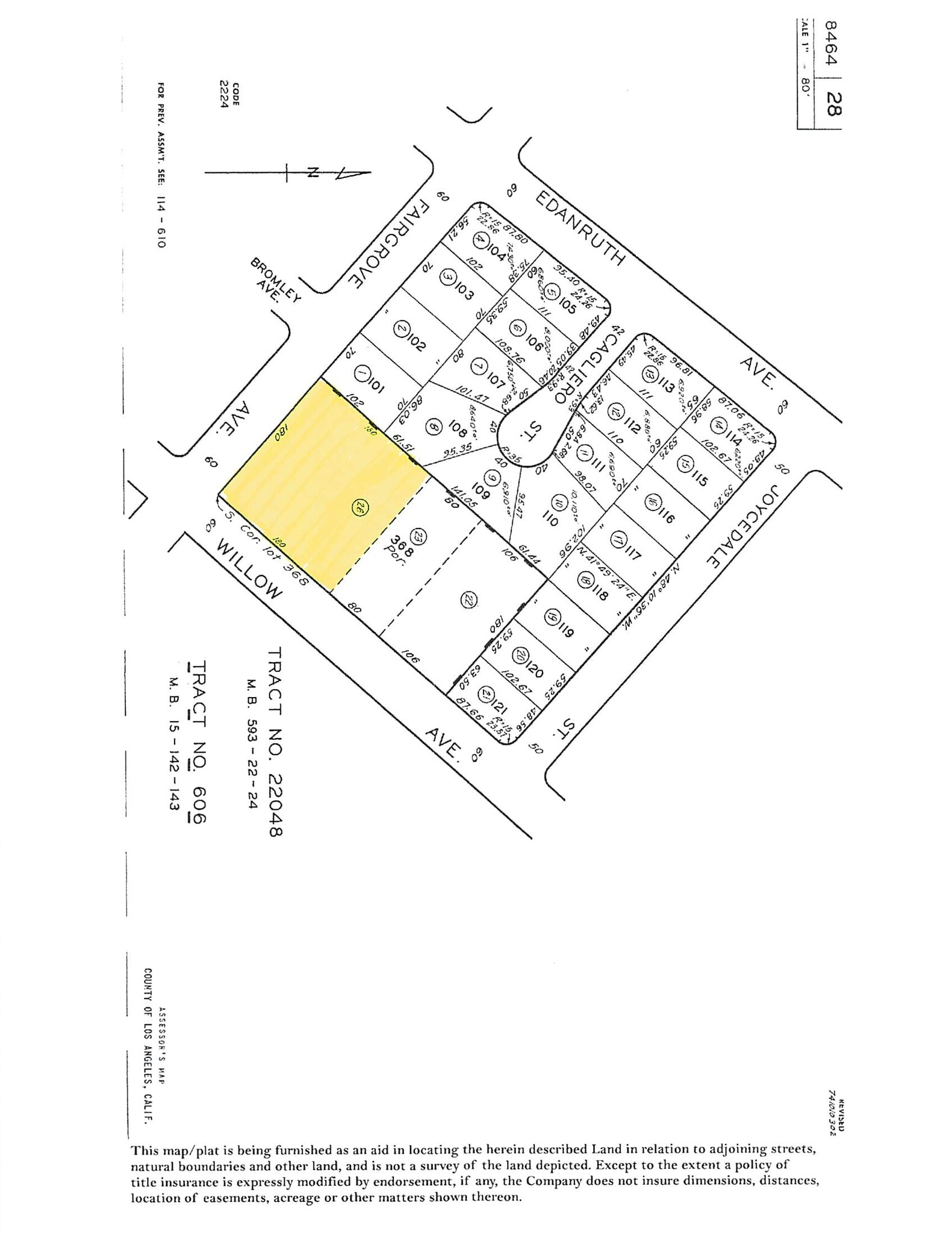
1213 Willow Ave
La Puente, CA 91746
1213 Willow Ave., La Puente, CA 91746 · Land For Sale
·
0.74 AC

Property Facts
| Property Type | Land | Total Lot Size | 0.74 AC |
| Property Subtype | Commercial | Year Built | 1970 |
| Proposed Use | Single Family Development | ||
| Zoning | R-1-6000 - One-Family Residential | ||
| Property Type | Land |
| Property Subtype | Commercial |
| Proposed Use | Single Family Development |
| Total Lot Size | 0.74 AC |
| Year Built | 1970 |
| Zoning | R-1-6000 - One-Family Residential |
Description
Currently used as a swim & tennis club, with badminton court, clubhouse with kitchen & restrooms/showers. 2,720 square feet of building on 32,400 square feet of R-1-6000 zoned land. Highest & Best Use as residential (SFR) development. Clean neighborhood close to multiple schools, shopping, freeways (10 & 605), etc. Property has La Puente mailing address, but is located within an unincorporated area of Los Angeles County
Property Taxes
| Parcel Number | 8464-028-026 | Improvements Assessment | $155,162 |
| Land Assessment | $56,846 | Total Assessment | $212,008 |
Property Taxes
Listing ID: 38760219
Date on Market: 12/12/2025
Last Updated:
Address: 1213 Willow Ave, La Puente, CA 91746
The Bassett Land Property at 1213 Willow Ave, La Puente, CA 91746 is no longer being advertised on LoopNet.com. Contact the broker for information on availability.
LAND PROPERTIES IN NEARBY NEIGHBORHOODS
- La Habra City Commercial Land Parcels
- Mountain View Commercial Land Parcels
- South Whittier Commercial Land Parcels
- El Rancho Commercial Land Parcels
- Walnut Valley Commercial Land Parcels
- Garvey Commercial Land Parcels
- Lamanda Park Commercial Land Parcels
- Hastings Ranch Commercial Land Parcels
- Downtown Covina Commercial Land Parcels
- Covina-Valley Commercial Land Parcels
- Charter Oak Commercial Land Parcels
- Los Nietos Commercial Land Parcels
- East Whittier City Commercial Land Parcels
- Uptown Whittier Commercial Land Parcels
- Whittier City Commercial Land Parcels
NEARBY LISTINGS
- 12432 Valley Blvd, El Monte CA
- 13540 Valley Blvd, La Puente CA
- 1041 W Arrow Hwy, Azusa CA
- 14622 Dalewood St, Baldwin Park CA
- 4448-4462 Live Oak Ave, Arcadia CA
- 15204 Arrow Hwy, Baldwin Park CA
- 12714 Ramona Blvd, Baldwin Park CA
- 11400 Garvey Ave, El Monte CA
- 1030 S Glendora Ave, West Covina CA
- 14425 Gale Ave, Hacienda Heights CA
- 13620 Live Oak Ave, Irwindale CA
- 3237-3307 Cogswell, El Monte CA
- 5040 Lante St, Baldwin Park CA
- 345 Citrus Ave, Covina CA
