Log In/Sign Up
Enter your email to login or create a free account
This feature is unavailable at the moment.
We apologize, but the feature you are trying to access is currently unavailable. We are aware of this issue and our team is working hard to resolve the matter.
Please check back in a few minutes. We apologize for the inconvenience.
- LoopNet Team
This Property is no longer advertised on LoopNet.com.
12408 Highway 6
Santa Fe, TX 77510
Fishstix Space in Santa Fe Junction · Property For Lease

Highlights
- Heavy foot traffic with Food Town, Subway, Pizza Hug, McDonald's in the complex
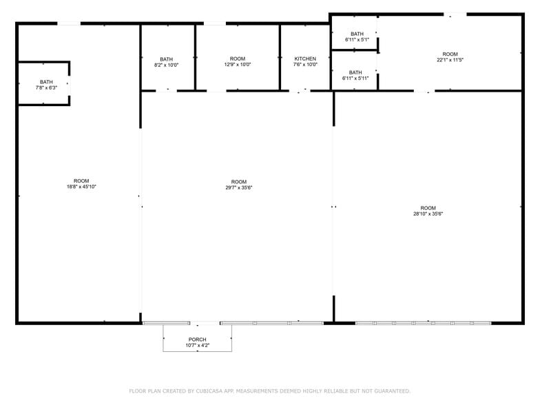
- Open Plan with Office and 4 bathrooms 2 are ADA compliant
- Lots of Natural Light
Property Facts
| Property Type | Retail | Total Land Area | 5.87 AC |
| Property Subtype | Freestanding | Year Built | 1983 |
| Gross Leasable Area | 65,660 SF |
| Property Type | Retail |
| Property Subtype | Freestanding |
| Gross Leasable Area | 65,660 SF |
| Total Land Area | 5.87 AC |
| Year Built | 1983 |
About the Property
Well maintained space in the popular Santa Junction Shopping Center! 1,000 sqft up to 4,000 with 4 restrooms if all space included- 2 are ADA compliant. Office
Listing ID: 37455789
Date on Market: 8/28/2025
Last Updated:
Address: 12408 Highway 6, Santa Fe, TX 77510
The Retail Property at 12408 Highway 6, Santa Fe, TX 77510 is no longer being advertised on LoopNet.com. Contact the broker for information on availability.
RETAIL PROPERTIES IN NEARBY NEIGHBORHOODS
NEARBY LISTINGS
- 612-618 FM 517 Rd W, Dickinson TX
- 630-650 FM 517 Rd W, Dickinson TX
- 7529 Blimp Base Rd, Hitchcock TX
- 5320 FM 2004 Rd, Hitchcock TX
- 8019 FM 517 Rd W, Dickinson TX
- 660-688 Fm-517, Dickinson TX
- 8533 FM 2004, Hitchcock TX
- SEQ of I-45 & FM 1764, La Marque TX
- 660-688 Fm-517, Dickinson TX
- 4111 FM 1764 Rd, Santa Fe TX
- 5517 FM 2004 Rd, Hitchcock TX
- 6408 Gulf Fwy, La Marque TX
- 6402 Gulf Fwy, La Marque TX
- 14001-14065 Delany Rd, La Marque TX
- 2600 FM 1764, La Marque TX
1 of 1
Videos
Matterport 3D Exterior
Matterport 3D Tour
Photos
Street View
Street
Map

Link copied
Your LoopNet account has been created!
Thank you for your feedback.
Please Share Your Feedback
We welcome any feedback on how we can improve LoopNet to better serve your needs.X
{{ getErrorText(feedbackForm.starRating, "rating") }}
255 character limit ({{ remainingChars() }} charactercharacters remainingover)
{{ getErrorText(feedbackForm.msg, "rating") }}
{{ getErrorText(feedbackForm.fname, "first name") }}
{{ getErrorText(feedbackForm.lname, "last name") }}
{{ getErrorText(feedbackForm.phone, "phone number") }}
{{ getErrorText(feedbackForm.phonex, "phone extension") }}
{{ getErrorText(feedbackForm.email, "email address") }}
You can provide feedback any time using the Help button at the top of the page.