Log In/Sign Up
Your email has been sent.
133 Community Dr
Gastonia, NC 28052
50K SF Facility in I-2 zoning - 24' height · Industrial Property For Sale


Investment Highlights
- Clear heights up to 24'
- Rare I-2 zoning allows for a multitude of uses
- New roll up doors, Indoor dock & a large fenced in yard
Executive Summary
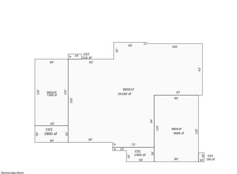
133 Community Drive is a 3.35-acre industrial site in Gastonia with direct frontage on Highway 321 and quick access to I-85. The property includes a 53,000 SF building with multiple new roll-up doors, indoor dock, clear heights up to 24-foot & a large fenced in yard. Zoned I-2, outdoor storage is permitted. Offered at $2,400,000, the site is minutes from Gastonia Municipal Airport and sits in a growing industrial corridor west of Charlotte.
The city’s investment in the FUSE District and its location between Atlanta and the Research Triangle make it a strategic play for owner-users or investors.
This property is also available for lease.
The city’s investment in the FUSE District and its location between Atlanta and the Research Triangle make it a strategic play for owner-users or investors.
This property is also available for lease.
Property Facts
Amenities
- Fenced Lot
- Front Loading
- Signage
- Storage Space
Utilities
- Lighting
- Water - City Water
- Sewer - Septic Field
Property Taxes
| Parcel Number | 147383 | Improvements Assessment | $812,630 |
| Land Assessment | $110,550 | Total Assessment | $923,180 |
Property Taxes
Parcel Number
147383
Land Assessment
$110,550
Improvements Assessment
$812,630
Total Assessment
$923,180
1 of 8
Videos
Matterport 3D Exterior
Matterport 3D Tour
Photos
Street View
Street
Map
