Your email has been sent.
Highlights
- Excellent Visibility and Access
- One-tenth mile north of Highway 114, close proximity to numerous restaurants
All Available Spaces(3)
Display Rental Rate as
- Space
- Size
- Term
- Rental Rate
- Space Use
- Build-Out
- Available
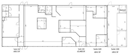
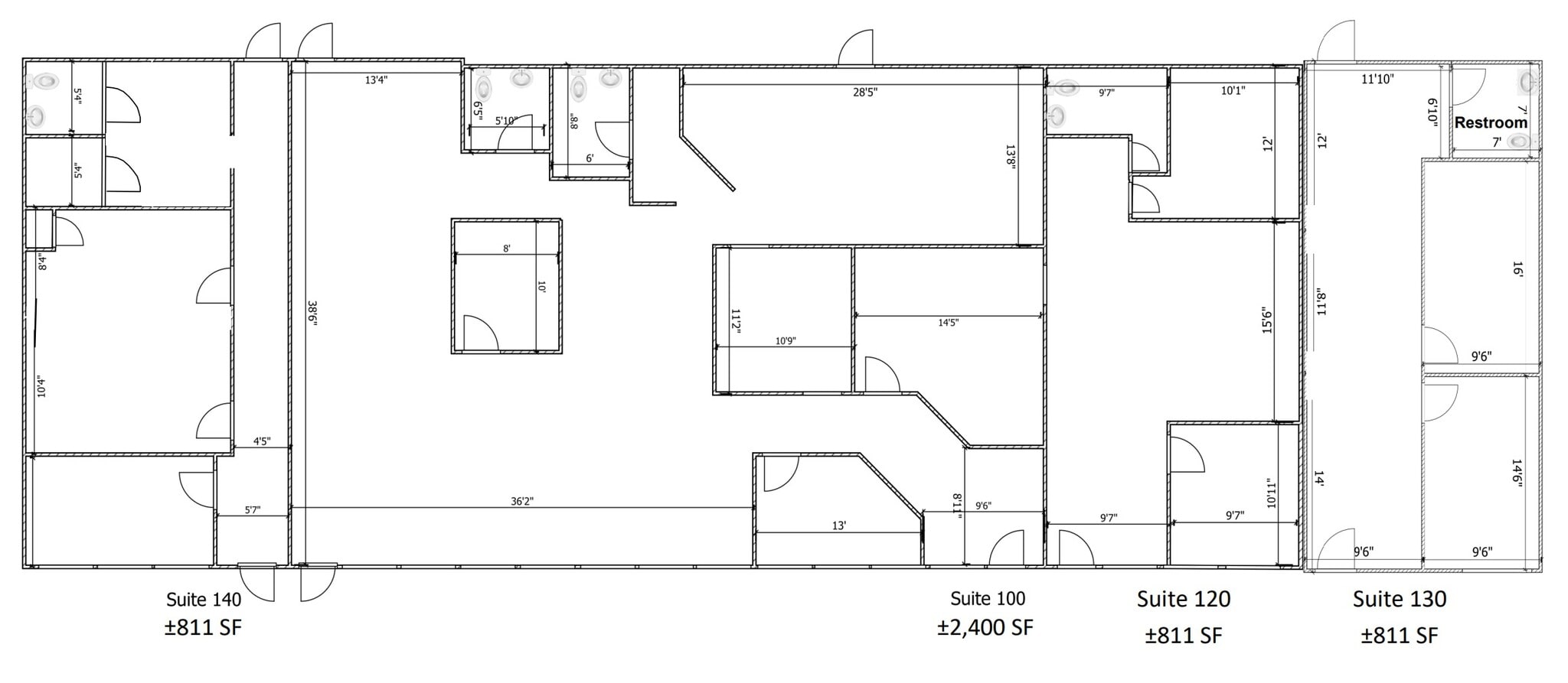
Suites 100-140 can be combined in sf variations of 811, 1,622, 3,211, 4,022, and 4,833 sf $16.00 to $20.00 PSF + NNN ($7.35/sf) + Electricity at $1.02/SF
- Lease rate does not include utilities, property expenses or building services
- 7 Private Offices
- Central Air Conditioning
- Kitchen
- Three 811 SF Suites (Suite 140, 120, 130)
- Partially Built-Out as Standard Office
- 2 Conference Rooms
- Reception Area
- Private Restrooms
- One 2,400 SF Suite (Suite 100)
MO Gross Including Electricity: $1,741.50 $16.00 PSF + NNN ($8.31) + Electricity at $1.02/SF
- Lease rate does not include utilities, property expenses or building services
- 3 Private Offices
- Private Restrooms
- Main and rear hallway entrance points
- Partially Built-Out as Standard Office
- Reception Area
- Secure Storage
- Includes a storage closet and water fountain
2,581 SF, Expandable up to 7,414 SF
- Lease rate does not include utilities, property expenses or building services
- Reception Area
- Secure Storage
- Includes a storage closet and water fountain
- 3 Private Offices
- Private Restrooms
- Main and rear hallway entrance points
| Space | Size | Term | Rental Rate | Space Use | Build-Out | Available |
| 1st Floor, Ste 100-140 | 811-4,833 SF | 3-7 Years | $20.00 /SF/YR $1.67 /SF/MO $96,660 /YR $8,055 /MO | Office | Partial Build-Out | 30 Days |
| 1st Floor, Ste 185 | 772 SF | Negotiable | $16.00 /SF/YR $1.33 /SF/MO $12,352 /YR $1,029 /MO | Office | Partial Build-Out | Now |
| 1st Floor, Ste 300 | 7,414 SF | Negotiable | $20.00 /SF/YR $1.67 /SF/MO $148,280 /YR $12,357 /MO | Office | - | Now |
1st Floor, Ste 100-140
| Size |
| 811-4,833 SF |
| Term |
| 3-7 Years |
| Rental Rate |
| $20.00 /SF/YR $1.67 /SF/MO $96,660 /YR $8,055 /MO |
| Space Use |
| Office |
| Build-Out |
| Partial Build-Out |
| Available |
| 30 Days |
1st Floor, Ste 185
| Size |
| 772 SF |
| Term |
| Negotiable |
| Rental Rate |
| $16.00 /SF/YR $1.33 /SF/MO $12,352 /YR $1,029 /MO |
| Space Use |
| Office |
| Build-Out |
| Partial Build-Out |
| Available |
| Now |
1st Floor, Ste 300
| Size |
| 7,414 SF |
| Term |
| Negotiable |
| Rental Rate |
| $20.00 /SF/YR $1.67 /SF/MO $148,280 /YR $12,357 /MO |
| Space Use |
| Office |
| Build-Out |
| - |
| Available |
| Now |
1st Floor, Ste 100-140
| Size | 811-4,833 SF |
| Term | 3-7 Years |
| Rental Rate | $20.00 /SF/YR |
| Space Use | Office |
| Build-Out | Partial Build-Out |
| Available | 30 Days |
Suites 100-140 can be combined in sf variations of 811, 1,622, 3,211, 4,022, and 4,833 sf $16.00 to $20.00 PSF + NNN ($7.35/sf) + Electricity at $1.02/SF
- Lease rate does not include utilities, property expenses or building services
- Partially Built-Out as Standard Office
- 7 Private Offices
- 2 Conference Rooms
- Central Air Conditioning
- Reception Area
- Kitchen
- Private Restrooms
- Three 811 SF Suites (Suite 140, 120, 130)
- One 2,400 SF Suite (Suite 100)
1st Floor, Ste 185
| Size | 772 SF |
| Term | Negotiable |
| Rental Rate | $16.00 /SF/YR |
| Space Use | Office |
| Build-Out | Partial Build-Out |
| Available | Now |
MO Gross Including Electricity: $1,741.50 $16.00 PSF + NNN ($8.31) + Electricity at $1.02/SF
- Lease rate does not include utilities, property expenses or building services
- Partially Built-Out as Standard Office
- 3 Private Offices
- Reception Area
- Private Restrooms
- Secure Storage
- Main and rear hallway entrance points
- Includes a storage closet and water fountain
1st Floor, Ste 300
| Size | 7,414 SF |
| Term | Negotiable |
| Rental Rate | $20.00 /SF/YR |
| Space Use | Office |
| Build-Out | - |
| Available | Now |
2,581 SF, Expandable up to 7,414 SF
- Lease rate does not include utilities, property expenses or building services
- 3 Private Offices
- Reception Area
- Private Restrooms
- Secure Storage
- Main and rear hallway entrance points
- Includes a storage closet and water fountain
Property Overview
- Minutes away from Highways 121, 114, 635 and 360 - 5 minutes away from DFW International Airport and just a few blocks from the new Grapevine TEXRrail and NEW Clocktower - Beautiful office building located along Main Street in downtown Grapevine - One parcel north of the NWC of 114 and Main Street - walk to NEW Velvet Taco, Black Rifle Coffee and Rock&Brews - One-tenth mile north of Highway 114, close proximity to numerous restaurants
- Signage
- Air Conditioning
Property Facts
Presented by
Vision Office Park | 1340 S main St
Hmm, there seems to have been an error sending your message. Please try again.
Thanks! Your message was sent.








