Your email has been sent.
Highlights
- Ready for customization office suites designed with tenants in mind featuring open-concept layouts and expansive windows.
- Join a synergistic tenant mix in one of Midtown’s most prized buildings just 2 blocks from Bryant Park.
- In a transit hub with connections to Times Square-42nd Street Station, Penn Station, Grand Central Terminal, and the Port Authority.
- Dining and retail are abundant surrounding the office with Macy’s, Chick-fil-A, CAVA, Starbucks, Joe’s Pizza, and more all close by.
All Available Spaces(8)
Display Rental Rate as
- Space
- Size
- Term
- Rental Rate
- Space Use
- Build-Out
- Available
A mix of glass-fronted offices and meeting rooms with open work area. Large breakout/lounge pantry space with exceptional natural light from oversized windows.
- Office intensive layout
- Space is in Excellent Condition
Double glass entrance door Multiple glass offices & ownership will furnish Wet pantry Central HVAC Lobby undergoing renovation which will be completed Feb 1st 24/7 doorman and Rooftop restaurant/bar
- Fully Built-Out as Standard Office
- Space is in Excellent Condition
- Natural Light
- Mostly Open Floor Plan Layout
- High Ceilings
Front facing corner unit featuring three sides of natural light Ownership will deliver a turnkey, build to spec installation. The building offers a newly renovated lobby and a tenant amenity roof deck and lounge area.
- Open Floor Plan Layout
- High End Trophy Space
- Finished Ceilings: 12’
- Can be combined with additional space(s) for up to 83,646 SF of adjacent space
Front facing corner unit featuring three sides of natural light. Ownership will deliver a turnkey, build to spec installation. The building offers a newly renovated lobby and a tenant amenity roof deck and lounge area.
- Open Floor Plan Layout
- High End Trophy Space
- Finished Ceilings: 12’
- Can be combined with additional space(s) for up to 83,646 SF of adjacent space
Front facing corner unit featuring three sides of natural light and a private terrace. Ownership will deliver a turnkey, build to spec installation. The building offers a newly renovated lobby and a tenant amenity roof deck and lounge area.
- Open Floor Plan Layout
- High End Trophy Space
- Finished Ceilings: 12’
- Can be combined with additional space(s) for up to 83,646 SF of adjacent space
Rare Large-Block Opportunity on Broadway’s Prime Corridor. Full floors on the 5th, 6th, 7th, and 8th levels can be made available. Each floor features abundant natural light, sweeping Broadway views, and a one private terrace. The building offers a brand new lobby and a rooftop amenity center with bar and lounge.
- Finished Ceilings: 12’
- Can be combined with additional space(s) for up to 83,646 SF of adjacent space
- High End Trophy Space
Showroom suite with a reception area, meeting room and showroom area.
Tower-floor showroom space with exceptional natural light.
| Space | Size | Term | Rental Rate | Space Use | Build-Out | Available |
| 4th Floor, Ste 402 | 6,114 SF | Negotiable | Upon Request Upon Request Upon Request Upon Request | Office | Full Build-Out | Now |
| 4th Floor, Ste 407 | 1,615 SF | Negotiable | Upon Request Upon Request Upon Request Upon Request | Office | Full Build-Out | Now |
| 5th Floor | 21,804 SF | Negotiable | Upon Request Upon Request Upon Request Upon Request | Office | Spec Suite | Now |
| 6th Floor | 21,804 SF | Negotiable | Upon Request Upon Request Upon Request Upon Request | Office | Spec Suite | Now |
| 7th Floor, Ste 700 | 21,804 SF | Negotiable | Upon Request Upon Request Upon Request Upon Request | Office | Spec Suite | Now |
| 8th Floor, Ste 800 | 18,234 SF | Negotiable | Upon Request Upon Request Upon Request Upon Request | Office | Spec Suite | Now |
| 11th Floor, Ste 1110D | 1,260 SF | Negotiable | Upon Request Upon Request Upon Request Upon Request | Office | - | Now |
| 23rd Floor | 6,628 SF | 8 Years | Upon Request Upon Request Upon Request Upon Request | Office | - | Now |
4th Floor, Ste 402
| Size |
| 6,114 SF |
| Term |
| Negotiable |
| Rental Rate |
| Upon Request Upon Request Upon Request Upon Request |
| Space Use |
| Office |
| Build-Out |
| Full Build-Out |
| Available |
| Now |
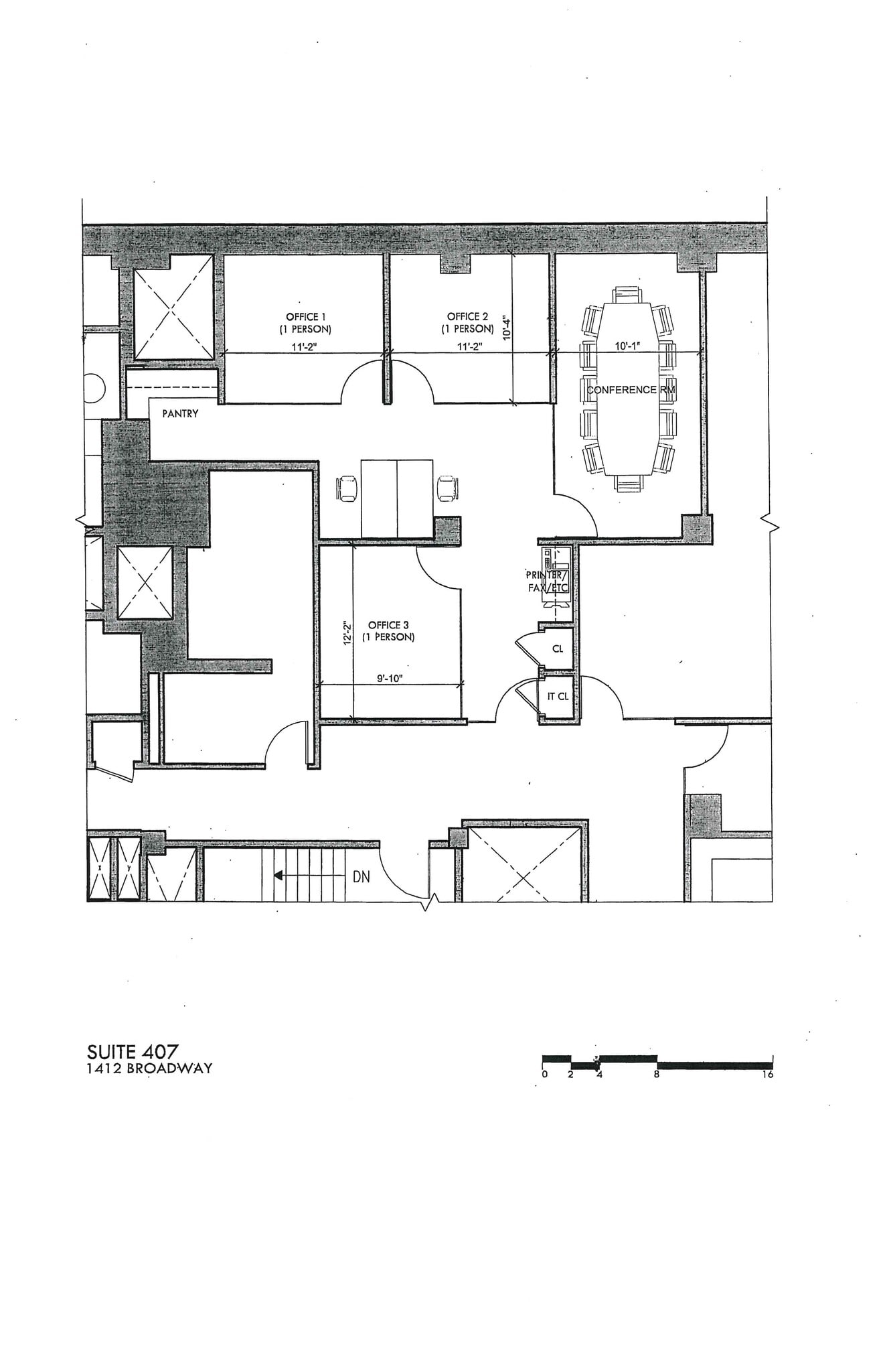
4th Floor, Ste 407
| Size |
| 1,615 SF |
| Term |
| Negotiable |
| Rental Rate |
| Upon Request Upon Request Upon Request Upon Request |
| Space Use |
| Office |
| Build-Out |
| Full Build-Out |
| Available |
| Now |
5th Floor
| Size |
| 21,804 SF |
| Term |
| Negotiable |
| Rental Rate |
| Upon Request Upon Request Upon Request Upon Request |
| Space Use |
| Office |
| Build-Out |
| Spec Suite |
| Available |
| Now |
6th Floor
| Size |
| 21,804 SF |
| Term |
| Negotiable |
| Rental Rate |
| Upon Request Upon Request Upon Request Upon Request |
| Space Use |
| Office |
| Build-Out |
| Spec Suite |
| Available |
| Now |
7th Floor, Ste 700
| Size |
| 21,804 SF |
| Term |
| Negotiable |
| Rental Rate |
| Upon Request Upon Request Upon Request Upon Request |
| Space Use |
| Office |
| Build-Out |
| Spec Suite |
| Available |
| Now |
8th Floor, Ste 800
| Size |
| 18,234 SF |
| Term |
| Negotiable |
| Rental Rate |
| Upon Request Upon Request Upon Request Upon Request |
| Space Use |
| Office |
| Build-Out |
| Spec Suite |
| Available |
| Now |
11th Floor, Ste 1110D
| Size |
| 1,260 SF |
| Term |
| Negotiable |
| Rental Rate |
| Upon Request Upon Request Upon Request Upon Request |
| Space Use |
| Office |
| Build-Out |
| - |
| Available |
| Now |
23rd Floor
| Size |
| 6,628 SF |
| Term |
| 8 Years |
| Rental Rate |
| Upon Request Upon Request Upon Request Upon Request |
| Space Use |
| Office |
| Build-Out |
| - |
| Available |
| Now |
4th Floor, Ste 402
| Size | 6,114 SF |
| Term | Negotiable |
| Rental Rate | Upon Request |
| Space Use | Office |
| Build-Out | Full Build-Out |
| Available | Now |
A mix of glass-fronted offices and meeting rooms with open work area. Large breakout/lounge pantry space with exceptional natural light from oversized windows.
- Office intensive layout
- Space is in Excellent Condition
4th Floor, Ste 407
| Size | 1,615 SF |
| Term | Negotiable |
| Rental Rate | Upon Request |
| Space Use | Office |
| Build-Out | Full Build-Out |
| Available | Now |
Double glass entrance door Multiple glass offices & ownership will furnish Wet pantry Central HVAC Lobby undergoing renovation which will be completed Feb 1st 24/7 doorman and Rooftop restaurant/bar
- Fully Built-Out as Standard Office
- Mostly Open Floor Plan Layout
- Space is in Excellent Condition
- High Ceilings
- Natural Light
5th Floor
| Size | 21,804 SF |
| Term | Negotiable |
| Rental Rate | Upon Request |
| Space Use | Office |
| Build-Out | Spec Suite |
| Available | Now |
Front facing corner unit featuring three sides of natural light Ownership will deliver a turnkey, build to spec installation. The building offers a newly renovated lobby and a tenant amenity roof deck and lounge area.
- Open Floor Plan Layout
- Finished Ceilings: 12’
- High End Trophy Space
- Can be combined with additional space(s) for up to 83,646 SF of adjacent space
6th Floor
| Size | 21,804 SF |
| Term | Negotiable |
| Rental Rate | Upon Request |
| Space Use | Office |
| Build-Out | Spec Suite |
| Available | Now |
Front facing corner unit featuring three sides of natural light. Ownership will deliver a turnkey, build to spec installation. The building offers a newly renovated lobby and a tenant amenity roof deck and lounge area.
- Open Floor Plan Layout
- Finished Ceilings: 12’
- High End Trophy Space
- Can be combined with additional space(s) for up to 83,646 SF of adjacent space
7th Floor, Ste 700
| Size | 21,804 SF |
| Term | Negotiable |
| Rental Rate | Upon Request |
| Space Use | Office |
| Build-Out | Spec Suite |
| Available | Now |
Front facing corner unit featuring three sides of natural light and a private terrace. Ownership will deliver a turnkey, build to spec installation. The building offers a newly renovated lobby and a tenant amenity roof deck and lounge area.
- Open Floor Plan Layout
- Finished Ceilings: 12’
- High End Trophy Space
- Can be combined with additional space(s) for up to 83,646 SF of adjacent space
8th Floor, Ste 800
| Size | 18,234 SF |
| Term | Negotiable |
| Rental Rate | Upon Request |
| Space Use | Office |
| Build-Out | Spec Suite |
| Available | Now |
Rare Large-Block Opportunity on Broadway’s Prime Corridor. Full floors on the 5th, 6th, 7th, and 8th levels can be made available. Each floor features abundant natural light, sweeping Broadway views, and a one private terrace. The building offers a brand new lobby and a rooftop amenity center with bar and lounge.
- Finished Ceilings: 12’
- High End Trophy Space
- Can be combined with additional space(s) for up to 83,646 SF of adjacent space
11th Floor, Ste 1110D
| Size | 1,260 SF |
| Term | Negotiable |
| Rental Rate | Upon Request |
| Space Use | Office |
| Build-Out | - |
| Available | Now |
Showroom suite with a reception area, meeting room and showroom area.
23rd Floor
| Size | 6,628 SF |
| Term | 8 Years |
| Rental Rate | Upon Request |
| Space Use | Office |
| Build-Out | - |
| Available | Now |
Tower-floor showroom space with exceptional natural light.
Property Overview
Located in the energetic epicenter of Midtown Manhattan, 1412 Broadway is a premier 428,626 square-foot, 24-story office and retail property that seamlessly blends functionality with sophistication. The building features on-site security, concierge services, modern elevators, an upscale on-site restaurant, and a rooftop deck offering breathtaking city views. The workspaces at 1412 Broadway can meet businesses unique needs. Each office space offers an open-concept layout ideal for space customization and businesses of all sizes, expansive windows that flood spaces with natural light, high ceilings, and contemporary design elements that will inspire your team and impress clients. Just steps away from iconic landmarks such as Times Square and Bryant Park, and within a short walk of major transportation hubs like Port Authority, Penn Station and Grand Central Terminal, 1412 Broadway provides unmatched accessibility and prestige for businesses seeking a prime Manhattan address. Working in an office space at 1412 Broadway puts tenants alongside industry leaders from media, finance, fashion and beyond. With prominent tenant such as Escada, RE/MAX, Securitas, Fintech Studios, Workville, and StubHub, the building is home to diverse and accomplished business communities. Midtown has been the cornerstone of Manhattan’s growth and global influence for over a century. Once dominated by the grand estates of the Gilded Age, the neighborhood transformed in the early 20th century with the rise of iconic skyscrapers like the Empire State Building, Rockefeller Center, and the Chrysler Building. These landmarks established Midtown as Manhattan’s commercial and cultural heartbeat, a role it continues to play today. Accessibility and convenience define Midtown. With a wealth of nearby amenities, from luxury shopping on Fifth Avenue to tranquil green spaces like Bryant Park, the neighborhood offers an exceptional work-life balance. Its status as a transit hub, with connections to Times Square-42nd Street Station, Penn Station, Grand Central Terminal, and the Port Authority, ensures seamless connectivity for businesses and commuters alike. For tenants, Midtown represents the pinnacle of prestige and opportunity. The neighborhood’s rich history, vibrant atmosphere, and unparalleled infrastructure continue to make it one of the most desirable locations in the world. From high-profile corporations to boutique retailers and creative industries, Midtown offers an unmatched setting for success. 1412 Broadway is where companies thrive, and networking and growth opportunities are always within reach.
- 24 Hour Access
- Banking
- Restaurant
Property Facts
Presented by
1412 Broadway
Hmm, there seems to have been an error sending your message. Please try again.
Thanks! Your message was sent.



















