Log In/Sign Up
Your email has been sent.
Features
Clear Height
20’
Drive In Bays
4
Standard Parking Spaces
7
All Available Space(1)
Display Rental Rate as
- Space
- Size
- Term
- Rental Rate
- Space Use
- Build-Out
- Available
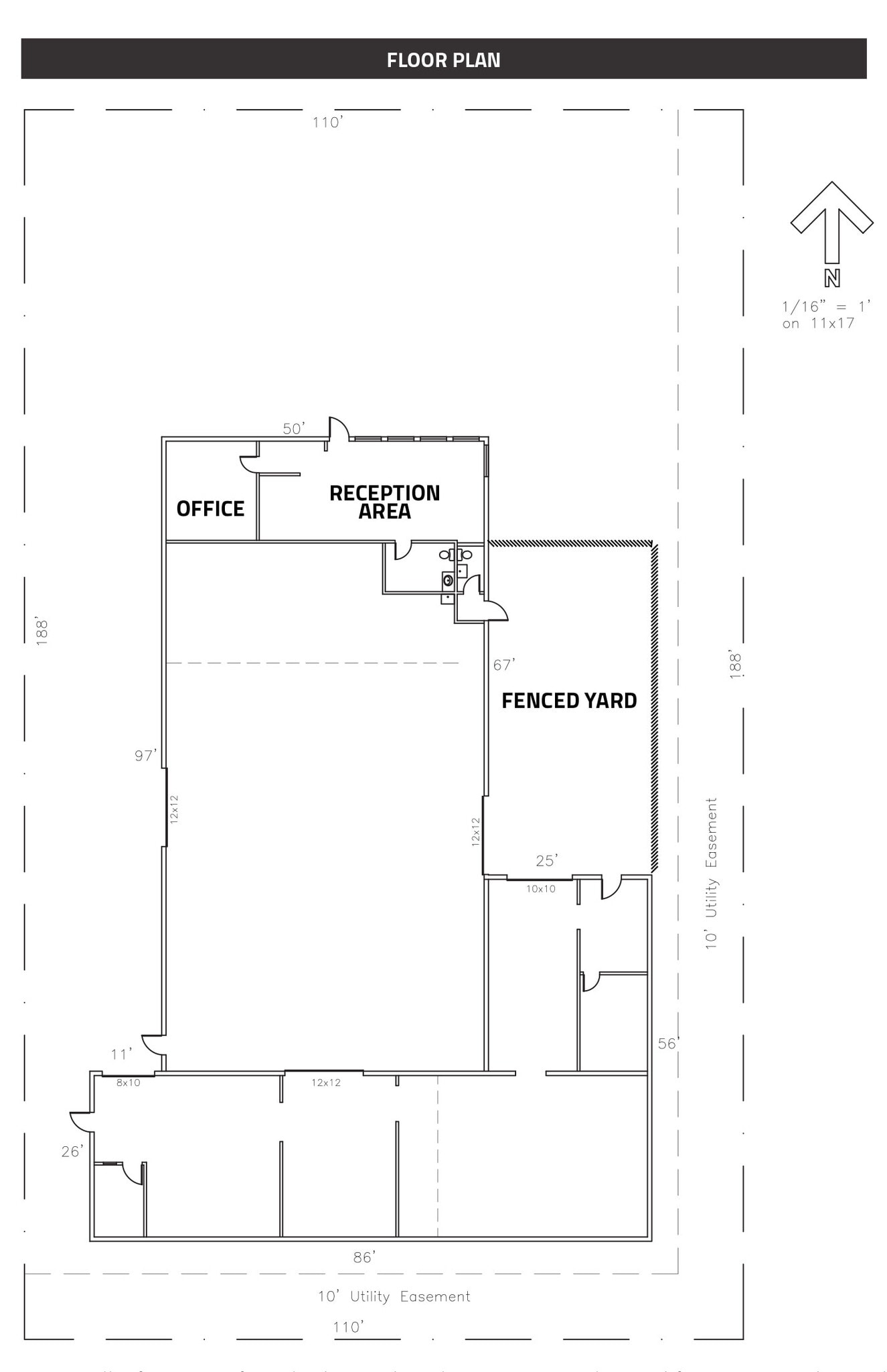
Spacious industrial building in central Longmont for lease. 1501 Nelson Road has large open bays with multiple overhead grade-level doors. Tenant will have access to a separate storage facility and a fenced/secure yard.
- Lease rate does not include utilities, property expenses or building services
- Yard
- 2 Drive Ins
| Space | Size | Term | Rental Rate | Space Use | Build-Out | Available |
| 1st Floor | 7,836 SF | Negotiable | $9.50 /SF/YR $0.79 /SF/MO $74,442 /YR $6,204 /MO | Industrial | Partial Build-Out | Now |
1st Floor
| Size |
| 7,836 SF |
| Term |
| Negotiable |
| Rental Rate |
| $9.50 /SF/YR $0.79 /SF/MO $74,442 /YR $6,204 /MO |
| Space Use |
| Industrial |
| Build-Out |
| Partial Build-Out |
| Available |
| Now |
1 of 8
Videos
Matterport 3D Exterior
Matterport 3D Tour
Photos
Street View
Street
Map
1st Floor
| Size | 7,836 SF |
| Term | Negotiable |
| Rental Rate | $9.50 /SF/YR |
| Space Use | Industrial |
| Build-Out | Partial Build-Out |
| Available | Now |
Spacious industrial building in central Longmont for lease. 1501 Nelson Road has large open bays with multiple overhead grade-level doors. Tenant will have access to a separate storage facility and a fenced/secure yard.
- Lease rate does not include utilities, property expenses or building services
- 2 Drive Ins
- Yard
Warehouse Facility Facts
Building Size
7,836 SF
Lot Size
0.47 AC
Year Built
1971
Construction
Metal
Zoning
MI, Longmont
Select Tenants
- Floor
- Tenant Name
- Industry
- 1st
- Frontline Cycles
- -
- 1st
- Grand Shelters Inc
- Public Administration
- 1st
- Red Lyon Automotive Service LLC
- Services
1 1
Fairly walkable
40/100
Very drivable
80/100
Limited public transit
30/100
Fairly bikeable
50/100
1 of 6
Videos
Matterport 3D Exterior
Matterport 3D Tour
Photos
Street View
Street
Map
1 of 1
Presented by
1501 Nelson Rd
Already a member? Log In
Hmm, there seems to have been an error sending your message. Please try again.
Thanks! Your message was sent.






