Log In/Sign Up
Your email has been sent.
1515 Julian St - The Julian at Sloan’s Lake 2,785 SF Retail Condo Unit Offered at $950,000 in Denver, CO 80204



1 Unit Available
- Unit
- Unit Size
- Condo Use
- Price
- NOI
| Sale Type | Owner User |
| Sale Type | Owner User |
Description
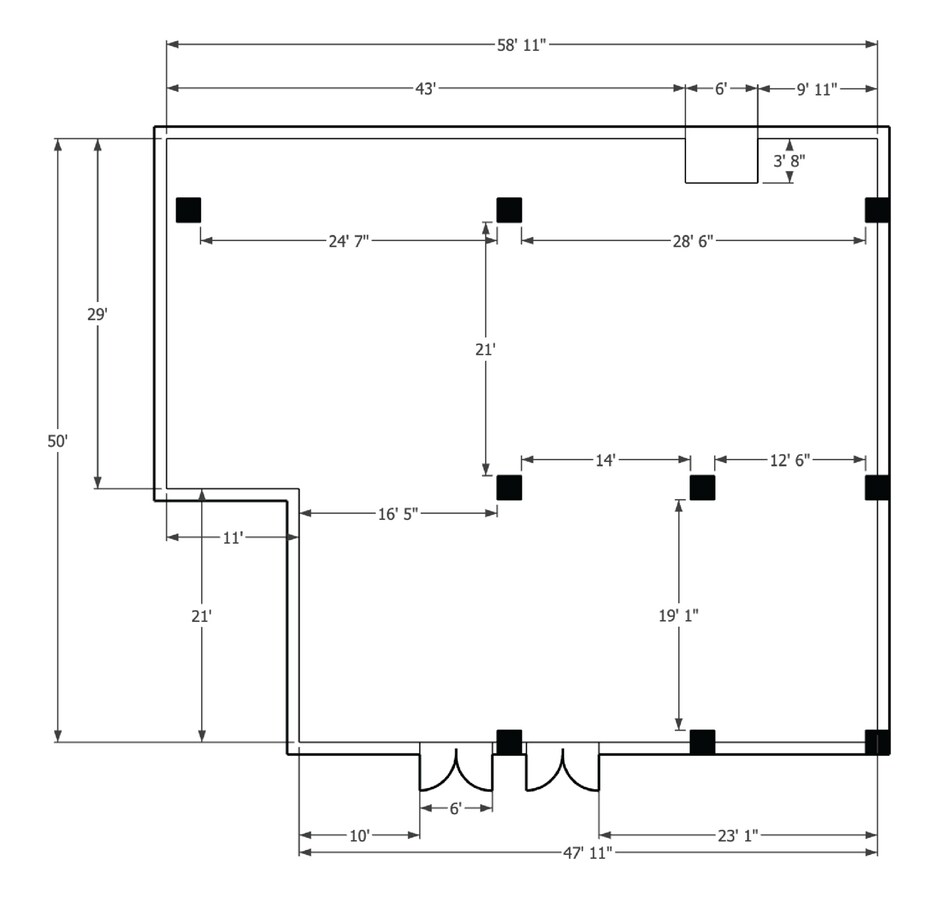
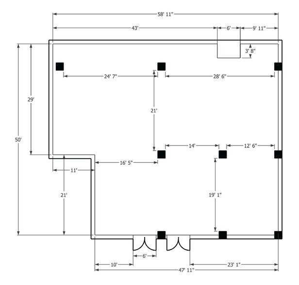
2785 SF ground floor retail condo, constructed in 2021 and zoned C-MS-8. Eligible for tax credits and exemptions through the Colorado Enterprise Zone Program. This versatile space is ideal for health & wellness services, fitness or yoga studios, beauty salons or med spas, health-oriented cafes or lifestyle or specialty retail. Offered in grey shell condition, the unit features concrete flooring, exposed walls, grease trap and stubbed-in utilities (HVAC, plumbing, electrical). Ideal for investors or owner-users seeking a customizable layout tailored to their operational requirements. Boasting high ceilings and large windows, this property is filled with natural light, creating an inviting atmosphere for retail ventures. Bring your vision to life in a setting designed to support growth and community engagement.
Sale Notes
Located at the base of a modern mixed-use building just blocks from Sloan’s Lake, this 2785 SF retail condo offers excellent visibility and accessibility in one of Denver’s most dynamic neighborhoods.
2785 SF ground floor retail condo, constructed in 2021 and zoned C-MS-8. Eligible for tax credits and exemptions through the Colorado Enterprise Zone Program. This versatile space is ideal for health & wellness services, fitness or yoga studios, beauty salons or med spas, health-oriented cafes or lifestyle or specialty retail. Offered in grey shell condition, the unit features concrete flooring, exposed walls, access to common area grease trap and stubbed-in utilities (HVAC, plumbing, electrical). Ideal for owner-users seeking a customizable layout tailored to their operational requirements. Boasting high ceilings and large windows, this property is filled with natural light, creating an inviting atmosphere for retail ventures. Bring your vision to life in a setting designed to support growth and community engagement.
2785 SF ground floor retail condo, constructed in 2021 and zoned C-MS-8. Eligible for tax credits and exemptions through the Colorado Enterprise Zone Program. This versatile space is ideal for health & wellness services, fitness or yoga studios, beauty salons or med spas, health-oriented cafes or lifestyle or specialty retail. Offered in grey shell condition, the unit features concrete flooring, exposed walls, access to common area grease trap and stubbed-in utilities (HVAC, plumbing, electrical). Ideal for owner-users seeking a customizable layout tailored to their operational requirements. Boasting high ceilings and large windows, this property is filled with natural light, creating an inviting atmosphere for retail ventures. Bring your vision to life in a setting designed to support growth and community engagement.
| Unit | Unit Size | Condo Use | Price | NOI |
| Unit C-101 | 2,785 SF | Retail | $950,000 ($341.11/SF) | - |
Unit C-101
| Unit Size |
| 2,785 SF |
| Condo Use |
| Retail |
| Price |
| $950,000 ($341.11/SF) |
| NOI |
| - |
1 of 2
Videos
Matterport 3D Exterior
Matterport 3D Tour
Photos
Street View
Street
Map
Unit C-101
| Unit Size | 2,785 SF |
| Condo Use | Retail |
| Price | $950,000 ($341.11/SF) |
| NOI | - |
| Sale Type | Owner User |
| Description | |
| 2785 SF ground floor retail condo, constructed in 2021 and zoned C-MS-8. Eligible for tax credits and exemptions through the Colorado Enterprise Zone Program. This versatile space is ideal for health & wellness services, fitness or yoga studios, beauty salons or med spas, health-oriented cafes or lifestyle or specialty retail. Offered in grey shell condition, the unit features concrete flooring, exposed walls, grease trap and stubbed-in utilities (HVAC, plumbing, electrical). Ideal for investors or owner-users seeking a customizable layout tailored to their operational requirements. Boasting high ceilings and large windows, this property is filled with natural light, creating an inviting atmosphere for retail ventures. Bring your vision to life in a setting designed to support growth and community engagement.</li></ul> | |
| Sale Notes | |
| Located at the base of a modern mixed-use building just blocks from Sloan’s Lake, this 2785 SF retail condo offers excellent visibility and accessibility in one of Denver’s most dynamic neighborhoods.<br> <br> 2785 SF ground floor retail condo, constructed in 2021 and zoned C-MS-8. Eligible for tax credits and exemptions through the Colorado Enterprise Zone Program. This versatile space is ideal for health & wellness services, fitness or yoga studios, beauty salons or med spas, health-oriented cafes or lifestyle or specialty retail. Offered in grey shell condition, the unit features concrete flooring, exposed walls, access to common area grease trap and stubbed-in utilities (HVAC, plumbing, electrical). Ideal for owner-users seeking a customizable layout tailored to their operational requirements. Boasting high ceilings and large windows, this property is filled with natural light, creating an inviting atmosphere for retail ventures. Bring your vision to life in a setting designed to support growth and community engagement.</li></ul> |
Property Facts
The following property facts and amenities apply to the entire building. Details for individual condo units may vary and are listed in the unit information above.
Amenities
Site Amenities
- 24 Hour Access
- Controlled Access
- Fitness Center
- Tenant Controlled HVAC
- On-Site Retail
- Trash Pickup - Curbside
- Wi-Fi
- Elevator
- Public Transportation
- Smoke Detector
Unit Mix Information
| Description | No. Units | Avg. Rent/Mo | SF |
|---|---|---|---|
| Studios | 1 | - | 775 |
| 1+1 | 26 | - | 548 - 1,247 |
| 1+1.5 | 4 | - | 1,028 - 1,108 |
| 2+1 | 1 | - | 994 |
| 2+1.5 | 2 | - | 1,204 |
| 2+2 | 10 | - | 1,012 - 1,440 |
| 2+2.5 | 8 | - | 1,163 - 2,480 |
| 3+3 | 2 | - | 2,062 - 2,150 |
Fairly walkable
50/100
Very drivable
80/100
Good public transit
70/100
Moderately bikeable
70/100
1 of 31
Videos
Matterport 3D Exterior
Matterport 3D Tour
Photos
Street View
Street
Map
Presented by
1515 Julian St - The Julian at Sloan’s Lake
Already a member? Log In
Hmm, there seems to have been an error sending your message. Please try again.
Thanks! Your message was sent.



